| 标题
快捷导航

精彩推荐:MY0511客户端下载

    • 中信银行镇江分行

    • 公益体彩 乐善人生

    • 鹏龙鸿蒙

    • 天然石材·人造石

    » 梦溪论坛 » 家庭装修 » 全家福装饰 » 全家福装饰-----------都市汇-----------徐总(开工大吉)
    全家福装饰  >  全家福装饰-----------都市汇-----------徐总(开工大吉)     
    查看: 7440  回复: 4
    全家福装饰-----------都市汇-----------徐总(开工大吉)      查看: 7440  回复: 4
    • 来自 江苏省
    • 精华 35
    • 注册 2016-9-27
    •  
    全家福装饰-----------都市汇-----------徐总(开工大吉)

    【小区名称】:都市汇


    【装修风格】:现代简约


    【装修公司】:全家福装饰


    【设计总监】:卞工


    全家福装饰恭祝徐总雅居于11点56分开工大吉!


    感谢徐总对我们全家福装饰的信任与支持,接下来我们将全力为您打造放心工装~










                      
    • 来自 江苏省
    • 精华 35
    • 注册 2016-9-27
    •  

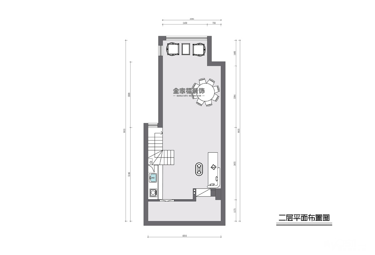
    ▼平面布置 / LAYOUT









    [ 本帖最后由 全家福装饰客服 于 2021-7-25 14:12 编辑 ]




    • 来自 江苏省
    • 精华 35
    • 注册 2016-9-27
    •  

    ▼一层效果图/RENDERING












    [ 本帖最后由 全家福装饰客服 于 2021-7-25 14:10 编辑 ]




    • 来自 江苏省
    • 精华 35
    • 注册 2016-9-27
    •  

    ▼二层效果图/RENDERING
















    [ 本帖最后由 全家福装饰客服 于 2021-7-25 14:13 编辑 ]




    • 来自 江苏省
    • 精华 77
    • 注册 2011-4-20
    • 行业 房产建筑
    •  


















    查看积分策略说明快速回复主题
    您目前还是游客,请 登录注册
    您目前是游客,本帖已被系统设置了自动关闭,不可回复!

    0/5000字

     
    < >
     

    Powered by Discuz! X 2 0.060818 s 清除 Cookies - 镇江网友之家 - 手机版
    论坛导航 关闭