收藏本站
客户端
扫码下载客户端
官方微信
打开微信扫一扫
登录
|
注册
|
标题
标题
用户
全站首页
|
论坛导航
|
网络问政
|
招聘求职
|
买房租房
|
装修频道
|
生活服务
|
教育
|
相亲
|
亲子
|
美食
|
婚嫁
|
手机客户端
家有学子
|
母婴乐园
快捷导航
精彩推荐:
MY0511客户端下载
中信银行镇江分行
公益体彩 乐善人生
鹏龙鸿蒙
天然石材·人造石
»
梦溪论坛
»
家庭装修
»
镇江波涛装饰
» 凤凰和润钱先生吉宅2020年3月28日开工大吉—设计师赵嘉伟—项目管家陈建
镇江波涛装饰
>
[在建工地]
凤凰和润钱先生吉宅2020年3月28日开工大吉—设计师赵嘉伟—项目管家陈建
查看: 2878 回复: 9
快速回复
返回镇江波涛装饰
[在建工地]
凤凰和润钱先生吉宅2020年3月28日开工大吉—设计师赵嘉伟—项目管家陈建
查看: 2878 回复: 9
上一主题
|
下一主题
波涛装饰客服1
来自 江苏省
精华
5
注册 2018-4-18
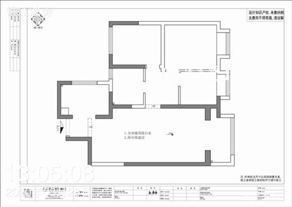
凤凰和润钱先生吉宅2020年3月28日开工大吉—设计师赵嘉伟—项目管家陈建
恭喜钱先生吉宅9:08分开工大吉
【楼盘名称】凤凰和润
【设计师】赵嘉伟
【项目管家】陈建
【项目总监】肖庆松
感谢钱先生一家对波涛装饰的信任与支持预约电话400-0511-208
[
本帖最后由 波涛装饰客服1 于 2020-4-1 05:49 编辑
]
已有
0
人打赏
2020-3-28 14:10
1楼
[联宇电脑] 电脑组装\维修\升级\企业单位电脑维护!
只看该作者
分享本楼
波涛装饰客服1
来自 江苏省
精华
5
注册 2018-4-18
最新活动
http://bbs.my0511.com/f1083b-t7317518z-1#pid112370175
作品欣赏
http://bbs.my0511.com/f1083b-y499p
在建工地
http://bbs.my0511.com/f1083b-y497p
装修课堂
http://bbs.my0511.com/f1083b-y500p
2020-3-28 14:10
2楼
[联宇电脑] 电脑组装\维修\升级\企业单位电脑维护!
只看该作者
分享本楼
波涛装饰客服1
来自 江苏省
精华
5
注册 2018-4-18
铲墙皮:主体改造时拍摄施工图片
[
本帖最后由 波涛装饰客服1 于 2020-4-9 07:19 编辑
]
2020-4-1 13:53
3楼
MY0511相亲,一分钟注册,享一辈子幸福!
只看该作者
分享本楼
baby520
来自 江苏省
精华 0
注册 2005-7-5
2020-4-8 16:18
4楼
[联宇电脑] 电脑组装\维修\升级\企业单位电脑维护!
只看该作者
分享本楼
波涛装饰客服1
来自 江苏省
精华
5
注册 2018-4-18
水电交底:铺设水电工人施工图片
水电材料进场验收
铺设水电工人施工图片
水电验收
水电阶段:地暖铺设
[
本帖最后由 波涛装饰客服1 于 2020-4-24 08:13 编辑
]
2020-4-9 15:39
5楼
找工作,就上MY0511!
只看该作者
分享本楼
波涛装饰
专版版主
来自 江苏省
精华
173
注册 2015-4-10
行业 房产建筑
扫码看工地回播
扫码看工地回播
[
本帖最后由 波涛装饰 于 2020-9-17 14:38 编辑
]
2020-9-5 16:43
6楼
MY0511相亲,一分钟注册,享一辈子幸福!
只看该作者
分享本楼
波涛装饰
专版版主
来自 江苏省
精华
173
注册 2015-4-10
行业 房产建筑
目前阶段:瓦工阶段更新内容:对所有墙砖平整度2米直尺≤3mm,垂直≤2mm,阴阳角≤2mm墙面砖空鼓面积不大于该砖面积的10%切割瓷砖边条应大于5cm,地漏安装低于地面2mm所有阴阳角应保持90度、现场瓷砖倒角边不能小于1mm
2020-9-17 14:43
7楼
买房、卖房、租房上镇江房产网!
只看该作者
分享本楼
波涛装饰
专版版主
来自 江苏省
精华
173
注册 2015-4-10
行业 房产建筑
目前阶段:瓦工阶段更新内容:厨卫,阳台的窗户边的墙砖应整块,墙砖压地砖。除特除情况如腰线,窗户等,如客户提出特殊贴法时必须通知工程部并要求客户签字。)大理石门槛略高于卫地坪5-8mm
2020-9-17 14:48
8楼
找工作,就上MY0511!
只看该作者
分享本楼
波涛装饰
专版版主
来自 江苏省
精华
173
注册 2015-4-10
行业 房产建筑
目前阶段:油漆阶段更新内容:原墙面封界面剂,墙体开裂处凿除并用纤维网砂浆粉刷空鼓处凿除重新粉刷阴阳角必须横平竖直,阴阳角用护角条处理墙面批嵌离地不超过5cm、窗台下口需批嵌平整
2020-9-17 14:52
9楼
找工作,就上MY0511!
只看该作者
分享本楼
波涛装饰
专版版主
来自 江苏省
精华
173
注册 2015-4-10
行业 房产建筑
目前阶段:油漆阶段更新内容:涂层无砂眼、流附、气泡现象所有门窗及踢脚线位置处腻子层必须平整顺直
2020-9-17 14:53
10楼
[联宇电脑] 电脑组装\维修\升级\企业单位电脑维护!
只看该作者
分享本楼
返回镇江波涛装饰
快速回复主题
游客
您目前还是游客,请
登录
或
注册
您目前是游客,本帖已被系统设置了自动关闭,不可回复!
文明交流,理性发言
0/5000字
<
>
请在打开的新窗口中支付完成打赏
我已完成支付打赏
支付失败重新支付
其他金额
打赏金额:
元
确定
支付打赏
提 现
打赏人
打赏金额(元)
打赏时间
Powered by
Discuz! X 2
0.038591 s
清除 Cookies
-
镇江网友之家
-
手机版
论坛导航
关闭
吃喝玩乐
饮食男女
镇江钓友之家
菜菜鸟户外
镇江单车俱乐部
镜头里的镇江
畅游天下
猫狗总动员
视觉Coffeeshop摄影部落
花鸟鱼虫
婚姻.亲子.家庭
家有学子
谈婚论嫁
女性天地
母婴乐园
婚姻生活
梦溪佳缘
装修
家庭装修
装修招标
镇江室内设计师交流
装修商家直通车
你好,镇江!
百姓话题
我要买房
0511爱心家园
市场监管•12315热线
分类信息
生活服务
闲置转让
镇江二手房/镇江租房
镇江招聘求职
教育培训
镇江二手车
商铺厂房写字楼租售
宠物市场
运动健身
卡券交易
电脑维修升级
杂货铺
其他分类信息区
兴趣爱好
HiFi音响江城沙龙
镇江市美术家协会
我爱模型
车友俱乐部
车迷之家
汽车驾培中心
运动俱乐部
镇江市冬泳、铁人三项协会
聚焦足球
镇江羽毛球
镇江乒乓球协会
镇江网球协会
镇江市自行车运动协会
热爱篮球
动力机车
合作栏目
维权热线
天翼时代
色觉影像摄影工作室
站务区
疑问与建议
网络问政
市政府工作部门
垂直管理部门
党群工作部门
其他重点单位
辖市(区)