收藏本站
客户端
扫码下载客户端
官方微信
打开微信扫一扫
登录
|
注册
|
标题
标题
用户
全站首页
|
论坛导航
|
网络问政
|
招聘求职
|
买房租房
|
装修频道
|
生活服务
|
教育
|
相亲
|
亲子
|
美食
|
婚嫁
|
手机客户端
家有学子
|
母婴乐园
快捷导航
精彩推荐:
MY0511客户端下载
中信银行镇江分行
公益体彩 乐善人生
鹏龙鸿蒙
天然石材·人造石
»
梦溪论坛
»
家庭装修
»
镇江波涛装饰
» 蓝天幸福城韩先生吉宅2020年3月31日开工大吉—设计师刘雯菲—项目管家李善敏
镇江波涛装饰
>
[在建工地]
蓝天幸福城韩先生吉宅2020年3月31日开工大吉—设计师刘雯菲—项目管家李善敏
查看: 2810 回复: 10
快速回复
返回镇江波涛装饰
[在建工地]
蓝天幸福城韩先生吉宅2020年3月31日开工大吉—设计师刘雯菲—项目管家李善敏
查看: 2810 回复: 10
上一主题
|
下一主题
波涛装饰
专版版主
来自 江苏省
精华
173
注册 2015-4-10
行业 房产建筑
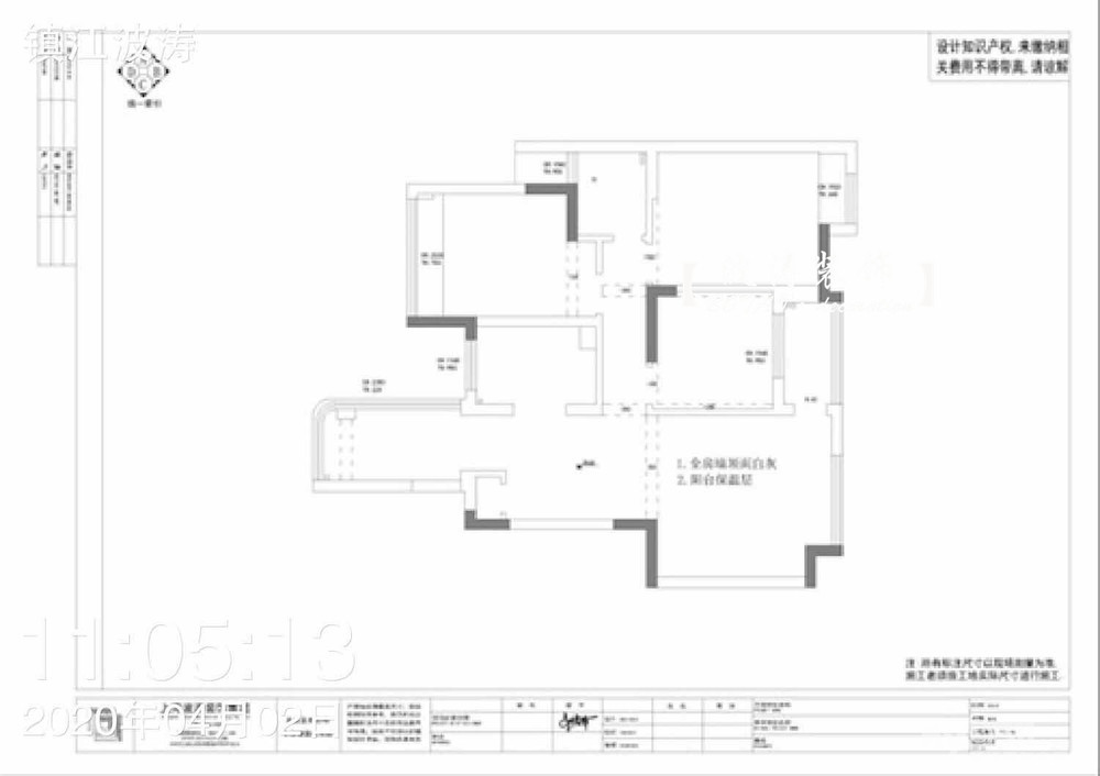
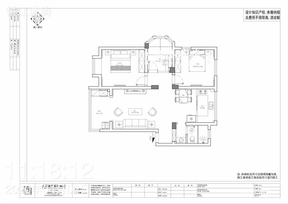
蓝天幸福城韩先生吉宅2020年3月31日开工大吉—设计师刘雯菲—项目管家李善敏
恭喜韩先生吉宅9:18分开工大吉
【楼盘名称】蓝天幸福城
【设计师】刘雯菲
【项目管家】李善敏
【项目总监】张志强
感谢韩先生一家对波涛装饰的信任与支持
预约电话️ 400-0511-208
[
本帖最后由 波涛装饰 于 2020-4-2 14:24 编辑
]
已有
0
人打赏
2020-4-1 13:36
1楼
0511家装频道:本地家居服务平台,数万业主共同选择
只看该作者
分享本楼
波涛装饰
专版版主
来自 江苏省
精华
173
注册 2015-4-10
行业 房产建筑
最新活动
http://bbs.my0511.com/f1083b-t7317518z-1#pid112370175
作品欣赏
http://bbs.my0511.com/f1083b-y499p
在建工地
http://bbs.my0511.com/f1083b-y497p
装修课堂
http://bbs.my0511.com/f1083b-y500p
2020-4-1 13:37
2楼
MY0511相亲,一分钟注册,享一辈子幸福!
只看该作者
分享本楼
波涛装饰客服1
来自 江苏省
精华
5
注册 2018-4-18
拆除进行中
[
本帖最后由 波涛装饰客服1 于 2020-4-2 06:29 编辑
]
2020-4-2 14:29
3楼
[联宇电脑] 电脑组装\维修\升级\企业单位电脑维护!
只看该作者
分享本楼
波涛装饰客服1
来自 江苏省
精华
5
注册 2018-4-18
土建改造
砌墙:主体改造时拍摄施工图片
新砌墙改造全部结束,标化完成,下一步水电进场施工
[
本帖最后由 波涛装饰客服1 于 2020-4-22 08:52 编辑
]
2020-4-11 11:22
4楼
买房、卖房、租房上镇江房产网!
只看该作者
分享本楼
波涛装饰客服1
来自 江苏省
精华
5
注册 2018-4-18
强弱电铺设:铺设水电工人施工图片
2020-4-28 14:07
5楼
0511家装频道:本地家居服务平台,数万业主共同选择
只看该作者
分享本楼
波涛装饰
专版版主
来自 江苏省
精华
173
注册 2015-4-10
行业 房产建筑
安装环节了
安装环节期间跟进的状态会慢一点,因为柜体的功能性需要业主深思熟虑做选择,软装的搭配也需要业主亲自选材,业主签字确认后才会实现安装,安装起来就很快了
目前阶段:瓦工阶段更新内容:厨卫,阳台的窗户边的墙砖应整块,墙砖压地砖。除特除情况如腰线,窗户等,如客户提出特殊贴法时必须通知工程部并要求客户签字。)大理石门槛略高于卫地坪5-8mm
[
本帖最后由 波涛装饰 于 2020-9-11 16:42 编辑
]
2020-8-31 14:13
6楼
买房、卖房、租房上镇江房产网!
只看该作者
分享本楼
波涛装饰
专版版主
来自 江苏省
精华
173
注册 2015-4-10
行业 房产建筑
2020-8-31 15:22
7楼
买房、卖房、租房上镇江房产网!
只看该作者
分享本楼
波涛装饰
专版版主
来自 江苏省
精华
173
注册 2015-4-10
行业 房产建筑
更新内容:对所有墙砖平整度2米直尺≤3mm,垂直≤2mm,阴阳角≤2mm墙面砖空鼓面积不大于该砖面积的10%切割瓷砖边条应大于5cm,地漏安装低于地面2mm所有阴阳角应保持90度、现场瓷砖倒角边不能小于1mm
2020-9-11 16:45
8楼
找工作,就上MY0511!
只看该作者
分享本楼
波涛装饰
专版版主
来自 江苏省
精华
173
注册 2015-4-10
行业 房产建筑
目前阶段:瓦工阶段更新内容:瓦工结束时所有卫生间、厨房间贴好水电走向标识胶带,并使用阳角保护套油烟出口必须贴砖并开孔所有完成的地砖、大理石、中央空调出回风口做好保护。
2020-9-11 16:49
9楼
MY0511相亲,一分钟注册,享一辈子幸福!
只看该作者
分享本楼
波涛装饰
专版版主
来自 江苏省
精华
173
注册 2015-4-10
行业 房产建筑
目前阶段:油漆阶段更新内容:线盒与线盒之间应批嵌平整,线盒边应切方、去除临时盖板、清理干净涂层均匀,不漏涂,透底.刷子的刷纹通顺顶面、墙面涂层侧观大面无起伏墙角向上须用大板向上拉平石膏线尺寸及安装
2020-9-11 16:51
10楼
[联宇电脑] 电脑组装\维修\升级\企业单位电脑维护!
只看该作者
分享本楼
波涛装饰
专版版主
来自 江苏省
精华
173
注册 2015-4-10
行业 房产建筑
安装结束待交付
2020-9-11 16:53
11楼
0511家装频道:本地家居服务平台,数万业主共同选择
只看该作者
分享本楼
返回镇江波涛装饰
快速回复主题
游客
您目前还是游客,请
登录
或
注册
您目前是游客,本帖已被系统设置了自动关闭,不可回复!
文明交流,理性发言
0/5000字
<
>
请在打开的新窗口中支付完成打赏
我已完成支付打赏
支付失败重新支付
其他金额
打赏金额:
元
确定
支付打赏
提 现
打赏人
打赏金额(元)
打赏时间
Powered by
Discuz! X 2
0.069380 s
清除 Cookies
-
镇江网友之家
-
手机版
论坛导航
关闭
吃喝玩乐
饮食男女
镇江钓友之家
菜菜鸟户外
镇江单车俱乐部
镜头里的镇江
畅游天下
猫狗总动员
视觉Coffeeshop摄影部落
花鸟鱼虫
婚姻.亲子.家庭
家有学子
谈婚论嫁
女性天地
母婴乐园
婚姻生活
梦溪佳缘
装修
家庭装修
装修招标
镇江室内设计师交流
装修商家直通车
你好,镇江!
百姓话题
我要买房
0511爱心家园
市场监管•12315热线
分类信息
生活服务
闲置转让
镇江二手房/镇江租房
镇江招聘求职
教育培训
镇江二手车
商铺厂房写字楼租售
宠物市场
运动健身
卡券交易
电脑维修升级
杂货铺
其他分类信息区
兴趣爱好
HiFi音响江城沙龙
镇江市美术家协会
我爱模型
车友俱乐部
车迷之家
汽车驾培中心
运动俱乐部
镇江市冬泳、铁人三项协会
聚焦足球
镇江羽毛球
镇江乒乓球协会
镇江网球协会
镇江市自行车运动协会
热爱篮球
动力机车
合作栏目
维权热线
天翼时代
色觉影像摄影工作室
站务区
疑问与建议
网络问政
市政府工作部门
垂直管理部门
党群工作部门
其他重点单位
辖市(区)