收藏本站
客户端
扫码下载客户端
官方微信
打开微信扫一扫
登录
|
注册
|
标题
标题
用户
全站首页
|
论坛导航
|
网络问政
|
招聘求职
|
买房租房
|
装修频道
|
生活服务
|
教育
|
相亲
|
亲子
|
美食
|
婚嫁
|
手机客户端
家有学子
|
母婴乐园
快捷导航
精彩推荐:
MY0511客户端下载
中信银行镇江分行
公益体彩 乐善人生
鹏龙鸿蒙
天然石材·人造石
»
梦溪论坛
»
家庭装修
»
镇江波涛装饰
» 波涛装饰——象山花园22-**01侯总
镇江波涛装饰
>
[在建工地]
波涛装饰——象山花园22-**01侯总
查看: 4722 回复: 26
快速回复
返回镇江波涛装饰
[在建工地]
波涛装饰——象山花园22-**01侯总
查看: 4722 回复: 26
上一主题
|
下一主题
波涛装饰
专版版主
来自 江苏省
精华
173
注册 2015-4-10
行业 房产建筑
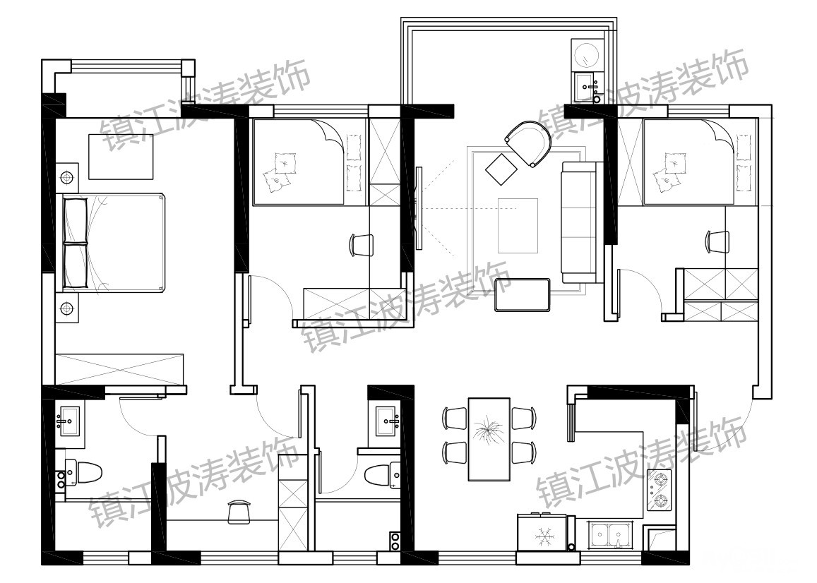
波涛装饰——象山花园22-**01侯总
恭喜候总吉宅9:28分开工大吉
【楼盘名称】象山花园
【设计师】陈婷婷
【项目管家】王飞
感谢候总一家对波涛装饰的信任与支持
波涛装饰全力为您打造放心工程
咨询热线:400-0511-208
[
本帖最后由 my0511菲雪 于 2022-9-19 10:35 编辑
]
已有
0
人打赏
2022-5-10 15:17
1楼
0511家装频道:本地家居服务平台,数万业主共同选择
只看该作者
分享本楼
波涛装饰
专版版主
来自 江苏省
精华
173
注册 2015-4-10
行业 房产建筑
最新活动
http://bbs.my0511.com/f1083b-t7317518z-1
作品欣赏
http://bbs.my0511.com/f1083b-y499p
在建工地
http://bbs.my0511.com/f1083b-y497p
装修课堂
http://bbs.my0511.com/f1083b-y500p
2022-5-10 15:23
2楼
MY0511相亲,一分钟注册,享一辈子幸福!
只看该作者
分享本楼
波涛装饰
专版版主
来自 江苏省
精华
173
注册 2015-4-10
行业 房产建筑
日期:2022/5/10
施工阶段:改造
今日工地施工:拆除施工
免费参观工地热线:400-0511-208
[
本帖最后由 波涛装饰 于 2022-7-30 14:00 编辑
]
2022-5-10 15:24
3楼
[联宇电脑] 电脑组装\维修\升级\企业单位电脑维护!
只看该作者
分享本楼
波涛装饰
专版版主
来自 江苏省
精华
173
注册 2015-4-10
行业 房产建筑
日期:2022/5/11
施工阶段:水电。
今日工地施工:今日水电交底。
免费参观工地热线:400-0511-208
[
本帖最后由 波涛装饰 于 2022-7-30 14:13 编辑
]
2022-5-11 13:40
4楼
0511家装频道:本地家居服务平台,数万业主共同选择
只看该作者
分享本楼
波涛装饰
专版版主
来自 江苏省
精华
173
注册 2015-4-10
行业 房产建筑
日期:2022/5/17
施工阶段:水电
今日工地施工:水电施工中
免费参观工地热线:400-0511-208
[
本帖最后由 波涛装饰 于 2022-7-30 15:53 编辑
]
2022-5-17 17:20
5楼
买房、卖房、租房上镇江房产网!
只看该作者
分享本楼
波涛装饰
专版版主
来自 江苏省
精华
173
注册 2015-4-10
行业 房产建筑
日期:2022/5/19
施工阶段:水电。
今日工地施工:水电施工。
免费参观工地热线:400-0511-208
[
本帖最后由 波涛装饰 于 2022-7-30 15:55 编辑
]
2022-5-19 16:38
6楼
MY0511相亲,一分钟注册,享一辈子幸福!
只看该作者
分享本楼
波涛装饰
专版版主
来自 江苏省
精华
173
注册 2015-4-10
行业 房产建筑
日期:2022/5/21
施工阶段:水电
今日工地施工:水电施工中
免费参观工地热线:400-0511-208
[
本帖最后由 波涛装饰 于 2022-7-30 16:42 编辑
]
2022-5-21 14:15
7楼
买房、卖房、租房上镇江房产网!
只看该作者
分享本楼
波涛装饰
专版版主
来自 江苏省
精华
173
注册 2015-4-10
行业 房产建筑
日期:2022/5/25
施工阶段:水电。
今日工地施工:水电验收。
免费参观工地热线:400-0511-208
[
本帖最后由 波涛装饰 于 2022-7-30 16:47 编辑
]
2022-5-25 09:32
8楼
买房、卖房、租房上镇江房产网!
只看该作者
分享本楼
波涛装饰
专版版主
来自 江苏省
精华
173
注册 2015-4-10
行业 房产建筑
日期:2022/5/26
施工阶段:安装。
今日工地施工:安装窗户施工。
免费参观工地热线:400-0511-208
[
本帖最后由 波涛装饰 于 2022-7-30 16:49 编辑
]
2022-5-26 10:32
9楼
MY0511相亲,一分钟注册,享一辈子幸福!
只看该作者
分享本楼
波涛装饰
专版版主
来自 江苏省
精华
173
注册 2015-4-10
行业 房产建筑
日期:2022/5/31
施工阶段:瓦工。
今日工地施工:瓦工施工。
免费参观工地热线:400-0511-208
[
本帖最后由 波涛装饰 于 2022-7-30 16:50 编辑
]
2022-5-31 11:21
10楼
找工作,就上MY0511!
只看该作者
分享本楼
波涛装饰
专版版主
来自 江苏省
精华
173
注册 2015-4-10
行业 房产建筑
端午临中夏,时清日复长。
浓情端午日,岁守长安康。
波涛装饰全体员工祝您端午安康!
祝您乘风破浪,不负“粽”望!
不留余力,一举高“粽”!
可甜可盐,与“粽”不同!
世间美好,接“粽”而至!
2022-6-3 16:00
11楼
0511家装频道:本地家居服务平台,数万业主共同选择
只看该作者
分享本楼
波涛装饰
专版版主
来自 江苏省
精华
173
注册 2015-4-10
行业 房产建筑
日期:2022/6/4
施工阶段:瓦工。
今日工地施工:瓦工施工中。
免费参观工地热线:400-0511-208
[
本帖最后由 波涛装饰 于 2022-7-30 16:51 编辑
]
2022-6-4 13:36
12楼
MY0511相亲,一分钟注册,享一辈子幸福!
只看该作者
分享本楼
波涛装饰
专版版主
来自 江苏省
精华
173
注册 2015-4-10
行业 房产建筑
日期:2022/6/7
施工阶段:瓦工。
今日工地施工:瓦工施工中。
免费参观工地热线:400-0511-208
[
本帖最后由 波涛装饰 于 2022-7-30 16:52 编辑
]
2022-6-7 10:51
13楼
买房、卖房、租房上镇江房产网!
只看该作者
分享本楼
波涛装饰
专版版主
来自 江苏省
精华
173
注册 2015-4-10
行业 房产建筑
日期:2022/6/11
施工阶段:瓦工。
今日工地施工:瓦工施工结束,可以安排美缝了。
免费参观工地热线:400-0511-208
[
本帖最后由 波涛装饰 于 2022-7-30 16:54 编辑
]
2022-6-11 13:37
14楼
[联宇电脑] 电脑组装\维修\升级\企业单位电脑维护!
只看该作者
分享本楼
波涛装饰
专版版主
来自 江苏省
精华
173
注册 2015-4-10
行业 房产建筑
日期:2022/6/21
施工阶段:保护
今日工地施工:成品保护施工
免费参观工地热线:400-0511-208
[
本帖最后由 波涛装饰 于 2022-7-30 16:55 编辑
]
2022-6-21 13:39
15楼
找工作,就上MY0511!
只看该作者
分享本楼
波涛装饰
专版版主
来自 江苏省
精华
173
注册 2015-4-10
行业 房产建筑
日期:2022/6/21
施工阶段:下单
今日工地施工:橱柜确认下单。
免费参观工地热线:400-0511-208
[
本帖最后由 波涛装饰 于 2022-7-30 17:03 编辑
]
2022-6-21 13:58
16楼
0511家装频道:本地家居服务平台,数万业主共同选择
只看该作者
分享本楼
波涛装饰
专版版主
来自 江苏省
精华
173
注册 2015-4-10
行业 房产建筑
日期:2022/6/26
施工阶段:木工。
今日工地施工:木工施工中。
免费参观工地热线:400-0511-205
[
本帖最后由 波涛装饰 于 2022-7-30 17:05 编辑
]
2022-6-26 10:45
17楼
买房、卖房、租房上镇江房产网!
只看该作者
分享本楼
波涛装饰
专版版主
来自 江苏省
精华
173
注册 2015-4-10
行业 房产建筑
日期:2022/7/1
施工阶段:木工。
今日工地施工:木工施工
免费参观工地热线:400-0511-208
[
本帖最后由 波涛装饰 于 2022-7-30 17:08 编辑
]
2022-7-1 09:49
18楼
[联宇电脑] 电脑组装\维修\升级\企业单位电脑维护!
只看该作者
分享本楼
波涛装饰
专版版主
来自 江苏省
精华
173
注册 2015-4-10
行业 房产建筑
日期:2022/7/7
施工阶段:木工。
今日工地施工:木工施工。
免费参观工地热线:400-0511-208
[
本帖最后由 波涛装饰 于 2022-7-30 17:09 编辑
]
2022-7-7 09:38
19楼
找工作,就上MY0511!
只看该作者
分享本楼
波涛装饰
专版版主
来自 江苏省
精华
173
注册 2015-4-10
行业 房产建筑
日期:2022/7/9
施工阶段:木工
今日工地施工:木工施工
免费参观工地热线:400-0511-208
[
本帖最后由 波涛装饰 于 2022-7-30 17:10 编辑
]
2022-7-9 10:07
20楼
找工作,就上MY0511!
只看该作者
分享本楼
波涛装饰
专版版主
来自 江苏省
精华
173
注册 2015-4-10
行业 房产建筑
日期:2022/7/13
施工阶段:木工
今日工地施工:木工结束
免费参观工地热线:400-0511-208
[
本帖最后由 波涛装饰 于 2022-7-30 17:10 编辑
]
2022-7-13 10:18
21楼
买房、卖房、租房上镇江房产网!
只看该作者
分享本楼
波涛装饰
专版版主
来自 江苏省
精华
173
注册 2015-4-10
行业 房产建筑
日期:2022/7/22
施工阶段:油漆
今日工地施工:油漆施工
免费参观工地热线:400-0511-208
2022-7-22 10:49
22楼
0511家装频道:本地家居服务平台,数万业主共同选择
只看该作者
分享本楼
波涛装饰
专版版主
来自 江苏省
精华
173
注册 2015-4-10
行业 房产建筑
日期:2022/7/31
施工阶段:油漆
今日工地施工:油漆施工中
免费参观工地热线:400-0511-208
2022-7-31 10:09
23楼
0511家装频道:本地家居服务平台,数万业主共同选择
只看该作者
分享本楼
波涛装饰
专版版主
来自 江苏省
精华
173
注册 2015-4-10
行业 房产建筑
日期:2022/8/9
施工阶段:油漆
今日工地施工:油漆施工中
免费参观工地热线:400-0511-208
2022-8-9 11:23
24楼
[联宇电脑] 电脑组装\维修\升级\企业单位电脑维护!
只看该作者
分享本楼
波涛装饰
专版版主
来自 江苏省
精华
173
注册 2015-4-10
行业 房产建筑
日期:2022/8/21
施工阶段:到货
今日工地施工:21+16+14件 货已送到
免费参观工地热线:400-0511-208
2022-8-21 10:11
25楼
0511家装频道:本地家居服务平台,数万业主共同选择
只看该作者
分享本楼
波涛装饰
专版版主
来自 江苏省
精华
173
注册 2015-4-10
行业 房产建筑
日期:2022/9/1
施工阶段:安装
今日工地施工:橱柜安装中
免费参观工地热线:400-0511-208
2022-9-1 09:57
26楼
0511家装频道:本地家居服务平台,数万业主共同选择
只看该作者
分享本楼
波涛装饰
专版版主
来自 江苏省
精华
173
注册 2015-4-10
行业 房产建筑
日期:2022/9/10
施工阶段:油漆
今日工地施工:油漆施工
免费参观工地热线:400-0511-208
2022-9-10 11:05
27楼
[联宇电脑] 电脑组装\维修\升级\企业单位电脑维护!
只看该作者
分享本楼
返回镇江波涛装饰
快速回复主题
游客
您目前还是游客,请
登录
或
注册
您目前是游客,本帖已被系统设置了自动关闭,不可回复!
文明交流,理性发言
0/5000字
<
>
请在打开的新窗口中支付完成打赏
我已完成支付打赏
支付失败重新支付
其他金额
打赏金额:
元
确定
支付打赏
提 现
打赏人
打赏金额(元)
打赏时间
Powered by
Discuz! X 2
0.081219 s
清除 Cookies
-
镇江网友之家
-
手机版
论坛导航
关闭
吃喝玩乐
饮食男女
镇江钓友之家
菜菜鸟户外
镇江单车俱乐部
镜头里的镇江
畅游天下
猫狗总动员
视觉Coffeeshop摄影部落
花鸟鱼虫
婚姻.亲子.家庭
家有学子
谈婚论嫁
女性天地
母婴乐园
婚姻生活
梦溪佳缘
装修
家庭装修
装修招标
镇江室内设计师交流
装修商家直通车
你好,镇江!
百姓话题
我要买房
0511爱心家园
市场监管•12315热线
分类信息
生活服务
闲置转让
镇江二手房/镇江租房
镇江招聘求职
教育培训
镇江二手车
商铺厂房写字楼租售
宠物市场
运动健身
卡券交易
电脑维修升级
杂货铺
其他分类信息区
兴趣爱好
HiFi音响江城沙龙
镇江市美术家协会
我爱模型
车友俱乐部
车迷之家
汽车驾培中心
运动俱乐部
镇江市冬泳、铁人三项协会
聚焦足球
镇江羽毛球
镇江乒乓球协会
镇江网球协会
镇江市自行车运动协会
热爱篮球
动力机车
合作栏目
维权热线
天翼时代
色觉影像摄影工作室
站务区
疑问与建议
网络问政
市政府工作部门
垂直管理部门
党群工作部门
其他重点单位
辖市(区)