收藏本站
客户端
扫码下载客户端
官方微信
打开微信扫一扫
登录
|
注册
|
标题
标题
用户
全站首页
|
论坛导航
|
网络问政
|
招聘求职
|
买房租房
|
装修频道
|
生活服务
|
教育
|
相亲
|
亲子
|
美食
|
婚嫁
|
手机客户端
家有学子
|
母婴乐园
快捷导航
精彩推荐:
MY0511客户端下载
中信银行镇江分行
公益体彩 乐善人生
鹏龙鸿蒙
天然石材·人造石
»
梦溪论坛
»
家庭装修
»
华飞精品装饰
» [在建工地] ——— 香格里拉庄园(中式风格)
华飞精品装饰
> [在建工地] ——— 香格里拉庄园(中式风格)
查看: 8608 回复: 44
快速回复
返回华飞精品装饰
[在建工地] ——— 香格里拉庄园(中式风格)
查看: 8608 回复: 44
上一主题
|
下一主题
华飞装饰客服
家装认证商户
来自 江苏省
精华
108
注册 2015-11-2
[在建工地] ——— 香格里拉庄园(中式风格)
小区:
香格里拉庄园
作品风格:中式
建筑面积:600平米
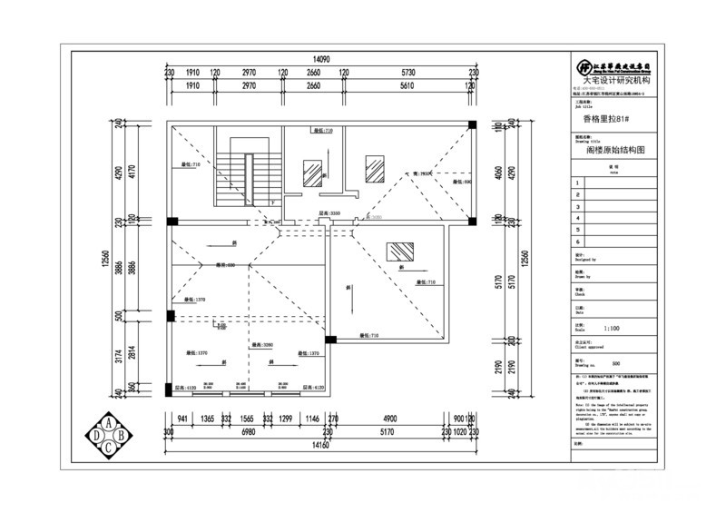
原始结构图:
一层:
二层:
三层:
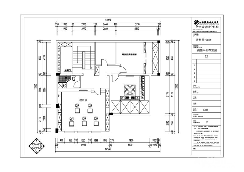
平面布置图:
一层:
二层:
三层:
效果图:
客厅
门厅
餐厅
钢琴区
书房
女孩书房
影视厅
二楼主卧
二楼小孩房
主卧洗手间
小孩房洗手间
[
本帖最后由 华飞装饰客服 于 17-2-18 16:47 编辑
]
已有
0
人打赏
2015-11-26 09:35
1楼
找工作,就上MY0511!
只看该作者
分享本楼
华飞精品装饰
来自 江苏省
精华
36
注册 2015-11-4
行业 其它
家庭的温度取决与装修的态度!给我一片荒芜我将还您一片繁华!不管是大众还是小众华飞的设计都是那么绚丽!华飞大宅设计研究机构!10.23良辰吉日开工大吉!
[
本帖最后由 华飞装饰客服 于 17-9-16 16:52 编辑
]
2015-12-20 16:39
2楼
买房、卖房、租房上镇江房产网!
只看该作者
分享本楼
华飞精品装饰
来自 江苏省
精华
36
注册 2015-11-4
行业 其它
开始砌墙啦
[
本帖最后由 华飞精品装饰 于 15-12-20 17:05 编辑
]
2015-12-20 16:50
3楼
找工作,就上MY0511!
只看该作者
分享本楼
华飞精品装饰
来自 江苏省
精华
36
注册 2015-11-4
行业 其它
安装水管啦
2015-12-20 17:09
4楼
0511家装频道:本地家居服务平台,数万业主共同选择
只看该作者
分享本楼
华飞精品装饰
来自 江苏省
精华
36
注册 2015-11-4
行业 其它
天气真好,温暖的阳光直接透过窗户洒进来啦。香格里拉的中央空调基本安装好啦!
2015-12-30 10:16
5楼
MY0511相亲,一分钟注册,享一辈子幸福!
只看该作者
分享本楼
华飞精品装饰
来自 江苏省
精华
36
注册 2015-11-4
行业 其它
排管放线。中央空调安装结束。
2016-1-4 09:54
6楼
[联宇电脑] 电脑组装\维修\升级\企业单位电脑维护!
只看该作者
分享本楼
华飞精品装饰
来自 江苏省
精华
36
注册 2015-11-4
行业 其它
放弱电、砌墙
2016-1-4 14:40
7楼
0511家装频道:本地家居服务平台,数万业主共同选择
只看该作者
分享本楼
华飞精品装饰
来自 江苏省
精华
36
注册 2015-11-4
行业 其它
水电施工
[
本帖最后由 华飞精品装饰 于 16-1-6 13:55 编辑
]
2016-1-6 13:54
8楼
[联宇电脑] 电脑组装\维修\升级\企业单位电脑维护!
只看该作者
分享本楼
华飞精品装饰
来自 江苏省
精华
36
注册 2015-11-4
行业 其它
地暖找平
[
本帖最后由 华飞精品装饰 于 16-3-27 14:36 编辑
]
2016-3-27 14:35
9楼
买房、卖房、租房上镇江房产网!
只看该作者
分享本楼
华飞精品装饰
来自 江苏省
精华
36
注册 2015-11-4
行业 其它
欢迎有兴趣的网友预约参观!!
[
本帖最后由 华飞装饰客服 于 17-9-16 16:55 编辑
]
2016-4-13 10:27
10楼
0511家装频道:本地家居服务平台,数万业主共同选择
只看该作者
分享本楼
华飞精品装饰
来自 江苏省
精华
36
注册 2015-11-4
行业 其它
吊餐厅顶
2016-4-13 10:34
11楼
0511家装频道:本地家居服务平台,数万业主共同选择
只看该作者
分享本楼
华飞精品装饰
来自 江苏省
精华
36
注册 2015-11-4
行业 其它
吊天花
[
本帖最后由 华飞精品装饰 于 16-5-5 09:17 编辑
]
2016-5-5 09:08
12楼
找工作,就上MY0511!
只看该作者
分享本楼
华飞精品装饰
来自 江苏省
精华
36
注册 2015-11-4
行业 其它
吊客厅天花
[
本帖最后由 华飞精品装饰 于 16-5-5 09:16 编辑
]
2016-5-5 09:13
13楼
买房、卖房、租房上镇江房产网!
只看该作者
分享本楼
华飞精品装饰
来自 江苏省
精华
36
注册 2015-11-4
行业 其它
瓦工二楼卫生间砌墙,木工二楼过道吊顶
2016-5-18 08:51
14楼
买房、卖房、租房上镇江房产网!
只看该作者
分享本楼
华飞精品装饰
来自 江苏省
精华
36
注册 2015-11-4
行业 其它
[
本帖最后由 华飞装饰客服 于 17-9-16 16:58 编辑
]
2016-6-3 16:02
15楼
MY0511相亲,一分钟注册,享一辈子幸福!
只看该作者
分享本楼
华飞精品装饰
来自 江苏省
精华
36
注册 2015-11-4
行业 其它
2016-6-3 16:03
16楼
找工作,就上MY0511!
只看该作者
分享本楼
华飞精品装饰
来自 江苏省
精华
36
注册 2015-11-4
行业 其它
2016-6-3 16:04
17楼
找工作,就上MY0511!
只看该作者
分享本楼
华飞装饰客服
家装认证商户
来自 江苏省
精华
108
注册 2015-11-2
2016-6-26 16:55
18楼
0511家装频道:本地家居服务平台,数万业主共同选择
只看该作者
分享本楼
华飞装饰客服
家装认证商户
来自 江苏省
精华
108
注册 2015-11-2
2016-6-26 16:59
19楼
[联宇电脑] 电脑组装\维修\升级\企业单位电脑维护!
只看该作者
分享本楼
华飞装饰客服
家装认证商户
来自 江苏省
精华
108
注册 2015-11-2
2016-6-26 17:11
20楼
买房、卖房、租房上镇江房产网!
只看该作者
分享本楼
华飞装饰客服
家装认证商户
来自 江苏省
精华
108
注册 2015-11-2
2016-7-4 15:46
21楼
买房、卖房、租房上镇江房产网!
只看该作者
分享本楼
华飞装饰客服
家装认证商户
来自 江苏省
精华
108
注册 2015-11-2
开始铺砖啦
2016-7-8 10:08
22楼
0511家装频道:本地家居服务平台,数万业主共同选择
只看该作者
分享本楼
华飞装饰客服
家装认证商户
来自 江苏省
精华
108
注册 2015-11-2
2016-7-14 15:13
23楼
MY0511相亲,一分钟注册,享一辈子幸福!
只看该作者
分享本楼
华飞装饰客服
家装认证商户
来自 江苏省
精华
108
注册 2015-11-2
2016-7-22 10:09
24楼
0511家装频道:本地家居服务平台,数万业主共同选择
只看该作者
分享本楼
华飞装饰客服
家装认证商户
来自 江苏省
精华
108
注册 2015-11-2
2016-7-22 10:15
25楼
买房、卖房、租房上镇江房产网!
只看该作者
分享本楼
华飞装饰客服
家装认证商户
来自 江苏省
精华
108
注册 2015-11-2
三楼吊天花
2016-7-27 14:31
26楼
0511家装频道:本地家居服务平台,数万业主共同选择
只看该作者
分享本楼
华飞装饰客服
家装认证商户
来自 江苏省
精华
108
注册 2015-11-2
2016-8-4 11:42
27楼
0511家装频道:本地家居服务平台,数万业主共同选择
只看该作者
分享本楼
华飞装饰客服
家装认证商户
来自 江苏省
精华
108
注册 2015-11-2
铺砖
2016-8-18 17:02
28楼
找工作,就上MY0511!
只看该作者
分享本楼
华飞装饰客服
家装认证商户
来自 江苏省
精华
108
注册 2015-11-2
2016-9-8 10:55
29楼
买房、卖房、租房上镇江房产网!
只看该作者
分享本楼
华飞装饰客服
家装认证商户
来自 江苏省
精华
108
注册 2015-11-2
贴砖
2016-9-19 15:11
30楼
[联宇电脑] 电脑组装\维修\升级\企业单位电脑维护!
只看该作者
分享本楼
华飞装饰客服
家装认证商户
来自 江苏省
精华
108
注册 2015-11-2
2016-9-19 15:26
31楼
[联宇电脑] 电脑组装\维修\升级\企业单位电脑维护!
只看该作者
分享本楼
华飞装饰客服
家装认证商户
来自 江苏省
精华
108
注册 2015-11-2
2016-9-24 16:00
32楼
0511家装频道:本地家居服务平台,数万业主共同选择
只看该作者
分享本楼
华飞装饰客服
家装认证商户
来自 江苏省
精华
108
注册 2015-11-2
2016-9-25 17:50
33楼
[联宇电脑] 电脑组装\维修\升级\企业单位电脑维护!
只看该作者
分享本楼
华飞装饰客服
家装认证商户
来自 江苏省
精华
108
注册 2015-11-2
辛苦工作中
2016-9-30 16:52
34楼
0511家装频道:本地家居服务平台,数万业主共同选择
只看该作者
分享本楼
华飞装饰客服
家装认证商户
来自 江苏省
精华
108
注册 2015-11-2
2016-10-10 10:26
35楼
0511家装频道:本地家居服务平台,数万业主共同选择
只看该作者
分享本楼
华飞装饰客服
家装认证商户
来自 江苏省
精华
108
注册 2015-11-2
2016-10-12 16:07
36楼
MY0511相亲,一分钟注册,享一辈子幸福!
只看该作者
分享本楼
荣升装饰
来自 江苏省
精华 0
注册 2015-5-27
华飞别墅名不虚传
[
本帖最后由 华飞装饰客服 于 17-9-16 17:04 编辑
]
2016-10-30 10:35
37楼
MY0511相亲,一分钟注册,享一辈子幸福!
只看该作者
分享本楼
华飞装饰客服
家装认证商户
来自 江苏省
精华
108
注册 2015-11-2
2016-11-3 16:53
38楼
MY0511相亲,一分钟注册,享一辈子幸福!
只看该作者
分享本楼
华飞装饰客服
家装认证商户
来自 江苏省
精华
108
注册 2015-11-2
2016-11-3 17:00
39楼
0511家装频道:本地家居服务平台,数万业主共同选择
只看该作者
分享本楼
华飞装饰客服
家装认证商户
来自 江苏省
精华
108
注册 2015-11-2
2016-11-3 17:03
40楼
找工作,就上MY0511!
只看该作者
分享本楼
华飞装饰客服
家装认证商户
来自 江苏省
精华
108
注册 2015-11-2
2016-11-28 16:18
41楼
买房、卖房、租房上镇江房产网!
只看该作者
分享本楼
华飞装饰客服
家装认证商户
来自 江苏省
精华
108
注册 2015-11-2
[
本帖最后由 华飞装饰客服 于 17-3-12 16:01 编辑
]
2016-11-28 16:21
42楼
0511家装频道:本地家居服务平台,数万业主共同选择
只看该作者
分享本楼
华飞装饰客服
家装认证商户
来自 江苏省
精华
108
注册 2015-11-2
2017-3-12 16:07
43楼
买房、卖房、租房上镇江房产网!
只看该作者
分享本楼
华飞装饰张和花
来自 江苏省
精华
3
注册 2017-2-6
美哒哒的照片新鲜出炉了
现场可是比照片要美得多了
[
本帖最后由 华飞装饰张和花 于 2019-8-27 10:04 编辑
]
---发自iPhone 6S---
2017-10-19 11:49
44楼
找工作,就上MY0511!
只看该作者
分享本楼
华飞装饰张和花
来自 江苏省
精华
3
注册 2017-2-6
美哒哒的实景照又来了
---发自iPhone 6S---
2017-12-9 18:14
45楼
买房、卖房、租房上镇江房产网!
只看该作者
分享本楼
返回华飞精品装饰
快速回复主题
游客
您目前还是游客,请
登录
或
注册
您目前是游客,本帖已被系统设置了自动关闭,不可回复!
文明交流,理性发言
0/5000字
<
>
请在打开的新窗口中支付完成打赏
我已完成支付打赏
支付失败重新支付
其他金额
打赏金额:
元
确定
支付打赏
提 现
打赏人
打赏金额(元)
打赏时间
Powered by
Discuz! X 2
0.107999 s
清除 Cookies
-
镇江网友之家
-
手机版
论坛导航
关闭
吃喝玩乐
饮食男女
镇江钓友之家
菜菜鸟户外
镇江单车俱乐部
镜头里的镇江
畅游天下
猫狗总动员
视觉Coffeeshop摄影部落
花鸟鱼虫
婚姻.亲子.家庭
家有学子
谈婚论嫁
女性天地
母婴乐园
婚姻生活
梦溪佳缘
装修
家庭装修
装修招标
镇江室内设计师交流
装修商家直通车
你好,镇江!
百姓话题
我要买房
0511爱心家园
市场监管•12315热线
分类信息
生活服务
闲置转让
镇江二手房/镇江租房
镇江招聘求职
教育培训
镇江二手车
商铺厂房写字楼租售
宠物市场
运动健身
卡券交易
电脑维修升级
杂货铺
其他分类信息区
兴趣爱好
HiFi音响江城沙龙
镇江市美术家协会
我爱模型
车友俱乐部
车迷之家
汽车驾培中心
运动俱乐部
镇江市冬泳、铁人三项协会
聚焦足球
镇江羽毛球
镇江乒乓球协会
镇江网球协会
镇江市自行车运动协会
热爱篮球
动力机车
合作栏目
维权热线
天翼时代
色觉影像摄影工作室
站务区
疑问与建议
网络问政
市政府工作部门
垂直管理部门
党群工作部门
其他重点单位
辖市(区)