| 标题
快捷导航

精彩推荐:MY0511客户端下载

    • 中信银行镇江分行

    • 公益体彩 乐善人生

    • 鹏龙鸿蒙

    • 天然石材·人造石

    » 梦溪论坛 » 家庭装修 » 为了记忆的日记——打造我的蓝山舒适家[参赛2014][已竣工]
    家庭装修  >  [装修日记] 为了记忆的日记——打造我的蓝山舒适家[参赛2014][已竣工]     
    查看: 2211402  回复: 4351
     4352  1/88  1  2  3  4  5  6  7  8  9  10  >  >| 
    [装修日记] 为了记忆的日记——打造我的蓝山舒适家[参赛2014][已竣工]      查看: 2211402  回复: 4351
    • 来自 江苏省
    • 精华 1
    • 注册 2014-3-7
    • 家装达人
    •  
    为了记忆的日记——打造我的蓝山舒适家[参赛2014][已竣工]


    此帖已成功报名2014家装日记大赛更多家装信息关注MY0511家装频道


    纠结了很久,还是决定随意写下点装修过程中点滴,自娱自乐,权作回忆的证明。
    【小区名称】:万科蓝山
    【所在楼层】:2楼
    【建筑面积】:122.84
    【装修风格】:现代中式
    【包工方式】:半包
    【装修公司】:万家基和
    【设 计 师】:李鸣
    【开工日期】:2014年3月3日
    【装修预算】:35万(坚守底线)
    【户型图片】:

    第一稿效果图(简欧风格)

    第二稿效果图(现代中式)

    [ 本帖最后由 魔高一尺 于 14-12-10 12:42 编辑 ]





                      
    • 来自 江苏省
    • 精华 1
    • 注册 2014-3-7
    • 家装达人
    •  
    装修进程表(不断更新)

    距离上一次装修已经是10年前的事了,原有的老经验差不多已经过时了,所以在装大潜水了很久,受益匪浅。
    这次装修需求我将环保性(健康)>隐蔽工程质量>舒适度>实用性>美观度,做了个排序,希望可以合理分配预算,坚决不超。

    1、装修公司的选择——万家基和你中奖了!——>主打“隐蔽工程”的高标准,击中我要害了,纠结党也有痛快的时候
    2、选择阳光房(封阳台)的曲折路(一)——顺发阳光,你很好,可是我很穷!!!
    3、 选择阳光房(封阳台)的曲折路(二)——从凤铝总代理到家欣,又转回凤铝总代理,你想知道原因吗?
    4、为舒适买单,确定中央空调+地暖——三菱重工、洛卡地暖只能说有缘无份,只能怪我不走寻常路,空气源热泵中央空调地暖系统,你们听说过吗?
         关于格力风管机
         关于家用VRV空调的讨论
         空调安装最重要
    5、为水电地位,提前下单浴室柜、洗衣柜——欧风浴室柜,郁洁洗衣柜东西真不错,本以为肯定不会改的东西,没想到新效果图出来又要重新换
    6、我还是喜欢在实体店买马桶——益高卫浴,又是个冷门货,你了解这个品牌吗?我肯定不会换了
         还是换了,益高智能马桶——意外的超值之选
         最低特价3000元的益高智能马桶——你还不动心?
         考察美加华卫浴——中式卫浴太难选
         意外的发现:最接近中式的浴室柜——益高卫浴代理的皇家米兰
    7、橱柜的艰难抉择(一)——满意的设计图,不满意的报价,继续考察
         橱柜的艰难选择(二)——“集成灶”OR“传统灶”——这么些新东东叫我怎么选?
         橱柜的艰难选择(三)——如何选择燃气灶 ——大厨要讲究点
         橱柜的艰难选择——考察隐形油烟机——老板的这款,外观自然是好的,装在不常烧饭的人家定是极好的      关于台上盆还是台下盆——选择台上盆      
         台下水槽的正确安装方法——现场安装台下水槽是游击队的做法
         关于蒸烤二合一还是分开买——分别购买蒸箱和烤箱更靠谱
         蒸箱可以替代微波炉吗?——我认为可以
         橱柜的艰难选择(四)——回归传统,烟机品牌大集合
         橱柜的艰难选择(五)——传统烟机款式的优缺点
         橱柜的艰难选择(六)——目标锁定老板烟灶套餐
         橱柜的艰难选择(七)——比较老板燃气灶9B28和9B18
         橱柜的艰难选择(八)——超级腕下单老板烟灶套餐
         橱柜的艰难选择(九)——最满意的橱柜设计图由樱花整体厨房出品 ,可惜最终还是没能牵手成功
         橱柜的艰难选择(十)——下单派诺橱柜,性价比之选
         橱柜选择的要点——专业概括
         标准台下水槽的正确安装方法——图解,再看不懂我也没辙了     烟灶确认订单——老板8218+9B18
    8、还没怎么着先把保险柜订了——都说冲动是魔鬼,还好这单是个例外,艾普保险柜还真靠谱
    9、奇葩订单网购客厅电视——海尔mooka 4K高清彩电仅售3999,你说能不抢包
         奇葩到货了     网购电视(二)——夏普LCD-40DS40A(主卧)
         网购电视(三)——索尼KDL-32R300B(次卧)
    10、上首页,留个纪念——小激动了一下,后来才知道见者有份
    11、水电施工(一)——连续剧来了,开场就是满堂彩
          水电施工(二)——万家基和的王牌项目果然不是盖滴
          水电即将完工——说真的,一点没让我操心
          水电完工——项目经理拍照留存——这个贴心咯,以后大安装不要怕了
    12、烦心的现浇面——坑爹啊,物业规定,做现浇要去建科所出图,再去抗震办盖章。
          先上车后买票,现浇层开始施工——再坑爹,花钱出图,人家还不让,说不给盖章。关门,开工再说!
          现浇层完工——赚到了,一间小书房诞生咯
    13、瓷砖考察(一)——又是连续剧,这集主角叫L&D
          瓷砖考察(二)——没有主角,乱了乱了
          瓷砖的考察(三)——楼兰、卡米亚、箭牌,终于有了意中人
          瓷砖的考察(四)——蒙娜丽莎的微笑         
          瓷砖的最终选择——方案一——全套蒙娜丽莎,血压直线上升
          瓷砖的最终选择——方案二——亿都卡米亚,性价比之选
          下单卡米亚,瓷砖能省就省
    14、地板的选择(一)——欧家,第一眼的眼缘
          地板的选择(二)——地热地板如何选——实木地板,886
          地板的选择(三)——进口强化地板——貌美的大板,我告诫自己冷静,等等先
    15、阳光房开始安装(一)——先看看凤铝的房顶材料
          阳光房开始安装(二)——房顶完工——竖根“旗杆”这是闹那样
          阳光房开始安装(三)——墙皮(保温层)需要铲除吗?——先铲后装没商量
          阳台保温层的处理——悲催的,早点看到这个就好了
          阳光房开始安装(四)——凤铝断桥外平开窗——55系列平开,装好后真不错
          阳光房开始安装(五)——看看细节——为这么点小地方,肯这么做的真没见过
          阳光房安装(六)——落水沟——这个必须有
          关于阳光房的二三事——答TX问      
          阳光房安装(七)——房顶——5+0.76+5的双层夹胶玻璃,千万别用中空玻璃做顶
          阳关房顶也要做反水坡——用玻璃做反水,封2层结构胶
          阳光房安装(八)——窗户玻璃,完工在即
          阳关房完工图       封设备阳台——为何要做推拉+平开的组合窗
          最后的扫尾工作——安装落水沟的下水管
          关于阳关房的二三事——关于材料选择
          关于阳光房二三事——注意事项
          关于阳关房的二三事——关于反水的正确施工方法
          阳关房顶支架用什么材料好
          点评镇江凤铝总代理——强烈推荐      今天你家漏水了吗?——一场罕见的暴雨,正是考验阳光房质量的好时机
    16、装修的施工工序——备忘录,时时提醒自己
    17、订购前置过滤器——这个必须有,不解释
    18、空调进场安装(一)——大项目动工了
          空调安装——室内机安装完毕      空调出风口位置需要整改
          地暖模板进场——最揪心的项目开始了
          地暖施工ING(一)——红色保利PERT阻氧盘管
          地暖施工ING(二)——反射膜和保温模块
          地暖施工ING(三)——红色的蜘蛛网
          地暖施工ING(四)——施工的失误,少放一路控制线,火大
          地暖施工ING(五)——分集水器和压力表
          超薄地暖模块是个什么东东
    19、瓦工的首次亮相——听说瓦工师傅很稀缺
          满血复活的瓦工师傅——开始做地坪
          地坪养护——一周时间是必须的
          瓦工开工——这算是喜讯吗?
          贴砖进行时
          玄关拼花——怎么看怎么不值
          瓦工完工图(一)
          瓦工完工图(二)
          瓦工验收——万家基和张总亲自出马
          看看万家基和的成品保护——挺规范的吧
    20、祝贺0511样板房直通车活动圆满结束——我家也是样板房
    21、关于地暖和中央净水的个人观点
    22、第二稿的效果新鲜出炉——新中式风格,上了点岁数还是喜欢传统。感谢李大设计师百忙之中抽时间完成了我的心愿!
    23、让人看不懂的E0级——不管你信不信,反正我不信

    24、石材选择——下单顺来大理石
          石材行业潜规则
    25、集成吊顶考察(一)
          集成吊顶考察(二)——选购时的注意事项
          集成吊顶考察(三)——克兰斯集成吊顶
          集成吊顶考察(四)——下单克兰斯集成吊顶      集成吊顶最终方案汇总——全套克兰斯+德莱宝,预算又成浮云
    26、新鲜玩意——保温抽屉——下单艾尔福达,安通出品,性价比不错
    27、网购康宝消毒柜——行业第一品牌
    28、网购摩恩水槽套餐——波顿23302SL+ MCL7594C非常超值
    29、
    网购美的绅士系列烤箱
    30、
    网购美的绅士系列蒸箱
    31、中式灯具考察——艾美尔别墅照明(天桥)
           不容忽视的LED灯启动器
    32、关于地漏的选择(一)——不起眼的的地漏很重要
            关于地漏的选择(二)——我们是否需要深水封地漏
          关于地漏的选择(三)——市面上常见的地漏大盘点
          关于地漏的选择(四)——我的选择:非常芯+九牧
          关于地漏的选择(五)——非常芯地漏
          关于地漏的选择(六)——洗手盆防臭芯
          关于地漏的选择(六)——T型地漏
    33、网购花洒套餐——摩恩+九牧
    34、惠装修第一期抽奖——难得有中奖的经历
    35、液晶电视选择——品牌点评
           我们是否需要4K
             卧室电视如何选——夏普软屏最适合
             关于网络电视和网络机顶盒
    36、我喜欢的墙纸——无纺布纯色墙纸,玛堡和瑞宝大PK   
           壁纸考察(二)——玛堡壁纸胜出
           玛堡壁纸网友团购——确实给力,人多就是力量大
          我选的主卧和次卧的玛堡纯色无纺布壁纸
          壁纸、硅藻泥、乳胶漆墙顶面“三中全会”
    37、疯狂的五一——欧家地板团购相当成功
           团购的现场很热闹
    38、插曲——长江音乐节,我们去狂欢吧!
    39、选购热水器——燃气三选一
           我选择的燃气热水器——樱花SCH-16E79T
    40、选购冰箱——高端产品也是三选一
            我选择的冰箱——卡萨帝BCD-318WSCV
    41、选购洗衣机——主流产品随便选
           我选择的洗衣机——海尔XQG70-B10288
    42、2014.5.11母亲节,也是母亲的寿辰——喝多了,高兴
    43、衣柜板材初选——香港雪宝板第一次浮出水面
           主流板材大PK   ——做选择好难
           我选择的衣柜材料——吉林森工露水河,物美价廉
    44、美心木门跟踪报道(一)——测量——不敢透露的第一单
           美心木门跟踪报道(二)——下单——是偶然还是必然,我以自己的亲身体验来告诉大家
           我选的门型和颜色,以及配套锁具五金——很喜欢的门型,仿古做旧的颜色是我喜欢的调调        
           美心实木门旗舰店跟踪报道(三)——送货      
           大安装进行时(十六)——隆盛原木门(美心)安装实录
           隆盛(美心)原木门安装(一)——细看材料
           隆盛(美心)原木门安装(二)——门套板安装
           隆盛(美心)原木门安装(三)——次卧门洞大小头的特殊处理
           隆盛(美心)原木门安装(四)——安装门,关键是铰链
           隆盛(美心)原木门安装(五)——锁具安装
           隆盛(美心)原木门安装(六)——门套线条安装
           隆盛(美心)原木门安装(七)——安装门吸
           隆盛(美心)原木门安装(八)——五樘门安装结束
           隆盛(美心)原木门安装(九)——移门套安装
           隆盛(美心)原木门安装(十)——入户套和过道套安装
           隆盛(美心)原木门安装(十一)——综合评价
          写在美心大安装结束之后——好评
    45、木工材料进场——千年舟木工板、龙牌石膏板、港星轻钢龙骨
            木工交底——设计师很仔细,张总又一次亲临现场——空调派人参与检修口定位
            木工正式进场开工——这个层高有些无语啊
            木龙骨是否需要涂刷防火涂料?——有备无患
            木工吊顶进行时——7字拐角很规范
            阳台的杉木吊顶——效果真不错
    46、鼎发纱窗考察报告(一)——他在哪儿
           鼎发纱窗考察报告(二)——防盗防蚊纱窗
           鼎发纱窗考察报告(三)——坤宁折叠防盗窗
           鼎发纱窗考察报告(四)——价格表(附淘宝链接:【此处为站外链接,请谨慎打开】
    47、探访格调小屋(一)——西门子系列开关插座
           探访格调小屋(二)——永怡御风吊扇灯
           探访格调小屋(三)——雷施顿LED筒灯射灯
           探访格调小屋(四)——牧羊人中式灯具
    48、下单沁园净水终端——跟的团,R701双滤膜双出水,实用之选
    49、考察踢脚线——森林地板配件的实木踢脚线
    50、好日子家居生活馆——这家的移门才是我的菜
           考察好日子移门(二)  

           好日子移门测量
           好日子移门确定门型——下单咯
           大安装进行时(二十四)——好日子移门
           好日子移门安装(一)——客厅阳台(四扇对开移门)
           好日子移门安装(二)——客厅阳台(完工图)
          好日子移门安装(三)——厨房移门(三联动)
           好日子移门安装(四)——衣帽间(两扇单开)
    51、中式软装的个性之选——瓷片画
    52、油漆施工(一)——顶面铲除不到位
           墙皮铲除标准——做不到位后患无穷
           油漆施工要点  
           油漆施工(二)——油漆材料进场,成品腻子是重点
           墙面处理最环保的材料——界面剂
           油漆施工(三)——夫妻档进场,做事蛮靠谱
           油漆施工(四)——基础处理
           油漆施工(五)——第一遍腻子
           梅雨季油漆需要注意什么?   

           梅雨季油漆需要注意什么(二)——莫先生的忠告
           油漆施工(六)——杉木扣板DIY 木蜡油
           杉木扣板补钉眼
           虫胶漆片可以替代木蜡油——来自莫先生的指点
           杉木扣板打磨、抛光、上漆
           木蜡油施工程序小结
           油漆施工(七)——腻子结束,等待打磨
           油漆施工(八)——腻子打磨
           油漆施工(九)——腻子验收,乳胶漆进场
           油漆施工(十)——一底一面完成
           油漆施工——接受检验的时刻到了
    53、考察东阳木雕——老装饰城里的一家,中式风格必选
    54、家具考察(一)——青岛一木嘉源居儿童房系列
           家具考察(二)——恒信华典
           家具考察(三)——喜临门寝具
           喜临门寝具特价套餐——很实惠啊
           初步选定喜临门床和床垫
           喜临门团购下订主卧和次卧的寝具
           家具考察(四)——基本方案确定,预算已是浮云
           家具方案确定——客餐厅家具意属恒信华典臻木系列
           下单恒信华典——客餐厅家具敲定
           家俱方案确定——派诺衣柜设计图
           家俱方案确定——润兴居品(中兴家俱厂)
           家俱方案确定——电视背景墙
           儿童房家具确定——松堡王国
    55、装修必备的小东东——防鸟罩
    56、窗台石的安装——顺来大理石
    57、网购鸿雁弱电混合模块——弱电还是鸿雁最专业
    58、开关插座确认订单——格调小屋:西门子悦动系列+远景混搭
    59、网购雷士LED筒灯、射灯、E27灯泡——年中大促,速度抢    网购链接:【此处为站外链接,请谨慎打开】
    60、网购正泰漏保、空开——性价比最好的家用小型断路器,没有之一     网购链接:【此处为站外链接,请谨慎打开】
    61、网购正泰全铜地插——关键还是实惠     网购链接:【此处为站外链接,请谨慎打开】
    62、关于瓷砖美缝DIY——自己动手省点是点    网购链接:【此处为站外链接,请谨慎打开】
    63、网购玻璃贴膜——折腾人的阳光房    网购链接:【此处为站外链接,请谨慎打开】
           玻璃贴膜施工——这个很简单
           阳光房玻璃贴膜——别让自己成为别人的风景
    64、居家好帮手——奥鹏人字梯    网购链接:【此处为站外链接,请谨慎打开】
    65、晒衣架——恋伊
    66、大安装进行时(一)——克兰斯集成吊顶
            克兰斯集成吊顶安装(一)——吊顶材料
           克兰斯集成吊顶安装(二)——安装施工
            克兰斯集成吊顶安装(三)——厨房完工图
            克兰斯集成吊顶安装(四)——主卫完工图
            克兰斯集成吊顶安装(五)——客卫完工图
            克兰斯集成吊顶安装(六)——设备阳台完工图
    67、大安装进行时(二)——派诺橱柜
           派诺橱柜安装(一)——拆开包装看看细节
           派诺橱柜安装(二)——安装施工中
           派诺橱柜安装(三)——半成品展示
           派诺橱柜安装(四)——真材实料,看看切下来的废料
           派诺橱柜安装(五)——曝光老板
           派诺橱柜安装(六)——难装的抽屉轨道
           派诺橱柜安装(七)——台面垫板安装完成
           派诺橱柜安装(八)——小吧台已见雏形
           派诺橱柜安装(九)——石英石台面安装完成
           橱柜台面细节图
           石英石渗色实验
           渗色实验完成——中讯石英石质量合格
           派诺橱柜安装(十)——安装踢脚线,橱柜安装完成
    68、大安装进行时(三)——派诺衣柜安装
           衣柜安装(一)——阳台储物柜
           衣柜安装(二)——主卧衣柜
           衣柜安装(三)——次卧衣柜
           衣柜安装(四)——儿童房衣柜
           衣柜安装(五)——衣帽间
    69、大安装进行时(四)——老板烟灶安装
    70、大安装进行时(五)——樱花燃气热水器安装
    71、大安装进行时(六)——益高卫浴送货
           益高马桶安装
    72、大安装进行时(七)——奥娜淋浴房
    73、大安装进行时(八)——皇家米兰浴室柜
    74、大安装进行时(九)——欧风整体浴柜
    75、大安装进行时(十)——郁洁洗衣柜
    76、大安装进行时(十一)——富田拖布池
    77、大安装进行时(十二)——中央空调外机到货
           空调安装(一)——出门口和回风口
           空调安装(二)——出门口、回风检修合二为一
           空调安装(三)——控制线去了哪儿
           空调安装(四)——预留主机控制器暗盒报废
           空调安装(五)——外机联动控制器安装完成
           空调安装(六)——外机安装完成,内机调测成功
    78、大安装进行时(十三)——欧德莉淋浴房
           欧德莉淋浴房安装中的插曲
    79、大安装进行时(十四)——中兴家具
           中兴家具安装(一)——电视背景墙
           中兴家具安装(二)——主卧衣柜门  
           中兴家具安装(三)——飘窗组合柜1       中兴家具安装(四)——飘窗组合柜2
           中兴家具安装(五)——玄关柜1
           中兴家具安装(六)——玄关柜2
           中兴家具安装(七)——塑钢门窗套
           中兴家具安装(八)——主卫门1
           中兴家具安装(九)——主卫门2
           中兴家具安装(十)——书柜和酒柜1   
           中兴家具安装(十一)——   餐厅酒柜和书柜终于安装到位
           补充书柜图片
           中兴家具安装(十二)——背景墙角花
    80、大安装进行时(十五)——设备阳台的复合工艺门(成龙万家利)
    81、看钥匙识锁芯,你家的防盗门管用吗?——安全第一,请选用超B级(C级)锁
    82、大安装进行时(十六)——玄关顶板安装
           玄关成品图
    83、网购的家具拉手——中式青古铜仿古
    84、大安装进行时(十七)——玛堡壁纸刷基膜
           我选择的玛堡壁纸(最终版)
           玛堡壁纸铺贴(一)——壁纸进场,大安装进入下半场
           玛堡壁纸铺贴(二)——主次卧壁纸施工
           玛堡壁纸铺贴(三)——主次卧墙纸完工图
           玛堡壁纸铺贴(四)——儿童房墙纸
           玛堡壁纸铺贴(五)——儿童房壁纸完工图
           玛堡壁纸铺贴(六)——电视背景墙(壁画墙纸)
    85、大安装进行时(十八)——大津硅藻泥
           大津硅藻泥施工(一)——先欣赏一下大津硅藻泥的肌理
           大津硅藻泥施工(二)——我家选择款式
           如何辨别真假硅藻泥——来自大津的专业讲解
           墙艺漆加劣质硅藻土的黑幕——中国涂料在线新闻资讯
           大津硅藻泥施工(三)——大津泥硅藻泥进场
           大津硅藻泥施工(四)——成品保护是施工重点,相当耗时间
           大津硅藻泥施工(五)——做基层
           大津硅藻泥施工(六)——喷涂、刮平
           大津硅藻泥施工(七)——儿童房顶面
           大津硅藻泥施工(八)——现场清理
           厨房不宜使用硅藻泥
           大津硅藻泥施工(九)——餐厅背景墙
           大津硅藻泥施工(十)——局部修补
    86、大安装进行时(十九)——飘窗台大理石测量
            飘窗台安装
            玄关柜也做了块台面
    87、大安装进行时(二十)  —— 灯具开关插座五金安装
            灯具开关插座五金安装(一)——主卧灯(牧羊人)
            灯具开关插座五金安装(二)——次卧灯(牧羊人)
            灯具开关插座五金安装(三)——儿童房灯(牧羊人)
            灯具开关插座五金安装(四)——玄关灯(古香古色)
            灯具开关插座五金安装(五)——筒射灯(雷士)
            灯具开关插座五金安装(六)——开关插座(西门子)
            预发客餐厅灯具
            灯具开关插座五金安装(七)——餐厅吊扇灯(永怡御风)
            灯具开关插座五金安装(八)——电视背景墙壁灯(牧羊人)
            灯具开关插座五金安装(九)——客厅阳台壁灯(上古)
            灯具开关插座五金安装(十)——洗衣阳台壁灯(陆一)
            灯具开关插座五金安装(十一)——卧室床头射灯(雷士)
            灯具开关插座五金安装(十二)——摩恩水槽+龙头
            灯具开关插座五金安装(十三)——主卫花洒(摩恩)
            灯具开关插座五金安装(十四)——客卫花洒(九牧)
            灯具开关插座五金安装(十五)——厨房五金(合庆)
            灯具开关插座五金安装(十六)——客卫镜前灯(飞利浦)
           灯具开关插座五金安装(十七)——卫浴五金(卡贝)
            灯具开关插座五金安装(十八)——拖把挂架(卡贝)
           灯具开关插座五金安装(十九)——吧台灯(飞利浦)
            灯具开关插座五金安装(二十)——弱电混合模块(鸿雁)
    88、大安装进行时(二十一)——艾普保险柜安装完毕
    89、大安装进行时(二十二)——欧家地板
            欧家地板安装(一)——看看进口强化地板
            欧家地板安装(二)——橡树软木垫
            欧家地板安装(三)——实木踢脚线
            欧家地板安装(四)——上阵父子兵
           欧家地板安装(五)——地板安装
            欧家地板安装(六)——率先完工的儿童房
            欧家地板安装(七)——踢脚线安装
            欧家地板安装(八)——完工图
            欧家地板安装(九)——收边条真是鸡肋
    90、背景墙高大上的选择——帝龙金属板画
    91、纠结的沙发条案——广泛征求意见
    92、厨房下水被堵——查找“真凶”
    93、大安装进行时(二十三)——天棚帘的省钱方案      
            阳光房顶面改造——只为天棚帘  
    94、装修公司保洁进场——告别“工地”
           保洁后的效果
    95、大安装进行时(二十五)——成品定制窗帘、蜂巢天棚帘、布帘安装
            蜂巢天棚帘安装(一)——洗衣阳台完工图
            蜂巢天棚帘安装(二)——客厅阳台完工图
            客厅阳台窗帘——梯带式香格里拉帘
            书房窗帘——小七褶柔纱帘
            洗衣阳台窗帘——百页帘
            窗帘轨道、罗马杆安装(一)——提前装好,好处多多
            窗帘轨道、罗马杆安装(二)——次卧和儿童房
            窗帘轨道、罗马杆安装(三)——主卧
            窗帘轨道、罗马杆安装(四)——客厅
    96、大安装进行时(二十六)——隐形纱窗安装(一)        
            大安装进行时(二十六)——隐形纱窗安装(二)
            大安装进行时——鼎发防盗纱窗
            鼎发防盗纱窗联系方式
    97、太阳能热水器控制面板安装完毕
    98、举手之劳——可视化门禁对讲系统
    99、大安装进行时(二十七)——松堡王国儿童房家具
            松堡王国儿童房家具——细节图
    100、网购穿衣镜到货——自己安装很容易
    101、绿植登场
    102、网购百露果蔬架
    103、大安装进行时(二十八)——喜临门寝具送货
            喜临门寝具(一)——主卧
             喜临门寝具(二)——次卧
             喜临门寝具(三)——儿童房
    100、插曲——世界杯开幕,全世界球迷的节日
             话题——世界杯还是美洲杯
             话题——世界杯经典解说
             话题——八强聚首
             话题——阿根廷晋级半决赛
             话题——世界杯的又一场“血案”,“凶手”是德国人
             阿根廷挺进决赛
             话题——世界杯冠军出炉
             话题——冠军历程
             话题——初中同学毕业30年聚会

    [ 本帖最后由 魔高一尺 于 14-9-2 23:09 编辑 ]




    • 来自 江苏省
    • 精华 1
    • 注册 2014-3-7
    • 家装达人
    •  
    主材清单:(不断补充)

    瓷砖:卡米亚(亿都)
    地板+踢脚线:欧家(品冠)
    集成吊顶:克兰斯(月星)德莱宝(亿都)
    墙纸:玛堡(月星)


    窗帘:玛堡(月星)
    硅藻泥:大津(天桥)
    橱柜:派诺(万达写字楼B座)
    原木门+门套:隆盛(月星美心实木门旗舰店)
    移门:好日子家居生活馆(京口路梦溪佳苑)
    客餐厅全套家具:恒信华典(月星)
    衣柜:派诺定制(万达)
    玄关柜、飘窗矮柜:中兴家具厂定制
    酒柜、书柜:中兴家具厂定制


    儿童房家具:松堡王国(月星)
    主次卧室寝具:喜临门(月星)
    梳妆台:卡瑞亚(网购)
    书桌椅:安惠(网购)
    阳光房+封阳台:镇江凤铝总代理

    隐形纱窗:镇江凤铝总代理
    防盗纱窗:鼎发门窗(运河路)
    石材:顺来大理石(亿都)
    马桶:益高(亿都)
    主卫浴室柜:欧风(月星富兰克卫浴
    客卫浴室柜:皇家米兰(亿都益高卫浴)
    洗衣柜:郁洁(月星富兰克 卫浴
    淋浴隔断+挡水条:奥娜(金桥九牧)
    淋浴隔断 : 欧德莉(月星品卫卫浴)
    中央空调+地暖:芬尼克兹空气能热泵中央空调供暖系统(万达舒适中国线下服务(镇江低碳生活馆))
    前置过滤器:恬静(万达舒适中国线下服务(镇江低碳生活馆))
    净水终端:沁园(苗家湾路,群友虎骨酒的团)
    开关插座:西门子(亿都格调小屋)
    筒射灯、LED灯泡:雷士(网购)

    三间卧室吸顶灯:牧羊人(网购)
    客厅、玄关吊灯:古香古色(网购)
    餐厅吸顶灯:永怡御风(网购)

    嵌入式保温抽屉:艾尔福达BW50-A (P599)   网购链接:【此处为站外链接,请谨慎打开】
    嵌入式消毒柜:Canbo/康宝 ZTP108E-11XG(P651)    网购链接:【此处为站外链接,请谨慎打开】
    嵌入式烤箱:美的绅士系列 ETC56SS-ERS烤箱 (P754) 网购链接:天猫【此处为站外链接,请谨慎打开】
    嵌入式蒸箱:美的绅士系列TS25ASS-SS 电蒸箱(蒸汽炉)(P757) 网购链接:天猫【此处为站外链接,请谨慎打开】
    水槽+龙头:MOEN摩恩不锈钢超大双槽 波顿23302SL+提笼抽拉净铅龙头MCL7594C(P750) 网购链接:天猫【此处为站外链接,请谨慎打开】
    花洒:摩恩17142+九牧36182-131(P1009)网购链接:摩恩moen 天猫【此处为站外链接,请谨慎打开】
                                                                    九牧JOMOO天猫【此处为站外链接,请谨慎打开】
    地漏:非常芯地漏+九牧地漏(P991)【此处为站外链接,请谨慎打开】【此处为站外链接,请谨慎打开】
            【此处为站外链接,请谨慎打开】【此处为站外链接,请谨慎打开】
    角阀+龙头:九牧
    客厅电视:海尔模卡(MOOKA)U50H7(P68) 网购链接:【海尔U50H7】京东商城【此处为站外链接,请谨慎打开】
    弱电模块:鸿雁(网购)
    断路器、漏保、空开:正泰(网购)
    烟灶套餐:老板(润州花园对面)
    燃气热水器:樱花SCH-16E79T(五星电器P1177)
    冰箱:卡萨帝BCD-318WSCV(新世纪P1179)
    洗衣机:海尔水晶系列XQG70-B10288(新世纪P1181)
    保险箱:艾普FDX-D45(月星)
    嗮衣架:恋依1068青花瓷(天桥)
    人字梯:奥鹏( 网购链接:【此处为站外链接,请谨慎打开】 )木蜡油:碧欧(网购链接:【此处为站外链接,请谨慎打开】
    拖布池:富田(金桥九牧)
    美缝:珊绿陶瓷泥

    [ 本帖最后由 魔高一尺 于 14-9-13 01:03 编辑 ]




    • 来自 江苏省
    • 精华 1
    • 注册 2014-3-7
    • 家装达人
    •  
    平面设计图

    去年底交房,立即就对四项预算最多的项目进行考察,第一选择装修公司,第二空调地暖方案,第三橱柜,第四阳光房封阳台。
    先说装修公司的选择:
    目前镇江装修公司口碑好的着实不少,名字就省略不说了。遗憾的是我只有一份订单,选择他,然后信任他。
    俗话说,货比三家不吃亏,抱定这个原则,我找了三家公司进行测量、绘图、预算,公司A是齐装网推荐的,当时我发了招标公告,然后网站推荐了三家给我,A公司效率很高,第二天就上门测量,年轻的设计师很腼腆,书卷气很浓,我带他看了样板房,还有朋友家已经装修好的成品(户型一样),跟他谈了我的需求和初步想法,希望他能在一周内提供一个初步方案和预算给我。非常遗憾的是,从此没了下文,我想破头也没想明白是什么原因。连带着对齐装网推荐的另2家公司一下子失去了兴趣。B公司是朋友介绍的,应该说很主动,热情,并且很快就拿出了预算方案,公司的施工管理流程也很规范,最终没有选择他们的原因有二个:第一是虽然效率,缺不够细致。比如,我明确告诉设计师我已确定了中央空调的方案,他却没有将局部吊顶做进预算;第二设计师的理念跟我有一些偏差,我偏好简洁、明快的线条,颜色不要太绚丽,摒弃纯装饰性的东西,这几个方面感觉沟通不是太顺。
    C公司就是万家基和了,最初是在网上看到TX的帖子,然后看了一下他们的网站,最让我心动的是他们水电隐蔽工程的施工规范,于是决定亲自上门去考察一下。去到公司,一番寒暄,设计部王总给我介绍了他们的首席设计师李鸣先生,一通交流以后,感觉不错,设计师随即详细介绍了他们公司的施工工艺标准,心里相当满意。于是提出约定时间量房、做预算。一周以后,李大设计师给我打了个电话,说平面图和预算方案做好了,欢迎到公司面谈。此后,因为各种事,拖了差不多一周才去看方案,中间一直没有催过我,心里有点奇怪。等我看过预算方案(差不多12页纸)非常详尽,信任感进一步提升。但是,我还是提出要去在建工地现场考察一下,随即,公司工程部技术顾问赵总和设计师一起陪同我去一家水电刚刚完工的工地。一进门,现场那叫一个干净,印象分打个十分先,再看看各项细节,跟公司示范间基本一致,满意。但是,还是不能马上下单,我还要比较一下另外两家公司的方案和预算,再做决定(其实,我是想为砍价打个伏笔)。转眼又是一周时间,又到了周末,快到春节了,比较可恨的是,这公司从来没有打电话催过我,难道你们就这么自信?想想应该做决定了,于是又主动上门,这次直接找张总谈价钱。张总非常热情爽快,提出要将我这套房的装修做为样板间,保证施工质量,价格也给了一定优惠。立马拍板,交设计费,指定设计师李鸣,约定春节后出第一稿效果图,并进行深度设计,拿出精确预算。

    平面设计图


    [ 本帖最后由 魔高一尺 于 14-4-18 19:05 编辑 ]




    • 来自 江苏省
    • 精华 1
    • 注册 2014-3-7
    • 家装达人
    •  
    第一稿效果图



    效果图3




    效果图1





    • 来自 江苏省
    • 精华 9
    • 注册 2013-11-25
    •  

    效果图不错




    • 来自 江苏省
    • 精华 20
    • 注册 2013-5-27
    • 行业 医疗卫生
    • 烘焙达人 晒家 家装达人
    •  

    前排就座




    • 来自 江苏省
    • 精华 0
    • 注册 2011-6-21
    • 行业 房产建筑
    •  

    *** 作者因违反论坛规定,禁言处理,内容自动屏蔽 ***

    详情参阅论坛注册条款:
    http://bbs.my0511.com/f11b-t2789156z


    • 来自 江苏省
    • 精华 1
    • 注册 2014-3-7
    • 家装达人
    •  
    疯狂的美女节

    LP一天各种碎碎念,说是最悲催的节日,没有之一。今天够疯狂,连赶两场,上午体育会展中心,下午喜来登,各种诱惑。而且更加诱人的是,商家都承诺不满意无条件可退,感觉比23号的那场有诚意的多。最后下定三家:大津泥、欧家地板、宏陶陶瓷。说明一下,我的预算中陶瓷部分很紧,粗算了一下如果一线大品牌,只能全部购买特价砖才够。所以我更倾向于二三线品牌的佛山砖,或者福建的仿古砖也可考虑。宏陶陶瓷集团是佛山三大陶瓷企业,旗下有宏陶、意特陶、威尔斯、 宏宇、卡米亚等品牌,质量不错,性价比较高。这次推出特价砖价格相当亲民,所以先定下来,过几天再去慢慢选。实在没有特别中意的,定金也不会浪费,买点特价砖帖阳台也成啊。
    PS:很多TX瓷砖地砖都是预算大项目,我家的面积也是相当可观,讲究不来。我的盘算是美观、耐用、搭配得当、质量合格即可,反正要么上墙、要么下地,我选80的,你挑160,能有多大区别?




    • 来自 江苏省
    • 精华 1
    • 注册 2014-3-7
    • 家装达人
    •  
    确定开工啦

    第一稿效果图出来,分歧也来了,争执不下中,李大设计师提出折中方案,让我们先选出中意的家具款式和颜色,然后再据此重新设计效果图。那敢情好,我立马同意。不过,似乎不影响开工计划,于是挑日子,3月3日,宜破土、动工.....就是它了!!!签合同,交首付,一套流程走完,跟张总握手,希望万家基和不会让我失望




    • 来自 江苏省
    • 精华 1
    • 注册 2014-3-7
    • 家装达人
    •  
    选择阳光房(封阳台)的曲折路(一)

    根据设计方案,大门左侧的阳光房被设计成洗衣房,客厅边的阳光房是一个休闲储物区,不但有水有电,而且还要储物、晒衣晒被,所以阳光房的质量大意不得。
    跑了一圈市场,阳霸给我留下了很好的印象,施工质量和售后服务相当靠谱,只是价格......相当高端。卫斯帕价格起落较大,差别就在铝材不同。然后就是装大TX推荐的凤铝镇江总代理。目前镇江市面上比较多的铝材是广东凤铝、伟昌、江铝、实德等等,其中属凤铝最好,其断桥铝平开大约650-680,推拉价格不明(最低报400,最高560),伟昌的价格要低一些,性价比不错。
    不过,首先进入我的考察视线的是顺发阳光,这里向刘总致歉,比较下来,除去价格,你们的确是最专业的一家,怎奈远超我的预算,只能遗憾的放弃。下面附图,顺发阳光制作的效果图:
    顺发阳光制作的效果图


    我在万科红郡的施工现场考察了顺发阳光使用的德国蓝卡100型断桥铝型材,质量那是杠杠的。于是请他们上门测量,做预算。拿到报价单一看,三页纸,分项极为细致,平开窗、固定窗、玻璃、五金、防盗格栅、落水沟、结构胶等,从品牌、规格、型号、厚度、工艺规范,一项项列的清清楚楚,服了!再一看总价格,比阳霸高出20%,OMG,等等先。。。




    • 来自 江苏省
    • 精华 0
    • 注册 2010-12-1
    • 行业 金融保险
    •  


    QUOTE:
    原帖由 魔高一尺 于 14-3-7 23:52 发表
    纠结了很久,还是决定随意写下点装修过程中点滴,自娱自乐,权作回忆的证明。
    【小区名称】:万科蓝山
    【所在楼层】:2楼
    【建筑面积】:122.84
    【装修风格】:纠结中(未定稿)
    【包工方式】:半包
    【 ...
    恭喜开工大吉




    • 来自 江苏省
    • 精华 0
    • 注册 2010-12-1
    • 行业 金融保险
    •  


    QUOTE:
    原帖由 魔高一尺 于 14-3-7 23:52 发表
    纠结了很久,还是决定随意写下点装修过程中点滴,自娱自乐,权作回忆的证明。
    【小区名称】:万科蓝山
    【所在楼层】:2楼
    【建筑面积】:122.84
    【装修风格】:纠结中(未定稿)
    【包工方式】:半包
    【 ...
    恭喜开工大吉




    • 来自 江苏省
    • 精华 1
    • 注册 2014-3-7
    • 家装达人
    •  
    选择阳光房(封阳台)的曲折路(二)

    随后,还是找凤铝总代吧,上门测量,长、宽、高,几个数据画好,单价做乘法,结果立马出来了,哦,预算之内,还好,有底了,再等等......
    3月1日早,小区业主群有人发起团购,凤铝断桥铝价格超低,一看立马起床,到了京口路一通好找,原来在这......

    轮到我了,老实交代,我要做平开窗,老板娘很爽快,“平开的加100”,“成交”,比总代那便宜不少啊。约好量房,问题来了,杨老板现场量房,15分钟搞定。我把效果图拿出来给他看,做这个行不?杨老板一看急了,这个费料啊,亏死了,打电话骂老板娘,然后跟我商量,说要不把定金退给我,他没法做。我一看估计确实弄错了,很诚恳的问他,“最少多少能做”,“再加80”,“确定吗?”“嗯,应该差不多了”,“好,就这样”,我其实也是很好说话的,不管怎么说还是省了不少啊。谁知道,晚上杨老板来电话了,跟我商量,用伟昌的行不?仔细算过了,按照我的图纸,用凤铝做下来,还是要亏。如果不行,定金明天就退。我一看这情况,估计杨老板是真有难处,生意虽然没成,但人态度很好,也没耽误我什么时间,互相体谅吧
    3月6日,凤铝总代小邓上门做了精确测量,质量、规格等已无需多说,当场下定,一周后安装外框,15天左右上顶,阳光房+封阳台算是搞定了,就看安装质量了。还好,加上后期配的隐形纱窗等,仍在预算内。




    • 来自 江苏省
    • 精华 0
    • 注册 2009-8-28
    • 行业 学生
    •  

    蓝山好地方呢。




    • 来自 江苏省
    • 精华 1
    • 注册 2014-3-7
    • 家装达人
    •  
    为了舒适,确定中央空调+地暖

    中央空调+地暖,现代家庭标准的舒适性配置,毫无疑问也是预算费用中最大的一项。我家为这个方案反复合计多次,优缺点一番枚举后,最后还是决定做。下面就是如何选择商家的问题了。
    先说一下最后的选择:低碳生活科普馆(舒适中国网线下服务)


    装大老TX可能认出来了,没错,就是蒹葭老师的选择方案:芬尼克兹空气源热泵中央空调+地暖系统。
    先声明一下,我并非跟风,在拜读老师的大作前,其实我已经提前做过了解,并且上门跟高总有过一次深入交谈,当时感觉这个太高科技,太小众,准备放弃了。于是,陆续向镇江劲马空调(三菱重工)、南京洛卡镇江直营店、暖福居(地暖+三菱电机)进行了询价,并且做了几套方案。本来如果不出意外,应该会在这其中选择,三菱重工或电机的中央空调和优尼卡或威能燃气壁挂炉地暖。直到看到老师的大作,决定再认真考察一下。至于专业技术介绍,我不再赘述了,我只想说下作出最终选择的理由:
    1、空气源热泵技术早已成熟,芬尼克兹的技术实力可以信赖。我甚至致电广州总部了解到,高总曾是该公司的技术顾问,绝对的行业专家
    2、天然气作为不可再生能源,目前扬州、常州等城市陆续开始限气,那么镇江呢?
    3、一套空气源热泵外机,夏天制冷,冬天制暖,利用率高。生活热水另配一台燃气热水器,便宜好用,后续成本低。
    4、空气源热泵电机功率大,地暖盘管的水循环速度快,热效率高,对水温的要求低,这样降低了木制家具因局部受热过久发生变形开裂的几率
    5、电能做热交换初始能源,热效率高,节能环保,后期使用费用较低。
    最后,借这个机会,向洛卡的曾经理、劲马空调的陈经理等表示感谢和歉意,不是你们做的不好,而是我只有一份订单




    • 来自 江苏省
    • 精华 1
    • 注册 2014-3-7
    • 家装达人
    •  


    QUOTE:
    原帖由 水晶小笑笑 于 14-3-8 23:53 发表
    蓝山好地方呢。
    买房的时候就是看中那块空气好,现在九华山路贯通了,交通也方便多了




    • 来自 江苏省
    • 精华 1
    • 注册 2014-3-7
    • 家装达人
    •  
    吐槽一下

    刚发现,8号活动送的“健康记忆枕”竟然是三无产品,TX们,你们怎么看?
    中文标识在哪里?





    • 来自 江苏省
    • 精华 0
    • 注册 2005-3-1
    •  

    2楼应该有地下室吧?楼主,你地下室怎么设计的?

    [ 本帖最后由 alenh 于 14-3-9 22:23 编辑 ]




    • 来自 江苏省
    • 精华 1
    • 注册 2014-3-7
    • 家装达人
    •  
    拆除完成,水电开工在即

    今天拆除工程全部结束,工地打扫的干干净净,满意。明天水电定位,提前预约各路商家。
    已经下单的东东
    浴室柜:欧风(月星尚品卫浴、弗兰克卫浴)
    客卫


    漂亮吧,尤其那一抹骚红,LP喜欢。

    [ 本帖最后由 魔高一尺 于 14-3-15 21:56 编辑 ]




    • 来自 江苏省
    • 精华 1
    • 注册 2014-3-7
    • 家装达人
    •  

    洗衣柜:郁洁(月星尚品卫浴)
    快赶上洗衣机的米了





    • 来自 江苏省
    • 精华 1
    • 注册 2014-3-7
    • 家装达人
    •  
    今天的收获

    下午去亿都游荡,LD陶瓷真心美,价钱更美,屌丝伤不起,咽下口水闪人。转了一圈又逛到益高卫浴,之前已经去过一次,超可爱的大叔老板,做事一板一眼,有问必答,不厌其烦。
    一看有活动,满5000送TB222马桶,全场七折,之前已经做好功课,益高卫浴相当不错,尤其是它的百搭马桶下水,防臭防堵防返水,真心不错。还有他们代理奥娜淋浴房,十大品牌,价格适中。一番讨价还价,其实也没还多少,大叔老板说了,他们定价不虚高,还价空间小,所以一般****都不会向客户推荐。真往实了说啊
    亿都益高卫浴





    • 来自 江苏省
    • 精华 0
    • 注册 2009-8-28
    • 行业 学生
    •  


    QUOTE:
    原帖由 魔高一尺 于 14-3-8 20:09 发表
    LP一天各种碎碎念,说是最悲催的节日,没有之一。今天够疯狂,连赶两场,上午体育会展中心,下午喜来登,各种诱惑。而且更加诱人的是,商家都承诺不满意无条件可退,感觉比23号的那场有诚意的多。最后下定三家:大 ...
    三八节就是个花钱节。




    • 来自 江苏省
    • 精华 1
    • 注册 2014-3-7
    • 家装达人
    •  

    这是我订的T340,貌美吧!


    这个是用送的TB222换的TB346,实惠啊!

    大叔老板送了2套九牧角阀和纯铜软管




    • 来自 江苏省
    • 精华 1
    • 注册 2014-3-7
    • 家装达人
    •  


    QUOTE:
    原帖由 诗尼曼 于 14-3-9 22:53 发表
    效果不错,欢迎楼主到时来红星美凯龙诗尼曼看看
    好啊,到时候给个优惠先,好多东西还没最后确定呢




    • 来自 江苏省
    • 精华 1
    • 注册 2014-3-7
    • 家装达人
    •  


    QUOTE:
    原帖由 水晶小笑笑 于 14-3-9 22:50 发表

    三八节就是个花钱节。
    笑笑,我看你家订的美心门,是月星那家啊,怎么样?




    • 来自 江苏省
    • 精华 1
    • 注册 2014-3-7
    • 家装达人
    •  

    淋浴隔断:奥娜J86(四门),亮银,配G04图。(益高卫浴)
                  欧德莉(三门连动)(23号团购,品卫卫浴)
    性价比优先啊,其实铝合金隔一下一样的效果,已经够奢侈了




    • 来自 江苏省
    • 精华 1
    • 注册 2014-3-7
    • 家装达人
    •  


    QUOTE:
    原帖由 alenh 于 14-3-9 21:51 发表
    2楼应该有地下室吧?楼主,你地下室怎么设计的?
    我家2楼木有地下室,就一个小平层,再多个地下室,装修就得破产了

    [ 本帖最后由 魔高一尺 于 14-3-9 23:25 编辑 ]




    • 来自 江苏省
    • 精华 1
    • 注册 2014-3-7
    • 家装达人
    •  
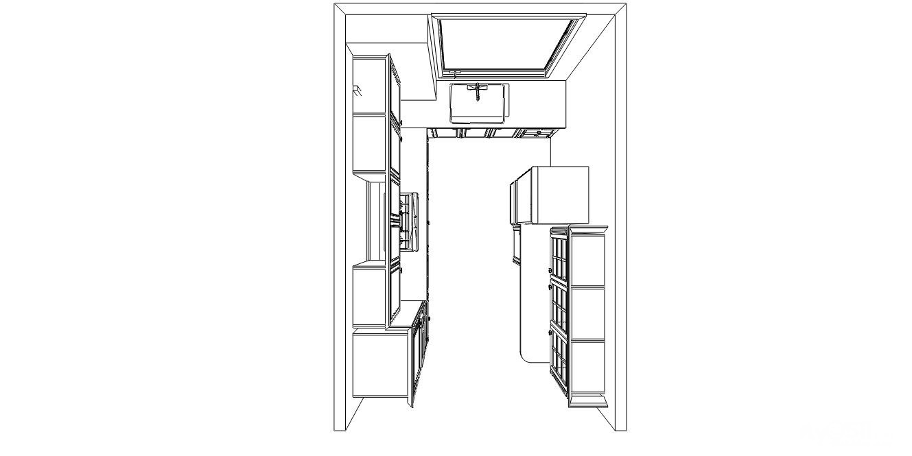
    橱柜的艰难抉择

    由于事关水电定位的问题,橱柜考察是最早考察的项目,但迟迟难以最终决定。下面这个目前是我最满意的设计图
    正面
    侧面





    • 来自 江苏省
    • 精华 1
    • 注册 2014-3-7
    • 家装达人
    •  

    俯视图





    • 来自 江苏省
    • 精华 1
    • 注册 2014-3-7
    • 家装达人
    •  

    橱柜的面板、款式、颜色仍未最后确定,我在等设计师给我第二稿效果图,确定整体风格后再做决定。至于订单给谁,同等质量,价格优先




    • 来自 江苏省
    • 精华 3
    • 注册 2014-3-7
    • 行业 其它
    • 家装达人
    •  

    我满喜欢你家户型的,现在觉得有门厅的房子不错




    • 来自 江苏省
    • 精华 6
    • 注册 2013-5-21
    • 行业 IT 通信
    •  

    LZ下定的速度还是蛮快的




    • 来自 江苏省
    • 精华 1
    • 注册 2013-9-17
    • 行业 轻工化工
    •  

    这效率太高了




    • 来自 江苏省
    • 精华 97
    • 注册 2009-5-9
    • 行业 学生
    • 吃货达人 我是车主 我们爱旅行
    •  

    李鸣设计的不错




    • 来自 江苏省
    • 精华 97
    • 注册 2009-5-9
    • 行业 学生
    • 吃货达人 我是车主 我们爱旅行
    •  






    • 来自 江苏省
    • 精华 0
    • 注册 2014-1-9
    •  

    ^^^^^大款……装修挺喜欢。好有品位!




    • 来自 江苏省
    • 精华 2
    • 注册 2012-7-10
    • 行业 其它
    • 我们爱旅行
    •  

    效率杠杠的!




    • 来自 江苏省
    • 精华 2
    • 注册 2009-2-8
    • 行业 教育科研
    •  






    • 来自 江苏省
    • 精华 0
    • 注册 2013-6-21
    • 行业 工业制造
    •  

    楼主不会是1225栋吧!我是3楼!




    • 来自 江苏省
    • 精华 0
    • 注册 2014-1-7
    • 行业 商业贸易
    • 家装达人
    •  


    QUOTE:
    原帖由 魔高一尺 于 14-3-9 21:47 发表
    刚发现,8号活动送的“健康记忆枕”竟然是三无产品,TX们,你们怎么看?
    [attach]15470551[/attach]
    三无产品,额也拿了 ,




    • 来自 江苏省
    • 精华 8
    • 注册 2006-12-25
    • 行业 信息咨询
    • 家装达人
    •  






    • 来自 江苏省
    • 精华 0
    • 注册 2005-3-1
    •  


    QUOTE:
    原帖由 魔高一尺 于 14-3-9 23:23 发表

    我家2楼木有地下室,就一个小平层,再多个地下室,装修就得破产了
    多上图,多写点心得,蓝山的装修日记不多,我们就看你的日记装修了




    • 来自 江苏省
    • 精华 3
    • 注册 2007-7-4
    • 行业 其它
    •  

    美女节的时候疯狂了,




    • 来自 江苏省
    • 精华 0
    • 注册 2014-2-18
    •  

    :ok::ok:谢谢您!




    • 来自 江苏省
    • 精华 8
    • 注册 2009-7-11
    • 行业 其它
    •  

    厨房间的桶柜让他给你侧面加块装饰板啊,白色的影响美观




    • 来自 江苏省
    • 精华 0
    • 注册 2012-12-28
    • 行业 学生
    •  

    小吧台,大高柜,布局不错,操作方便




    • 来自 江苏省
    • 精华 144
    • 注册 2010-1-30
    • 行业 信息咨询
    •  






    • 来自 江苏省
    • 精华 0
    • 注册 2009-8-28
    • 行业 学生
    •  


    QUOTE:
    原帖由 魔高一尺 于 14-3-9 23:02 发表

    笑笑,我看你家订的美心门,是月星那家啊,怎么样?
    据说美心还有大美心,小美心,不留神就走错了。两家的门也不同,你要仔细分辨下。




    • 来自 江苏省
    • 精华 3
    • 注册 2005-10-24
    •  

    装修很辛苦的




     4352  1/88  1  2  3  4  5  6  7  8  9  10  >  >| 
    查看积分策略说明快速回复主题
    您目前还是游客,请 登录注册
    您目前是游客,本帖已被系统设置了自动关闭,不可回复!

    0/5000字

     
    < >
     

    Powered by Discuz! X 2 0.127264 s 清除 Cookies - 镇江网友之家 - 手机版
    论坛导航 关闭