开帖大吉!整理好思路,明日出发。
[ 本帖最后由 zhhjliu 于 15-3-13 17:48 编辑 ]
文采有限,下面尽量来干货吧,只当记个流水账。
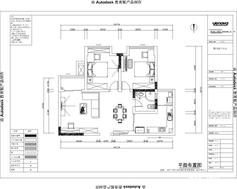
【小区名称】我家山水
【建筑面积】93平
【装修风格】简约吧,中欧美都整不起
【包工方式】半包
【装修公司】业之峰
【设 计 师】张美女,很有耐心,以柔克刚型
【开工日期】2015年2月7日
【装修预算】理想本骨感,现实太丰满。从10万一再往上跳。
【已定主材】
橱柜:志邦,3月1日开门红最便宜的套餐
地板:金象,年前定的,老板父子那口才。。。估计好多网友都领教过
吊顶:美的,8平的套餐
瓷砖:兴辉,月星看花眼了,随便撞了家
防盗门:盼盼,号称明码实价,不还价
木门:世友,不知道跟木地板是不是一家
水槽:佳德特价款,谁知一般橱柜套餐里都有
淋浴房:雅立特价款,等不到徳莉玛搞活动了,看着不错就拿下了
热水器:林内,喜来登那天抢得最疯的一家,老板好牛啊
台盆浴柜:迪维克,京东上买的杂牌,卫生间太小合适的不好找啊
壁纸:嫣然,还是喜来登定的,对壁纸不懂也懒得比了,定一样少一样
开关插座:施耐德,淘宝上定的,松下的是好啊,就是太贵
花洒挂件:蓝藤,网上口碑似乎不错
地漏:返必克,名气没有潜水艇,老铜匠大,价格还不便宜
封阳台:凤铝,门口小店,也不知真假
烟加灶:老板,话说油烟机灶具方太、老板、帅康到底哪家强?
石材:万峰,315月星下得单子,可惜没时间去抽大奖了。
衣柜:好莱客,体育馆5999的特价,到底是木工打还是定制呢,现在还在纠结,就觉得定制的移门好一点。
玻璃移门:索丹奴,322团购,感谢网友魔人啾啾团长组团成功!下单速度是不是太快了点?选材实在太磨人,早定早了吧。
暂时就这些,后面定了的再加。
[ 本帖最后由 zhhjliu 于 15-3-22 23:18 编辑 ]
【小区名称】我家山水
【建筑面积】93平
【装修风格】简约吧,中欧美都整不起
【包工方式】半包
【装修公司】业之峰
【设 计 师】张美女,很有耐心,以柔克刚型
【开工日期】2015年2月7日
【装修预算】理想本骨感,现实太丰满。从10万一再往上跳。
【已定主材】
橱柜:志邦,3月1日开门红最便宜的套餐
地板:金象,年前定的,老板父子那口才。。。估计好多网友都领教过
吊顶:美的,8平的套餐
瓷砖:兴辉,月星看花眼了,随便撞了家
防盗门:盼盼,号称明码实价,不还价
木门:世友,不知道跟木地板是不是一家
水槽:佳德特价款,谁知一般橱柜套餐里都有
淋浴房:雅立特价款,等不到徳莉玛搞活动了,看着不错就拿下了
热水器:林内,喜来登那天抢得最疯的一家,老板好牛啊
台盆浴柜:迪维克,京东上买的杂牌,卫生间太小合适的不好找啊
壁纸:嫣然,还是喜来登定的,对壁纸不懂也懒得比了,定一样少一样
开关插座:施耐德,淘宝上定的,松下的是好啊,就是太贵
花洒挂件:蓝藤,网上口碑似乎不错
地漏:返必克,名气没有潜水艇,老铜匠大,价格还不便宜
封阳台:凤铝,门口小店,也不知真假
烟加灶:老板,话说油烟机灶具方太、老板、帅康到底哪家强?
石材:万峰,315月星下得单子,可惜没时间去抽大奖了。
衣柜:好莱客,体育馆5999的特价,到底是木工打还是定制呢,现在还在纠结,就觉得定制的移门好一点。
玻璃移门:索丹奴,322团购,感谢网友魔人啾啾团长组团成功!下单速度是不是太快了点?选材实在太磨人,早定早了吧。
暂时就这些,后面定了的再加。
[ 本帖最后由 zhhjliu 于 15-3-22 23:18 编辑 ]
http://bbs.my0511.com/f917b-t4992517z-1-1
谢谢对我们的支持,我们也是每周整队中层 周周都去巡检工地的,每次都有图片跟进,希望业主朋友也能够即使了解到您家的进度,
我们尽全力为您完成这次家装旅行。QQ:2997696303
还有一户也是咱的邻居 在15层,进度到了刷墙包了,你们可以走动了解一下。
http://bbs.my0511.com/f917b-t4992518z-1-1
[ 本帖最后由 镇江业之峰装饰 于 15-3-13 10:04 编辑 ]
谢谢对我们的支持,我们也是每周整队中层 周周都去巡检工地的,每次都有图片跟进,希望业主朋友也能够即使了解到您家的进度,
我们尽全力为您完成这次家装旅行。QQ:2997696303
还有一户也是咱的邻居 在15层,进度到了刷墙包了,你们可以走动了解一下。
http://bbs.my0511.com/f917b-t4992518z-1-1
[ 本帖最后由 镇江业之峰装饰 于 15-3-13 10:04 编辑 ]
目前水电装到这一步,作为经历者有以下几点细节体会和疑问,请邻居和装大的同学们帮我解惑:
1、水管到底是从顶上走好,还是从地上走好?我看现在大部分公司都是从顶上走的多,但我家水路不多,却是就是顶上和地上的混搭!
2、家里顶上走的热水管到底要不要包保温棉?有的说包好,既保温隔热又防止水汽凝结滴下损害吊顶,有的说纯粹是聋子的耳朵,作秀,徒增加成本而已。到底那个有理?
3、卫生间下水管包隔音棉,是包顶上横向的管道还是包墙角竖着的管道?包了之后真有隔音效果吗?
4、电视墙的插座位置一般是多高合适?那种中间埋根竖管,隐藏电视的插线的作法是普遍的,还是少数?
[ 本帖最后由 zhhjliu 于 15-3-13 17:03 编辑 ]
1、水管到底是从顶上走好,还是从地上走好?我看现在大部分公司都是从顶上走的多,但我家水路不多,却是就是顶上和地上的混搭!
2、家里顶上走的热水管到底要不要包保温棉?有的说包好,既保温隔热又防止水汽凝结滴下损害吊顶,有的说纯粹是聋子的耳朵,作秀,徒增加成本而已。到底那个有理?
3、卫生间下水管包隔音棉,是包顶上横向的管道还是包墙角竖着的管道?包了之后真有隔音效果吗?
4、电视墙的插座位置一般是多高合适?那种中间埋根竖管,隐藏电视的插线的作法是普遍的,还是少数?
[ 本帖最后由 zhhjliu 于 15-3-13 17:03 编辑 ]
- 来自 江苏省
- 精华 0
- 注册 2014-10-24
- 来自 安徽省
- 精华 0
- 注册 2014-8-31













水电2 
















