收藏本站
客户端
扫码下载客户端
官方微信
打开微信扫一扫
登录
|
注册
|
标题
标题
用户
全站首页
|
论坛导航
|
网络问政
|
招聘求职
|
买房租房
|
装修频道
|
生活服务
|
教育
|
相亲
|
亲子
|
美食
|
婚嫁
|
手机客户端
家有学子
|
母婴乐园
快捷导航
精彩推荐:
MY0511客户端下载
中信银行镇江分行
公益体彩 乐善人生
鹏龙鸿蒙
天然石材·人造石
»
梦溪论坛
»
家庭装修
» 我的北欧风清包之旅,第一次清包,大家多多指教(⊙o⊙)哦
家庭装修
>
[装修日记]
我的北欧风清包之旅,第一次清包,大家多多指教(⊙o⊙)哦
查看: 16584 回复: 56
快速回复
返回家庭装修
57
1/2
1
2
>
[装修日记]
我的北欧风清包之旅,第一次清包,大家多多指教(⊙o⊙)哦
查看: 16584 回复: 56
上一主题
|
下一主题
tonychen000
来自 江苏省
精华 0
注册 2007-8-18
行业 学生
我的北欧风清包之旅,第一次清包,大家多多指教(⊙o⊙)哦
第一次写装修日记,第一次清包,好多好多第一次啊
第一套房子是半包,好像是祥云装潢公司,我老公一手包办的,感觉挺好的,一开始想继续找那家装潢公司做,但是看到网上的清包达人们的帖子,立马激情澎湃,我决定要自己大干一场!预祝自己一切顺顺利利!!
[
本帖最后由 tonychen000 于 15-11-22 09:11 编辑
]
---发自梦溪论坛手机客户端---
已有
0
人打赏
2015-11-22 09:05
1楼
[联宇电脑] 电脑组装\维修\升级\企业单位电脑维护!
只看该作者
分享本楼
想飞就别怕累
来自 江苏省
精华 0
注册 2015-8-21
开贴了,清包的都是好样的
---发自梦溪论坛手机客户端---
2015-11-22 09:29
2楼
MY0511相亲,一分钟注册,享一辈子幸福!
只看该作者
分享本楼
1步之遥
来自 江苏省
精华
3
注册 2010-7-7
行业 房产建筑
我也清包,加油加油
2015-11-22 09:55
3楼
MY0511相亲,一分钟注册,享一辈子幸福!
只看该作者
分享本楼
烦烦妈
来自 江苏省
精华
1
注册 2013-10-24
同是北欧风的给楼主加油,清包的都是强人
。
2015-11-22 10:01
4楼
[联宇电脑] 电脑组装\维修\升级\企业单位电脑维护!
只看该作者
分享本楼
mihao5295029
来自 江苏省
精华
4
注册 2008-9-23
行业 学生
恭喜来帖 清包都是强人
---发自锤子---
2015-11-22 12:24
5楼
买房、卖房、租房上镇江房产网!
只看该作者
分享本楼
宇祥装饰客服
来自 江苏省
精华
8
注册 2010-9-13
行业 房产建筑
LZ厉害啊,先恭喜啦
2015-11-22 14:49
6楼
买房、卖房、租房上镇江房产网!
只看该作者
分享本楼
淡蓝的倾
来自 江苏省
精华 0
注册 2011-8-18
行业 工业制造
wo也清包 水电刚结束 同学加油
2015-11-24 10:16
7楼
0511家装频道:本地家居服务平台,数万业主共同选择
只看该作者
分享本楼
淡蓝的倾
来自 江苏省
精华 0
注册 2011-8-18
行业 工业制造
发个效果图来看看
2015-11-24 10:17
8楼
0511家装频道:本地家居服务平台,数万业主共同选择
只看该作者
分享本楼
my0511小妖
版主
来自 江苏省
精华
9
注册 2005-10-29
挖坑记得回来填坑哦
2015-11-24 11:07
9楼
[联宇电脑] 电脑组装\维修\升级\企业单位电脑维护!
只看该作者
分享本楼
tonychen000
来自 江苏省
精华 0
注册 2007-8-18
行业 学生
首先感谢双子妈(我家工人都是找的他家的
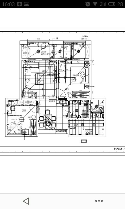
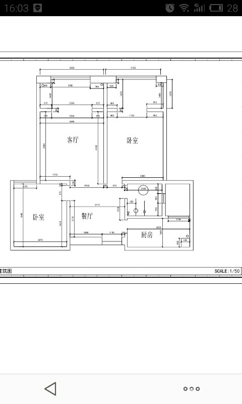
),凯宾斯基(敲墙师傅是找的他推荐的,很好)等装修达人,因为你们我才有勇气清包。设计师出的图,主要修改点是主卧的门原先对着大门改成开在客厅,为了多出一个休息区,将阳台隔出一段做榻榻米,万一来朋友也可以将就睡一下,次卧的门往外挪了一块,以便打柜子。我的设计师是在淘宝找的,800块钱,我很满意。
---发自梦溪论坛手机客户端---
2015-12-7 16:14
10楼
找工作,就上MY0511!
只看该作者
分享本楼
博瑞冷暖
来自 江苏省
精华 0
注册 2015-6-19
清包 加油!
2015-12-7 16:23
11楼
[联宇电脑] 电脑组装\维修\升级\企业单位电脑维护!
只看该作者
分享本楼
智能的家
来自 江苏省
精华
1
注册 2014-7-12
加油!
2015-12-7 17:42
12楼
找工作,就上MY0511!
只看该作者
分享本楼
面包虫
来自 江苏省
精华 0
注册 2015-9-15
佩服佩服,清包花的不止是时间,还有精力,都是牛人啊
2015-12-7 20:03
13楼
找工作,就上MY0511!
只看该作者
分享本楼
tonychen000
来自 江苏省
精华 0
注册 2007-8-18
行业 学生
我家橱柜在宜家订的,不知道出来效果怎么样,但是将近3000的运费加安装费让人很不爽
---发自梦溪论坛手机客户端---
2015-12-8 12:03
14楼
0511家装频道:本地家居服务平台,数万业主共同选择
只看该作者
分享本楼
tonychen000
来自 江苏省
精华 0
注册 2007-8-18
行业 学生
我家目前已经瓦工进入尾声了,由于我家那位想法较多所以麻烦师傅了
---发自梦溪论坛手机客户端---
2015-12-8 12:07
15楼
买房、卖房、租房上镇江房产网!
只看该作者
分享本楼
tonychen000
来自 江苏省
精华 0
注册 2007-8-18
行业 学生
厨房的小面包砖,下次再拍照片,效果还不错,就是还需要美缝,麻烦尼
---发自梦溪论坛手机客户端---
2015-12-8 12:10
16楼
MY0511相亲,一分钟注册,享一辈子幸福!
只看该作者
分享本楼
79191500
来自 江苏省
精华 0
注册 2010-2-22
行业 商业贸易
宜家运费+安装,要3千。。。
真心好贵
2015-12-8 12:32
17楼
买房、卖房、租房上镇江房产网!
只看该作者
分享本楼
卷发棒
来自 江苏省
精华 0
注册 2010-8-7
行业 其它
淘宝找的设计师怎么帮你量房子呢!
2015-12-8 14:36
18楼
MY0511相亲,一分钟注册,享一辈子幸福!
只看该作者
分享本楼
tonychen000
来自 江苏省
精华 0
注册 2007-8-18
行业 学生
QUOTE:
原帖由
卷发棒
于 15-12-8 14:36 发表
淘宝找的设计师怎么帮你量房子呢!
自己量,他画图,重要的地方会叫你复量
---发自梦溪论坛手机客户端---
2015-12-9 12:27
19楼
MY0511相亲,一分钟注册,享一辈子幸福!
只看该作者
分享本楼
烦烦妈
来自 江苏省
精华
1
注册 2013-10-24
关注中
2015-12-9 12:35
20楼
买房、卖房、租房上镇江房产网!
只看该作者
分享本楼
tonychen000
来自 江苏省
精华 0
注册 2007-8-18
行业 学生
QUOTE:
原帖由
烦烦妈
于 15-12-9 12:35 发表
关注中
谢谢关注
---发自梦溪论坛手机客户端---
2015-12-14 22:45
21楼
[联宇电脑] 电脑组装\维修\升级\企业单位电脑维护!
只看该作者
分享本楼
yj4431363
来自 江苏省
精华 0
注册 2012-10-28
行业 其它
半包我都有点吃不消了,真心佩服你们,清包威武
---发自Galaxy Note2---
2015-12-15 02:21
22楼
[联宇电脑] 电脑组装\维修\升级\企业单位电脑维护!
只看该作者
分享本楼
冰激凌い
来自 江苏省
精华
4
注册 2009-11-14
行业 娱乐餐饮
我家以后也打算清包
朋友是设计师,已经帮我设计好,出好效果图,尽量按效果图来装
那个橱柜的3000块运费安装费也太贵了吧
2015-12-16 09:26
23楼
[联宇电脑] 电脑组装\维修\升级\企业单位电脑维护!
只看该作者
分享本楼
tonychen000
来自 江苏省
精华 0
注册 2007-8-18
行业 学生
今天木工材料买回来了,跳跳兔的杉木免漆板,木工师傅说很好哦,205一张,期待效果
2015-12-20 14:41
24楼
MY0511相亲,一分钟注册,享一辈子幸福!
只看该作者
分享本楼
浮生烟雨
来自 江苏省
精华 0
注册 2014-8-29
期待楼主家北欧风,我也开帖来,同为北欧风,互相学习
---发自梦溪论坛手机客户端---
2016-1-13 20:28
25楼
0511家装频道:本地家居服务平台,数万业主共同选择
只看该作者
分享本楼
tonychen000
来自 江苏省
精华 0
注册 2007-8-18
行业 学生
昨天周末把房子好好收拾一下,年前木工结束,一塌糊涂没有整理,现在漆工要进场了必需动手了
[
本帖最后由 tonychen000 于 16-3-14 12:45 编辑
]
---发自iPhone---
2016-3-14 12:44
26楼
买房、卖房、租房上镇江房产网!
只看该作者
分享本楼
tonychen000
来自 江苏省
精华 0
注册 2007-8-18
行业 学生
堆在楼梯口的垃圾,我把它完美解决了,在电梯里找了一个收门窗的号码,有个窗户一起给他,不要钱只要把垃圾收拾了就行,这个人挺诚信的,我晚上去看的时候收拾的干干净净。
---发自iPhone---
2016-3-14 12:48
27楼
[联宇电脑] 电脑组装\维修\升级\企业单位电脑维护!
只看该作者
分享本楼
tonychen000
来自 江苏省
精华 0
注册 2007-8-18
行业 学生
油漆买的芬琳漆,油漆预算需要6000多,比一般的贵很多,不知道效果咋样,期待中哦
---发自iPhone---
2016-3-14 12:51
28楼
MY0511相亲,一分钟注册,享一辈子幸福!
只看该作者
分享本楼
德意﹨丽博橱柜
家装认证商户
来自 江苏省
精华 0
注册 2013-1-15
行业 商业贸易
类似的橱柜,本地做品牌的,应该会更加便宜些吧
2016-3-14 17:27
29楼
[联宇电脑] 电脑组装\维修\升级\企业单位电脑维护!
只看该作者
分享本楼
uunique
来自 江苏省
精华 0
注册 2016-2-21
加油
---发自iPhone---
2016-3-15 12:26
30楼
买房、卖房、租房上镇江房产网!
只看该作者
分享本楼
珞珈山下的兔子
来自 江苏省
精华 0
注册 2015-11-22
2016-3-15 14:32
31楼
[联宇电脑] 电脑组装\维修\升级\企业单位电脑维护!
只看该作者
分享本楼
susankin
来自 江苏省
精华 0
注册 2007-8-30
行业 其它
---发自iPhone---
2016-3-18 21:52
32楼
找工作,就上MY0511!
只看该作者
分享本楼
浮生烟雨
来自 江苏省
精华 0
注册 2014-8-29
顶一个北欧清包
---发自梦溪论坛手机客户端---
2016-3-19 06:59
33楼
MY0511相亲,一分钟注册,享一辈子幸福!
只看该作者
分享本楼
tonychen000
来自 江苏省
精华 0
注册 2007-8-18
行业 学生
目前门已装好,等待地板和灯安装,最近会有大变化哦,哈哈过两天上照片
---发自iPhone 6S---
2016-5-12 12:52
34楼
0511家装频道:本地家居服务平台,数万业主共同选择
只看该作者
分享本楼
tonychen000
来自 江苏省
精华 0
注册 2007-8-18
行业 学生
在网上选的灯给大家看看
---发自iPhone 6S---
2016-5-12 12:55
35楼
0511家装频道:本地家居服务平台,数万业主共同选择
只看该作者
分享本楼
沓沓米
来自 江苏省
精华 0
注册 2010-3-22
行业 其它
到现在花了多少钱了,清包工人联系电话能短我么
2016-6-1 10:07
36楼
[联宇电脑] 电脑组装\维修\升级\企业单位电脑维护!
只看该作者
分享本楼
ldy9086
来自 江苏省
精华 0
注册 2006-9-11
行业 其它
求瓦匠电话
2016-7-26 12:43
37楼
[联宇电脑] 电脑组装\维修\升级\企业单位电脑维护!
只看该作者
分享本楼
tonychen000
来自 江苏省
精华 0
注册 2007-8-18
行业 学生
QUOTE:
原帖由
ldy9086
于 16-7-26 12:43 发表
求瓦匠电话
130-0435-5082
---发自iPhone 6S---
2016-7-26 12:45
38楼
0511家装频道:本地家居服务平台,数万业主共同选择
只看该作者
分享本楼
tonychen000
来自 江苏省
精华 0
注册 2007-8-18
行业 学生
QUOTE:
原帖由
沓沓米
于 16-6-1 10:07 发表
到现在花了多少钱了,清包工人联系电话能短我么
10万。。。哪个工人
---发自iPhone 6S---
2016-7-26 12:46
39楼
找工作,就上MY0511!
只看该作者
分享本楼
tonychen000
来自 江苏省
精华 0
注册 2007-8-18
行业 学生
下次多拍点照片来给大家看,目前手机就几张
---发自iPhone 6S---
2016-7-26 12:47
40楼
MY0511相亲,一分钟注册,享一辈子幸福!
只看该作者
分享本楼
ldy9086
来自 江苏省
精华 0
注册 2006-9-11
行业 其它
QUOTE:
原帖由
tonychen000
于 16-7-26 12:45 发表
130-0435-5082
楼主 瓦工姓什么呀?
---发自iPhone 6---
2016-7-26 12:49
41楼
买房、卖房、租房上镇江房产网!
只看该作者
分享本楼
qingqing3300283
来自 江苏省
精华 0
注册 2013-9-18
QUOTE:
原帖由
ldy9086
于 16-7-26 12:49 发表
楼主 瓦工姓什么呀?
瓷砖的那个彩色条砖是网上买的吗,又没有链接,质量如何,我想要铺地上,做的仿古砖
---发自iPhone 5S---
2016-7-26 12:57
42楼
0511家装频道:本地家居服务平台,数万业主共同选择
只看该作者
分享本楼
tonychen000
来自 江苏省
精华 0
注册 2007-8-18
行业 学生
瓦工姓辛,腰线地址复制这条信息,打开手机淘宝即可看到【客厅踢脚线 地脚线 磁砖波打线波导线仿古砖腰线瓷砖欧式装饰线条】¥AAHDOiUc¥
http://ewqcxz.com/h.ZkthQi?cv=AAHDOiUc&sm=51147e
---发自iPhone 6S---
2016-7-26 13:07
43楼
找工作,就上MY0511!
只看该作者
分享本楼
江苏亿华装饰
家装认证商户
来自 江苏省
精华
67
注册 2016-3-8
行业 房产建筑
清包不易,且行且珍惜
2016-7-26 13:23
44楼
买房、卖房、租房上镇江房产网!
只看该作者
分享本楼
美心实木门
来自 江苏省
精华 0
注册 2008-7-15
行业 电子制造
贺美心集团成立27周年,美心蒙迪木门超级厂价直供—镇江站
4.5公分厚度豪门,不含密度板
,1299元/套
橡木原木门1599元,再送价值299元全套锁具,200套送完为止!金蛋疯狂砸,蛋蛋有礼!
电话:0511-88977517
地址:月星二楼B069美心.蒙迪木门
2016-7-31 14:21
45楼
找工作,就上MY0511!
只看该作者
分享本楼
小乖的妈妈
来自 江苏省
精华 0
注册 2005-10-25
楼主,求水电工、木工的电话の
2016-10-7 13:43
46楼
找工作,就上MY0511!
只看该作者
分享本楼
tonychen000
来自 江苏省
精华 0
注册 2007-8-18
行业 学生
补上照片
---发自iPhone 6S---
2016-11-5 10:59
47楼
找工作,就上MY0511!
只看该作者
分享本楼
tonychen000
来自 江苏省
精华 0
注册 2007-8-18
行业 学生
客厅
---发自iPhone 6S---
2016-11-5 11:11
48楼
买房、卖房、租房上镇江房产网!
只看该作者
分享本楼
tonychen000
来自 江苏省
精华 0
注册 2007-8-18
行业 学生
卫生间
---发自iPhone 6S---
2016-11-5 11:32
49楼
买房、卖房、租房上镇江房产网!
只看该作者
分享本楼
小乖的妈妈
来自 江苏省
精华 0
注册 2005-10-25
清包辛苦,同道中人握个爪
求短漆工师傅电话
2016-12-3 10:45
50楼
[联宇电脑] 电脑组装\维修\升级\企业单位电脑维护!
只看该作者
分享本楼
返回家庭装修
57
1/2
1
2
>
快速回复主题
游客
您目前还是游客,请
登录
或
注册
您目前是游客,本帖已被系统设置了自动关闭,不可回复!
文明交流,理性发言
0/5000字
<
>
请在打开的新窗口中支付完成打赏
我已完成支付打赏
支付失败重新支付
其他金额
打赏金额:
元
确定
支付打赏
提 现
打赏人
打赏金额(元)
打赏时间
Powered by
Discuz! X 2
0.043123 s
清除 Cookies
-
镇江网友之家
-
手机版
论坛导航
关闭
吃喝玩乐
饮食男女
镇江钓友之家
菜菜鸟户外
镇江单车俱乐部
镜头里的镇江
畅游天下
猫狗总动员
视觉Coffeeshop摄影部落
花鸟鱼虫
婚姻.亲子.家庭
家有学子
谈婚论嫁
女性天地
母婴乐园
婚姻生活
梦溪佳缘
装修
家庭装修
装修招标
镇江室内设计师交流
装修商家直通车
你好,镇江!
百姓话题
我要买房
0511爱心家园
市场监管•12315热线
分类信息
生活服务
闲置转让
镇江二手房/镇江租房
镇江招聘求职
教育培训
镇江二手车
商铺厂房写字楼租售
宠物市场
运动健身
卡券交易
电脑维修升级
杂货铺
其他分类信息区
兴趣爱好
HiFi音响江城沙龙
镇江市美术家协会
我爱模型
车友俱乐部
车迷之家
汽车驾培中心
运动俱乐部
镇江市冬泳、铁人三项协会
聚焦足球
镇江羽毛球
镇江乒乓球协会
镇江网球协会
镇江市自行车运动协会
热爱篮球
动力机车
合作栏目
维权热线
天翼时代
色觉影像摄影工作室
站务区
疑问与建议
网络问政
市政府工作部门
垂直管理部门
党群工作部门
其他重点单位
辖市(区)