| 标题
快捷导航

精彩推荐:MY0511客户端下载

    • 中信银行镇江分行

    • 公益体彩 乐善人生

    • 鹏龙鸿蒙

    • 天然石材·人造石

    » 梦溪论坛 » 家庭装修 » [2016万家基和杯]一只外地小杆子扎根大镇江的点点滴滴---从装修开始[江山名洲·观澜]
    家庭装修  >  [装修日记] [2016万家基和杯]一只外地小杆子扎根大镇江的点点滴滴---从装修开始[江山名洲·观澜]     
    查看: 234636  回复: 409
     410  1/9  1  2  3  4  5  6  7  8  9  > 
    [装修日记] [2016万家基和杯]一只外地小杆子扎根大镇江的点点滴滴---从装修开始[江山名洲·观澜]      查看: 234636  回复: 409
    • 来自 江苏省
    • 精华 1
    • 注册 2013-9-26
    •  
    [2016万家基和杯]一只外地小杆子扎根大镇江的点点滴滴---从装修开始[江山名洲·观澜]



    此帖已成功报名2016家装日记大赛更多家装信息关注MY0511家装频道


    【小区名称】:江山名洲观澜

    【所在楼层】:6/11楼
    【建筑面积】:91.12+赠送11平
    【装修风格】:混搭,就是混搭!(虽然定位的是现代简约,但我心里有个声音告诉我:混搭,就是混搭!)
    【包工方式】:半包
    【装修公司】:金缔装饰
    【设计大师】:夏设计师
    【开工日期】:2016年1月5日 9点16分
    【装修预算】:我发现到后来最初做的预算没什么用了。。。
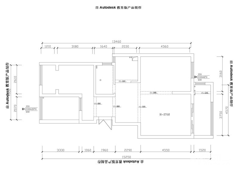
    【户型图片】





    设计户型图


    [ 本帖最后由 my0511菲雪 于 16-3-2 15:25 编辑 ]





                      
    • 来自 江苏省
    • 精华 1
    • 注册 2013-9-26
    •  

    已定主材:


    1、木门:关亨木门
    2、油烟机、灶具、热水器、小厨宝:帅康
    3、封阳台:安欣
    4、墙纸:别丽美特
    5、油漆:立邦净味120
    6、瓷砖:亿都宏宇陶瓷
    7、插座开关:网购德力西
    8、止逆阀:淘宝  【此处为站外链接,请谨慎打开】
    9、石材:建兴石材(天桥)
    10、地漏:网购潜水艇
    11、内门锁(【此处为站外链接,请谨慎打开】
    12、水槽 (【此处为站外链接,请谨慎打开】
    13、花洒(【此处为站外链接,请谨慎打开】
    14、风暖:欧普QDP1020CL(【此处为站外链接,请谨慎打开】




    装修进度记录:

    1、2016.1.5---开工、敲墙(http://bbs.my0511.com/f95b-t5341478z-3#pid90701303
    2、2016.1.9---砌墙(http://bbs.my0511.com/f95b-t5341478z-3#pid90755279
    3、2016.1.12---封阳台安装框架(http://bbs.my0511.com/f95b-t5341478z-4#pid90798800
    4、2016.1.17---水电交底,画线(http://bbs.my0511.com/f95b-t5341478z-4#pid90861193
    5、2016.1.18---水电开槽(http://bbs.my0511.com/f95b-t5341478z-4#pid90884989
    6、2016.2.21---水电验收(http://bbs.my0511.com/f95b-t5341478z-5#pid91836234
    7、2016.2.23---瓦工进场(http://bbs.my0511.com/f95b-t5341478z-5#pid91883379
    8、2016.3.8---木工进场(http://bbs.my0511.com/f95b-t5341478z-6#pid92087672
    9、2016.3.14---小插曲,临时决定顶面找平,木工停工一个礼拜(http://bbs.my0511.com/f95b-t5341478z-6#pid92188653
    10、2016.3.23---木工结束
    11、2016.3.26---漆工进场
    12、2016.4.13---油漆结束
    13、2016.4.23---安装吊顶(http://bbs.my0511.com/f95b-t5341478z-7#pid92850880
    *
    *
    *
    终究绕不过僵尸帖啊。。。哈哈哈哈哈哈哈。。。
    讲几点这次装修的遗憾和下次装修的注意点吧:
    1、客厅地砖颜色太浅,弄一点脏就能看见,拖地很头疼。选深色或者地板。
    2、墙纸和漆,还是漆吧,漆也可以做的很好看,家里墙纸靠窗户边已经被雨吹的发霉了。
    3、网购德力西插座质量不咋滴,个别双孔很难插进去。
    4、预留室内和门头监控插座。家里有小孩了为了方便照看小孩,后装了监控,苦于没有预留插座,只能拖着一根很长的线,很丑不说,也怕小孩子去扯线。门头监控我感觉还是很有必要的,不仅可以收快递还可以震慑小偷(可视猫眼没有监控效果好),小区真实发生过。
    5、不要电视背景墙,起初觉得好看,后期就觉得鸡肋了,不如电视组柜实在。
    6、能装柜子的地方不要犹豫,全部装起来,没有够用,只有不够用。最初觉得家里柜子做的挺多,个别可以做柜子的地方就放弃了,后期全部加装上了,现在感觉还是不够用,孩子玩具太多了。。。
    7、插座能多就多,可以装几个带USB的。
    8、现在客厅使用的是白光,房间暖光,本来想着客厅白光会亮一点,事实证明想多了,全部用暖光,感觉会舒服很多。
    9、预留小洗衣机的插座和进出水口,小洗衣机用来洗孩子衣服,和大人衣服分开,没有的话全靠手洗,没有预留的话后期加装太丑了。
    10、净水器还是有必要装的,后期加装了3M。

    就这么多吧,想起来再补,终于有个结尾了。。。哈哈哈哈。。。

    [ 本帖最后由 neal 于 2020-7-21 13:13 编辑 ]




    • 来自 江苏省
    • 精华 1
    • 注册 2013-9-26
    •  

    不少人问我为嘛在上海读大学却不在上海找工作?上海的工资高,待遇好,逛的多,吃的多...巴拉巴拉之类的...讲的都对!但我讲2个例子,就2个!一次放完假返校,在上海坐地铁,载着满满一堆人的一辆车停在了我的面前,我愣了一下没上,旁边拿着小旗子的人走过来跟我讲:侬上伐?...当时我内心OS:我不在这等坐车难不成是陪你聊天啊!然后嘴上说的:我想上去啊,但实在人太多我上不去啊。这时(前方高能,请闭眼)只见他把小旗子反插在裤兜里,用双手硬把我推上去了。。。泥玛!第二个例子,我同学每天早上从住的地方到上班的地方要花1个多小时。1个多小时!!!你每天早上醒来,看了下时间,发现竟然还有一个小时可以睡,那种幸福感、满足感。。。啧啧啧。。。侬懂伐?
    当然还有一些其他原因致使我不太想留在上海,就不说了。

    [ 本帖最后由 neal 于 15-12-20 11:22 编辑 ]




    • 来自 江苏省
    • 精华 1
    • 注册 2013-9-26
    •  

    一个偶然的机会我了解到现在的公司去我们学校招聘(其实是我从学校网站上查到的),镇江的!镇江在哪?问了下度娘,原来和南京这么近,好,来!(为什么离南京近我就来了,打死我也不会告诉你的)

    [ 本帖最后由 neal 于 15-12-20 11:22 编辑 ]




    • 来自 江苏省
    • 精华 1
    • 注册 2013-9-26
    •  

    终于在去年做了买房扎根镇江的决定,想着离公司近点,就把重点放在了东吴路片区,综合考量了下,还是选择了江山名洲。。。。。。住里面的同事也多,以后媳妇儿不给做饭吃是不是可以去蹭饭?

    [ 本帖最后由 neal 于 15-12-20 11:23 编辑 ]




    • 来自 江苏省
    • 精华 1
    • 注册 2013-9-26
    •  

    装修公司的选择:

    眼看着还有几个月就拿房了,想着房子早点装修好就能早点把我的白富美娶回家了,再不用多久,我就会升职加薪,当上总经理,出任CEO,走上人生巅峰。。。想想也是在做梦呢。
    在0511论坛潜伏了很久,终日拜读各大装修神贴,因为预算限制,所以有针对性的挑了几家看似很靠谱的公司去了解,下面就挨个筛选了。
    第一轮看缘分,聊得来的咱们坐下来谈,聊不来的我喝口水就跑;
    第二轮筛价格,PASS掉了一些过高或过低的公司;
    第三轮筛服务,去扒他们客户的装修贴,看看他们在装修过程中有什么问题,最后又是怎么解决的,当然这还不够,还得去找他们的客户私聊,聊熟了最好还能去现场看;
    第四轮筛细节,例如报价的项目全不全,够不够细心,关于对增减项、量的控制等等;
    第五轮筛老板,装修过程有问题不怕,就看老板好不好沟通,做事负不负责。
    当然这只是我在选装修公司过程所参考的依据,对于设计这块,因为户型的可塑性不是太高,所以没有把设计这块放进去考虑,而且比较的几家,在户型上的设计基本一致,遇到某些设计师一些好的点子自己可以记录下来,再跟你最后确定下来的装修公司进行交流(这样貌似对出点子的设计师有点不公平,但没办法。。。种种原因使我并不能让他们公司施工,只好把点子借鉴过来了,sorry啊)
    综合比较下来,我和媳妇儿都认定金缔装饰,老板直接监工,老板娘是设计师,夫妻俩都很实在,很好沟通,很爽快的给了一个很优惠的价格,而且通过与他家做过的客户之间的了解,老板很靠谱,保证的零增项零增量都可以做到,有些小事基本都顺带帮做了,也不收费用,既然这样,那房子就交给他们了,希望不能让我失望哦!
    在此也感谢下之前帮助过我的那些装修公司和设计师,很多知识都是从他们那学来的!

    [ 本帖最后由 neal 于 15-12-20 11:21 编辑 ]




    • 来自 江苏省
    • 精华 1
    • 注册 2013-9-26
    •  

    今天收到拿房通知的挂号信了,下周拿房


    [ 本帖最后由 neal 于 15-12-20 11:23 编辑 ]




    • 来自 江苏省
    • 精华 0
    • 注册 2004-5-23
    • 行业 学生
    •  

    恭喜开贴。
    夜里写帖子




    • 来自 江苏省
    • 精华 1
    • 注册 2013-9-26
    •  


    QUOTE:
    原帖由 烟火の季节 于 15-12-20 06:05 发表
    恭喜开贴。
    夜里写帖子





    • 来自 江苏省
    • 精华 1
    • 注册 2013-9-26
    •  

    马上拿房开工要先把阳台封起来,不然这个天施工师傅要受罪了。。。继续考察封阳台




    • 来自 江苏省
    • 精华 0
    • 注册 2014-12-30
    •  

    恭喜半仙拿房开帖




    • 来自 江苏省
    • 精华 0
    • 注册 2015-5-28
    •  

    已收藏,弃帖请发大红包




    • 来自 江苏省
    • 精华 1
    • 注册 2013-9-26
    •  


    QUOTE:
    原帖由 来小猫 于 15-12-20 14:38 发表
    恭喜半仙拿房开帖
    同喜同喜




    • 来自 江苏省
    • 精华 1
    • 注册 2013-9-26
    •  


    QUOTE:
    原帖由 魔女巫巫 于 15-12-20 17:20 发表
    已收藏,弃帖请发大红包
    互相监督




    • 来自 江苏省
    • 精华 0
    • 注册 2013-11-7
    •  

    这是半仙的帖子啊,必须顶




    • 来自 江苏省
    • 精华 0
    • 注册 2011-3-19
    • 行业 房产建筑
    •  

    感谢楼主选择我们。




    • 来自 江苏省
    • 精华 1
    • 注册 2013-9-26
    •  


    QUOTE:
    原帖由 阿克 于 15-12-20 17:47 发表
    这是半仙的帖子啊,必须顶
    谢谢支持




    • 来自 江苏省
    • 精华 1
    • 注册 2013-9-26
    •  


    QUOTE:
    原帖由 金缔装饰 于 15-12-20 18:58 发表
    感谢楼主选择我们。
    交给你们我放心




    • 来自 江苏省
    • 精华 0
    • 注册 2012-10-28
    • 行业 其它
    •  
    • 来自 江苏省
    • 精华 1
    • 注册 2013-9-26
    •  


    QUOTE:
    原帖由 yj4431363 于 15-12-20 19:33 发表
    恭喜开帖
    谢谢




    • 来自 江苏省
    • 精华 9
    • 注册 2005-10-29
    • 晒家
    •  

    半仙嘛




    • 来自 江苏省
    • 精华 1
    • 注册 2004-7-9
    •  

    恭喜半仙侄儿拿房开贴




    • 来自 江苏省
    • 精华 0
    • 注册 2015-3-14
    •  

    恭喜半仙儿小侄子开帖




    • 来自 江苏省
    • 精华 1
    • 注册 2013-9-26
    •  


    QUOTE:
    原帖由 my0511小妖 于 15-12-21 09:25 发表
    半仙嘛
    妖版光临,蓬荜生辉




    • 来自 江苏省
    • 精华 0
    • 注册 2014-5-17
    • 行业 商业贸易
    •  

    恭喜开贴




    • 来自 江苏省
    • 精华 1
    • 注册 2013-9-26
    •  


    QUOTE:
    原帖由 大猫咪咪 于 15-12-21 14:38 发表
    恭喜半仙侄儿拿房开贴
    谢谢猫姨




    • 来自 江苏省
    • 精华 1
    • 注册 2013-9-26
    •  


    QUOTE:
    原帖由 鱼儿爱吃食 于 15-12-21 14:42 发表
    恭喜半仙儿小侄子开帖
    被你都发现了




    • 来自 江苏省
    • 精华 1
    • 注册 2013-9-26
    •  


    QUOTE:
    原帖由 镇江德国都芳漆 于 15-12-21 14:42 发表
    恭喜开贴
    谢谢




    • 来自 江苏省
    • 精华 0
    • 注册 2015-3-14
    •  


    QUOTE:
    原帖由 neal 于 15-12-20 03:26 发表
    一个偶然的机会我了解到现在的公司去我们学校招聘(其实是我从学校网站上查到的),镇江的!镇江在哪?问了下度娘,原来和南京这么近,好,来!(为什么离南京近我就来了,打死我也不会告诉你的)
    我知道,离你老家近嘛




    • 来自 江苏省
    • 精华 0
    • 注册 2004-2-12
    •  

    恭喜恭喜,们先围观,以后取经




    • 来自 江苏省
    • 精华 1
    • 注册 2013-9-26
    •  


    QUOTE:
    原帖由 小天使66 于 15-12-21 14:45 发表
    恭喜恭喜,们先围观,以后取经
    我就是跟着别人取到了不少好处




    • 来自 江苏省
    • 精华 1
    • 注册 2013-9-26
    •  

    据说上首页了,吓尿了


    [ 本帖最后由 neal 于 15-12-21 19:14 编辑 ]




    • 来自 江苏省
    • 精华 0
    • 注册 2011-5-7
    • 行业 房产建筑
    •  

    精华 0
    注册 11-5-7
    行业 房产建筑

     



    你好,恭喜开装新房
           在12-26号(本周六)红星美凯龙四大品牌超级联盟的活动,品牌包括:美的吊顶,丽博橱柜。诗尼曼衣柜,芬琳漆,都是年底冲量价,价格超级优惠,而且联购礼品更有惊喜,机会不容错过,如有意向参加,请联系0511-89989178.15152932652,进行预定名额。我们会为你预留一张你专属的联购号码哦!




    • 来自 江苏省
    • 精华 1
    • 注册 2015-12-21
    •  

    恭喜小桂半仙




    • 来自 江苏省
    • 精华 80
    • 注册 2002-10-17
    • 行业 轻工化工
    • 五一劳动节
    •  

    恭喜半仙拿房开贴
    话说我一直以为你早开装了,都订了那么多东西




    • 来自 江苏省
    • 精华 0
    • 注册 2015-3-14
    •  


    QUOTE:
    原帖由 neal 于 15-12-21 14:43 发表


    谢谢猫姨
    谢你猫姨,为毛不谢我




    • 来自 江苏省
    • 精华 0
    • 注册 2014-4-18
    •  

    恭喜半仙拿房开帖




    • 来自 江苏省
    • 精华 0
    • 注册 2014-4-18
    •  


    QUOTE:
    原帖由 鱼儿爱吃食 于 15-12-21 16:59 发表

    谢你猫姨,为毛不谢我
    就是坚决抵制区别对待




    • 来自 江苏省
    • 精华 0
    • 注册 2015-3-28
    •  

    好励志




    • 来自 江苏省
    • 精华 1
    • 注册 2013-9-26
    •  


    QUOTE:
    原帖由 米奇嘛嘛 于 15-12-21 15:53 发表
    恭喜小桂半仙
    以后串门




    • 来自 江苏省
    • 精华 1
    • 注册 2013-9-26
    •  


    QUOTE:
    原帖由 青藤紫英 于 15-12-21 15:58 发表
    恭喜半仙拿房开贴
    话说我一直以为你早开装了,都订了那么多东西
    趁着有空早定早了,争取明年5月结束




    • 来自 江苏省
    • 精华 1
    • 注册 2013-9-26
    •  


    QUOTE:
    原帖由 鱼儿爱吃食 于 15-12-21 16:59 发表

    谢你猫姨,为毛不谢我
    谢谢谢谢谢谢谢谢谢谢谢谢谢谢谢谢谢谢谢谢谢谢谢谢谢谢谢谢谢谢谢谢谢谢谢谢谢谢谢谢谢谢谢谢谢谢谢谢谢谢谢谢谢谢谢谢谢谢谢谢谢谢谢谢谢谢谢谢谢谢谢谢谢谢谢谢谢谢谢谢谢谢谢谢




    • 来自 江苏省
    • 精华 1
    • 注册 2013-9-26
    •  


    QUOTE:
    原帖由 悠闲的鱼儿 于 15-12-21 17:22 发表

    就是坚决抵制区别对待
    你们表这样,我都是谢过了




    • 来自 江苏省
    • 精华 1
    • 注册 2013-9-26
    •  


    QUOTE:
    原帖由 悠闲的鱼儿 于 15-12-21 17:21 发表
    恭喜半仙拿房开帖
    你们好给面子,都来逛了一遍,谢谢帮主




    • 来自 江苏省
    • 精华 1
    • 注册 2013-9-26
    •  


    QUOTE:
    原帖由 我家小二子 于 15-12-21 18:16 发表
    好励志
    有嘛?还好还好




    • 来自 江苏省
    • 精华 1
    • 注册 2014-7-12
    •  

    恭喜楼主拿房  






    • 来自 江苏省
    • 精华 0
    • 注册 2008-12-12
    • 行业 旅游交通
    •  

    给金缔的新同学顶顶。




    • 来自 江苏省
    • 精华 1
    • 注册 2013-9-26
    •  


    QUOTE:
    原帖由 yyww1121 于 15-12-22 00:01 发表
    给金缔的新同学顶顶。
    我在选装修公司的时候,可是看过你的帖子




    • 来自 江苏省
    • 精华 1
    • 注册 2013-9-26
    •  

    拿房资料已准备齐全,等待明天上午去拿房




    • 来自 江苏省
    • 精华 5
    • 注册 2009-9-27
    • 行业 学生
    •  

    恭喜开贴




     410  1/9  1  2  3  4  5  6  7  8  9  > 
    查看积分策略说明快速回复主题
    您目前还是游客,请 登录注册
    您目前是游客,本帖已被系统设置了自动关闭,不可回复!

    0/5000字

     
    < >
     

    Powered by Discuz! X 2 0.102383 s 清除 Cookies - 镇江网友之家 - 手机版
    论坛导航 关闭