| 标题
快捷导航

精彩推荐:MY0511客户端下载

    • 中信银行镇江分行

    • 公益体彩 乐善人生

    • 鹏龙鸿蒙

    • 天然石材·人造石

    » 梦溪论坛 » 家庭装修 » 观澜顶复,我的家,成长记录篇----我要吐糟
    家庭装修  >  [装修日记] 观澜顶复,我的家,成长记录篇----我要吐糟     
    查看: 59012  回复: 223
     224  1/5  1  2  3  4  5  > 
    [装修日记] 观澜顶复,我的家,成长记录篇----我要吐糟      查看: 59012  回复: 223
    • 来自 江苏省
    • 精华 0
    • 注册 2012-10-2
    • 行业 电子制造
    •  
    观澜顶复,我的家,成长记录篇----我要吐糟

    观澜顶复,我的家,从今天起将会一天天成长起来,我希望他会长成我理想中的舒适温暖的家,这个家,在于随意,不要刻意,去繁就简,亲近自然。

    筑一书斋,架上满堆书卷,阳台盛栽花竹,伏案于桌几,清气凛然,修身养性,意随茶香,岂不快哉!


    【小区名称】:江山明洲

    【所在楼层】:11-12楼
    【建筑面积】:247  
    【装修风格】:新中式
    【包工方式】:半包
    【装修公司】:楼兰
    【设  计 师】:徐向前
    【项目经理】:张总
    【开工日期】:2016年5月18
    【装修预算】:量入为出,合理控制


    [ 本帖最后由 芳草芳 于 16-8-12 11:35 编辑 ]





                      
    • 来自 江苏省
    • 精华 0
    • 注册 2012-10-2
    • 行业 电子制造
    •  
    开工篇

    我的小窝,今天开工了,咱也不能免俗,苹果\桔子\糕,最重要的是鞭炮,一样不少,对了,还有一项,锤子
    鞭炮响起


    开工准备


    [ 本帖最后由 芳草芳 于 16-5-19 10:13 编辑 ]




    • 来自 江苏省
    • 精华 0
    • 注册 2012-10-2
    • 行业 电子制造
    •  
    发贴真不容易

    发了两张照片,把我皮了一身的汗,不容易,真不容易
    真可谓是看贴容易,写贴不易!

    装大写贴的大神们,请收下我的膝盖

    从拿房起,我就一直在看贴,学习,希望能跟着大神们的脚步亦步亦趋,所谓站在巨人们的肩膀上,是不是会更接近我的理想小屋呢?

    那会,我看贴时,从没觉得写贴难,可今天轮到自己写贴了,才发现好难!

    文字没有风格,没有文采,这就算了,发个照片也费事的,不会压缩,总之一个字难!




    • 来自 江苏省
    • 精华 2
    • 注册 2003-1-2
    • 行业 其它
    •  
    • 来自 江苏省
    • 精华 0
    • 注册 2012-10-2
    • 行业 电子制造
    •  

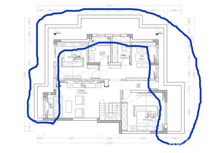
    户型图来喽
    一楼平面图

    二楼平面图


    [ 本帖最后由 芳草芳 于 16-5-19 10:15 编辑 ]




    • 来自 江苏省
    • 精华 0
    • 注册 2012-10-2
    • 行业 电子制造
    •  


    QUOTE:
    原帖由 moka 于 16-5-18 21:15 发表
    开工大吉
    谢谢啦




    • 来自 江苏省
    • 精华 0
    • 注册 2016-5-8
    •  

    祝楼主开工大吉




    • 来自 江苏省
    • 精华 0
    • 注册 2008-2-24
    • 行业 医疗卫生
    •  
    • 来自 江苏省
    • 精华 0
    • 注册 2016-5-8
    •  

    祝楼主开工大吉




    • 来自 江苏省
    • 精华 10
    • 注册 2003-2-25
    • 行业 其它
    • 家装达人 晒家
    •  

    恭喜开工,今年大户型开帖的特别多




    • 来自 江苏省
    • 精华 0
    • 注册 2012-10-2
    • 行业 电子制造
    •  
    设计公司的选择

    设计公司的选择
    楼兰装饰,最初并不在我的选择范围,我在装大里头看到了好些好的设计师,他们的设计非常有设计感,其实我也并不是很能理解何谓设计感,但就是那种感觉,他不是将一堆潮流元素简单的堆积在一起,好的设计师能理解客户的需求,将客户的心声通过设计展现出来,那里面有着感情\理念,有着融合之美,有着对比和统一。但这样的设计师可遇不可求,我心仪的设计师一是档期得等,另一是价码超出预算。我并不是一个冲动的人,不是为了自己的喜欢不顾一切的人,也许这是年龄的原因,我老了。

    在选择装修公司的过程中,我接触过各类的装修公司,大公司小公司甚至于个体承包,这个过程,如果要我去总结的话,一言概之,水好深,形形色色的材料,我想说我真的搞不懂!但多年的工作经验告诉我,做生意总是要赚钱,不赚钱的生意是没人做的,所以不要听信低价传说,更不要以为你会拿到市场上的最低价,那些都不过是商家的噱头而已!对于装修公司的选择也是一样,不要去看低总价,要细分各项目,看各项目的单价,如果还是觉得难,我们可以将方案统一后,再询各个装修公司,这样你就只要看总价的高低了。总之,这个过程不易!

    最后选择楼兰,是在开工前一天才决定的,是他们的诚意让我做了这个决定。选择他们并不是他们的装修价格低,我只是在想,与其选择老牌公司,不如选择新公司,他们是一群有梦想的人,助力年轻人的梦想,又何偿不可呢?



    [ 本帖最后由 芳草芳 于 16-5-19 10:16 编辑 ]




    • 来自 江苏省
    • 精华 0
    • 注册 2012-10-2
    • 行业 电子制造
    •  


    QUOTE:
    原帖由 单纯 于 16-5-18 21:38 发表
    祝楼主开工大吉
    谢谢啦




    • 来自 江苏省
    • 精华 0
    • 注册 2012-10-2
    • 行业 电子制造
    •  


    QUOTE:
    原帖由 田田123 于 16-5-18 21:40 发表
    开工大吉
    感谢




    • 来自 江苏省
    • 精华 0
    • 注册 2012-10-2
    • 行业 电子制造
    •  


    QUOTE:
    原帖由 单纯 于 16-5-18 21:40 发表
    祝楼主开工大吉
    谢谢谢谢




    • 来自 江苏省
    • 精华 0
    • 注册 2012-10-2
    • 行业 电子制造
    •  


    QUOTE:
    原帖由 yanglei79 于 16-5-18 21:43 发表
    恭喜开工,今年大户型开帖的特别多
    大神来捧场了,谢谢哦




    • 来自 江苏省
    • 精华 0
    • 注册 2012-5-20
    • 行业 房产建筑
    •  

    祝开工大吉!




    • 来自 江苏省
    • 精华 0
    • 注册 2016-1-4
    •  

    开业大吉开业大吉




    • 来自 江苏省
    • 精华 2
    • 注册 2004-2-3
    •  

    邻居动作真快,都开工啦




    • 来自 江苏省
    • 精华 0
    • 注册 2012-10-2
    • 行业 电子制造
    •  
    主材清单

    主材清单

    目前已定主材或比较喜欢的:

    橱柜:志邦

    地暖:沃乐夫

    空调:三菱电机

    洁具:

    墙纸:柔然

    浴室柜:我觉得大理石台面很漂亮,定制中

    淋浴隔断:

    家具:

    衣柜:

    瓷砖:马可波罗

    封阳台:

    油漆:都芳

    地板:

    木门:

    吊顶:

    美缝:







    • 来自 江苏省
    • 精华 0
    • 注册 2012-10-2
    • 行业 电子制造
    •  


    QUOTE:
    原帖由 kitty9281 于 16-5-19 08:41 发表
    邻居动作真快,都开工啦
    你也很快哦,我们一起加油




    • 来自 江苏省
    • 精华 0
    • 注册 2014-12-30
    •  

    恭喜邻居开工




    • 来自 江苏省
    • 精华 0
    • 注册 2012-10-2
    • 行业 电子制造
    •  
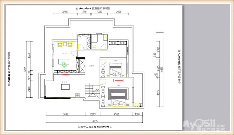
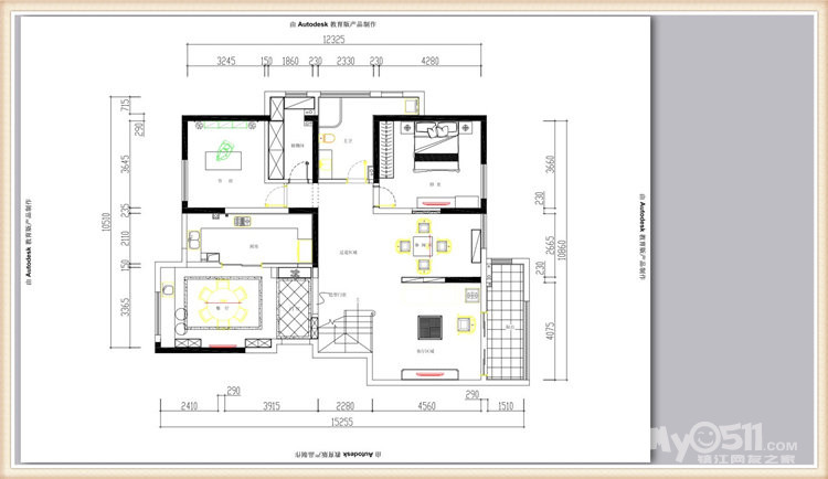
    效果图

    装修的过程总存在各种反复,曲折,我们都应当做好心理准备,积极应对,不是吗?装修之初,我总担心装修公司收费高,总想着找一个项目经理,再找一个设计师,这样装修成本会很节约,但事实证明,这并不是一件很妥当的事情。这里头我先略去1000字,总之,对于我这样的户型,还是选择装修公司会妥当些!
    楼兰的效果图还没有出来,我先将其他设计师帮我设计的效果图发上来,让大家参谋参谋。

    卧室


    餐厅


    客厅一览(2)


    客厅一览(1)





    • 来自 江苏省
    • 精华 0
    • 注册 2016-5-1
    •  

    感谢您对我们楼兰装饰的信任!我们会认真做事,给您一个完美的装修旅程!




    • 来自 江苏省
    • 精华 0
    • 注册 2012-10-2
    • 行业 电子制造
    •  


    QUOTE:
    原帖由 来小猫 于 16-5-19 10:07 发表
    恭喜邻居开工
    欢迎来指导




    • 来自 山东省
    • 精华 0
    • 注册 2016-4-21
    •  

    开工大吉





    • 来自 江苏省
    • 精华 0
    • 注册 2004-2-12
    •  

    邻居开工大吉{:鼓掌:}




    • 来自 江苏省
    • 精华 0
    • 注册 2012-10-2
    • 行业 电子制造
    •  
    关于写贴

    关于写贴
    在装大里头,我看到很多大神文采斐然,文思泉涌,或幽默风趣,或大气天成,有走清新路线的,有走技术路线,而我呢,跟这些都不沾边,怎么办呢?一直担心,这贴写了要是没人看怎么办?一直纠结着,从现浇开始,我一直在犹豫,直到开工之日,我想再不出手,这一次的装修过程我又是记录不下来,不,不行,这样不行,于是咬咬牙,跺跺脚,管他什么风格,管他有没有人气,写贴是对自己的交待,没人看我就自己看,没有捧我就自己捧,于是,晚上八点我终于出手了。我为自己点赞!




    • 来自 江苏省
    • 精华 0
    • 注册 2009-11-26
    • 行业 旅游交通
    •  


    QUOTE:
    原帖由 芳草芳 于 16-5-18 21:57 发表
    设计公司的选择
    楼兰装饰,最初并不在我的选择范围,我在装大里头看到了好些好的设计师,他们的设计非常有设计感,其实我也并不是很能理解何谓设计感,但就是那种感觉,他不是将一堆潮流元素简单的堆积在一起,好 ...
    恭喜楼主开工大吉,帖子写的通俗易懂,都是大实话和心里话,会继续关注和学习,加油




    • 来自 江苏省
    • 精华 0
    • 注册 2012-10-2
    • 行业 电子制造
    •  


    QUOTE:
    原帖由 小天使66 于 16-5-19 12:38 发表
    邻居开工大吉{:鼓掌:}





    • 来自 江苏省
    • 精华 0
    • 注册 2012-10-2
    • 行业 电子制造
    •  


    QUOTE:
    原帖由 镇江小民哥 于 16-5-19 12:24 发表
    开工大吉





    • 来自 江苏省
    • 精华 0
    • 注册 2012-10-2
    • 行业 电子制造
    •  


    QUOTE:
    原帖由 醉眠芳香 于 16-5-19 14:53 发表


    恭喜楼主开工大吉,帖子写的通俗易懂,都是大实话和心里话,会继续关注和学习,加油





    • 来自 江苏省
    • 精华 0
    • 注册 2012-10-2
    • 行业 电子制造
    •  
    关于写贴之外篇

    写贴不仅是为了纪录过程,其实还有一点非常重要的原因,是可以借这个平台跟大家伙交流。不知道大家伙是不是跟我一样,装修的时候特想找人交流,装修到哪一步啦?买什么牌子的材料啊?价格几何啊?隐蔽工程怎么处理啊?。。。。。这些信息,不装修的人都是不感兴趣的,发微信圈几乎是没人搭理的,跟朋友谈也没人接茬,跟同事谈更是无从谈起,话总不能憋着对吧?这样的平台就是让我把话说出来,多好啊,感谢0511!感谢装大!




    • 来自 江苏省
    • 精华 0
    • 注册 2012-10-2
    • 行业 电子制造
    •  
    关于买房

    首先自我批评下,我写贴没有顺序,随心所欲,性子使然,还是那话,纪录下来就好。
    买观澜之前,我将丹徒新区的联排卖了,不然我还买不起这房,但即便卖了联排,却还不够我这套项复的总价,这就是新区跟市区的房子价格差异。
    七八年前,我想有个院子的屋子,看庭前花开花落,望天上云卷云舒,于是怂恿全家出力,合计买了套新区的联排,因为是全家出力,所以没有贷款,因为不愿贷款,所以买的联排总价在当时也不高,因为小区房价的不高,所以房子升值也不多。这几个因为所以,你看着也许觉得前言不搭后语,但道尽房价的趋势:房子是越来越贵,越贵的房子升值越快,越多,买房不管是自住还是投资,买地段,越贵越买。

    买观澜前,我把江山明洲附近的联排看了个够,因为有着新区联排宽庭大院的印象,总觉得市区的联排房型都太小,200平方分三层,不大气,再有就是,价格太贵了,是我原来那套联排的两倍左右,荷包里头的米有限啊,只能放弃。然后再看叠加,其实叠加房型真比联排户型好,但关键价格也不便宜,只然再次放弃。最后看的这套顶复,视野开阔,光线充足,有露台,可养花,这不全满足我的需求了吗?满足即可,OK,成交,果断付定。

    生活,就是这么多的变化。我喜欢变化,房子变化,生活变化。

    夕阳西下


    余晖中的焦山寺


    登高望远


    新区的联排





    • 来自 江苏省
    • 精华 0
    • 注册 2016-5-1
    • 行业 其它
    •  

    祝楼主开工大吉




    • 来自 江苏省
    • 精华 0
    • 注册 2016-5-4
    •  
    • 来自 江苏省
    • 精华 0
    • 注册 2016-4-21
    •  

    观澜的环境不错,卖房买房再装修确实不容易呢




    • 来自 江苏省
    • 精华 0
    • 注册 2012-10-2
    • 行业 电子制造
    •  

    随迎小满,夏日你好








    • 来自 江苏省
    • 精华 0
    • 注册 2013-8-28
    • 行业 其它
    •  

    感谢对三菱电机中央空调,德国沃乐夫采暖的认可!!




    • 来自 江苏省
    • 精华 0
    • 注册 2012-10-2
    • 行业 电子制造
    •  
    纠结的露台

    我家露台可270度观景,这是我家露台的优点,可缺点是不成型,细长狭窄,全封阳台,成本高不说,也少了那份俯览众山小的气度,不喜欢。但不封,这露台防水该怎么做啊?露台原本就比室内高了二十多公分了,再做防水,再贴砖,这不更高了吗?还有,这防水该找谁来做呢?这一圈露台表面如何处理?全贴砖,好贵好贵,真是纠结,可有人指点一二?
    270度的露台


    [ 本帖最后由 芳草芳 于 16-5-20 14:33 编辑 ]




    • 来自 江苏省
    • 精华 0
    • 注册 2011-4-14
    • 行业 商业贸易
    •  


    QUOTE:
    原帖由 芳草芳 于 16-5-19 14:50 发表
    关于写贴
    在装大里头,我看到很多大神文采斐然,文思泉涌,或幽默风趣,或大气天成,有走清新路线的,有走技术路线,而我呢,跟这些都不沾边,怎么办呢?一直担心,这贴写了要是没人看怎么办?一直纠结着,从现浇 ...
    实实在在的装修日记




    • 来自 江苏省
    • 精华 0
    • 注册 2013-8-28
    • 行业 其它
    •  

    开工大吉!阳台赞了!




    • 来自 江苏省
    • 精华 0
    • 注册 2013-4-24
    • 行业 政府行政
    •  

    露台真大。。江景房哦。




    • 来自 江苏省
    • 精华 0
    • 注册 2012-10-2
    • 行业 电子制造
    •  

    絮絮叨叨讲了很多装修无关的事情,接下来的日子里头就正式进入装修模式了。

    这三天的工地一直在敲墙铲墙皮,现场不忍直视,好在楼兰给力,每天下班前都及时清理垃圾,为他们点个赞!

    另外,我一直好奇,既然墙皮都得铲掉,建房是干嘛要批这么层墙皮呢?GDP是不是就是这样增加的,资源浪费啊……


    敲墙中
    敲墙后


    [ 本帖最后由 芳草芳 于 16-5-23 12:00 编辑 ]




    • 来自 江苏省
    • 精华 0
    • 注册 2012-10-2
    • 行业 电子制造
    •  


    QUOTE:
    原帖由 美丽心灵555 于 16-5-21 12:40 发表
    露台真大。。江景房哦。
    露台大了,烦心的事也多了




    • 来自 江苏省
    • 精华 0
    • 注册 2008-6-24
    • 行业 其它
    •  


    QUOTE:
    原帖由 芳草芳 于 16-5-21 18:45 发表
    絮絮叨叨讲了很多装修无关的事情,接下来的日子里头就正式进入装修模式了。

    这三天的工地一直在敲墙铲墙皮,现场不忍直视,好在楼兰给力,每天下班前都及时清理垃圾,为他们点个赞!

    另外,我一直好奇,既然墙皮 ...
    这是为了看房时亮膛些,就像化妆,晚上还不得洗掉,有没有感觉浪费gdp




    • 来自 江苏省
    • 精华 0
    • 注册 2012-10-2
    • 行业 电子制造
    •  


    QUOTE:
    原帖由 是鸟非鸟 于 16-5-21 20:06 发表

    这是为了看房时亮膛些,就像化妆,晚上还不得洗掉,有没有感觉浪费gdp
    我真的觉得特浪费,铲墙皮一平方10块呢。。




    • 来自 江苏省
    • 精华 0
    • 注册 2012-10-2
    • 行业 电子制造
    •  

    昨天一天在工地,各种忙碌,各种协调,还得兼顾当娘的职责,给儿子忙饭,一天下来,累极了,晚饭后就在沙发上小眯了会,十点不到赶紧爬床上睡觉,这一觉睡得个天昏地暗,七点醒来觉得满血复活,加油!

    今天还有好几个事,一橱柜公司来量尺寸定设计,二到瓷砖店定瓷砖,总之一个字,忙!

    微博空间有各种装修知识,随手down下来,或许有用呢?


    [ 本帖最后由 芳草芳 于 16-5-23 12:09 编辑 ]




    • 来自 江苏省
    • 精华 0
    • 注册 2012-10-2
    • 行业 电子制造
    •  

    今天又是繁忙的一天!

    早起,约了志邦设计师量房,时间倒是不长,偏偏却让我碰上了电梯故障,11楼爬上去,还真是蛮费力的,不敢想象,电梯故障如果常态化怎么办!老天保佑千万不要,所幸的是,电话物业报修后约半小时,就派人来修理,这速度也是杠杠的。

    接下来,月星去定墙地砖。

    五一那会,马可波罗活动,地砖特价,冲着这特价,我下了订单,也没考虑什么质量等等因素。这些天却听说马可波罗是二线品牌,砖是山东贴牌产的,心里有些拔凉拔凉的,今天过去核实了下,说他们的砖是江西生产的,销售美女实在的很,我也不知道如何评价这砖的质量了?


    我原本是懒人想法,把家里头的墙地砖全定马可波罗的,这下子,估计得纠结纠结了。
    厨房


    地砖


    阳台


    二楼卫生间


    一楼卫生间


    [ 本帖最后由 芳草芳 于 16-5-23 11:53 编辑 ]




    • 来自 江苏省
    • 精华 0
    • 注册 2008-6-4
    • 行业 房产建筑
    •  

    [quote]原帖由 芳草芳 于 16-5-21 21:13 发表

    我真的觉得特浪费,铲墙皮一平方10块呢。。 [/quote
    应该没有必要,重新打底费钱,钱增加了碳排放。




     224  1/5  1  2  3  4  5  > 
    查看积分策略说明快速回复主题
    您目前还是游客,请 登录注册
    您目前是游客,本帖已被系统设置了自动关闭,不可回复!

    0/5000字

     
    < >
     

    Powered by Discuz! X 2 0.099494 s 清除 Cookies - 镇江网友之家 - 手机版
    论坛导航 关闭