| 标题
快捷导航

精彩推荐:MY0511客户端下载

    • 中信银行镇江分行

    • 公益体彩 乐善人生

    • 鹏龙鸿蒙

    • 天然石材·人造石

    » 梦溪论坛 » 家庭装修 » 远处是风景,近处才是生活!--北固湾田园风情小宅装修日记(木工进行中)
    家庭装修  >  [装修日记] 远处是风景,近处才是生活!--北固湾田园风情小宅装修日记(木工进行中)     
    查看: 37984  回复: 67
     68  1/2  1  2  > 
    [装修日记] 远处是风景,近处才是生活!--北固湾田园风情小宅装修日记(木工进行中)      查看: 37984  回复: 67
    • 来自 江苏省
    • 精华 1
    • 注册 2005-8-26
    • 行业 房产建筑
    •  
    远处是风景,近处才是生活!--北固湾田园风情小宅装修日记(木工进行中)

    远处是风景,近处才是生活!--北固湾田园风情小宅装修日记(木工进场)
       

    每当提起笔准备写点东西眼前总是电影般的回放数年来的生活真的是只有最快乐和最悲伤的记忆是最深刻的买北固湾的房子真的是个偶然在我们夫妻的生活计划里可能一开始没考虑买这个面积的小房子面积比现在住的要小很多但是房价飞速发展女儿转眼也快到了上学的年龄就决定买个这个小套给老人住专门接送女儿上学放学吧既然房子拿到手了,那装修必须是美美的,生活才能是美美的哦


       【小区名称】:招商北固湾

    【建筑面积】:86

    【装修风格】:美式田园

    【包工方式】:半包

    【装修公司】:今典装饰李德彪项目部

    【设公司】:拾捌环境设计中心王伟

    【开工日期】:20161015

    【装修预算】:边做边算吧

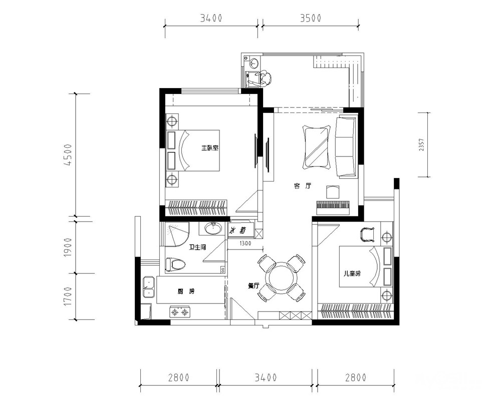
    【户型图片】


    主材品牌繁琐这里不一一列举了,有网友需要了解的可以单独私我



    [ 本帖最后由 蔸蔸熊 于 16-12-3 13:35 编辑 ]





                      
    • 来自 江苏省
    • 精华 1
    • 注册 2005-8-26
    • 行业 房产建筑
    •  

         我是一个自诩对生活品质有一定要求的人  (此处可以有鄙视哦),装修从一开始计划,我就准备把设计和施工分开进行的,对我来讲装修公司是比较好选择的,因为只是考虑施工技术层面,是有理论数据和现场实景可以考察到的,而设计是一个家的核心所在,必须跟我从生活方式到审美逼格相统一的才行。设计和施工分开进行,也避免了一些装修公司为了利润而让设计让步,这一点对于业主是很重要的。选择拾捌设计,选择王工设计,是从开始交流到后期的图纸沟通,真的是一拍即合。对于生活美学的分享,我很受用,也很期待,(后期还会有软装跟踪设计哦)



    [ 本帖最后由 蔸蔸熊 于 16-11-3 11:15 编辑 ]




    • 来自 江苏省
    • 精华 1
    • 注册 2005-8-26
    • 行业 房产建筑
    •  



    [ 本帖最后由 蔸蔸熊 于 16-11-3 11:19 编辑 ]



    定稿平面图




    • 来自 江苏省
    • 精华 1
    • 注册 2005-8-26
    • 行业 房产建筑
    •  

    选择李德彪李经理作为我家的装修负责任,我是就近考察了北固湾几个在建业主的施工现场,做的选择,从责任心到跟设计师的配合度,再到对施工的管理和验收细节,我都比较满意,为了有广告嫌疑我就不多说了,发一点前期照片吧

        开工啦

    [ 本帖最后由 蔸蔸熊 于 16-11-3 11:59 编辑 ]




    • 来自 江苏省
    • 精华 1
    • 注册 2005-8-26
    • 行业 房产建筑
    •  

    一开始貌似都是拆拆拆




    • 来自 江苏省
    • 精华 1
    • 注册 2005-8-26
    • 行业 房产建筑
    •  





    [ 本帖最后由 蔸蔸熊 于 16-11-3 11:24 编辑 ]




    • 来自 江苏省
    • 精华 0
    • 注册 2007-7-15
    • 行业 房产建筑
    •  

    恭喜楼主,多上照片多发图哦




    • 来自 江苏省
    • 精华 0
    • 注册 2007-7-15
    • 行业 房产建筑
    •  

    效果图没上,还保密哦




    • 来自 上海
    • 精华 3
    • 注册 2007-4-20
    • 行业 商业贸易
    •  

    先上效果图撒~




    • 来自 江苏省
    • 精华 1
    • 注册 2005-8-26
    • 行业 房产建筑
    •  


    QUOTE:
    原帖由 点亮空间 于 16-11-3 11:36 发表
    先上效果图撒~
    对于效果图,最先要致歉设计师,开工前几天,突然大改动,看开女人一般都是看心情做事,所以效果图还是原方案的,现发给大家瞅瞅,也不排除心情大变又改回来

    [ 本帖最后由 蔸蔸熊 于 16-11-3 11:46 编辑 ]




    • 来自 江苏省
    • 精华 1
    • 注册 2005-8-26
    • 行业 房产建筑
    •  

    水电也结束了




    • 来自 江苏省
    • 精华 1
    • 注册 2005-8-26
    • 行业 房产建筑
    •  

    现场很整洁



    [ 本帖最后由 蔸蔸熊 于 16-11-3 11:48 编辑 ]




    • 来自 江苏省
    • 精华 1
    • 注册 2005-8-26
    • 行业 房产建筑
    •  







    [ 本帖最后由 蔸蔸熊 于 16-11-3 11:50 编辑 ]








    • 来自 江苏省
    • 精华 1
    • 注册 2005-8-26
    • 行业 房产建筑
    •  

    瓷砖楼主是自己渠道内部采购的,这里就不详细说明品牌了,各位等着看图吧




    • 来自 上海
    • 精华 0
    • 注册 2004-4-5
    • 行业 其它
    •  

    效果图很赞 期待更高要求的更改后成品 图图图图\(≧▽≦)/




    • 来自 江苏省
    • 精华 0
    • 注册 2015-2-1
    •  


    QUOTE:
    原帖由 蔸蔸熊 于 16-11-3 11:14 发表
         我是一个自诩对生活品质有一定要求的人  (此处可以有鄙视哦),装修从一开始计划,我就准备把设计和施工分开进行的,对我来讲装修公司是比较好选择的,因为只是考虑施工技术层面,是有理论数据和 ...
    是外国语学区?




    • 来自 江苏省
    • 精华 0
    • 注册 2006-8-13
    • 行业 教育科研
    •  

    我也打算考虑这个户型,楼主飘窗砸了,空调外机打算怎么放?




    • 来自 江苏省
    • 精华 0
    • 注册 2013-7-6
    • 行业 学生
    •  


    QUOTE:
    原帖由 蔸蔸熊 于 16-11-3 11:49 发表
    [attach]21327903[/attach]



    [attach]21327899[/attach]
    敲墙的垃圾没清理干净,就铺水电,这能叫整洁




    • 来自 江苏省
    • 精华 0
    • 注册 2013-12-30
    •  

    我就一个疑问,冬季不是不建议装修么?




    • 来自 江苏省
    • 精华 26
    • 注册 2011-3-21
    • 行业 医疗卫生
    • 我是车主 小花农 家有萌猫 钓鱼达人
    •  

    天哪,内飘窗也敲。。。我们小区发现就立即停工恢复。。。




    • 来自 江苏省
    • 精华 1
    • 注册 2005-9-17
    •  

    这个户型实际得房率接近100%




    • 来自 江苏省
    • 精华 0
    • 注册 2015-1-3
    •  

    那边房价多少啊




    • 来自 江苏省
    • 精华 0
    • 注册 2014-1-25
    • 行业 房产建筑
    •  

    恭喜开贴




    • 来自 江苏省
    • 精华 0
    • 注册 2016-4-24
    •  

    邻居你好




    • 来自 江苏省
    • 精华 3
    • 注册 2008-5-21
    • 行业 其它
    •  

    楼主,房子买了多少钱一平?




    • 来自 江苏省
    • 精华 1
    • 注册 2005-8-26
    • 行业 房产建筑
    •  


    QUOTE:
    原帖由 Garycc 于 16-11-3 15:33 发表

    敲墙的垃圾没清理干净,就铺水电,这能叫整洁
    这个当时施工师傅跟我沟通过,我认为不影响下一步,而且打扫处理过就好了,下次把你的意见反映给他,让他加强管理




    • 来自 江苏省
    • 精华 1
    • 注册 2005-8-26
    • 行业 房产建筑
    •  


    QUOTE:
    原帖由 snowppl 于 16-11-3 23:46 发表
    邻居你好





    • 来自 江苏省
    • 精华 1
    • 注册 2005-8-26
    • 行业 房产建筑
    •  


    QUOTE:
    原帖由 乞丐羊 于 16-11-3 16:26 发表
    天哪,内飘窗也敲。。。我们小区发现就立即停工恢复。。。
    别人家也敲了,物业也允许的,不影响结构




    • 来自 江苏省
    • 精华 1
    • 注册 2005-8-26
    • 行业 房产建筑
    •  


    QUOTE:
    原帖由 羊坨坨24 于 16-11-3 15:56 发表
    我就一个疑问,冬季不是不建议装修么?
    没有这个说法,不然装修公司不是放假了吗




    • 来自 江苏省
    • 精华 1
    • 注册 2013-6-8
    • 行业 其它
    •  

    进来看看,相同的进度,相互学习哦




    • 来自 江苏省
    • 精华 1
    • 注册 2005-8-26
    • 行业 房产建筑
    •  

    [quote]原帖由 爱上六月天 于 16-11-4 16:08 发表
    进来看看,相同的进度,相互学习哦 [/quote






    • 来自 江苏省
    • 精华 0
    • 注册 2007-7-15
    • 行业 房产建筑
    •  

    楼主多发照片多分享哦




    • 来自 江苏省
    • 精华 0
    • 注册 2016-3-2
    •  


    QUOTE:
    原帖由 Garycc 于 16-11-3 15:33 发表

    敲墙的垃圾没清理干净,就铺水电,这能叫整洁
    这个应该是开槽的垃圾,不过线都排好了垃圾都还没清走




    • 来自 江苏省
    • 精华 1
    • 注册 2005-8-26
    • 行业 房产建筑
    •  

    生活就是数不清的鸡毛蒜皮拼凑成的一幅印象画,近看斑斑点点,远看就是一幅巨制。最近在选材时各种纠结,各种比较,虽然常常头大,居然也乐在其中。果然每件事情的参与感才是一种享受,各位正在装修或者准备装修的网友们,设计师告诉我亲力亲为才是量身定制,我很认同,可以照搬别人的造型,但是无法拷贝别人的生活,自己的家必须是最适合自己的。   瓦工就要进场喽

    [ 本帖最后由 蔸蔸熊 于 16-11-6 14:51 编辑 ]




    • 来自 江苏省
    • 精华 1
    • 注册 2005-8-26
    • 行业 房产建筑
    •  






    • 来自 江苏省
    • 精华 0
    • 注册 2014-7-26
    •  

    不错  不错




    • 来自 江苏省
    • 精华 1
    • 注册 2005-8-26
    • 行业 房产建筑
    •  






    • 来自 江苏省
    • 精华 1
    • 注册 2005-8-26
    • 行业 房产建筑
    •  



    [ 本帖最后由 蔸蔸熊 于 16-11-18 15:19 编辑 ]




    • 来自 江苏省
    • 精华 1
    • 注册 2005-8-26
    • 行业 房产建筑
    •  

    忙忙碌碌这么多天,好像也没有什么重要的大事发生,可是居然把这个帖子完全抛在了脑后,不知网友是否有同感,果然本人没有做网络达人的潜质




    • 来自 江苏省
    • 精华 0
    • 注册 2007-7-15
    • 行业 房产建筑
    •  

    我也经常忘事,关键是还忘的很干净,楼主家完工咋样了




    • 来自 江苏省
    • 精华 1
    • 注册 2008-8-23
    • 行业 商业贸易
    •  

    楼主,瓷砖贴完了吗,可以上点图片啊。




    • 来自 江苏省
    • 精华 0
    • 注册 2008-5-14
    • 行业 商业贸易
    •  

    效果不错




    • 来自 江苏省
    • 精华 0
    • 注册 2016-6-3
    •  

    效果图漂亮




    • 来自 江苏省
    • 精华 0
    • 注册 2008-5-29
    • 行业 旅游交通
    •  

    同户型,学习了.




    • 来自 江苏省
    • 精华 0
    • 注册 2016-11-7
    •  

    顶贴




    • 来自 江苏省
    • 精华 1
    • 注册 2005-8-26
    • 行业 房产建筑
    •  

    一晃已经到了下雪的时节,上次是准备上瓷砖照片的,可惜网络频繁出错,,今天补上吧

    卫生间


    厨房


    阳台地面


    [ 本帖最后由 蔸蔸熊 于 16-11-24 11:57 编辑 ]




    • 来自 江苏省
    • 精华 1
    • 注册 2005-8-26
    • 行业 房产建筑
    •  

    客厅准备大面积铺地板,所以瓷砖量也不大,为了给后续其它配置留有余地,瓷砖并没有选的太花哨,厨房部分实物补照片亮,拍摄时是晚上,光线不好。话说最近真是冷,木工在这个时节悄然进场




    • 来自 江苏省
    • 精华 1
    • 注册 2005-8-26
    • 行业 房产建筑
    •  


    QUOTE:
    原帖由 雅然 于 16-11-22 11:44 发表
    同户型,学习了.
    邻居啊,动工了吗




    • 来自 上海
    • 精华 0
    • 注册 2004-4-5
    • 行业 其它
    •  

    厨房瓷砖好靓 来 私一下笑*^_^*




    • 来自 江苏省
    • 精华 1
    • 注册 2008-8-23
    • 行业 商业贸易
    •  


    QUOTE:
    原帖由 蔸蔸熊 于 16-11-24 11:55 发表
    一晃已经到了下雪的时节,上次是准备上瓷砖照片的,可惜网络频繁出错,,今天补上吧[attach]21439973[/attach]

    [attach]21439972[/attach]

    [attach]21439970[/attach]

    [attach]21439971[/att ...
    瓷砖很清爽。




     68  1/2  1  2  > 
    查看积分策略说明快速回复主题
    您目前还是游客,请 登录注册
    您目前是游客,本帖已被系统设置了自动关闭,不可回复!

    0/5000字

     
    < >