收藏本站
客户端
扫码下载客户端
官方微信
打开微信扫一扫
登录
|
注册
|
标题
标题
用户
全站首页
|
论坛导航
|
网络问政
|
招聘求职
|
买房租房
|
装修频道
|
生活服务
|
教育
|
相亲
|
亲子
|
美食
|
婚嫁
|
手机客户端
家有学子
|
母婴乐园
快捷导航
精彩推荐:
MY0511客户端下载
中信银行镇江分行
公益体彩 乐善人生
鹏龙鸿蒙
天然石材·人造石
»
梦溪论坛
»
家庭装修
» 给我们温馨的极简北欧风小家 装修日记 (硬装已经全部结束,下面就是软装了)
家庭装修
>
[装修日记]
给我们温馨的极简北欧风小家 装修日记 (硬装已经全部结束,下面就是软装了)
查看: 43764 回复: 146
快速回复
返回家庭装修
147
1/3
1
2
3
>
[装修日记]
给我们温馨的极简北欧风小家 装修日记 (硬装已经全部结束,下面就是软装了)
查看: 43764 回复: 146
上一主题
|
下一主题
忧郁兰色
来自 江苏省
精华
1
注册 2004-6-10
行业 其它
给我们温馨的极简北欧风小家 装修日记 (硬装已经全部结束,下面就是软装了)
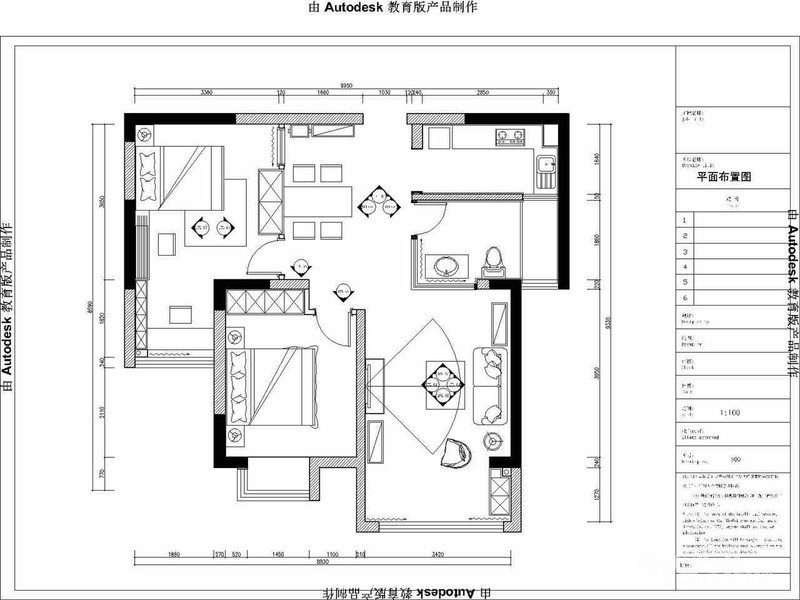
【小区名称】:黄山雅居
【所在楼层】:3楼
【建筑面积】:91平
【装修风格】:北欧、小清新
【包工方式】:半包
【装修公司】:one ok design空间设计
【设 计 师 】:施润宇
【开工日期】:2016年11月14日
【装修预算】:15万
【户型图片】:
开发商平面图
[
本帖最后由 忧郁兰色 于 17-3-30 10:22 编辑
]
已有 伊慕装饰, 老友记装饰客服
2
人打赏
2016-11-29 10:57
1楼
[联宇电脑] 电脑组装\维修\升级\企业单位电脑维护!
只看该作者
分享本楼
忧郁兰色
来自 江苏省
精华
1
注册 2004-6-10
行业 其它
以下的东西都还没有买全,会陆续更新的噢!
地板:欧家地板,M1
橱柜:司米橱柜
瓷砖:钻石墙砖
墙纸:
台盆柜:德国高仪
洁具:德国高仪
木门:
冲淋房:恒泰润
窗帘:
空调:美的风管机,大金挂机
地暖:威能
柜门:
灯具:淘宝、南京宜家
家具:林氏木业
客厅家具:林氏木业
餐厅家具:
主卧家具:林氏木业
小孩房家具:林氏木业
软配:
[
本帖最后由 忧郁兰色 于 17-3-30 10:25 编辑
]
2016-11-29 11:04
2楼
0511家装频道:本地家居服务平台,数万业主共同选择
只看该作者
分享本楼
我想有颗星星
来自 江苏省
精华
1
注册 2009-6-19
行业 其它
施设师有个性
---发自三星---
2016-11-29 11:52
3楼
MY0511相亲,一分钟注册,享一辈子幸福!
只看该作者
分享本楼
べ無與倫匕匕
来自 江苏省
精华
6
注册 2005-8-28
QUOTE:
原帖由
我想有颗星星
于 16-11-29 11:52 发表
施设师有个性
欧王好!
2016-11-29 11:56
4楼
买房、卖房、租房上镇江房产网!
只看该作者
分享本楼
忧郁兰色
来自 江苏省
精华
1
注册 2004-6-10
行业 其它
家是什么?每个人对家的理解都不会一样!我心中的家,有他有我有小她。每天早晨我们一起出门,挥手说baybay 。傍晚,我们又陆续回家,一起晚餐、看书、谈论各自的当天遇见的趣事!晚上,那个小她已进入梦乡,我与那个他也许会很默契的在阳台对坐,不需要过多的言语,一个眼神就知道对方心中所想。不管在外面遇事是顺利、是委屈甚至是被伤害,这个家永远是最后可以发泄、疗伤的地方。
认识设计师施润宇是机缘巧合,我都习惯称他为施。施是一个很有个性和想法的人,很健谈。每次他的想法和我的有冲突的时候,他都会据理力争,他和我说的最多的一句话就是:“姐,买东西悠着点啊,超预算啦!”
给你们看一张他用N条牛仔裤DIY的一副画,好有创意的是不是?
牛仔裤DIY
[
本帖最后由 忧郁兰色 于 16-11-29 12:15 编辑
]
2016-11-29 12:10
5楼
MY0511相亲,一分钟注册,享一辈子幸福!
只看该作者
分享本楼
忧郁兰色
来自 江苏省
精华
1
注册 2004-6-10
行业 其它
言归正传啦!因为考虑到家里老人不能乘电梯,所以楼层选择了3楼,又是中间户,在采光方面很不好。施在局部改造上,下了很大的功夫,把原来的客厅改成了儿童卧房及餐厅,原来的主卧改成了客厅,简直就是大变样。放两张图对比一下吧!!
开发商平面图
设计后平面图
[
本帖最后由 忧郁兰色 于 16-11-29 12:22 编辑
]
2016-11-29 12:20
6楼
MY0511相亲,一分钟注册,享一辈子幸福!
只看该作者
分享本楼
忧郁兰色
来自 江苏省
精华
1
注册 2004-6-10
行业 其它
继续上点效果图镇楼!
[
本帖最后由 忧郁兰色 于 16-12-7 09:31 编辑
]
2016-11-29 12:22
7楼
买房、卖房、租房上镇江房产网!
只看该作者
分享本楼
忧郁兰色
来自 江苏省
精华
1
注册 2004-6-10
行业 其它
找了黄道吉日11月14日开工啦
[
本帖最后由 忧郁兰色 于 16-11-29 12:29 编辑
]
2016-11-29 12:27
8楼
0511家装频道:本地家居服务平台,数万业主共同选择
只看该作者
分享本楼
忧郁兰色
来自 江苏省
精华
1
注册 2004-6-10
行业 其它
敲墙进行中,想要改革局就是敲敲补补。
[
本帖最后由 忧郁兰色 于 16-11-29 12:32 编辑
]
2016-11-29 12:30
9楼
MY0511相亲,一分钟注册,享一辈子幸福!
只看该作者
分享本楼
忧郁兰色
来自 江苏省
精华
1
注册 2004-6-10
行业 其它
红砖黄沙水泥进场,准备砌墙,可是光线真是太差了!
[
本帖最后由 忧郁兰色 于 16-11-29 12:34 编辑
]
2016-11-29 12:33
10楼
买房、卖房、租房上镇江房产网!
只看该作者
分享本楼
忧郁兰色
来自 江苏省
精华
1
注册 2004-6-10
行业 其它
速度还不错哦,水电交底了。
[
本帖最后由 忧郁兰色 于 16-11-29 12:36 编辑
]
2016-11-29 12:35
11楼
[联宇电脑] 电脑组装\维修\升级\企业单位电脑维护!
只看该作者
分享本楼
忧郁兰色
来自 江苏省
精华
1
注册 2004-6-10
行业 其它
水电施工中,看看现在的采光是不是不一样了呢!
[
本帖最后由 忧郁兰色 于 16-11-29 12:39 编辑
]
2016-11-29 12:37
12楼
[联宇电脑] 电脑组装\维修\升级\企业单位电脑维护!
只看该作者
分享本楼
88SRY18
来自 上海
精华
4
注册 2008-1-20
行业 房产建筑
路过
2016-11-29 13:46
13楼
[联宇电脑] 电脑组装\维修\升级\企业单位电脑维护!
只看该作者
分享本楼
Xiaying1991
来自 江苏省
精华 0
注册 2016-5-31
恭喜
---发自iPhone 6 Plus---
2016-11-29 15:31
14楼
MY0511相亲,一分钟注册,享一辈子幸福!
只看该作者
分享本楼
20151215
来自 江苏省
精华 0
注册 2015-12-16
加油楼主
2016-11-29 15:33
15楼
找工作,就上MY0511!
只看该作者
分享本楼
陈Y筒子
来自 江苏省
精华 0
注册 2016-11-28
祝楼主装修成功!期待新图
---发自iPhone 7 Plus---
2016-11-29 16:12
16楼
买房、卖房、租房上镇江房产网!
只看该作者
分享本楼
中南居
来自 上海
精华 0
注册 2011-6-9
行业 商业贸易
平面改造,颜色搭配都很有创意!图片上看水电工开槽、放暗盒很用心,手艺也好。现场也挺整洁,说明这家公司管理比较规范。细节决定成败!希望能看到更多的施工实景照,期待更新!关注。
2016-11-29 20:58
17楼
买房、卖房、租房上镇江房产网!
只看该作者
分享本楼
等待--未来
来自 上海
精华 0
注册 2007-2-20
行业 其它
感谢选择司米橱柜,期待完工效果哦!
2016-11-30 10:32
18楼
找工作,就上MY0511!
只看该作者
分享本楼
oneokdesign
来自 江苏省
精华 0
注册 2016-11-29
2016-11-30 23:40
19楼
0511家装频道:本地家居服务平台,数万业主共同选择
只看该作者
分享本楼
忧郁兰色
来自 江苏省
精华
1
注册 2004-6-10
行业 其它
QUOTE:
原帖由
中南居
于 2016-11-29 20:58 发表
平面改造,颜色搭配都很有创意!图片上看水电工开槽、放暗盒很用心,手艺也好。现场也挺整洁,说明这家公司管理比较规范。细节决定成败!希望能看到更多的施工实景照,期待更新!关注。
要是我的设计师看到的话,一定会很开心的
2016-12-1 11:09
20楼
[联宇电脑] 电脑组装\维修\升级\企业单位电脑维护!
只看该作者
分享本楼
忧郁兰色
来自 江苏省
精华
1
注册 2004-6-10
行业 其它
在这里要说一下,真的特别感谢施,还有项目经理贺。因为我和我老公工作都比较忙,回家又要照顾小孩,所以很多事,都是施和贺帮我做了。虽然是半包,可人家真是干的全包的活,每一个细节都帮我设想到。包括软装都帮我看好了,有实体店的告诉我电话,淘宝淘的,就发给我链接,就连物业都是他们帮我去打交道,说实话真的很感谢他们!!
水电工的手艺真不错,走线干净,活干的很漂亮!
[
本帖最后由 忧郁兰色 于 16-12-1 11:20 编辑
]
2016-12-1 11:16
21楼
MY0511相亲,一分钟注册,享一辈子幸福!
只看该作者
分享本楼
忧郁兰色
来自 江苏省
精华
1
注册 2004-6-10
行业 其它
家里卫生间管道有漏水现象,要登物业处理后才能继续了。
2016-12-1 15:51
22楼
买房、卖房、租房上镇江房产网!
只看该作者
分享本楼
ls620927
来自 江苏省
精华 0
注册 2008-12-23
行业 其它
漂亮!水电做的真好!现场井然有序非常整洁,应该是家不错的装修公司。关注了,以后装修做备选!
---发自Galaxy Note3---
2016-12-1 18:40
23楼
买房、卖房、租房上镇江房产网!
只看该作者
分享本楼
oneokdesign
来自 江苏省
精华 0
注册 2016-11-29
2016-12-1 19:56
24楼
找工作,就上MY0511!
只看该作者
分享本楼
中南居
来自 上海
精华 0
注册 2011-6-9
行业 商业贸易
祝装修成功,期待更新。楼主加油!
2016-12-1 20:11
25楼
MY0511相亲,一分钟注册,享一辈子幸福!
只看该作者
分享本楼
我想有颗星星
来自 江苏省
精华
1
注册 2009-6-19
行业 其它
水电真好
---发自三星---
2016-12-2 08:02
26楼
0511家装频道:本地家居服务平台,数万业主共同选择
只看该作者
分享本楼
oneokdesign
来自 江苏省
精华 0
注册 2016-11-29
2016-12-2 11:30
27楼
买房、卖房、租房上镇江房产网!
只看该作者
分享本楼
88SRY18
来自 上海
精华
4
注册 2008-1-20
行业 房产建筑
关注,坐等更新
2016-12-2 16:50
28楼
找工作,就上MY0511!
只看该作者
分享本楼
oneokdesign
来自 江苏省
精华 0
注册 2016-11-29
2016-12-2 23:28
29楼
0511家装频道:本地家居服务平台,数万业主共同选择
只看该作者
分享本楼
0511居民
来自 江苏省
精华 0
注册 2011-5-19
行业 教育科研
看图设计不错,水电做的赏心悦目,现场管理清爽,从楼主目前评价来看服务也细致到位。看来楼主找了个好公司!老百姓装修一套房子太不容易了,装修业鱼龙混杂,如果遇到不负责任的公司简直就是恶梦!祝楼主装修成功!期待楼主更新!
---发自Galaxy Note3---
2016-12-3 10:17
30楼
[联宇电脑] 电脑组装\维修\升级\企业单位电脑维护!
只看该作者
分享本楼
oneokdesign
来自 江苏省
精华 0
注册 2016-11-29
2016-12-3 12:50
31楼
MY0511相亲,一分钟注册,享一辈子幸福!
只看该作者
分享本楼
德国汉诺地板
来自 江苏省
精华 0
注册 2015-6-9
2016-12-3 16:31
32楼
买房、卖房、租房上镇江房产网!
只看该作者
分享本楼
oneokdesign
来自 江苏省
精华 0
注册 2016-11-29
2016-12-3 22:13
33楼
MY0511相亲,一分钟注册,享一辈子幸福!
只看该作者
分享本楼
我想有颗星星
来自 江苏省
精华
1
注册 2009-6-19
行业 其它
水电不丑
---发自三星---
2016-12-3 22:37
34楼
MY0511相亲,一分钟注册,享一辈子幸福!
只看该作者
分享本楼
法狮龙艺术吊顶
来自 江苏省
精华 0
注册 2008-9-1
行业 商业贸易
您是上次在我家定吊顶的顾客吗
2016-12-4 10:52
35楼
0511家装频道:本地家居服务平台,数万业主共同选择
只看该作者
分享本楼
88SRY18
来自 上海
精华
4
注册 2008-1-20
行业 房产建筑
恭喜
2016-12-4 12:37
36楼
找工作,就上MY0511!
只看该作者
分享本楼
镇江欧意橱柜
来自 江苏省
精华 0
注册 2016-11-7
水电看上去还是很不错的
2016-12-4 12:56
37楼
[联宇电脑] 电脑组装\维修\升级\企业单位电脑维护!
只看该作者
分享本楼
oneokdesign
来自 江苏省
精华 0
注册 2016-11-29
QUOTE:
原帖由
镇江欧意橱柜
于 16-12-4 12:56 发表
水电看上去还是很不错的
谢谢
2016-12-4 15:21
38楼
找工作,就上MY0511!
只看该作者
分享本楼
oneokdesign
来自 江苏省
精华 0
注册 2016-11-29
2016-12-4 20:09
39楼
买房、卖房、租房上镇江房产网!
只看该作者
分享本楼
忧郁兰色
来自 江苏省
精华
1
注册 2004-6-10
行业 其它
这两天一直没有更新,但这真不是我的错
。因为卫生间下水管漏水,而开发商还没解决,下面的工作就没法进行了。刚还和施施说呢,我两每天每人2个电话的催,催到物业烦赶紧解决为止。
---发自iPhone 6 Plus---
2016-12-4 23:16
40楼
MY0511相亲,一分钟注册,享一辈子幸福!
只看该作者
分享本楼
忧郁兰色
来自 江苏省
精华
1
注册 2004-6-10
行业 其它
刚接到物业电话,说是今天下午来家里维修
明天去五星把美的风管机去搞定了。
---发自iPhone 6 Plus---
2016-12-5 10:25
41楼
[联宇电脑] 电脑组装\维修\升级\企业单位电脑维护!
只看该作者
分享本楼
忧郁兰色
来自 江苏省
精华
1
注册 2004-6-10
行业 其它
QUOTE:
原帖由
中南居
于 2016-11-29 20:58 发表
平面改造,颜色搭配都很有创意!图片上看水电工开槽、放暗盒很用心,手艺也好。现场也挺整洁,说明这家公司管理比较规范。细节决定成败!希望能看到更多的施工实景照,期待更新!关注。
施施做事我放心
---发自iPhone 6 Plus---
2016-12-5 10:27
42楼
[联宇电脑] 电脑组装\维修\升级\企业单位电脑维护!
只看该作者
分享本楼
忧郁兰色
来自 江苏省
精华
1
注册 2004-6-10
行业 其它
QUOTE:
原帖由
ls620927
于 2016-12-1 18:40 发表
漂亮!水电做的真好!现场井然有序非常整洁,应该是家不错的装修公司。关注了,以后装修做备选!
我们的施施和贺贺真的没话说
---发自iPhone 6 Plus---
2016-12-5 10:29
43楼
买房、卖房、租房上镇江房产网!
只看该作者
分享本楼
忧郁兰色
来自 江苏省
精华
1
注册 2004-6-10
行业 其它
QUOTE:
原帖由
我想有颗星星
于 2016-12-2 08:02 发表
水电真好
真的呢,刚一开始我还有点不敢相信,地上那么干净
---发自iPhone 6 Plus---
2016-12-5 10:30
44楼
0511家装频道:本地家居服务平台,数万业主共同选择
只看该作者
分享本楼
忧郁兰色
来自 江苏省
精华
1
注册 2004-6-10
行业 其它
QUOTE:
原帖由
0511居民
于 2016-12-3 10:17 发表
看图设计不错,水电做的赏心悦目,现场管理清爽,从楼主目前评价来看服务也细致到位。看来楼主找了个好公司!老百姓装修一套房子太不容易了,装修业鱼龙混杂,如果遇到不负责任的公司简直就是恶梦!祝楼主装修成功 ...
你说的真是太对了,找到一家好的装修公司,真是省心不少呢!
---发自iPhone 6 Plus---
2016-12-5 10:31
45楼
[联宇电脑] 电脑组装\维修\升级\企业单位电脑维护!
只看该作者
分享本楼
忧郁兰色
来自 江苏省
精华
1
注册 2004-6-10
行业 其它
QUOTE:
原帖由
我想有颗星星
于 2016-12-3 22:37 发表
水电不丑
确实是
---发自iPhone 6 Plus---
2016-12-5 10:34
46楼
[联宇电脑] 电脑组装\维修\升级\企业单位电脑维护!
只看该作者
分享本楼
oneokdesign
来自 江苏省
精华 0
注册 2016-11-29
2016-12-5 10:48
47楼
MY0511相亲,一分钟注册,享一辈子幸福!
只看该作者
分享本楼
88SRY18
来自 上海
精华
4
注册 2008-1-20
行业 房产建筑
关注
2016-12-5 14:58
48楼
[联宇电脑] 电脑组装\维修\升级\企业单位电脑维护!
只看该作者
分享本楼
oneokdesign
来自 江苏省
精华 0
注册 2016-11-29
2016-12-5 19:10
49楼
找工作,就上MY0511!
只看该作者
分享本楼
朱明涛经理
来自 江苏省
精华 0
注册 2016-10-4
.您好打扰一下,有需要防盗门和保险箱可以我,个人旗下品牌:跃龙门防盗门/中国高端防盗门制造者,永发保险箱/世界保险箱行业领航者,地址:月星九润国际家居地下停车场旁,欢迎致电:18118411815朱明涛经理
---发自vivo---
2016-12-5 20:08
50楼
0511家装频道:本地家居服务平台,数万业主共同选择
只看该作者
分享本楼
返回家庭装修
147
1/3
1
2
3
>
快速回复主题
游客
您目前还是游客,请
登录
或
注册
您目前是游客,本帖已被系统设置了自动关闭,不可回复!
文明交流,理性发言
0/5000字
<
>
请在打开的新窗口中支付完成打赏
我已完成支付打赏
支付失败重新支付
其他金额
打赏金额:
元
确定
支付打赏
提 现
打赏人
打赏金额(元)
打赏时间
伊慕装饰
1.00
2016-11-29 16:42
老友记装饰客服
1.00
2016-11-30 16:37
Powered by
Discuz! X 2
0.083047 s
清除 Cookies
-
镇江网友之家
-
手机版
论坛导航
关闭
吃喝玩乐
饮食男女
镇江钓友之家
菜菜鸟户外
镇江单车俱乐部
镜头里的镇江
畅游天下
猫狗总动员
视觉Coffeeshop摄影部落
花鸟鱼虫
婚姻.亲子.家庭
家有学子
谈婚论嫁
女性天地
母婴乐园
婚姻生活
梦溪佳缘
装修
家庭装修
装修招标
镇江室内设计师交流
装修商家直通车
你好,镇江!
百姓话题
我要买房
0511爱心家园
市场监管•12315热线
分类信息
生活服务
闲置转让
镇江二手房/镇江租房
镇江招聘求职
教育培训
镇江二手车
商铺厂房写字楼租售
宠物市场
运动健身
卡券交易
电脑维修升级
杂货铺
其他分类信息区
兴趣爱好
HiFi音响江城沙龙
镇江市美术家协会
我爱模型
车友俱乐部
车迷之家
汽车驾培中心
运动俱乐部
镇江市冬泳、铁人三项协会
聚焦足球
镇江羽毛球
镇江乒乓球协会
镇江网球协会
镇江市自行车运动协会
热爱篮球
动力机车
合作栏目
维权热线
天翼时代
色觉影像摄影工作室
站务区
疑问与建议
网络问政
市政府工作部门
垂直管理部门
党群工作部门
其他重点单位
辖市(区)