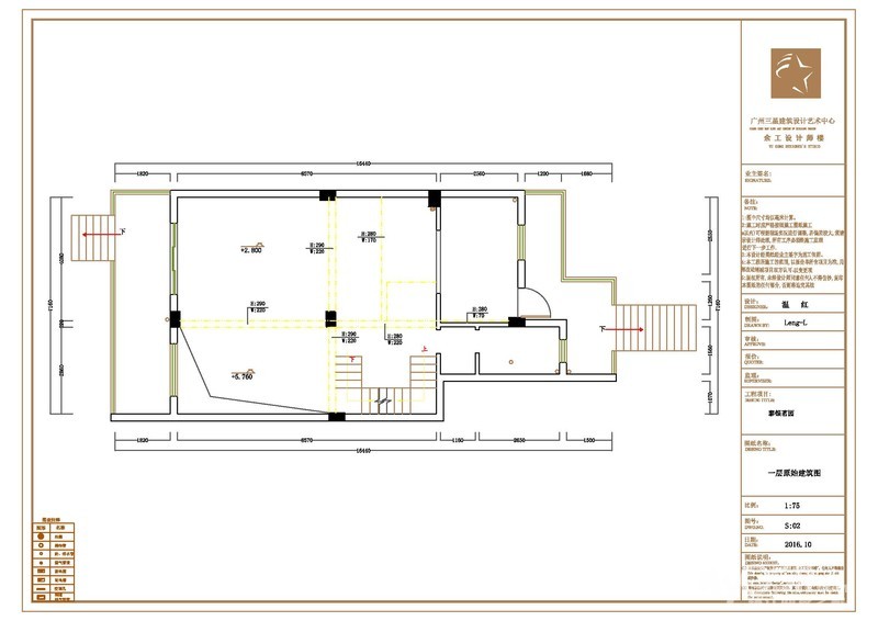
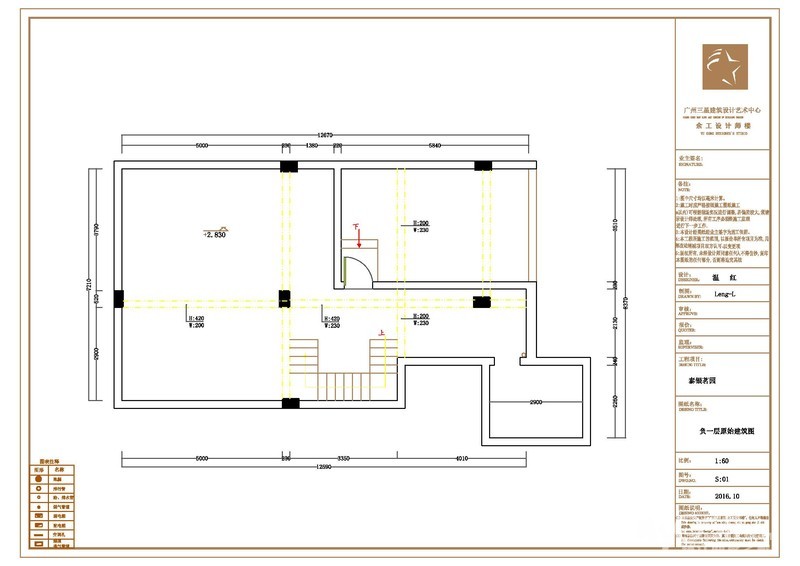
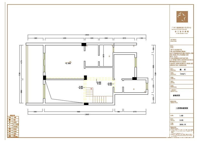
【建筑面积】:169㎡建筑面积+100 ㎡地下室+30㎡其它+40㎡花园
【装修风格】:简美【包工方式】:半包(九艺三星)
【设 计 师】:温红
【项目经理】:冷景国
【开工日期】:2016.11.29
【装修预算】:你们说60w能不能搞定呢?
【户型图】:



套用一句老话,时光如梭,光阴似箭。一转眼,又是一个轮回,明年就是本命年了,俗话说本命年都不会太顺。咋办呢,换套房子换个心情,化解我本命年的太岁。^_^以上都是玩笑话,信则有不信则无,我身为一个无神论者,基本不太信这些(虽然我是一个回族,理论上我是一个穆斯林)。 言归正传,说到装修房子上来,还记得2006年,大学毕业已经三年了,混的是一塌糊涂,存款不超过5000元;那一年在父母的支持下,买了人生的第一套房子(啃老丢人哎。。。),在丹徒新区的幸福城,那时候的丹徒新区真正是狗不拉屎鸟不生蛋,走半天都看不到一个人影,正儿八经算的上是鬼城;还记得那时候每个月要还小1000的贷款,每个月还完贷款身上只有200块,那个穷啊。一直到08年,张罗着要结婚了才开始装修,在0511上发了第一个帖子就是装修日记,为了省钱还是清包,还有幸上过首页我记得。14年帮老丈人装修了他们的回迁安置房,找了网络上口碑还不错的老友记装修;16年上半年又装修了爸妈的危房置换房,在0511上第二次写了装修日记,是我自己设计,找人施工,属于半清包,但由于工作原因,人老了也懒了,帖子算太监了。这次是我人生的第四次忙装修了,也是属于我自己的第二套房子,心里觉得不留下点回忆会有遗憾,晚上在床上拿起笔记本,打开0511,又一次点进了家庭装修板块,写下了上面的话。
以下电梯直达:
1、铂浪高 PLEON 9 厨房水槽 518345 (2016.12.07)
2、整体效果图(2016.12.07)
3、汉斯希尔前置净水器(2016.12.09)
4、大金VRV-P系列-博瑞冷暖(2017.1.1)
欢迎加入家装官方VIP群 群号:565444352
[ 本帖最后由 santon 于 17-3-21 09:01 编辑 ]















电话18352853469





