转眼间拿房已一年有余,终于在16年底下定决心将新房装修,一来因为老婆怀孕、小孩出生,自己还要上班,没有时间。二来现在和父母住家里也挺方便,暂时也不愿意单独住。到了年底也有时间了,小两口也想有点自己的空间,还是考虑装修吧!先说说装修公司:我们年轻80后现在都喜欢网上逛论坛,寻找网上口碑比较好的装修公司,网上确定了几家后我们就有目的的谈了几家,因为之前了解过,最后对其中一家印象不错,设计师简单沟通后,老板也比较爽快,给了一个合适的价格签约。
【小区名称】中建大观
【装修风格】欧式
【建筑面积】115
【装饰公司】丹凤朝阳装饰

【 设计师 】朱工
【包工方式】:半包
【开工日期】:2017.1.8
【装修预算】:未知
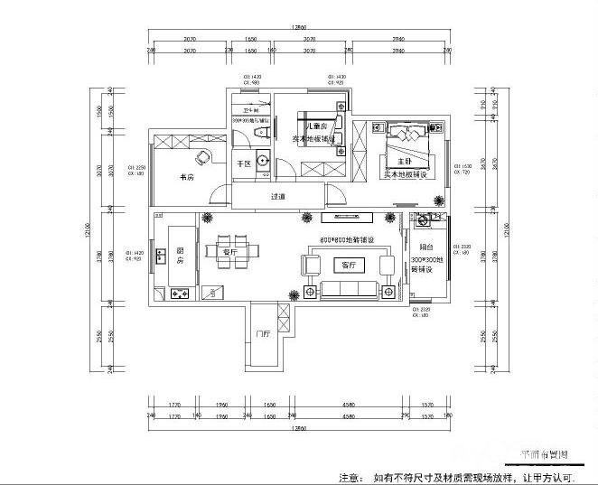
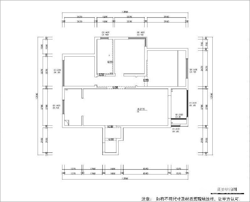
【户型图片】:
[ 本帖最后由 辰辰123 于 17-3-15 20:11 编辑 ]









主要来学习文采









点击进入 




需要提前看看图片可加微信:miao744773
