| 标题
快捷导航

精彩推荐:MY0511客户端下载

    • 中信银行镇江分行

    • 公益体彩 乐善人生

    • 鹏龙鸿蒙

    • 天然石材·人造石

    » 梦溪论坛 » 家庭装修 » 看水电隐蔽工程 多种风格样板间一网打尽,3月25日样板房直通车报名了!
    家庭装修  >  [官方活动] 看水电隐蔽工程 多种风格样板间一网打尽,3月25日样板房直通车报名了!     
    查看: 299594  回复: 55
     56  1/2  1  2  > 
    [官方活动] 看水电隐蔽工程 多种风格样板间一网打尽,3月25日样板房直通车报名了!      查看: 299594  回复: 55
    • 来自 江苏省
    • 精华 6
    • 注册 2013-5-21
    • 行业 IT 通信
    •  
    看水电隐蔽工程 多种风格样板间一网打尽,3月25日样板房直通车报名了!


    MY0511家装样板房直通车是为即将装修的童鞋打造的装修体验式活动
    零距离走进各小区正在装修或装修好的样板房
    从业资深人士在工地进行现场讲解设计/施工知识/答疑解惑
    如果您即将准备装修,赶快加入我们吧!



    活动时间:2017年3月25日(周六)下午
    集合地点:万达喜来登门口

    集合时间:3月25日13:00
    样板房提供单位:




    【点击图标了解装饰/设计公司详情】

    样板房地点及进度:
    乙 品 装 饰:     紫郡丽舍 [硬装完工]      紫晶国际
    [硬装完工]
    万家基和装饰: 黄山雅居
    [水电结束]       中建大观[整体完工]

    参观路线:
    万达——紫晶国际——紫郡丽舍——中建大观——黄山雅居——万达

    填写报名表报名(无筛选,报名即可参加):

    PS:报名后请耐心等待小编的电话哦,电话将于活动前2天拨打

    参加MY0511样板房直通车的好处
    【理由一】直击施工现场,了解施工工艺与装修过程
    【理由二】设计师、监理现场陪同讲解装修细节,解决装修疑问
    【理由三】网友之间互动交流,分享宝贵装修经验
    【理由四】公益活动全程免费,空调大巴风雨无阻
    【理由五】施工和完工样板一个不缺,感受装修多环节
    【理由六】设计师一对一解析您家户型,免费答疑解惑

    看样板房注意事项
    1.为了不耽误大家时间,请同学们尽量准时到集合地点集合
    2.有待装房平面图的朋友可带上图纸,方便设计师现场一对一解析
    3.受客观因素制约,每户仅限2个参与名额
    4.整个活动的时间不短,并且工地环境不太适合小孩子待,所以请大家尽量避免带上小孩
    5.活动过程中请参观的同学跟随设计师(监理)的讲解顺序看样板房,以便您更全面了解样板房施工工艺、工程造价和装修注意事项等
    6.设计师讲解完后可以提出您的疑问,可不要害羞~
    7.请大家配合保护好施工现场哦,因为这个也是别人的家


    有装饰公司/设计公司愿意提供样板房参观讲解的请咨询联系
    菲雪

    [ 本帖最后由 my0511菲雪 于 17-3-24 11:27 编辑 ]





                      
    • 来自 江苏省
    • 精华 6
    • 注册 2013-5-21
    • 行业 IT 通信
    •  

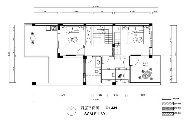
    万家基和装饰样板房信息:

    样板房地址: 黄山雅居
    设计师:周飞
    风格:新中式
    面积:135平
    承包方式:半包
    半包造价:6万
    施工进度:水电完工
    平面图:






    样板房地址:
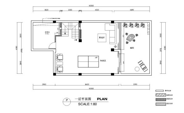
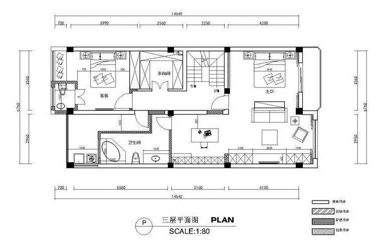
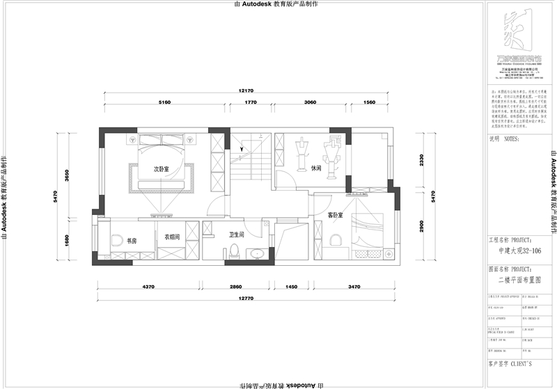
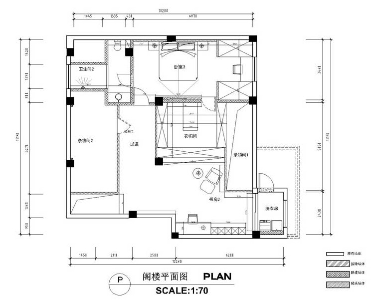
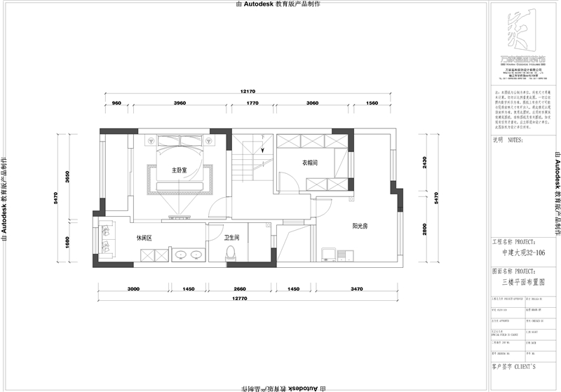
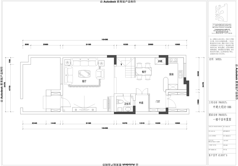
    中建大观
    设计师:朱赟
    风格:美式
    面积:300平
    承包方式:半包
    半包造价:13万
    施工进度:整体完工
    平面图:














    [ 本帖最后由 my0511菲雪 于 17-3-10 10:15 编辑 ]




    • 来自 江苏省
    • 精华 6
    • 注册 2013-5-21
    • 行业 IT 通信
    •  

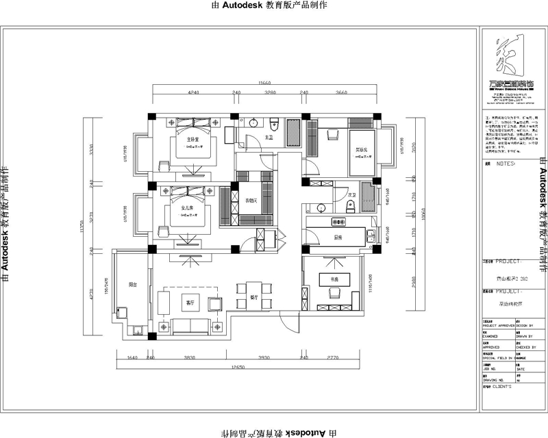
    乙品装饰样板房信息:

    样板房地址: 紫晶国际
    设计师:方军
    风格:新中式
    面积:335平
    承包方式:半包
    半包造价:18万
    施工进度:硬装完工
    平面图:








    样板房地址: 紫郡丽舍
    设计师:方军
    风格:日式
    面积:220平
    承包方式:半包
    半包造价:13万
    施工进度:硬装完工
    平面图:







    [ 本帖最后由 my0511菲雪 于 17-3-10 10:21 编辑 ]




    • 来自 江苏省
    • 精华 6
    • 注册 2013-5-21
    • 行业 IT 通信
    •  





























    如有其他装修咨询,建材砍价!请联系小编QQ:776280275或者微信



    [ 本帖最后由 my0511菲雪 于 17-3-10 10:24 编辑 ]




    • 来自 江苏省
    • 精华 6
    • 注册 2013-5-21
    • 行业 IT 通信
    •  






    • 来自 江苏省
    • 精华 0
    • 注册 2007-2-1
    • 行业 商业贸易
    •  

    跟着美女小编多看多学货比三家




    • 来自 江苏省
    • 精华 0
    • 注册 2017-1-15
    • 行业 教育科研
    •  
    • 来自 江苏省
    • 精华 220
    • 注册 2011-7-1
    • 行业 其它
    •  

    欢迎参观万家基和装饰工地,中建大观是2016年装修日记大赛特等奖是鸟非鸟网友家,欢迎参观,

    [ 本帖最后由 万家基和客服 于 17-3-10 12:54 编辑 ]




    • 来自 江苏省
    • 精华 1
    • 注册 2009-6-19
    • 行业 其它
    •  
    • 来自 江苏省
    • 精华 0
    • 注册 2011-5-18
    • 行业 教育科研
    •  

    报名1人参加




    • 来自 0
    • 精华 0
    • 注册 2017-2-22
    •  

    水电做的好不好,得看银子多不多




    • 来自 江苏省
    • 精华 10
    • 注册 2003-2-25
    • 行业 其它
    • 家装达人 晒家
    •  

    我家这个效果图方总哪找来的
    其实不能算日式,说成简约精装修更为妥当




    • 来自 江苏省
    • 精华 6
    • 注册 2013-5-21
    • 行业 IT 通信
    •  






    • 来自 江苏省
    • 精华 27
    • 注册 2008-5-4
    • 行业 房产建筑
    • 五一劳动节
    •  


    QUOTE:
    原帖由 yanglei79 于 17-3-14 10:12 发表
    我家这个效果图方总哪找来的
    其实不能算日式,说成简约精装修更为妥当
    效果图是紫晶国际的呀




    • 来自 江苏省
    • 精华 0
    • 注册 2006-8-19
    • 行业 旅游交通
    •  

    请问有宝龙挑高小公寓的装修样板房吗?




    • 来自 江苏省
    • 精华 0
    • 注册 2017-3-14
    •  
    • 来自 江苏省
    • 精华 34
    • 注册 2004-8-30
    • 行业 其它
    • 五一劳动节 功勋会员 我是车主
    •  

    前排就坐




    • 来自 江苏省
    • 精华 0
    • 注册 2017-2-26
    •  

    全是家装,没有工装吗?




    • 来自 江苏省
    • 精华 220
    • 注册 2011-7-1
    • 行业 其它
    •  


    QUOTE:
    原帖由 cgc198 于 17-3-15 08:10 发表
    全是家装,没有工装吗?
    有的,可以单独带您去看,你要看什么样的?是办公室还是饭店还是专卖店啊




    • 来自 江苏省
    • 精华 0
    • 注册 2017-2-7
    •  






    • 来自 江苏省
    • 精华 6
    • 注册 2013-5-21
    • 行业 IT 通信
    •  

    79老师家的样板房啊?那更有必要一看了




    • 来自 江苏省
    • 精华 0
    • 注册 2017-2-26
    •  


    QUOTE:
    原帖由 万家基和客服 于 2017-3-15 08:48 发表

    有的,可以单独带您去看,你要看什么样的?是办公室还是饭店还是专卖店啊
    有个小饭店想装修下、我的电话13921582289




    • 来自 江苏省
    • 精华 220
    • 注册 2011-7-1
    • 行业 其它
    •  

    欢迎参观万家基和装饰工地,中建大观是2016年装修日记大赛特等奖是鸟非鸟网友家,欢迎参观!




    • 来自 江苏省
    • 精华 220
    • 注册 2011-7-1
    • 行业 其它
    •  


    QUOTE:
    原帖由 jszj555 于 17-3-14 13:01 发表
    请问有宝龙挑高小公寓的装修样板房吗?
    你好,宝龙广场我们有几套已经完工交付的房子,您有时间的话可以来我们公司了解一下。




    • 来自 江苏省
    • 精华 8
    • 注册 2006-12-25
    • 行业 信息咨询
    • 家装达人
    •  

    想去看看大神家




    • 来自 江苏省
    • 精华 0
    • 注册 2016-7-6
    •  

    报个名




    • 来自 江苏省
    • 精华 220
    • 注册 2011-7-1
    • 行业 其它
    •  


    QUOTE:
    原帖由 笨笨的家 于 17-3-15 15:35 发表
    报个名
    欢迎参观!




    • 来自 上海
    • 精华 0
    • 注册 2011-8-29
    • 行业 其它
    •  

    想问一下,报名里说的是否需要验房量房是什么意思?




    • 来自 江苏省
    • 精华 220
    • 注册 2011-7-1
    • 行业 其它
    •  


    QUOTE:
    原帖由 得瑟小熊 于 17-3-15 20:18 发表
    想问一下,报名里说的是否需要验房量房是什么意思?
    您好,请问您家是否装修了呢?




    • 来自 上海
    • 精华 0
    • 注册 2011-8-29
    • 行业 其它
    •  


    QUOTE:
    原帖由 万家基和客服 于 17-3-16 08:27 发表

    您好,请问您家是否装修了呢?
    还没有,就是考虑要装修了




    • 来自 江苏省
    • 精华 27
    • 注册 2008-5-4
    • 行业 房产建筑
    • 五一劳动节
    •  


    QUOTE:
    原帖由 得瑟小熊 于 17-3-16 09:26 发表

    还没有,就是考虑要装修了
    那就正是参观样板房的好时候了,过程中可以和设计师项目经理直接沟通,欢迎报名哦!




    • 来自 江苏省
    • 精华 27
    • 注册 2008-5-4
    • 行业 房产建筑
    • 五一劳动节
    •  


    QUOTE:
    原帖由 cgc198 于 17-3-15 08:10 发表
    全是家装,没有工装吗?
    可以先点开了解下,公司做的茶楼,咖啡厅比较多,这两家饭店、火锅可能都去过会比较熟悉点。

    如意江南七车间咸香工坊
    http://bbs.my0511.com/f433b-t6104213z-1-1


    以及镇江地区所有的刘一手火锅
    http://bbs.my0511.com/f433b-t4915982z-1-1

    [ 本帖最后由 乙品装饰 于 17-3-16 09:57 编辑 ]




    • 来自 江苏省
    • 精华 0
    • 注册 2014-2-28
    • 行业 金融保险
    •  

    报名了




    • 来自 江苏省
    • 精华 220
    • 注册 2011-7-1
    • 行业 其它
    •  

    欢迎大家踊跃报名!

    [ 本帖最后由 万家基和客服 于 17-3-16 17:16 编辑 ]




    • 来自 江苏省
    • 精华 220
    • 注册 2011-7-1
    • 行业 其它
    •  


    QUOTE:
    原帖由 js-zjzp 于 17-3-16 14:09 发表
    报名了





    • 来自 江苏省
    • 精华 220
    • 注册 2011-7-1
    • 行业 其它
    •  

    欢迎大家踊跃参与报名!




    • 来自 江苏省
    • 精华 0
    • 注册 2016-10-10
    •  

    :clapping::clapping::clapping::clapping::clapping::clapping::clapping::clapping::clapping::clapping::clapping::clapping::clapping::clapping::clapping::clapping::clapping::clapping::clapping::clapping::clapping::clapping::clapping::clapping::clapping:




    • 来自 江苏省
    • 精华 8
    • 注册 2010-9-13
    • 行业 房产建筑
    •  






    • 来自 江苏省
    • 精华 10
    • 注册 2006-5-7
    • 行业 其它
    • 五一劳动节
    •  



    [ 本帖最后由 my0511菲雪 于 17-3-20 09:40 编辑 ]




    • 来自 江苏省
    • 精华 0
    • 注册 2016-9-17
    •  






    • 来自 江苏省
    • 精华 220
    • 注册 2011-7-1
    • 行业 其它
    •  

    亲爱的业主朋友们早上好




    • 来自 江苏省
    • 精华 27
    • 注册 2008-5-4
    • 行业 房产建筑
    • 五一劳动节
    •  






    • 来自 江苏省
    • 精华 220
    • 注册 2011-7-1
    • 行业 其它
    •  






    • 来自 江苏省
    • 精华 0
    • 注册 2013-4-17
    • 行业 商业贸易
    •  






    • 来自 江苏省
    • 精华 1
    • 注册 2017-2-26
    •  


    QUOTE:
    原帖由 得瑟小熊 于 17-3-15 20:18 发表
    想问一下,报名里说的是否需要验房量房是什么意思?
    验房是装修前装修公司给您家房子检查一下,房子是否墙面有空鼓的现象,下水道的S弯是否有堵住,等问题,以免日后装修完墙面有脱皮等不必要的麻烦,量房设计师要采集您家的户型尺寸,来设计方案




    • 来自 江苏省
    • 精华 0
    • 注册 2016-9-17
    •  






    • 来自 江苏省
    • 精华 220
    • 注册 2011-7-1
    • 行业 其它
    •  

    样板房活动就在这个星期六哦!




    • 来自 江苏省
    • 精华 220
    • 注册 2011-7-1
    • 行业 其它
    •  

    万家基和期待各位的到来哦!




    • 来自 江苏省
    • 精华 67
    • 注册 2016-3-8
    • 行业 房产建筑
    •  

    活动不错




    • 来自 江苏省
    • 精华 220
    • 注册 2011-7-1
    • 行业 其它
    •  


    QUOTE:
    原帖由 江苏亿华装饰 于 17-3-22 10:39 发表
    活动不错
    感谢支持!




     56  1/2  1  2  > 
    查看积分策略说明快速回复主题
    您目前还是游客,请 登录注册
    您目前是游客,本帖已被系统设置了自动关闭,不可回复!

    0/5000字

     
    < >
     

    Powered by Discuz! X 2 0.104407 s 清除 Cookies - 镇江网友之家 - 手机版
    论坛导航 关闭