收藏本站
客户端
扫码下载客户端
官方微信
打开微信扫一扫
登录
|
注册
|
标题
标题
用户
全站首页
|
论坛导航
|
网络问政
|
招聘求职
|
买房租房
|
装修频道
|
生活服务
|
教育
|
相亲
|
亲子
|
美食
|
婚嫁
|
手机客户端
家有学子
|
母婴乐园
快捷导航
精彩推荐:
MY0511客户端下载
中信银行镇江分行
公益体彩 乐善人生
鹏龙鸿蒙
天然石材·人造石
»
梦溪论坛
»
家庭装修
» 万科魅力之城装修小记^^
家庭装修
>
[装修日记]
万科魅力之城装修小记^^
查看: 26734 回复: 90
快速回复
返回家庭装修
91
1/2
1
2
>
[装修日记]
万科魅力之城装修小记^^
查看: 26734 回复: 90
上一主题
|
下一主题
zhaoting23
来自 江苏省
精华 0
注册 2017-3-13
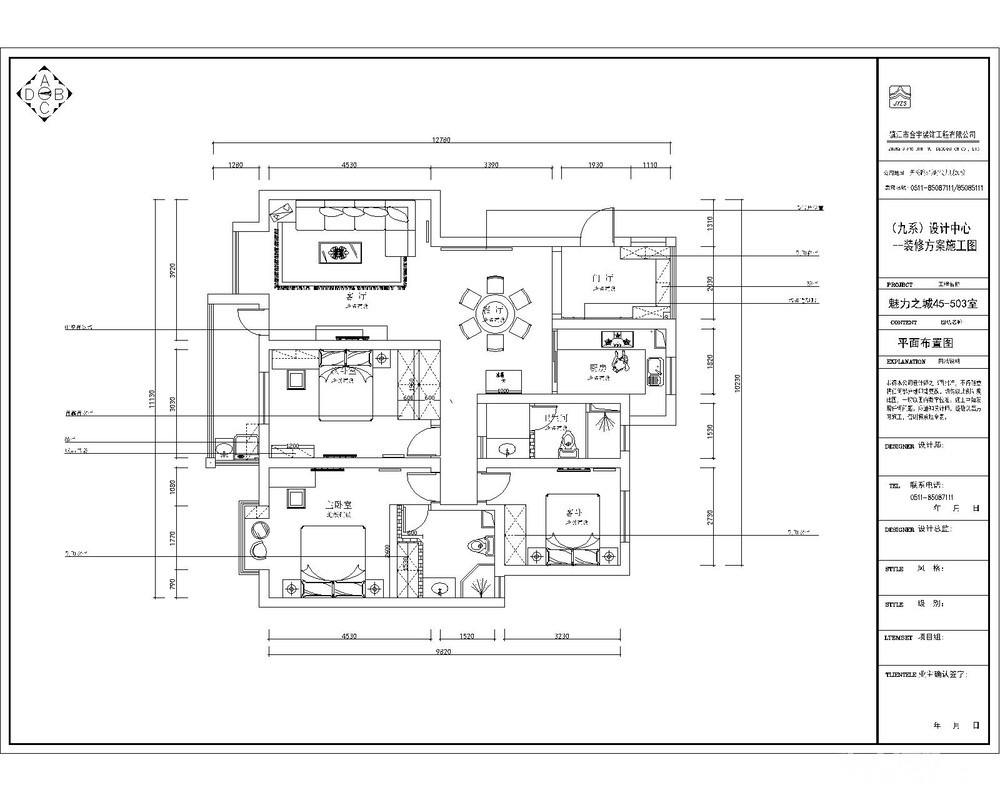
万科魅力之城装修小记^^
[2017金钢铂林地板杯]+万科魅力之城
【小区名称】:万科魅力之城
【所在楼层】:5楼
【建筑面积】:120平方米
【装修风格】:现代简约
【包工方式】:半包
【装修公司】:镇江金宇装饰
【开工日期】:2017年3月18日
【装修预算】:半包 5.2W
[
本帖最后由 zhaoting23 于 17-3-19 09:27 编辑
]
已有 伊慕装饰, 老友记装饰客服, 红居装饰
3
人打赏
2017-3-18 15:16
1楼
买房、卖房、租房上镇江房产网!
只看该作者
分享本楼
οΟ星光︶ㄣ
来自 江苏省
精华
8
注册 2006-12-25
行业 信息咨询
2017-3-18 15:26
2楼
[联宇电脑] 电脑组装\维修\升级\企业单位电脑维护!
只看该作者
分享本楼
zhaoting23
来自 江苏省
精华 0
注册 2017-3-13
对装修一点都不了解啊
2017-3-18 15:41
3楼
[联宇电脑] 电脑组装\维修\升级\企业单位电脑维护!
只看该作者
分享本楼
zhaoting23
来自 江苏省
精华 0
注册 2017-3-13
等了好久终于开工啦
晚上可以约饭庆祝咯
2017-3-18 15:51
4楼
0511家装频道:本地家居服务平台,数万业主共同选择
只看该作者
分享本楼
镇江火车迷在线
来自 江苏省
精华
6
注册 2007-11-23
行业 基础设施
一期还是二期的?
---发自iPhone 6---
2017-3-18 16:14
5楼
[联宇电脑] 电脑组装\维修\升级\企业单位电脑维护!
只看该作者
分享本楼
zhaoting23
来自 江苏省
精华 0
注册 2017-3-13
我买的是二手房也不知道几期 在实验小学旁边的
2017-3-18 16:38
6楼
0511家装频道:本地家居服务平台,数万业主共同选择
只看该作者
分享本楼
我的小鱼干呢
来自 江苏省
精华 0
注册 2017-3-6
这个公司怎么样啊 ?半包多少钱啊? 我家和你差不多大,也想最近找装修公司呢
2017-3-18 16:48
7楼
买房、卖房、租房上镇江房产网!
只看该作者
分享本楼
全友定制
来自 江苏省
精华 0
注册 2017-3-8
恭喜开工
---发自iPhone 6---
2017-3-18 16:54
8楼
买房、卖房、租房上镇江房产网!
只看该作者
分享本楼
拂晓dawnshawl
来自 江苏省
精华 0
注册 2017-2-16
半包都包了什么啊?
---发自iPhone 7 Plus---
2017-3-18 17:42
9楼
找工作,就上MY0511!
只看该作者
分享本楼
放心门窗
来自 江苏省
精华 0
注册 2017-3-10
恭喜搂主开工大吉,我是做铝合金门窗的,封阳台,请与我联系,免费上门测量,质量保证,15706103390
---发自vivo---
2017-3-18 18:06
10楼
MY0511相亲,一分钟注册,享一辈子幸福!
只看该作者
分享本楼
6666wsl
来自 江苏省
精华
8
注册 2008-7-3
行业 工业制造
小学这边是二期,我家也在这边。
---发自梦溪论坛手机客户端---
2017-3-18 18:18
11楼
找工作,就上MY0511!
只看该作者
分享本楼
优金瓷美缝
来自 江苏省
精华 0
注册 2016-10-20
行业 其它
恭喜开工
---发自iPhone 6---
2017-3-18 19:12
12楼
0511家装频道:本地家居服务平台,数万业主共同选择
只看该作者
分享本楼
欧铂丽厨房
来自 江苏省
精华 0
注册 2017-3-14
---发自OPPO---
2017-3-18 19:28
13楼
买房、卖房、租房上镇江房产网!
只看该作者
分享本楼
delarge
来自 江苏省
精华
4
注册 2008-7-25
行业 房产建筑
恭喜开工
2017-3-18 21:15
14楼
0511家装频道:本地家居服务平台,数万业主共同选择
只看该作者
分享本楼
宝应扛把子888
来自 江苏省
精华 0
注册 2017-3-12
QUOTE:
原帖由
我的小鱼干呢
于 17-3-18 16:48 发表
这个公司怎么样啊 ?半包多少钱啊? 我家和你差不多大,也想最近找装修公司呢
不如找私人
---发自梦溪论坛手机客户端---
2017-3-18 21:55
15楼
0511家装频道:本地家居服务平台,数万业主共同选择
只看该作者
分享本楼
顶上吊顶镇江店
来自 江苏省
精华 0
注册 2016-4-21
慢慢来,多跑跑市场
---发自iPhone 6S---
2017-3-18 22:03
16楼
买房、卖房、租房上镇江房产网!
只看该作者
分享本楼
华尔街ww
来自 江苏省
精华 0
注册 2008-10-23
行业 旅游交通
QUOTE:
原帖由
宝应扛把子888
于 17-3-18 21:55 发表
不如找私人
考虑,考虑
2017-3-18 22:31
17楼
[联宇电脑] 电脑组装\维修\升级\企业单位电脑维护!
只看该作者
分享本楼
zhaoting23
来自 江苏省
精华 0
注册 2017-3-13
QUOTE:
原帖由
我的小鱼干呢
于 17-3-18 16:48 发表
这个公司怎么样啊 ?半包多少钱啊? 我家和你差不多大,也想最近找装修公司呢
后期还不知道装的怎么样呢 方案很满意 主要是服务好所以就开心的定了
2017-3-19 09:02
18楼
0511家装频道:本地家居服务平台,数万业主共同选择
只看该作者
分享本楼
zhaoting23
来自 江苏省
精华 0
注册 2017-3-13
QUOTE:
原帖由
delarge
于 17-3-18 21:15 发表
恭喜开工
谢谢
2017-3-19 09:03
19楼
[联宇电脑] 电脑组装\维修\升级\企业单位电脑维护!
只看该作者
分享本楼
zhaoting23
来自 江苏省
精华 0
注册 2017-3-13
QUOTE:
原帖由
6666wsl
于 17-3-18 18:18 发表
小学这边是二期,我家也在这边。
嗯嗯
2017-3-19 09:04
20楼
[联宇电脑] 电脑组装\维修\升级\企业单位电脑维护!
只看该作者
分享本楼
zhaoting23
来自 江苏省
精华 0
注册 2017-3-13
QUOTE:
原帖由
拂晓dawnshawl
于 17-3-18 17:42 发表
半包都包了什么啊?
除了我买的大件的一些东西像瓷砖地板房门等,水电材料啊木工啊基础的东西都包了其他的我也不太清楚了 都是我家里人负责的我就去房子里转了一圈 装的看的懂的样子
2017-3-19 09:08
21楼
0511家装频道:本地家居服务平台,数万业主共同选择
只看该作者
分享本楼
zhaoting23
来自 江苏省
精华 0
注册 2017-3-13
QUOTE:
原帖由
顶上吊顶镇江店
于 17-3-18 22:03 发表
慢慢来,多跑跑市场
好滴,我是要多跑跑了
2017-3-19 09:09
22楼
[联宇电脑] 电脑组装\维修\升级\企业单位电脑维护!
只看该作者
分享本楼
zhaoting23
来自 江苏省
精华 0
注册 2017-3-13
QUOTE:
原帖由
优金瓷美缝
于 17-3-18 19:12 发表
恭喜开工
谢谢啦
2017-3-19 09:16
23楼
0511家装频道:本地家居服务平台,数万业主共同选择
只看该作者
分享本楼
一诺丶舒适家
来自 江苏省
精华 0
注册 2017-2-14
了解之后果断下手 要快准狠
2017-3-19 09:28
24楼
[联宇电脑] 电脑组装\维修\升级\企业单位电脑维护!
只看该作者
分享本楼
zhaoting23
来自 江苏省
精华 0
注册 2017-3-13
QUOTE:
原帖由
一诺丶舒适家
于 17-3-19 09:28 发表
了解之后果断下手 要快准狠
哈哈哈
爽快的人做爽快的事
2017-3-19 09:57
25楼
找工作,就上MY0511!
只看该作者
分享本楼
镇江欧派欧铂丽
来自 江苏省
精华 0
注册 2017-3-9
恭喜恭喜,祝新房开工大吉!!!
---发自三星---
2017-3-19 10:08
26楼
[联宇电脑] 电脑组装\维修\升级\企业单位电脑维护!
只看该作者
分享本楼
zhaoting23
来自 江苏省
精华 0
注册 2017-3-13
QUOTE:
原帖由
华尔街ww
于 17-3-18 22:31 发表
考虑,考虑
私人的我们也考虑过主要是怕外面的售后服务跟不上
2017-3-19 11:29
27楼
[联宇电脑] 电脑组装\维修\升级\企业单位电脑维护!
只看该作者
分享本楼
半夏的港湾
来自 江苏省
精华 0
注册 2017-1-6
行业 房产建筑
QUOTE:
原帖由
zhaoting23
于 17-3-18 15:51 发表
[attach]21925585[/attach]
等了好久终于开工啦
晚上可以约饭庆祝咯
2017-3-19 12:22
28楼
买房、卖房、租房上镇江房产网!
只看该作者
分享本楼
全友定制陈
来自 江苏省
精华 0
注册 2017-3-11
恭喜楼主开工大吉,有有家具需求可以来全友定制看看哦
---发自梦溪论坛手机客户端---
2017-3-19 12:45
29楼
[联宇电脑] 电脑组装\维修\升级\企业单位电脑维护!
只看该作者
分享本楼
鑫木装饰
禁止发言
来自 江苏省
精华 0
注册 2016-10-9
*** 作者因违反论坛规定,禁言处理,内容自动屏蔽 ***
详情参阅论坛注册条款:
http://bbs.my0511.com/f11b-t2789156z
2017-3-19 17:08
30楼
0511家装频道:本地家居服务平台,数万业主共同选择
只看该作者
分享本楼
zhaoting23
来自 江苏省
精华 0
注册 2017-3-13
心好累
没水没电啊!!!物业正在抢修中。。
2017-3-20 14:18
31楼
0511家装频道:本地家居服务平台,数万业主共同选择
只看该作者
分享本楼
li62400
来自 江苏省
精华 0
注册 2015-2-17
恭喜开工大吉,地板木门有需要可以来圣达地板看看,
---发自梦溪论坛手机客户端---
2017-3-20 21:09
32楼
找工作,就上MY0511!
只看该作者
分享本楼
zhaoting23
来自 江苏省
精华 0
注册 2017-3-13
终于开始铲墙啦!!!
每天都想要去房子里逛一圈
2017-3-22 09:48
33楼
[联宇电脑] 电脑组装\维修\升级\企业单位电脑维护!
只看该作者
分享本楼
zhaoting23
来自 江苏省
精华 0
注册 2017-3-13
QUOTE:
原帖由
li62400
于 17-3-20 21:09 发表
恭喜开工大吉,地板木门有需要可以来圣达地板看看,
好的
2017-3-22 09:49
34楼
找工作,就上MY0511!
只看该作者
分享本楼
天秤爱双子
来自 江苏省
精华 0
注册 2017-3-16
恭喜开工!
2017-3-22 11:25
35楼
买房、卖房、租房上镇江房产网!
只看该作者
分享本楼
小瑾嘛嘛嘛
来自 江苏省
精华 0
注册 2017-3-15
恭喜开工
---发自梦溪论坛手机客户端---
2017-3-22 12:30
36楼
MY0511相亲,一分钟注册,享一辈子幸福!
只看该作者
分享本楼
zhaoting23
来自 江苏省
精华 0
注册 2017-3-13
QUOTE:
原帖由
天秤爱双子
于 17-3-22 11:25 发表
恭喜开工!
谢谢呐
2017-3-22 13:37
37楼
买房、卖房、租房上镇江房产网!
只看该作者
分享本楼
zhaoting23
来自 江苏省
精华 0
注册 2017-3-13
QUOTE:
原帖由
小瑾嘛嘛嘛
于 17-3-22 12:30 发表
恭喜开工
谢谢啦
2017-3-22 13:38
38楼
买房、卖房、租房上镇江房产网!
只看该作者
分享本楼
li62400
来自 江苏省
精华 0
注册 2015-2-17
QUOTE:
原帖由
zhaoting23
于 17-3-22 09:49 发表
好的
圣达地板,15952862400微信同号
---发自梦溪论坛手机客户端---
2017-3-22 22:09
39楼
0511家装频道:本地家居服务平台,数万业主共同选择
只看该作者
分享本楼
zhaoting23
来自 江苏省
精华 0
注册 2017-3-13
每天都跑房子里装一圈 我问这在干啥 工人们这是在拆除
好吧 一片狼藉
2017-3-24 08:59
40楼
[联宇电脑] 电脑组装\维修\升级\企业单位电脑维护!
只看该作者
分享本楼
木工家装
来自 江苏省
精华 0
注册 2015-11-2
行业 房产建筑
想简单的话可以自己清包,我们是木工承接家装家具吊顶可以联系我王木工微信手机号13776477635,到我的帖子看看效果图
---发自梦溪论坛手机客户端---
2017-3-25 07:27
41楼
[联宇电脑] 电脑组装\维修\升级\企业单位电脑维护!
只看该作者
分享本楼
zhaoting23
来自 江苏省
精华 0
注册 2017-3-13
QUOTE:
原帖由
木工家装
于 17-3-25 07:27 发表
想简单的话可以自己清包,我们是木工承接家装家具吊顶可以联系我王木工微信手机号13776477635,到我的帖子看看效果图
好的,下次可以考虑呢
2017-3-27 09:30
42楼
[联宇电脑] 电脑组装\维修\升级\企业单位电脑维护!
只看该作者
分享本楼
zhaoting23
来自 江苏省
精华 0
注册 2017-3-13
终于像个样了
2017-3-27 09:47
43楼
MY0511相亲,一分钟注册,享一辈子幸福!
只看该作者
分享本楼
zhaoting23
来自 江苏省
精华 0
注册 2017-3-13
一天天变化中。。
2017-3-27 09:49
44楼
0511家装频道:本地家居服务平台,数万业主共同选择
只看该作者
分享本楼
zhaoting23
来自 江苏省
精华 0
注册 2017-3-13
2017-3-29 14:14
45楼
买房、卖房、租房上镇江房产网!
只看该作者
分享本楼
zhaoting23
来自 江苏省
精华 0
注册 2017-3-13
终于铺地热咯
[
本帖最后由 zhaoting23 于 17-3-29 14:17 编辑
]
2017-3-29 14:15
46楼
[联宇电脑] 电脑组装\维修\升级\企业单位电脑维护!
只看该作者
分享本楼
zhaoting23
来自 江苏省
精华 0
注册 2017-3-13
一点点的变化
2017-3-29 14:18
47楼
MY0511相亲,一分钟注册,享一辈子幸福!
只看该作者
分享本楼
开心门窗
来自 江苏省
精华 0
注册 2017-3-27
恭喜恭喜,楼主,需要封阳台请与我联系,15706103390微信同号保证质量,免费上门测量
---发自vivo---
2017-3-29 14:38
48楼
MY0511相亲,一分钟注册,享一辈子幸福!
只看该作者
分享本楼
zhaoting23
来自 江苏省
精华 0
注册 2017-3-13
QUOTE:
原帖由
开心门窗
于 17-3-29 14:38 发表
恭喜恭喜,楼主,需要封阳台请与我联系,15706103390微信同号保证质量,免费上门测量
好的
2017-3-29 16:37
49楼
MY0511相亲,一分钟注册,享一辈子幸福!
只看该作者
分享本楼
康宝健康橱柜
来自 江苏省
精华 0
注册 2015-12-23
行业 房产建筑
恭喜楼主开工呢,我们万科魅力之城有做过的,要是需要可以看样哦
2017-3-31 14:17
50楼
买房、卖房、租房上镇江房产网!
只看该作者
分享本楼
返回家庭装修
91
1/2
1
2
>
快速回复主题
游客
您目前还是游客,请
登录
或
注册
您目前是游客,本帖已被系统设置了自动关闭,不可回复!
文明交流,理性发言
0/5000字
<
>
请在打开的新窗口中支付完成打赏
我已完成支付打赏
支付失败重新支付
其他金额
打赏金额:
元
确定
支付打赏
提 现
打赏人
打赏金额(元)
打赏时间
伊慕装饰
1.00
2017-3-18 15:28
老友记装饰客服
1.00
2017-3-18 20:36
红居装饰
1.00
2017-4-19 11:39
Powered by
Discuz! X 2
0.037934 s
清除 Cookies
-
镇江网友之家
-
手机版
论坛导航
关闭
吃喝玩乐
饮食男女
镇江钓友之家
菜菜鸟户外
镇江单车俱乐部
镜头里的镇江
畅游天下
猫狗总动员
视觉Coffeeshop摄影部落
花鸟鱼虫
婚姻.亲子.家庭
家有学子
谈婚论嫁
女性天地
母婴乐园
婚姻生活
梦溪佳缘
装修
家庭装修
装修招标
镇江室内设计师交流
装修商家直通车
你好,镇江!
百姓话题
我要买房
0511爱心家园
市场监管•12315热线
分类信息
生活服务
闲置转让
镇江二手房/镇江租房
镇江招聘求职
教育培训
镇江二手车
商铺厂房写字楼租售
宠物市场
运动健身
卡券交易
电脑维修升级
杂货铺
其他分类信息区
兴趣爱好
HiFi音响江城沙龙
镇江市美术家协会
我爱模型
车友俱乐部
车迷之家
汽车驾培中心
运动俱乐部
镇江市冬泳、铁人三项协会
聚焦足球
镇江羽毛球
镇江乒乓球协会
镇江网球协会
镇江市自行车运动协会
热爱篮球
动力机车
合作栏目
维权热线
天翼时代
色觉影像摄影工作室
站务区
疑问与建议
网络问政
市政府工作部门
垂直管理部门
党群工作部门
其他重点单位
辖市(区)