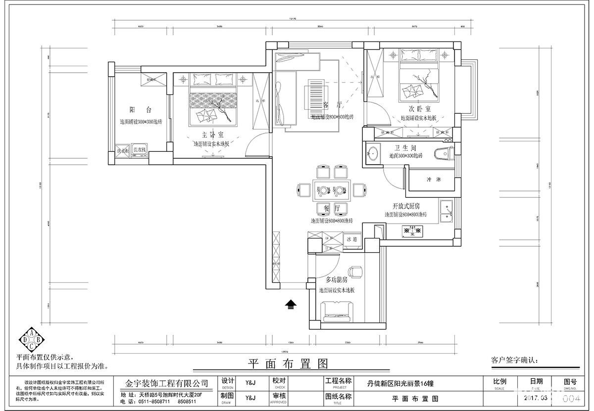
[2017金钢铂林地板杯]+丹徒新城阳光丽景二期
【小区名称】:阳光丽景二期
【所在楼层】:13楼
【建筑面积】:90平方米
【装修风格】:现代简约
【包工方式】:半包
【装修公司】:镇江金宇装饰
【开工日期】:2017年3月15日
【装修预算】:半包3.8W
[ 本帖最后由 我的小鱼干呢 于 17-3-19 14:16 编辑 ]
- 来自 江苏省
- 精华 0
- 注册 2017-3-6
- 来自 江苏省
- 精华 0
- 注册 2017-3-6
- 来自 江苏省
- 精华 0
- 注册 2016-5-6
- 来自 江苏省
- 精华 0
- 注册 2017-3-6






谢谢了













