| 标题
快捷导航

精彩推荐:MY0511客户端下载

    • 中信银行镇江分行

    • 公益体彩 乐善人生

    • 鹏龙鸿蒙

    • 天然石材·人造石

    » 梦溪论坛 » 家庭装修 » 廷尚------永隆城市广场雍景苑大平层欧式混搭毕业照
    家庭装修  >  [完工毕业照] 廷尚------永隆城市广场雍景苑大平层欧式混搭毕业照     
    查看: 21356  回复: 37
    [完工毕业照] 廷尚------永隆城市广场雍景苑大平层欧式混搭毕业照      查看: 21356  回复: 37
    • 来自 江苏省
    • 精华 181
    • 注册 2003-7-9
    • 行业 政府行政
    • 闯关达人 资深食神 吃货达人 我们爱旅行
    •  
    廷尚------永隆城市广场雍景苑大平层欧式混搭毕业照

    作品名:廷尚
    风格:欧式混搭
    公司:企屋设计

    当你在城里盖一所房子之前,先在野外用你的想象盖一座凉亭。
    因为你黄昏时有家可归,而你迷茫时、更孤寂的漂泊的精魂,也有个归宿。
    你的房屋是你较大的躯壳。
    而你房子的样子是你的内在气质。



    [ 本帖最后由 呆呆猪 于 17-4-26 00:30 编辑 ]









                      
    • 来自 江苏省
    • 精华 181
    • 注册 2003-7-9
    • 行业 政府行政
    • 闯关达人 资深食神 吃货达人 我们爱旅行
    •  

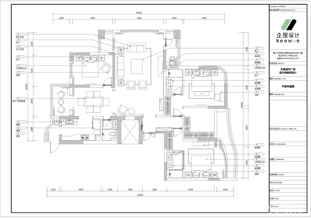
    本案是一套200㎡的平层,在与业主交流以后设计风格达成一致,既要美观更要满足现代人居住宅的高端需求,整个空间综合了现代感、东方内敛、柔和、自然主义的美学精神、新古典的典雅、大气、庄重之感。可以满足一些当代人对于自然、地域文化、自由精神的内心需求。








    • 来自 江苏省
    • 精华 181
    • 注册 2003-7-9
    • 行业 政府行政
    • 闯关达人 资深食神 吃货达人 我们爱旅行
    •  

    本案拥有一个40㎡的大客厅,可以媲美别墅客厅。功能划分为客餐厅、三个卧室、三卫、衣帽间及厨房。素色的墙面更能留得住年华,而背景墙面中选用了含有 “清明上河图”画面的墙纸为点缀,配以山水彩绘的椅面,在空间中添加内敛的东方情感,总有一些不得不诉说的东方情怀在心中。








    • 来自 江苏省
    • 精华 181
    • 注册 2003-7-9
    • 行业 政府行政
    • 闯关达人 资深食神 吃货达人 我们爱旅行
    •  

    客厅








    • 来自 江苏省
    • 精华 181
    • 注册 2003-7-9
    • 行业 政府行政
    • 闯关达人 资深食神 吃货达人 我们爱旅行
    •  










    • 来自 江苏省
    • 精华 181
    • 注册 2003-7-9
    • 行业 政府行政
    • 闯关达人 资深食神 吃货达人 我们爱旅行
    •  


























    • 来自 江苏省
    • 精华 181
    • 注册 2003-7-9
    • 行业 政府行政
    • 闯关达人 资深食神 吃货达人 我们爱旅行
    •  

    厨房的空间相对与整体来说是偏小的,于是我们采用了开放式厨房的方式延伸空间,餐厅墙面与客厅做法相同,加上意境的装饰画再一次加深东方韵味。






















    • 来自 江苏省
    • 精华 181
    • 注册 2003-7-9
    • 行业 政府行政
    • 闯关达人 资深食神 吃货达人 我们爱旅行
    •  

    踏入主卧,金色午后的余晖照亮了时光。在这里,享受人生最曼妙的风景。眯起眼睛,微起嘴角,眼里满是笑意。


















    • 来自 江苏省
    • 精华 181
    • 注册 2003-7-9
    • 行业 政府行政
    • 闯关达人 资深食神 吃货达人 我们爱旅行
    •  

    次卧












    • 来自 江苏省
    • 精华 181
    • 注册 2003-7-9
    • 行业 政府行政
    • 闯关达人 资深食神 吃货达人 我们爱旅行
    •  

    儿童房
















    • 来自 江苏省
    • 精华 181
    • 注册 2003-7-9
    • 行业 政府行政
    • 闯关达人 资深食神 吃货达人 我们爱旅行
    •  

    过道








    • 来自 江苏省
    • 精华 181
    • 注册 2003-7-9
    • 行业 政府行政
    • 闯关达人 资深食神 吃货达人 我们爱旅行
    •  

    卫生间








    • 来自 江苏省
    • 精华 0
    • 注册 2011-7-31
    • 行业 医疗卫生
    •  

    这种风格很好!




    • 来自 广东省
    • 精华 0
    • 注册 2014-10-16
    •  

    效果棒棒的




    • 来自 江苏省
    • 精华 1
    • 注册 2009-6-19
    • 行业 其它
    •  

    看见我们的EsTA进口人字拼地板了,扬总人帅作品更帅。

    [ 本帖最后由 我想有颗星星 于 17-4-25 21:08 编辑 ]

    [ 本帖最后由 我想有颗星星 于 17-4-26 08:11 编辑 ]




    • 来自 江苏省
    • 精华 1
    • 注册 2009-6-19
    • 行业 其它
    •  
    • 来自 0
    • 精华 0
    • 注册 2017-4-25
    •  

    问一下这是什么风格




    • 来自 江苏省
    • 精华 2
    • 注册 2004-3-17
    • 行业 其它
    •  

    卫生间没有干湿分离,冲马桶时记得盖好盖子。




    • 来自 江苏省
    • 精华 1
    • 注册 2009-6-19
    • 行业 其它
    •  






    • 来自 江苏省
    • 精华 0
    • 注册 2016-11-8
    •  
    • 来自 江苏省
    • 精华 0
    • 注册 2015-5-29
    •  

    很漂亮,很豪华,但混搭了感觉不出风格了,有点四不像,另外看了户型图,总体感觉永隆的房子不方正,有点怪怪的




    • 来自 江苏省
    • 精华 1
    • 注册 2009-6-19
    • 行业 其它
    •  


    QUOTE:
    原帖由 文木宇 于 17-4-26 10:49 发表
    很漂亮,很豪华,但混搭了感觉不出风格了,有点四不像,另外看了户型图,总体感觉永隆的房子不方正,有点怪怪的
    干吗非要什么风格啊




    • 来自 江苏省
    • 精华 0
    • 注册 2017-4-27
    •  

    需要中央空调和地暖的可以联系我18752967377微信同号




    • 来自 江苏省
    • 精华 0
    • 注册 2017-5-3
    •  

    我家也是永隆大平层,你




    • 来自 江苏省
    • 精华 0
    • 注册 2017-5-3
    •  

    接楼上,邻居家太赞了




    • 来自 江苏省
    • 精华 1
    • 注册 2009-6-19
    • 行业 其它
    •  
    • 来自 江苏省
    • 精华 1
    • 注册 2009-6-19
    • 行业 其它
    •  

    听讲参观的业内人士很多




    • 来自 江苏省
    • 精华 1
    • 注册 2009-6-19
    • 行业 其它
    •  
    • 来自 江苏省
    • 精华 105
    • 注册 2009-9-4
    • 行业 房产建筑
    •  






    • 来自 江苏省
    • 精华 0
    • 注册 2017-6-20
    •  






    • 来自 江苏省
    • 精华 1
    • 注册 2009-6-19
    • 行业 其它
    •  
    • 来自 江苏省
    • 精华 105
    • 注册 2009-9-4
    • 行业 房产建筑
    •  






    • 来自 江苏省
    • 精华 0
    • 注册 2013-7-29
    • 行业 学生
    •  

    这个logo才配的上这个作品




    • 来自 江苏省
    • 精华 34
    • 注册 2004-8-30
    • 行业 其它
    • 五一劳动节 功勋会员 我是车主
    •  

    看见我们东方邦太橱柜了。  
    很棒的作品!




    • 来自 江苏省
    • 精华 181
    • 注册 2003-7-9
    • 行业 政府行政
    • 闯关达人 资深食神 吃货达人 我们爱旅行
    •  
    • 来自 江苏省
    • 精华 1
    • 注册 2009-6-19
    • 行业 其它
    •  
    查看积分策略说明快速回复主题
    您目前还是游客,请 登录注册
    您目前是游客,本帖已被系统设置了自动关闭,不可回复!

    0/5000字

     
    < >
     

    Powered by Discuz! X 2 0.086729 s 清除 Cookies - 镇江网友之家 - 手机版
    论坛导航 关闭