收藏本站
客户端
扫码下载客户端
官方微信
打开微信扫一扫
登录
|
注册
|
标题
标题
用户
全站首页
|
论坛导航
|
网络问政
|
招聘求职
|
买房租房
|
装修频道
|
生活服务
|
教育
|
相亲
|
亲子
|
美食
|
婚嫁
|
手机客户端
家有学子
|
母婴乐园
快捷导航
精彩推荐:
MY0511客户端下载
中信银行镇江分行
公益体彩 乐善人生
鹏龙鸿蒙
天然石材·人造石
»
梦溪论坛
»
家庭装修
» 塞纳河畔--靓丽风景 开工啦
家庭装修
>
[装修日记]
塞纳河畔--靓丽风景 开工啦
查看: 13798 回复: 22
快速回复
返回家庭装修
[装修日记]
塞纳河畔--靓丽风景 开工啦
查看: 13798 回复: 22
上一主题
|
下一主题
青丝白
来自 江苏省
精华 0
注册 2017-4-21
塞纳河畔--靓丽风景 开工啦
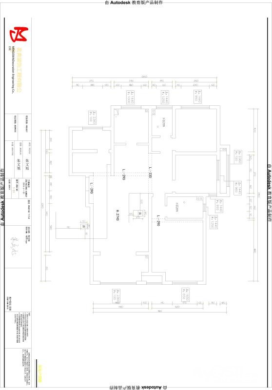
【小区名称】:风景城邦·塞纳河畔
【所在楼层】:3-1601
【装修风格】:现代简约
【包工方式】:半包
【装修公司】:茗典装饰公司
【开工日期】:2017年5月3日
【装修预算】:……
附上户型图
开工放鞭炮咯~~
[
本帖最后由 青丝白 于 17-5-7 13:02 编辑
]
已有 老友记装饰客服, 伊慕装饰
2
人打赏
2017-5-7 09:23
1楼
买房、卖房、租房上镇江房产网!
只看该作者
分享本楼
青丝白
来自 江苏省
精华 0
注册 2017-4-21
一波效果图,夫妻俩是检测单位工作,对生活追求品质,下班回家后要给业主一种轻松愉快的感觉,解决了一天疲劳工作,所以我们给业主风格定位成简约,简单中透点不平凡,给生活多添加一些色彩,让这个小窝更加丰富起来。这是一套生活改善用房,毛坯布局是三室半两厅两卫一厨两阳台,经过我们跟业主的交谈后,我们把这个户型设计成三室(主卧室,老人房,儿童房)一书房两厅两卫一厨一阳台,厨房做了开放式让整个餐厅显得不那么拥挤,书房也用了部分玻璃隔断,保证了空间的扩大和明亮,阳台我们也加以处理,半开放式更适合一家人的居住。客餐厅过道我们加已修改解决了原来进户门对儿童房门对门的弊端,也为入户增添了一道靓丽的背景,同时背后也多了一块储物空间,厨房开放式的处理最大化的利用公共区域的空间,使原本不大的餐厅显的更宽阔了,以后家里来人用餐也不会显得拥挤了;主卧这块我们改的比较大,首先主卧的门我们做了调整,无形之中多了一排超长的多功能柜,能足够满足家里的日常物品的收纳,主卧卫生间改做一个大胆的改动,用了部分玻璃处理使整个空间视觉和采光都有了更好的体现,主卧窗户区摆放一张躺椅,平时在家可以在这里看看书晒晒阳光,入睡前一杯红酒,是不是更有情调呢!书房利用了原先用处不大的北阳台,使得书房更加方正,玻璃隔断的处理让空间释放,在里面不会压抑,书房内还内设了一个沙发床,这让家里来客人过夜时,又可以充当一个客房的需求,一个多功能的书房不知道您是不是也喜欢呢!家里的老人房我们把他摆放在最靠近公共卫生处,帮助了老人平时去卫生间更加的方便;公共卫生间也做干湿分离,保证了使用上的方便;最后是儿童房,儿童房墙面的浅蓝给小男孩更加赋予了色彩,内设了一个黑板墙可以让孩子在上面记录下生活的点点滴滴。
全景在这可以看哦!!
[
本帖最后由 青丝白 于 17-5-7 13:33 编辑
]
2017-5-7 09:24
2楼
MY0511相亲,一分钟注册,享一辈子幸福!
只看该作者
分享本楼
青丝白
来自 江苏省
精华 0
注册 2017-4-21
感谢设计师跟项目经理 都在辛苦的工作呢,
设计师
对现场
严格把关
!!!
感谢认真工作的各位!!
[
本帖最后由 青丝白 于 17-5-7 13:05 编辑
]
2017-5-7 09:24
3楼
找工作,就上MY0511!
只看该作者
分享本楼
青丝白
来自 江苏省
精华 0
注册 2017-4-21
占楼
2017-5-7 09:24
4楼
0511家装频道:本地家居服务平台,数万业主共同选择
只看该作者
分享本楼
青丝白
来自 江苏省
精华 0
注册 2017-4-21
占楼
2017-5-7 09:25
5楼
[联宇电脑] 电脑组装\维修\升级\企业单位电脑维护!
只看该作者
分享本楼
青丝白
来自 江苏省
精华 0
注册 2017-4-21
占楼
2017-5-7 09:25
6楼
[联宇电脑] 电脑组装\维修\升级\企业单位电脑维护!
只看该作者
分享本楼
青丝白
来自 江苏省
精华 0
注册 2017-4-21
继续占楼
2017-5-7 09:28
7楼
找工作,就上MY0511!
只看该作者
分享本楼
wm545193050
来自 江苏省
精华 0
注册 2014-11-25
---发自iPhone 6 Plus---
2017-5-7 09:40
8楼
MY0511相亲,一分钟注册,享一辈子幸福!
只看该作者
分享本楼
博云物联玲玲
来自 0
精华
1
注册 2016-12-21
行业 商业贸易
恭喜楼主开帖
2017-5-7 09:59
9楼
0511家装频道:本地家居服务平台,数万业主共同选择
只看该作者
分享本楼
伊博莱门窗
来自 江苏省
精华 0
注册 2016-11-14
来支持新开工同学
2017-5-7 10:05
10楼
找工作,就上MY0511!
只看该作者
分享本楼
老友记装饰黄
来自 江苏省
精华 0
注册 2016-6-23
欢迎新同学
2017-5-7 10:27
11楼
[联宇电脑] 电脑组装\维修\升级\企业单位电脑维护!
只看该作者
分享本楼
Xiaying1991
来自 江苏省
精华 0
注册 2016-5-31
恭喜,效果图不错
---发自iPhone 6 Plus---
2017-5-7 12:08
12楼
MY0511相亲,一分钟注册,享一辈子幸福!
只看该作者
分享本楼
A_佳安
来自 江苏省
精华 0
注册 2017-5-4
QUOTE:
原帖由
A_佳安
于 2017-5-7 12:49 发表
工资楼主,后期需要中央空调和地暖的可以联系我18752967377
恭喜楼主
---发自iPhone 6---
2017-5-7 12:49
13楼
找工作,就上MY0511!
只看该作者
分享本楼
镇江欧意橱柜
来自 江苏省
精华 0
注册 2016-11-7
支持下楼主,加油更新
2017-5-7 13:19
14楼
找工作,就上MY0511!
只看该作者
分享本楼
优金瓷美缝
来自 江苏省
精华 0
注册 2016-10-20
行业 其它
恭喜恭喜
---发自iPhone 6---
2017-5-7 17:38
15楼
[联宇电脑] 电脑组装\维修\升级\企业单位电脑维护!
只看该作者
分享本楼
奋安铝材
来自 江苏省
精华 0
注册 2016-4-25
恭喜恭喜
---发自iPhone 6 Plus---
2017-5-8 16:53
16楼
[联宇电脑] 电脑组装\维修\升级\企业单位电脑维护!
只看该作者
分享本楼
陈定波
来自 江苏省
精华 0
注册 2017-5-7
请大家多多支持!
---发自梦溪论坛手机客户端---
2017-5-10 03:46
17楼
买房、卖房、租房上镇江房产网!
只看该作者
分享本楼
陈定波
来自 江苏省
精华 0
注册 2017-5-7
QUOTE:
原帖由
青丝白
于 2017-5-7 09:24 发表
感谢设计师跟项目经理 都在辛苦的工作呢,
设计师
对现场
严格把关
!!!
[attach]22198 ...
---发自梦溪论坛手机客户端---
2017-5-10 03:50
18楼
0511家装频道:本地家居服务平台,数万业主共同选择
只看该作者
分享本楼
柏尔地板
来自 江苏省
精华 0
注册 2017-3-13
恭喜开工大吉!
---发自梦溪论坛手机客户端---
2017-5-10 06:50
19楼
买房、卖房、租房上镇江房产网!
只看该作者
分享本楼
万达派诺橱柜
家装认证商户
来自 江苏省
精华 0
注册 2014-3-3
行业 房产建筑
恭喜楼主开工大吉
2017-5-13 11:56
20楼
买房、卖房、租房上镇江房产网!
只看该作者
分享本楼
cyrinda
来自 江苏省
精华 0
注册 2008-4-13
行业 IT 通信
恭喜开工
---发自iPhone 6S---
2017-5-25 20:10
21楼
0511家装频道:本地家居服务平台,数万业主共同选择
只看该作者
分享本楼
JZCEO
来自 江苏省
精华 0
注册 2008-9-30
行业 其它
满规整的
2017-6-13 16:24
22楼
[联宇电脑] 电脑组装\维修\升级\企业单位电脑维护!
只看该作者
分享本楼
设计师的壁纸
来自 江苏省
精华 0
注册 2017-2-11
行业 房产建筑
恭喜开贴
2017-6-23 16:13
23楼
找工作,就上MY0511!
只看该作者
分享本楼
返回家庭装修
快速回复主题
游客
您目前还是游客,请
登录
或
注册
您目前是游客,本帖已被系统设置了自动关闭,不可回复!
文明交流,理性发言
0/5000字
<
>
请在打开的新窗口中支付完成打赏
我已完成支付打赏
支付失败重新支付
其他金额
打赏金额:
元
确定
支付打赏
提 现
打赏人
打赏金额(元)
打赏时间
老友记装饰客服
1.00
2017-5-7 10:25
伊慕装饰
1.00
2017-5-9 10:48
Powered by
Discuz! X 2
0.071127 s
清除 Cookies
-
镇江网友之家
-
手机版
论坛导航
关闭
吃喝玩乐
饮食男女
镇江钓友之家
菜菜鸟户外
镇江单车俱乐部
镜头里的镇江
畅游天下
猫狗总动员
视觉Coffeeshop摄影部落
花鸟鱼虫
婚姻.亲子.家庭
家有学子
谈婚论嫁
女性天地
母婴乐园
婚姻生活
梦溪佳缘
装修
家庭装修
装修招标
镇江室内设计师交流
装修商家直通车
你好,镇江!
百姓话题
我要买房
0511爱心家园
市场监管•12315热线
分类信息
生活服务
闲置转让
镇江二手房/镇江租房
镇江招聘求职
教育培训
镇江二手车
商铺厂房写字楼租售
宠物市场
运动健身
卡券交易
电脑维修升级
杂货铺
其他分类信息区
兴趣爱好
HiFi音响江城沙龙
镇江市美术家协会
我爱模型
车友俱乐部
车迷之家
汽车驾培中心
运动俱乐部
镇江市冬泳、铁人三项协会
聚焦足球
镇江羽毛球
镇江乒乓球协会
镇江网球协会
镇江市自行车运动协会
热爱篮球
动力机车
合作栏目
维权热线
天翼时代
色觉影像摄影工作室
站务区
疑问与建议
网络问政
市政府工作部门
垂直管理部门
党群工作部门
其他重点单位
辖市(区)