收藏本站
客户端
扫码下载客户端
官方微信
打开微信扫一扫
登录
|
注册
|
标题
标题
用户
全站首页
|
论坛导航
|
网络问政
|
招聘求职
|
买房租房
|
装修频道
|
生活服务
|
教育
|
相亲
|
亲子
|
美食
|
婚嫁
|
手机客户端
家有学子
|
母婴乐园
快捷导航
精彩推荐:
MY0511客户端下载
中信银行镇江分行
公益体彩 乐善人生
鹏龙鸿蒙
天然石材·人造石
»
梦溪论坛
»
家庭装修
» 圆梦一个家—京砚家园
家庭装修
>
[装修日记]
圆梦一个家—京砚家园
查看: 9032 回复: 17
快速回复
返回家庭装修
[装修日记]
圆梦一个家—京砚家园
查看: 9032 回复: 17
上一主题
|
下一主题
274036840
来自 江苏省
精华 0
注册 2009-10-22
行业 其它
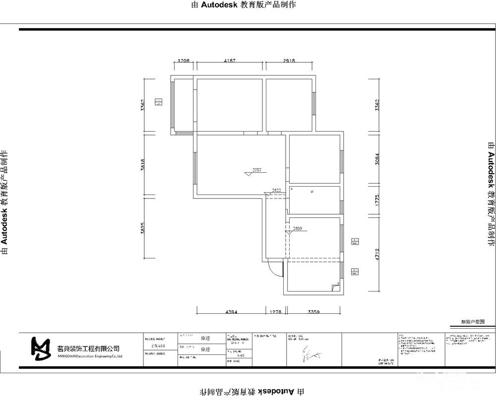
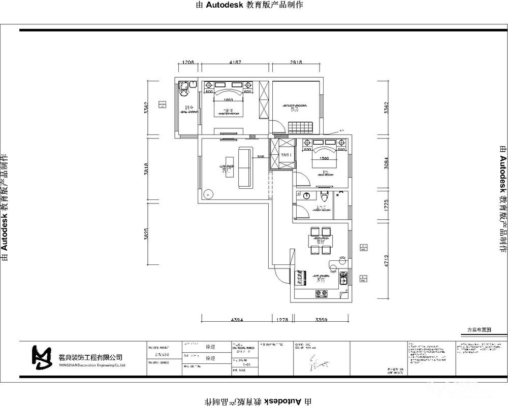
圆梦一个家—京砚家园
辛辛苦苦小半辈子了,一直没有属于自己的家,终于跟老公狠狠心,咬咬牙,置办了属于自己的小窝,不喜欢过于复杂,温馨就行,当即就与设计师一拍即合,各方面的设计都在我的心坎里,现在不是流行简装修,重装饰嘛,半包其他就自己来了,心里还是小鸡冻滴
【
建筑面积】:
105个平方
【
工程造价】:
半包4万9
【装修公司】:茗典装饰
【装修风格】:
北欧风情
【 设 计 师 】:徐进
[平面布置图]
装修效果图
已有 伊慕装饰, 老友记装饰客服
2
人打赏
2017-6-8 09:24
1楼
MY0511相亲,一分钟注册,享一辈子幸福!
只看该作者
分享本楼
wm545193050
来自 江苏省
精华 0
注册 2014-11-25
---发自iPhone 6 Plus---
2017-6-8 09:27
2楼
0511家装频道:本地家居服务平台,数万业主共同选择
只看该作者
分享本楼
伊慕装饰
专版版主
来自 0
精华 0
注册 2014-10-16
欢迎新同学
2017-6-8 09:44
3楼
买房、卖房、租房上镇江房产网!
只看该作者
分享本楼
fcajcl
来自 江苏省
精华 0
注册 2008-6-18
行业 其它
户型好特别啊。。。哪边是超南的啊,,
2017-6-8 09:49
4楼
MY0511相亲,一分钟注册,享一辈子幸福!
只看该作者
分享本楼
Xiaying1991
来自 江苏省
精华 0
注册 2016-5-31
恭喜
---发自OPPO R9---
2017-6-8 10:32
5楼
MY0511相亲,一分钟注册,享一辈子幸福!
只看该作者
分享本楼
274036840
来自 江苏省
精华 0
注册 2009-10-22
行业 其它
QUOTE:
原帖由
fcajcl
于 17-6-8 09:49 发表
户型好特别啊。。。哪边是超南的啊,,
阳台的位置是朝南
2017-6-8 13:43
6楼
[联宇电脑] 电脑组装\维修\升级\企业单位电脑维护!
只看该作者
分享本楼
优金瓷美缝
来自 江西省
精华 0
注册 2016-10-20
行业 其它
恭喜恭喜
---发自iPhone 6---
2017-6-8 14:47
7楼
MY0511相亲,一分钟注册,享一辈子幸福!
只看该作者
分享本楼
Xeqtrrr
来自 江苏省
精华 0
注册 2004-8-28
行业 娱乐餐饮
恭喜
2017-6-8 16:18
8楼
[联宇电脑] 电脑组装\维修\升级\企业单位电脑维护!
只看该作者
分享本楼
燕泥地热地板
来自 江苏省
精华 0
注册 2017-4-12
恭喜
---发自OPPO---
2017-6-8 16:38
9楼
0511家装频道:本地家居服务平台,数万业主共同选择
只看该作者
分享本楼
delarge
来自 江苏省
精华
4
注册 2008-7-25
行业 房产建筑
恭喜开贴
2017-6-8 18:25
10楼
买房、卖房、租房上镇江房产网!
只看该作者
分享本楼
zg60
来自 江苏省
精华 0
注册 2005-9-28
QUOTE:
原帖由
274036840
于 17-6-8 09:24 发表
辛辛苦苦小半辈子了,一直没有属于自己的家,终于跟老公狠狠心,咬咬牙,置办了属于自己的小窝,不喜欢过于复杂,温馨就行,当即就与设计师一拍即合,各方面的设计都在我的心坎里,现在不是流行简装修 ...
【
建筑面积】
:
105个平方
【
工程造价】:
半包4万9
【装修公司】:茗典装饰
【装修风格】:
北欧风情
【 设 计 师 】:徐进
2017-6-8 18:28
11楼
找工作,就上MY0511!
只看该作者
分享本楼
设计师的壁纸
来自 0
精华 0
注册 2017-2-11
行业 房产建筑
2017-6-8 21:19
12楼
0511家装频道:本地家居服务平台,数万业主共同选择
只看该作者
分享本楼
柏尔地板
来自 江苏省
精华 0
注册 2017-3-13
恭喜开工大吉,一切顺利!
---发自梦溪论坛手机客户端---
2017-6-8 22:25
13楼
[联宇电脑] 电脑组装\维修\升级\企业单位电脑维护!
只看该作者
分享本楼
双羽木门专卖
来自 江苏省
精华 0
注册 2017-5-19
欢迎新同学
2017-6-10 11:39
14楼
找工作,就上MY0511!
只看该作者
分享本楼
佳安舒适家
来自 江苏省
精华
55
注册 2017-2-10
恭喜恭喜~~~
2017-6-13 10:32
15楼
[联宇电脑] 电脑组装\维修\升级\企业单位电脑维护!
只看该作者
分享本楼
苏皖归
来自 江苏省
精华 0
注册 2016-6-11
恭喜恭喜!有什么墙纸墙布窗帘软包吊顶可以联系我!13952804315价格实惠质量保证!亿都
---发自iPhone 6 Plus---
2017-6-15 15:18
16楼
MY0511相亲,一分钟注册,享一辈子幸福!
只看该作者
分享本楼
274036840
来自 江苏省
精华 0
注册 2009-10-22
行业 其它
施工中
实在没有时间,就先发张开工图
[
本帖最后由 274036840 于 17-6-18 17:01 编辑
]
2017-6-18 16:59
17楼
MY0511相亲,一分钟注册,享一辈子幸福!
只看该作者
分享本楼
tangtang0202
来自 江苏省
精华 0
注册 2016-12-19
QUOTE:
原帖由
274036840
于 17-6-18 16:59 发表
[attach]22423372[/attach]实在没有时间,就先发张开工图
[attach]22423371[/attach]
恭喜邻居开工,我家也是北欧,已经到尾声了
---发自iPhone 7---
2017-6-23 07:45
18楼
MY0511相亲,一分钟注册,享一辈子幸福!
只看该作者
分享本楼
返回家庭装修
快速回复主题
游客
您目前还是游客,请
登录
或
注册
您目前是游客,本帖已被系统设置了自动关闭,不可回复!
文明交流,理性发言
0/5000字
<
>
请在打开的新窗口中支付完成打赏
我已完成支付打赏
支付失败重新支付
其他金额
打赏金额:
元
确定
支付打赏
提 现
打赏人
打赏金额(元)
打赏时间
伊慕装饰
1.00
2017-6-8 09:44
老友记装饰客服
1.00
2017-6-8 10:16
Powered by
Discuz! X 2
0.072933 s
清除 Cookies
-
镇江网友之家
-
手机版
论坛导航
关闭
吃喝玩乐
饮食男女
镇江钓友之家
菜菜鸟户外
镇江单车俱乐部
镜头里的镇江
畅游天下
猫狗总动员
视觉Coffeeshop摄影部落
花鸟鱼虫
婚姻.亲子.家庭
家有学子
谈婚论嫁
女性天地
母婴乐园
婚姻生活
梦溪佳缘
装修
家庭装修
装修招标
镇江室内设计师交流
装修商家直通车
你好,镇江!
百姓话题
我要买房
0511爱心家园
市场监管•12315热线
分类信息
生活服务
闲置转让
镇江二手房/镇江租房
镇江招聘求职
教育培训
镇江二手车
商铺厂房写字楼租售
宠物市场
运动健身
卡券交易
电脑维修升级
杂货铺
其他分类信息区
兴趣爱好
HiFi音响江城沙龙
镇江市美术家协会
我爱模型
车友俱乐部
车迷之家
汽车驾培中心
运动俱乐部
镇江市冬泳、铁人三项协会
聚焦足球
镇江羽毛球
镇江乒乓球协会
镇江网球协会
镇江市自行车运动协会
热爱篮球
动力机车
合作栏目
维权热线
天翼时代
色觉影像摄影工作室
站务区
疑问与建议
网络问政
市政府工作部门
垂直管理部门
党群工作部门
其他重点单位
辖市(区)