收藏本站
客户端
扫码下载客户端
官方微信
打开微信扫一扫
登录
|
注册
|
标题
标题
用户
全站首页
|
论坛导航
|
网络问政
|
招聘求职
|
买房租房
|
装修频道
|
生活服务
|
教育
|
相亲
|
亲子
|
美食
|
婚嫁
|
手机客户端
家有学子
|
母婴乐园
快捷导航
精彩推荐:
MY0511客户端下载
中信银行镇江分行
公益体彩 乐善人生
鹏龙鸿蒙
天然石材·人造石
»
梦溪论坛
»
家庭装修
» 小试牛刀—中冶玉翠园
家庭装修
>
[装修日记]
小试牛刀—中冶玉翠园
查看: 11650 回复: 22
快速回复
返回家庭装修
[装修日记]
小试牛刀—中冶玉翠园
查看: 11650 回复: 22
上一主题
|
下一主题
874304518
来自 江苏省
精华 0
注册 2017-6-8
小试牛刀—中冶玉翠园
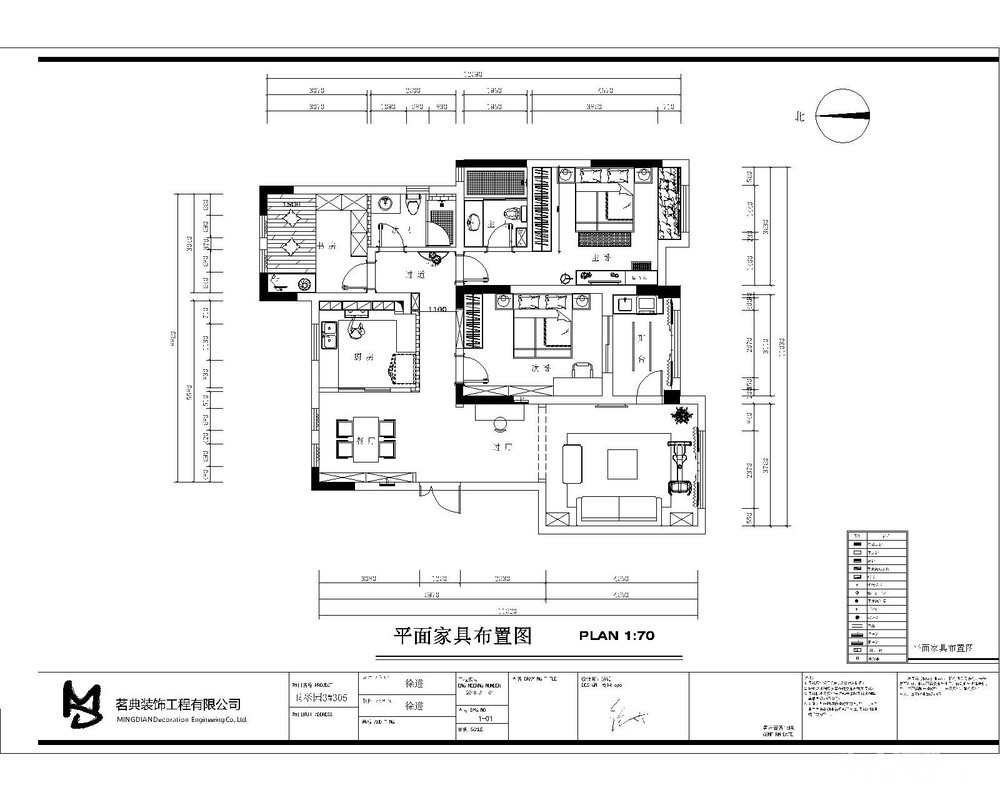
装修以前,天天看装修频道各位大神的装修日记,也参考各位的装修心得跟风格,现在拿自己家小试牛刀,哈哈,当然不敢怠慢,自己家住的啊,天天缠着设计师。也感谢徐工的耐心,随时随地被我碎碎念。设计方案定下来了,接下来要定开工日子啦
【建筑面积】:126平方
【工程造价】:6w(半包)
【装修公司】:茗典装饰
【装修风格】: 美式
【 设 计 师 】:徐进
[
本帖最后由 874304518 于 17-6-17 09:35 编辑
]
已有 伊慕装饰, 老友记装饰客服
2
人打赏
2017-6-11 09:34
1楼
0511家装频道:本地家居服务平台,数万业主共同选择
只看该作者
分享本楼
维尼
来自 江苏省
精华 0
注册 2005-7-21
QUOTE:
原帖由
874304518
于 17-6-11 09:34 发表
小试牛刀—中冶玉翠园
【此处为站外链接,请谨慎打开】
装修以前,天天看装修频道各位大神的装修日记,也参考各位的装修心得跟风格,现在拿自己家小试牛刀,哈哈,当然不敢怠慢,自己家住的啊,天天缠着设计师。也感谢徐工的耐心,随时随地被我碎碎念。设计方案定下来了,接下来要定开工日子啦
【建筑面积】:126平方
【工程造价】:6w(半包)
2017-6-11 09:39
2楼
0511家装频道:本地家居服务平台,数万业主共同选择
只看该作者
分享本楼
阳光海风布艺
来自 0
精华 0
注册 2010-12-11
行业 商业贸易
效果图不错
2017-6-11 09:39
3楼
找工作,就上MY0511!
只看该作者
分享本楼
wm545193050
来自 江苏省
精华 0
注册 2014-11-25
---发自iPhone 6 Plus---
2017-6-11 10:03
4楼
[联宇电脑] 电脑组装\维修\升级\企业单位电脑维护!
只看该作者
分享本楼
柏尔地板
来自 江苏省
精华 0
注册 2017-3-13
---发自梦溪论坛手机客户端---
2017-6-11 10:10
5楼
MY0511相亲,一分钟注册,享一辈子幸福!
只看该作者
分享本楼
镇江欧意橱柜
来自 江苏省
精华 0
注册 2016-11-7
恭喜开贴,加油更新
2017-6-11 10:11
6楼
买房、卖房、租房上镇江房产网!
只看该作者
分享本楼
伊慕装饰
专版版主
来自 0
精华 0
注册 2014-10-16
欢迎新同学
2017-6-11 10:14
7楼
MY0511相亲,一分钟注册,享一辈子幸福!
只看该作者
分享本楼
优金瓷美缝
来自 江西省
精华 0
注册 2016-10-20
行业 其它
恭喜恭喜
---发自iPhone 6---
2017-6-11 10:38
8楼
[联宇电脑] 电脑组装\维修\升级\企业单位电脑维护!
只看该作者
分享本楼
燕泥地热地板
来自 江苏省
精华 0
注册 2017-4-12
开工大吉
---发自OPPO---
2017-6-11 17:13
9楼
[联宇电脑] 电脑组装\维修\升级\企业单位电脑维护!
只看该作者
分享本楼
双羽木门专卖
来自 江苏省
精华 0
注册 2017-5-19
欢迎新同学
2017-6-11 17:55
10楼
[联宇电脑] 电脑组装\维修\升级\企业单位电脑维护!
只看该作者
分享本楼
老友记装饰黄
来自 江苏省
精华 0
注册 2016-6-23
老友记2017.6月联盟放价
点击进入
六月装修去哪儿?找老友记就够了!设计、施工、主材让你样样满意
[
本帖最后由 老友记装饰黄 于 17-6-11 18:08 编辑
]
2017-6-11 17:57
11楼
[联宇电脑] 电脑组装\维修\升级\企业单位电脑维护!
只看该作者
分享本楼
飞花傲然
来自 江苏省
精华
8
注册 2003-4-20
行业 金融保险
六万?
---发自iPhone 6S---
2017-6-11 19:48
12楼
0511家装频道:本地家居服务平台,数万业主共同选择
只看该作者
分享本楼
佳安舒适家
来自 江苏省
精华
55
注册 2017-2-10
恭喜恭喜~~
2017-6-13 10:15
13楼
买房、卖房、租房上镇江房产网!
只看该作者
分享本楼
万达派诺橱柜
家装认证商户
来自 江苏省
精华 0
注册 2014-3-3
行业 房产建筑
恭喜楼主开贴
2017-6-13 13:46
14楼
0511家装频道:本地家居服务平台,数万业主共同选择
只看该作者
分享本楼
fcajcl
来自 江苏省
精华 0
注册 2008-6-18
行业 其它
很好看的效果图。我也是装美式,半包价格似乎都差不多哦
2017-6-13 15:04
15楼
0511家装频道:本地家居服务平台,数万业主共同选择
只看该作者
分享本楼
关亨木门
来自 江苏省
精华 0
注册 2010-5-8
行业 其它
恭喜楼主开工大吉
[
本帖最后由 关亨木门 于 17-6-13 15:11 编辑
]
2017-6-13 15:09
16楼
MY0511相亲,一分钟注册,享一辈子幸福!
只看该作者
分享本楼
MD全皮沙发顾问
来自 江苏省
精华 0
注册 2015-8-21
行业 商业贸易
客厅还蛮大的啊
2017-6-13 16:05
17楼
买房、卖房、租房上镇江房产网!
只看该作者
分享本楼
小清新的霸气
来自 江苏省
精华 0
注册 2017-6-4
恭喜楼主开工大吉 客厅挺宽敞的 气派大气
:
我是德鲁尼实木定制的 小陶
2017-6-14 10:03
18楼
[联宇电脑] 电脑组装\维修\升级\企业单位电脑维护!
只看该作者
分享本楼
美林
来自 江苏省
精华 0
注册 2006-12-2
行业 房产建筑
效果图上有个鱼缸.很少看到
2017-6-14 10:55
19楼
买房、卖房、租房上镇江房产网!
只看该作者
分享本楼
镇江璞尔
来自 江苏省
精华 0
注册 2017-5-26
全屋检测和空气治理
---发自梦溪论坛手机客户端---
2017-6-15 13:21
20楼
0511家装频道:本地家居服务平台,数万业主共同选择
只看该作者
分享本楼
苏皖归
来自 江苏省
精华 0
注册 2016-6-11
恭喜恭喜!有什么墙纸墙布窗帘软包吊顶可以联系我!13952804315价格实惠质量保证!亿都
---发自iPhone 6 Plus---
2017-6-15 15:16
21楼
买房、卖房、租房上镇江房产网!
只看该作者
分享本楼
874304518
来自 江苏省
精华 0
注册 2017-6-8
装修真是个累心的活啊
2017-6-17 09:34
22楼
[联宇电脑] 电脑组装\维修\升级\企业单位电脑维护!
只看该作者
分享本楼
设计师的壁纸
来自 江苏省
精华 0
注册 2017-2-11
行业 房产建筑
2017-6-23 15:53
23楼
0511家装频道:本地家居服务平台,数万业主共同选择
只看该作者
分享本楼
返回家庭装修
快速回复主题
游客
您目前还是游客,请
登录
或
注册
您目前是游客,本帖已被系统设置了自动关闭,不可回复!
文明交流,理性发言
0/5000字
<
>
请在打开的新窗口中支付完成打赏
我已完成支付打赏
支付失败重新支付
其他金额
打赏金额:
元
确定
支付打赏
提 现
打赏人
打赏金额(元)
打赏时间
伊慕装饰
1.00
2017-6-11 10:14
老友记装饰客服
1.00
2017-6-11 17:46
Powered by
Discuz! X 2
0.077620 s
清除 Cookies
-
镇江网友之家
-
手机版
论坛导航
关闭
吃喝玩乐
饮食男女
镇江钓友之家
菜菜鸟户外
镇江单车俱乐部
镜头里的镇江
畅游天下
猫狗总动员
视觉Coffeeshop摄影部落
花鸟鱼虫
婚姻.亲子.家庭
家有学子
谈婚论嫁
女性天地
母婴乐园
婚姻生活
梦溪佳缘
装修
家庭装修
装修招标
镇江室内设计师交流
装修商家直通车
你好,镇江!
百姓话题
我要买房
0511爱心家园
市场监管•12315热线
分类信息
生活服务
闲置转让
镇江二手房/镇江租房
镇江招聘求职
教育培训
镇江二手车
商铺厂房写字楼租售
宠物市场
运动健身
卡券交易
电脑维修升级
杂货铺
其他分类信息区
兴趣爱好
HiFi音响江城沙龙
镇江市美术家协会
我爱模型
车友俱乐部
车迷之家
汽车驾培中心
运动俱乐部
镇江市冬泳、铁人三项协会
聚焦足球
镇江羽毛球
镇江乒乓球协会
镇江网球协会
镇江市自行车运动协会
热爱篮球
动力机车
合作栏目
维权热线
天翼时代
色觉影像摄影工作室
站务区
疑问与建议
网络问政
市政府工作部门
垂直管理部门
党群工作部门
其他重点单位
辖市(区)