| 标题
快捷导航

精彩推荐:MY0511客户端下载

    • 中信银行镇江分行

    • 公益体彩 乐善人生

    • 鹏龙鸿蒙

    • 天然石材·人造石

    » 梦溪论坛 » 家庭装修 » [2017金钢铂林地板杯]山东人在镇江新手装修—养老房装修日志
    家庭装修  >  [装修日记] [2017金钢铂林地板杯]山东人在镇江新手装修—养老房装修日志     
    查看: 57244  回复: 70
     71  1/2  1  2  > 
    [装修日记] [2017金钢铂林地板杯]山东人在镇江新手装修—养老房装修日志      查看: 57244  回复: 70
    • 来自 江苏省
    • 精华 0
    • 注册 2017-6-7
    •  
    [2017金钢铂林地板杯]山东人在镇江新手装修—养老房装修日志



    此帖已成功报名
    2017家装日记大赛更多家装信息关注MY0511家装频道


    虽然年纪不小,但是依然是装修新人。
    一直在0511上潜水,看各种装修攻略,也看好多个大神(泰山大神、果子妈等等)的装修日记,为自己家的房子装修做准备。终于自己家的房子终于开始装修了!
    之前一直在忙着选各种家具、主材,与设计师纠结方案的问题,今天开工了才开贴。

    [ 本帖最后由 my0511菲雪 于 17-7-3 17:28 编辑 ]





                      
    • 来自 0
    • 精华 0
    • 注册 2015-11-2
    •  

    欢迎小伙伴开贴




    • 来自 江苏省
    • 精华 0
    • 注册 2017-6-7
    •  


    写在前面的话:

    我跟老公老家是山东的,孩子的爷爷奶奶还在山东老家,但是年纪大一点就会来镇江跟我们一起住,我们现在住的房子太小了。

    所以我们买房子至少要三室,又考虑到自己年纪也渐渐大了,以后也要考虑到就医问题。

    也在各个楼盘转了好久,最后综合了各方面选定了这个红星牡丹园的房子,120平方三室,正适合我们家。

    我们最满意这房子的就是房子朝向很好、南北通透,采光也不错。

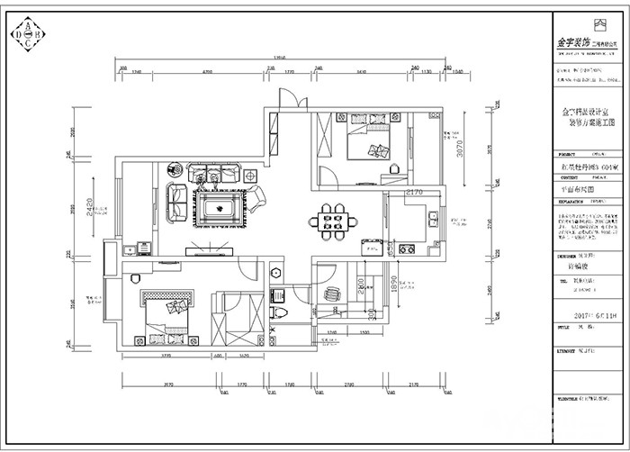
    先上平面图:

    平面图





    [ 本帖最后由 会飞的贼 于 17-6-15 10:51 编辑 ]




    • 来自 江苏省
    • 精华 0
    • 注册 2017-6-7
    •  

    小区:红星牡丹园面积:120平方
    风格:现代简约(有点偏新中式,这个风格好打扫
    装修公司:金宇装饰
    设计师:许镇俊
    包工方式:全包
    装修预算:20万(包括家具家电,感觉后期可能会超,米也很少啊)
    再来张效果图:
    客厅效果图


    [ 本帖最后由 会飞的贼 于 17-6-17 17:07 编辑 ]




    • 来自 江苏省
    • 精华 0
    • 注册 2012-8-17
    • 行业 学生
    •  

    不发了?坐等




    • 来自 江苏省
    • 精华 0
    • 注册 2017-6-7
    •  

    先发一下开工图:老公跟项目经理老许跟设计师小许的合影


    墙上的标示牌


    开工


    放鞭炮


    说起来也是巧,项目经理跟设计师都姓许,名字也就差一个字,一个小许,一个老许。

    今天房子那边应该在敲墙,希望我家装修能够顺顺利利的,早日完工,争取过年前能搬进去。
    一会儿再说关于装修公司的选择,先发这么多,先吃午饭补充点体力。





    • 来自 江苏省
    • 精华 0
    • 注册 2017-5-19
    •  

    恭喜开工



    [ 本帖最后由 双羽木门专卖 于 17-7-3 15:00 编辑 ]




    • 来自 江苏省
    • 精华 0
    • 注册 2017-6-4
    •  

    恭喜业主开工大吉




    • 来自 江苏省
    • 精华 0
    • 注册 2016-6-23
    •  

    欢迎新同学




    • 来自 江苏省
    • 精华 0
    • 注册 2017-6-4
    •  

    我是德鲁尼实木定制  小陶  有需要联系我




    • 来自 江苏省
    • 精华 0
    • 注册 2017-4-12
    •  

    开工大吉




    • 来自 江苏省
    • 精华 0
    • 注册 2016-5-31
    •  

    恭喜恭喜




    • 来自 江苏省
    • 精华 0
    • 注册 2010-5-8
    • 行业 其它
    •  

    恭喜楼主开工大吉,有朋友也跟你一小区,瓦工这两天就要进场了




    • 来自 江苏省
    • 精华 0
    • 注册 2017-4-10
    •  


    QUOTE:
    原帖由 会飞的贼 于 17-6-15 11:31 发表
    先发一下开工图:[attach]22406216[/attach]

    [attach]22406215[/attach]

    [attach]22406214[/attach]

    [attach]22406213[/attach]

    说起来也是巧,项目经理跟设计师都姓许,名字 ...
    开工大吉




    • 来自 江苏省
    • 精华 0
    • 注册 2014-10-16
    •  

    欢迎新同学




    • 来自 江苏省
    • 精华 0
    • 注册 2016-6-11
    •  

    恭喜恭喜!有什么墙纸墙布窗帘软包吊顶不懂的可以联系我!13952804315




    • 来自 江苏省
    • 精华 0
    • 注册 2017-5-19
    •  

    恭喜开工




    • 来自 江苏省
    • 精华 0
    • 注册 2012-10-28
    • 行业 房产建筑
    •  

    :clapping::clapping:




    • 来自 江西省
    • 精华 0
    • 注册 2016-10-20
    • 行业 其它
    •  

    恭喜恭喜。外地人来奋斗都不容易啊




    • 来自 江苏省
    • 精华 0
    • 注册 2017-3-13
    •  

    恭喜开工大吉一切顺利!




    • 来自 江苏省
    • 精华 1
    • 注册 2012-7-9
    • 行业 商业贸易
    •  






    • 来自 江苏省
    • 精华 0
    • 注册 2017-6-7
    •  

    刚吃完晚饭,上来看看。感谢大家的支持。前几天让儿子帮我在网上买的冰丝凉席到了,感觉还是不错的。现在就开始用了,等新房子装修好了,明年夏天也可以用。








    • 来自 江苏省
    • 精华 0
    • 注册 2017-6-7
    •  

    今天下午忙着上班,没怎么回复帖子。
    在跟设计师在纠结房子要不要敲墙的问题,本来今天就能敲了,结果老公还在纠结,我也有点犹豫不决。
    目前的想法是想把两个卫生间改成一间,另一间主卧里的改成衣帽间。
    各位大大们,你们觉得可行么?唉!纠结的性格真是没办法




    • 来自 江苏省
    • 精华 0
    • 注册 2017-6-7
    •  

    今天上午设计师给我发了我家房子效果图的全景效果,真是新玩意儿!第一次看这种效果图,有点眼晕。不晃的时候,看着效果挺好,但愿最后的效果不比这差。
    https://www.ivrpano.com/ws/openP ... stalled=0&sid=0
    也给大家看看




    • 来自 江苏省
    • 精华 0
    • 注册 2017-6-7
    •  

    终于有时间上来冒个泡了。这两天老公出差了,不在家。
    上午吃完早饭,收拾了一下家里,然后自己一个人去逛了月星,逛到了下午才回来。
    又跟设计在微信上商量卫生间和衣帽间的问题,
    还没有确认下来,设计师又出了一个双卫生间的方案。

    去了做吊顶的店铺,店里的人说关于卫生间改衣帽间的问题。
    有一点很重要,就是楼上的邻居家的防水问题,看他家改了没有。
    建议我做集成吊顶,不做石膏板的,怕以后有问题检修起来麻烦。
    也大概看了几种样式。



    我自己很喜欢这几种简单的。









    • 来自 江苏省
    • 精华 4
    • 注册 2008-7-25
    • 行业 房产建筑
    • 我是车主 家装达人
    •  

    衣帽间的集成吊顶用最便宜的那种就可以了




    • 来自 江苏省
    • 精华 0
    • 注册 2017-6-7
    •  


    QUOTE:
    原帖由 delarge 于 17-6-17 23:05 发表
    衣帽间的集成吊顶用最便宜的那种就可以了
    好的,会考虑的,谢谢你的建议!




    • 来自 江苏省
    • 精华 0
    • 注册 2017-2-21
    •  

    瓷砖贴好?需要做美缝吗,我也是山东的,咱们老乡我是山东临沂




    • 来自 江苏省
    • 精华 0
    • 注册 2017-6-7
    •  


    QUOTE:
    原帖由 1304600684 于 17-6-18 23:56 发表
    瓷砖贴好?需要做美缝吗,我也是山东的,咱们老乡我是山东临沂
    俺们是枣庄的,也算老乡啊!




    • 来自 江苏省
    • 精华 0
    • 注册 2009-10-7
    • 行业 基础设施
    •  

    :clapping看了效果图不错哦




    • 来自 江苏省
    • 精华 0
    • 注册 2017-6-7
    •  

    嗨!新的一周开始啦。又有时间上来看看了。昨天定下了瓷砖,虽然老公不在家,但是跟他商量了
    马可波罗618活动,优惠很大,就定下来了。
    最近网上也在各种搞活动,京东、天猫、淘宝什么的很多优惠,
    趁机买了不少东西。
    别的地板、墙纸什么的主材还在挑选中
    装修漫漫路,还要继续前进啊!瓷砖


    [ 本帖最后由 会飞的贼 于 17-6-19 16:30 编辑 ]




    • 来自 江苏省
    • 精华 0
    • 注册 2017-6-7
    •  

    昨天晚上冒着雨去我家房子那,跟设计师把敲墙位置定下了。说起来也是我们太磨蹭了,真是辛苦设计师小许来了。
    开工一个星期了终于有进度了。


    拆墙图纸

    今天天气也好闷啊 ,感觉要下雨,反正也带了伞,不怕

    江南这一片就是这点不好,夏天雨好多啊
    我们老家就没有这么多雨,不过今年老家都有点干旱了,雨也有点太少了
    要是镇江的雨能分点给山东就好,今年山东因为少雨,樱桃收成都少了




    • 来自 江苏省
    • 精华 0
    • 注册 2010-7-1
    • 行业 信息咨询
    •  

    如果要装地暖暖气片中央空调联系我哈,加我微信我可以给你一份详细的报价哦!  微信号 luxuejing001,电话 13914558900




    • 来自 江苏省
    • 精华 0
    • 注册 2017-6-7
    •  


    QUOTE:
    原帖由 沫汐浅雪 于 17-6-20 14:46 发表
    如果要装地暖暖气片中央空调联系我哈,加我微信我可以给你一份详细的报价哦!  微信号 luxuejing001,电话 13914558900
    不好意思啊!
    我们家已经确定了,用风管机。敲完墙就可以定位了,跟水电一起做。




    • 来自 江苏省
    • 精华 0
    • 注册 2017-6-7
    •  

    瓷砖:马可波罗
    橱柜:暂定装修公司定制
    风管机:格力
    暂时主材方面确定了这么多。

    开贴这么久了,还没说说关于装修公司的选择呢
    我们因为房子要贷款,所以要到4月份才能拿房,但是懂3月中旬就开始看装修公司
    到3月底为止,我们也看了有三四家装修公司,不是报价太高,就是方案不太满意。
    4月初的时候,有一个朋友说认识金宇的杨总。我就跟老公商量了一下,联系了一下杨总。
    反正前期出方案也不要钱,就去看看吧。
    然后我在3号的时候自己一个人带着户型图去了金宇公司设计师小许很热情的接待了我,带我参观了他们公司的工艺展厅和主材展厅
    我把户型图给她,她大概估算了一下报价。然后用我给的户型图做方案,说是3天后能出来方案。
    3天后给我们看了方案,我们觉得靠谱,老公才带小许去房子现场量尺寸,做正式的方案。
    又过了几天,设计师让我们去看正式方案,有一些细节需要修改的地方又跟设计师沟通。
    小许还真是个有耐心的设计师,对我们的各种要求也极力达成,也没有烦了我们
    因为我们的贷款还没有下来,要等贷款下来了才能开始动工。
    所以中间又有了不少新的想法,所以这设计方案呐,改了很多次了
    终于方案确定下来了,我们交了定金,小许给我们出了效果图。还有全景的,新鲜玩意儿。
    发几张去金宇照片,不算是打广告吧,就是他们公司展厅的一些照片。

    [attach]22435768[/attach]





    [ 本帖最后由 会飞的贼 于 17-6-20 17:52 编辑 ]








    • 来自 江苏省
    • 精华 7
    • 注册 2005-9-7
    • 行业 其它
    • 家装达人
    •  


    QUOTE:
    原帖由 会飞的贼 于 17-6-15 10:48 发表


    写在前面的话:

    我跟老公老家是山东的,孩子的爷爷奶奶还在山东老家,但是年纪大一点就会来镇江跟我们一起住 ...

    老乡啊,恭喜开贴

    我不是什么大神,跟大家一样是装大的一同学而已






    • 来自 江苏省
    • 精华 0
    • 注册 2017-6-7
    •  


    QUOTE:
    原帖由 泰山 于 17-6-21 00:33 发表

    老乡啊,恭喜开贴

    我不是什么大神,跟大家一样是装大的一同学而已
    [/fo ...

    哇!大神给我回帖啦!谢谢!

    还有很多不懂得地方还是要多多学习你们这些大神们的经验啊!







    • 来自 江苏省
    • 精华 4
    • 注册 2008-7-25
    • 行业 房产建筑
    • 我是车主 家装达人
    •  


    QUOTE:
    原帖由 泰山 于 17-6-21 00:33 发表

    老乡啊,恭喜开贴

    我不是什么大神,跟大家一样是装大的一同学而已
    [/fo ...

    泰山大哥原来是山东人啊






    • 来自 江苏省
    • 精华 0
    • 注册 2017-6-7
    •  

    这两天比较忙,没时间去工地。不过项目经理老许已经把现场敲墙的照片发到群里了
    敲了墙之后,格局更合理了,采光也比以前好很多。







    敲好之后


    敲好之后


    敲墙工人辛苦了


    今天镇江又下雨了,枣庄老家也下雨了,而且也要下好几天,希望能把地浇透了,已经干旱太久了




    • 来自 江苏省
    • 精华 0
    • 注册 2017-6-7
    •  

    前几天618活动,在网上买的集成灶到了。
    集成灶链接:【此处为站外链接,请谨慎打开】
    是这种的。






    说明书

    正在跟设计师商量集成灶的安装方案中


    [ 本帖最后由 会飞的贼 于 17-6-22 10:56 编辑 ]




    • 来自 江苏省
    • 精华 0
    • 注册 2017-6-7
    •  

    今天周五了,我家今天正在刷墙固、地固,明天后天周末,小区物业不让施工,
    只能下周一才能水电开槽,进度好慢啊
    不知年前能不能搬进去了




    • 来自 江苏省
    • 精华 0
    • 注册 2017-6-7
    •  

    大家周末好啊!
    今天周六不能施工,不过现场的墙固地固刷好了,各种线也画好了。项目经理昨天已经发了照片在群里了




    这两天自己 在淘宝上看洗衣柜,跟设计师小许商量尺寸的问题,要考虑洗衣机的型号。






    目前看好这三种款式的洗衣柜,洗衣机品牌型号还没确定。




    [ 本帖最后由 会飞的贼 于 17-6-24 17:50 编辑 ]




    • 来自 0
    • 精华 0
    • 注册 2017-2-11
    • 行业 房产建筑
    •  

    欢迎新同学,恭喜在镇江安家。




    • 来自 江苏省
    • 精华 0
    • 注册 2017-6-18
    •  

    欢迎新同学,我也是找的金宇




    • 来自 江苏省
    • 精华 0
    • 注册 2009-12-25
    • 行业 其它
    •  






    • 来自 江苏省
    • 精华 0
    • 注册 2007-5-26
    • 行业 其它
    •  

    谢谢业主信任,我会更加努力的!




    • 来自 江苏省
    • 精华 0
    • 注册 2017-6-7
    •  

    谢谢大家的热心回复!我会继续努力更贴的!还有很多装修上不懂的地方希望大家多多指点啊




    • 来自 江苏省
    • 精华 0
    • 注册 2017-6-7
    •  

    大家好啊!好久没上来更贴了
    今天周二了,我家的水电也开工了,昨天开始施工,今天已经完成了大半了
    老许又在群里发了照片



    [ 本帖最后由 会飞的贼 于 17-7-1 14:53 编辑 ]












    • 来自 江苏省
    • 精华 4
    • 注册 2008-7-25
    • 行业 房产建筑
    • 我是车主 家装达人
    •  

    施工完之后打扫很干净




     71  1/2  1  2  > 
    查看积分策略说明快速回复主题
    您目前还是游客,请 登录注册
    您目前是游客,本帖已被系统设置了自动关闭,不可回复!

    0/5000字

     
    < >
     

    Powered by Discuz! X 2 0.096049 s 清除 Cookies - 镇江网友之家 - 手机版
    论坛导航 关闭