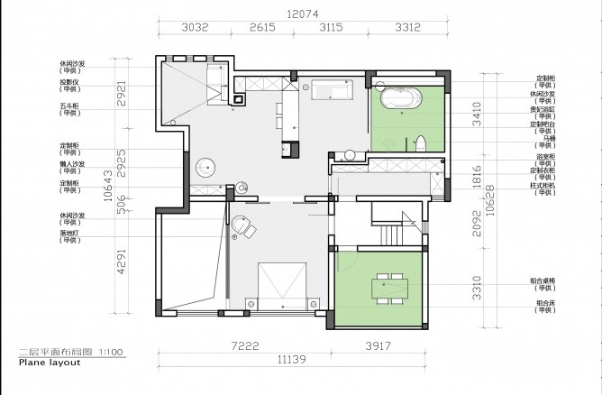
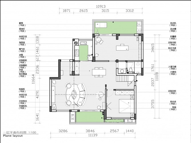
改造后面积/160m2
装修风格/北欧
空间类别/复式
主要使用材料/成品柜体、棉麻布艺、玻璃、乳胶漆
设计说明:“我一直在尝试做减法设计,关于家,我希望通过减法设计找到空间的灵魂”
业主是重庆的知名作家,非常喜欢安静闲适的生活,认为只有在白色的空间中才能让人内心安静下来,找到真我的一面,只有这样才能更单纯的进行文学创作。
所以在这个案例中我拒绝形式化设计,充分挖掘居住者的审美和气质,从居住者的角度提炼出高审美的作品,让白色占据大部分空间。采用极简的设计手法,没有其他的华而不实的装饰,回归平静,真正的好设计从心开始。








