收藏本站
客户端
扫码下载客户端
官方微信
打开微信扫一扫
登录
|
注册
|
标题
标题
用户
全站首页
|
论坛导航
|
网络问政
|
招聘求职
|
买房租房
|
装修频道
|
生活服务
|
教育
|
相亲
|
亲子
|
美食
|
婚嫁
|
手机客户端
家有学子
|
母婴乐园
快捷导航
精彩推荐:
MY0511客户端下载
中信银行镇江分行
公益体彩 乐善人生
鹏龙鸿蒙
天然石材·人造石
»
梦溪论坛
»
家庭装修
» 家装设计精品案例展播第45集:《倾心北欧》,中南大三期120平北欧小清新
家庭装修
>
[完工毕业照]
家装设计精品案例展播第45集:《倾心北欧》,中南大三期120平北欧小清新
查看: 40520 回复: 24
快速回复
返回家庭装修
[完工毕业照]
家装设计精品案例展播第45集:《倾心北欧》,中南大三期120平北欧小清新
查看: 40520 回复: 24
上一主题
|
下一主题
my0511小妖
版主
来自 江苏省
精华
9
注册 2005-10-29
家装设计精品案例展播第45集:《倾心北欧》,中南大三期120平北欧小清新
【家装设计精品案例展播】旨在为大家提供交流装修经验的平台,提升生活品位,共创魅力空间,大家要多多支持哦~~
第四十四集,我们来看一个家装作品,作品名称叫做《
倾心北欧》。
倾心北欧
————
观筑设计.方昕
【案例地址】:中南大三期
【案例风格】:北欧
【建筑面积】:126平方
【装修公司】:观筑设计
【设 计 师】: 方昕
[
本帖最后由 my0511小妖 于 18-5-14 08:51 编辑
]
已有
0
人打赏
2017-8-1 16:33
1楼
MY0511相亲,一分钟注册,享一辈子幸福!
只看该作者
分享本楼
my0511小妖
版主
来自 江苏省
精华
9
注册 2005-10-29
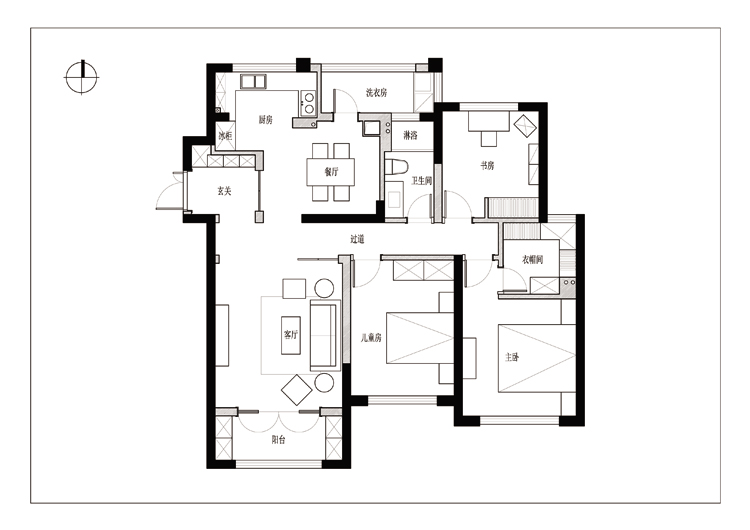
原始户型图
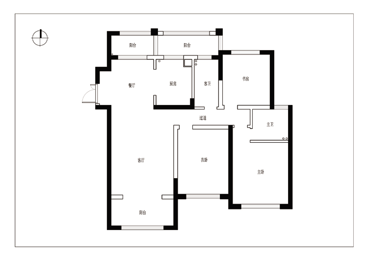
平面布置图
[
本帖最后由 my0511小妖 于 17-8-1 16:36 编辑
]
2017-8-1 16:36
2楼
MY0511相亲,一分钟注册,享一辈子幸福!
只看该作者
分享本楼
my0511小妖
版主
来自 江苏省
精华
9
注册 2005-10-29
本案以现代北欧为设计初衷,貌似不经意的搭配,一切又浑然一体。
[
本帖最后由 my0511小妖 于 18-5-14 08:51 编辑
]
2017-8-1 16:47
3楼
0511家装频道:本地家居服务平台,数万业主共同选择
只看该作者
分享本楼
花间雨
来自 江苏省
精华 0
注册 2013-3-29
行业 工业制造
求卧室两幅绿色挂画的链接
---发自iPhone 6S Plus---
2017-8-1 17:27
4楼
0511家装频道:本地家居服务平台,数万业主共同选择
只看该作者
分享本楼
my0511小妖
版主
来自 江苏省
精华
9
注册 2005-10-29
QUOTE:
原帖由
花间雨
于 17-8-1 17:27 发表
求卧室两幅绿色挂画的链接
帮你问下,明天告诉你
2017-8-1 17:29
5楼
找工作,就上MY0511!
只看该作者
分享本楼
DESIGNER方昕
来自 江苏省
精华 0
注册 2017-8-1
QUOTE:
原帖由
花间雨
于 2017-8-1 17:27 发表
求卧室两幅绿色挂画的链接
https://detail.tmall.com/item.ht ... 2483;10142888:21968
拿走不谢
---发自iPhone 7 Plus---
2017-8-1 18:00
6楼
[联宇电脑] 电脑组装\维修\升级\企业单位电脑维护!
只看该作者
分享本楼
【瑞阳装饰】
家装认证商户
来自 江苏省
精华
115
注册 2011-1-5
行业 房产建筑
感谢所有网友关注,有喜欢这种调调的可以随时联系我们哦!
正在装修的童鞋 有什么疑问也可以随时跟帖或者站内短消息联系!
[
本帖最后由 【瑞阳装饰】 于 17-8-2 11:44 编辑
]
2017-8-2 11:43
7楼
[联宇电脑] 电脑组装\维修\升级\企业单位电脑维护!
只看该作者
分享本楼
埃及王子
来自 江苏省
精华
1
注册 2008-1-22
行业 其它
会不会颜色太冷,不温馨。
2017-8-3 07:09
8楼
MY0511相亲,一分钟注册,享一辈子幸福!
只看该作者
分享本楼
狮歌
来自 江苏省
精华 0
注册 2009-5-15
行业 政府行政
这装潢很棒啊,真的很有质感,用心了的
2017-8-3 09:46
9楼
找工作,就上MY0511!
只看该作者
分享本楼
北欧风@森盛家具
来自 0
精华 0
注册 2017-7-29
2017-8-3 10:54
10楼
0511家装频道:本地家居服务平台,数万业主共同选择
只看该作者
分享本楼
【瑞阳装饰】
家装认证商户
来自 0
精华
115
注册 2011-1-5
行业 房产建筑
QUOTE:
原帖由
狮歌
于 17-8-3 09:46 发表
这装潢很棒啊,真的很有质感,用心了的
谢谢肯定哦
2017-8-3 11:03
11楼
找工作,就上MY0511!
只看该作者
分享本楼
【瑞阳装饰】
家装认证商户
来自 0
精华
115
注册 2011-1-5
行业 房产建筑
QUOTE:
原帖由
埃及王子
于 17-8-3 07:09 发表
会不会颜色太冷,不温馨。
每个业主喜欢的调调不一样
可能您喜欢温馨一点的案例 是吧 有需要的话 可以加我们的QQ或者微信 给您发一些温馨的案例给您参考一下~
[
本帖最后由 【瑞阳装饰】 于 17-8-3 11:06 编辑
]
2017-8-3 11:05
12楼
0511家装频道:本地家居服务平台,数万业主共同选择
只看该作者
分享本楼
wangshuwen2007
来自 江苏省
精华 0
注册 2007-10-30
行业 政府行政
客餐厅都要是用的地板?
2017-8-3 15:31
13楼
[联宇电脑] 电脑组装\维修\升级\企业单位电脑维护!
只看该作者
分享本楼
【瑞阳装饰】
家装认证商户
来自 江苏省
精华
115
注册 2011-1-5
行业 房产建筑
QUOTE:
原帖由
wangshuwen2007
于 17-8-3 15:31 发表
客餐厅都要是用的地板?
餐厅是用的仿地板砖 客厅用的是地板哦
2017-8-3 15:38
14楼
[联宇电脑] 电脑组装\维修\升级\企业单位电脑维护!
只看该作者
分享本楼
jiajuan
来自 江苏省
精华
2
注册 2012-5-6
行业 其它
2017-8-3 16:52
15楼
0511家装频道:本地家居服务平台,数万业主共同选择
只看该作者
分享本楼
赵沈丽
来自 江苏省
精华 0
注册 2016-8-16
求餐桌及床头柜链接
---发自iPhone 6 Plus---
2017-8-5 20:30
16楼
MY0511相亲,一分钟注册,享一辈子幸福!
只看该作者
分享本楼
【瑞阳装饰】
家装认证商户
来自 江苏省
精华
115
注册 2011-1-5
行业 房产建筑
QUOTE:
原帖由
赵沈丽
于 17-8-5 20:30 发表
求餐桌及床头柜链接
【实木床头柜 北欧现代简约白蜡红色白色黑色床边储物柜 榉木床头柜】,复制这条信息¥9KnZ0cQRNRw¥后打开手机淘宝
---发自iPhone 6S Plus---
2017-8-7 15:17
17楼
0511家装频道:本地家居服务平台,数万业主共同选择
只看该作者
分享本楼
呆呆猪
版主
来自 江苏省
精华
181
注册 2003-7-9
行业 政府行政
电视柜感觉有点高
2017-8-7 22:33
18楼
MY0511相亲,一分钟注册,享一辈子幸福!
只看该作者
分享本楼
饭冰冰吃冰
来自 江苏省
精华 0
注册 2014-12-25
行业 教育科研
很好,小清新
2017-8-8 08:53
19楼
MY0511相亲,一分钟注册,享一辈子幸福!
只看该作者
分享本楼
【瑞阳装饰】
家装认证商户
来自 江苏省
精华
115
注册 2011-1-5
行业 房产建筑
QUOTE:
原帖由
饭冰冰吃冰
于 17-8-8 08:53 发表
很好,小清新
恩恩 还有很多类似案例的 有喜欢的可以加微信或者QQ关注的!
2017-8-8 14:25
20楼
MY0511相亲,一分钟注册,享一辈子幸福!
只看该作者
分享本楼
DESIGNER方昕
来自 江苏省
精华 0
注册 2017-8-1
QUOTE:
原帖由
呆呆猪
于 2017-8-7 22:33 发表
电视柜感觉有点高
北欧系的电视柜没有矮的噢
这是风格元素来的.
---发自iPhone 7 Plus---
2017-8-9 17:59
21楼
MY0511相亲,一分钟注册,享一辈子幸福!
只看该作者
分享本楼
浪花水手
来自 江苏省
精华 0
注册 2017-8-2
装的不错,能否短个价格
2017-10-27 10:00
22楼
0511家装频道:本地家居服务平台,数万业主共同选择
只看该作者
分享本楼
糖三三三藏
来自 江苏省
精华 0
注册 2017-12-3
很喜欢这个风格,想问问总面积大概120-130平,分楼上下,楼上阁楼要再做防水的,做成这种风格大概需要多少预算啊。
2017-12-3 17:17
23楼
找工作,就上MY0511!
只看该作者
分享本楼
【瑞阳装饰】
家装认证商户
来自 江苏省
精华
115
注册 2011-1-5
行业 房产建筑
QUOTE:
原帖由
糖三三三藏
于 17-12-3 17:17 发表
很喜欢这个风格,想问问总面积大概120-130平,分楼上下,楼上阁楼要再做防水的,做成这种风格大概需要多少预算啊。
已短
2017-12-3 17:39
24楼
买房、卖房、租房上镇江房产网!
只看该作者
分享本楼
【瑞阳装饰】
家装认证商户
来自 江苏省
精华
115
注册 2011-1-5
行业 房产建筑
QUOTE:
原帖由
浪花水手
于 17-10-27 10:00 发表
装的不错,能否短个价格
已短
2017-12-3 17:39
25楼
[联宇电脑] 电脑组装\维修\升级\企业单位电脑维护!
只看该作者
分享本楼
返回家庭装修
快速回复主题
游客
您目前还是游客,请
登录
或
注册
您目前是游客,本帖已被系统设置了自动关闭,不可回复!
文明交流,理性发言
0/5000字
<
>
请在打开的新窗口中支付完成打赏
我已完成支付打赏
支付失败重新支付
其他金额
打赏金额:
元
确定
支付打赏
提 现
打赏人
打赏金额(元)
打赏时间
Powered by
Discuz! X 2
0.073839 s
清除 Cookies
-
镇江网友之家
-
手机版
论坛导航
关闭
吃喝玩乐
饮食男女
镇江钓友之家
菜菜鸟户外
镇江单车俱乐部
镜头里的镇江
畅游天下
猫狗总动员
视觉Coffeeshop摄影部落
花鸟鱼虫
婚姻.亲子.家庭
家有学子
谈婚论嫁
女性天地
母婴乐园
婚姻生活
梦溪佳缘
装修
家庭装修
装修招标
镇江室内设计师交流
装修商家直通车
你好,镇江!
百姓话题
我要买房
0511爱心家园
市场监管•12315热线
分类信息
生活服务
闲置转让
镇江二手房/镇江租房
镇江招聘求职
教育培训
镇江二手车
商铺厂房写字楼租售
宠物市场
运动健身
卡券交易
电脑维修升级
杂货铺
兴趣爱好
HiFi音响江城沙龙
镇江市美术家协会
我爱模型
车友俱乐部
车迷之家
汽车驾培中心
运动俱乐部
镇江市冬泳、铁人三项协会
聚焦足球
镇江羽毛球
镇江乒乓球协会
镇江网球协会
镇江市自行车运动协会
热爱篮球
动力机车
合作栏目
维权热线
天翼时代
色觉影像摄影工作室
站务区
疑问与建议
网络问政
市政府工作部门
垂直管理部门
党群工作部门
其他重点单位
辖市(区)