收藏本站
客户端
扫码下载客户端
官方微信
打开微信扫一扫
登录
|
注册
|
标题
标题
用户
全站首页
|
论坛导航
|
网络问政
|
招聘求职
|
买房租房
|
装修频道
|
生活服务
|
教育
|
相亲
|
亲子
|
美食
|
婚嫁
|
手机客户端
家有学子
|
母婴乐园
快捷导航
精彩推荐:
MY0511客户端下载
中信银行镇江分行
公益体彩 乐善人生
鹏龙鸿蒙
天然石材·人造石
»
梦溪论坛
»
家庭装修
» [2017金钢铂林地板杯]+心太大,装修小白小夫妻全程托管式装修(捂脸哭)
家庭装修
>
[装修日记]
[2017金钢铂林地板杯]+心太大,装修小白小夫妻全程托管式装修(捂脸哭)
查看: 15214 回复: 22
快速回复
返回家庭装修
[装修日记]
[2017金钢铂林地板杯]+心太大,装修小白小夫妻全程托管式装修(捂脸哭)
查看: 15214 回复: 22
上一主题
|
下一主题
Miss周
来自 江苏省
精华
2
注册 2011-5-13
行业 学生
[2017金钢铂林地板杯]+心太大,装修小白小夫妻全程托管式装修(捂脸哭)
【小区名称】:云开甲第
【所在楼层】:5
【建筑面积】:125
【装修风格】:北欧
【包工方式】:半包
【装修公司】:易兆精品设计装饰,设计师王永亮
【开工日期】:2017年8月21日
【装修预算】:硬装16W以内吧
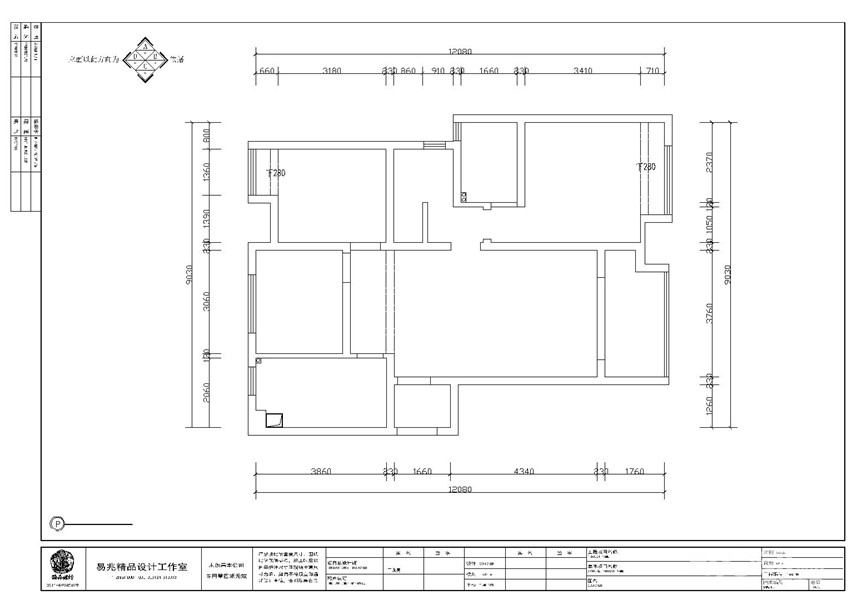
【户型图片】:
已有 伊慕装饰, 双羽木门专卖, 优金瓷美缝
3
人打赏
2017-9-15 16:18
1楼
0511家装频道:本地家居服务平台,数万业主共同选择
只看该作者
分享本楼
优金瓷美缝
来自 江苏省
精华 0
注册 2016-10-20
行业 其它
沙发哥来了。
---发自iPhone 6---
2017-9-15 16:29
2楼
0511家装频道:本地家居服务平台,数万业主共同选择
只看该作者
分享本楼
镇江大津硅藻泥
来自 江苏省
精华
4
注册 2011-12-13
行业 基础设施
站位
:clapping:
2017-9-15 16:35
3楼
买房、卖房、租房上镇江房产网!
只看该作者
分享本楼
专业铲墙
来自 0
精华 0
注册 2017-3-15
2017-9-15 16:37
4楼
找工作,就上MY0511!
只看该作者
分享本楼
Miss周
来自 江苏省
精华
2
注册 2011-5-13
行业 学生
因为我和老公都在丹阳上班,只有周末才能回镇江,所以一开始就确定了全包或者半包的装修方向,奈何全包没有钱啊,还是半包吧。
装修公司也是在丹阳、镇江两地考察了3家单位,老实说另外2家还是朋友介绍的,最终选择了非亲非故的易兆,一是缘分吧,二是确实他家出的方案比较喜欢,再者实地看了这3家的装修现场,易兆的施工面干净、整洁,比较舒服。
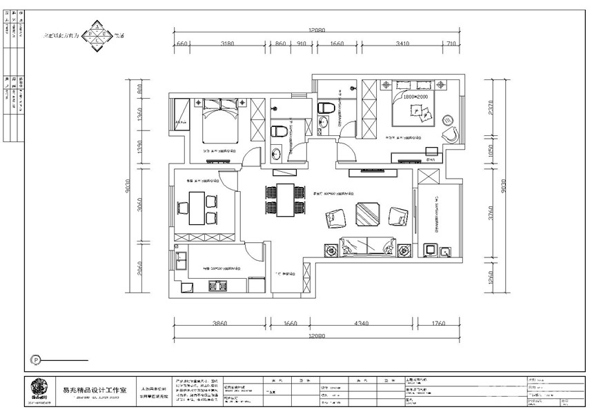
上平面方案:
效果图:
恩,还是比较满意的。背景墙是爵士白/雅士白(太贵)石材的,这个主key是确定的,最近突然想做成石材+黄铜的感觉了。
举个例子:
大理石配黄铜,超美有木有!
[
本帖最后由 Miss周 于 17-9-15 16:52 编辑
]
2017-9-15 16:52
5楼
0511家装频道:本地家居服务平台,数万业主共同选择
只看该作者
分享本楼
Miss周
来自 江苏省
精华
2
注册 2011-5-13
行业 学生
哎呀,妈呀,我真的是太懒了。半包都快要结束了,我才开始写。
先用小两口的图镇楼
[
本帖最后由 Miss周 于 17-10-24 14:54 编辑
]
2017-9-15 16:53
6楼
0511家装频道:本地家居服务平台,数万业主共同选择
只看该作者
分享本楼
Miss周
来自 江苏省
精华
2
注册 2011-5-13
行业 学生
选择易兆呢,就是参观了他们的装修工地,就得施工面很整洁,看起来很舒服,才选择了他家。
给大家看看图片,证明我所言非虚。
这是铲完墙之后做的黄墙绿地。
[
本帖最后由 Miss周 于 17-10-24 15:23 编辑
]
2017-9-15 16:53
7楼
0511家装频道:本地家居服务平台,数万业主共同选择
只看该作者
分享本楼
Miss周
来自 江苏省
精华
2
注册 2011-5-13
行业 学生
由于我们小两口在丹阳上班,基本上都不怎么回工地看看装修情况。一般就是材料进场时验收,部分施工结束的验收我们才去。
连瓷砖都是我们的工程负责人老吴帮我们验收的,封阳台,主家也不在,都是老吴帮忙盯。
可惜,封阳台的谢老板不幸去世了。就是0511上面发帖子,二院打针死的。
知道消息的时候,我们钱还没有结账。我赶紧让老公联系他家把账结了。
人家去世了,已经很难过了,我们不能拖着。
[
本帖最后由 Miss周 于 17-10-24 15:24 编辑
]
2017-9-15 16:56
8楼
[联宇电脑] 电脑组装\维修\升级\企业单位电脑维护!
只看该作者
分享本楼
zanshixiaoshi
来自 江苏省
精华 0
注册 2010-10-20
行业 医疗卫生
我家也是王老师设计的,他的能力还可以吧。简单,省钱。
需要联系方式可以私信我。
---发自iPhone 6---
2017-9-15 17:57
9楼
MY0511相亲,一分钟注册,享一辈子幸福!
只看该作者
分享本楼
双羽木门专卖
来自 江苏省
精华 0
注册 2017-5-19
恭喜开帖
2017-9-15 18:15
10楼
MY0511相亲,一分钟注册,享一辈子幸福!
只看该作者
分享本楼
小咖625
来自 江苏省
精华 0
注册 2016-9-10
QUOTE:
原帖由
zanshixiaoshi
于 2017-9-15 17:57 发表
我家也是王老师设计的,他的能力还可以吧。简单,省钱。
需要联系方式可以私信我。
感谢您的支持 但我怎么听着不像夸我
---发自iPhone 6S---
2017-9-15 18:51
11楼
找工作,就上MY0511!
只看该作者
分享本楼
万达壁纸软装
来自 江苏省
精华 0
注册 2017-5-5
行业 房产建筑
恭喜开工大吉
---发自iPhone 7 Plus---
2017-9-15 19:54
12楼
买房、卖房、租房上镇江房产网!
只看该作者
分享本楼
delarge
来自 江苏省
精华
4
注册 2008-7-25
行业 房产建筑
恭喜开贴
2017-9-16 00:01
13楼
找工作,就上MY0511!
只看该作者
分享本楼
柏尔地板
来自 江苏省
精华 0
注册 2017-3-13
恭喜开工大吉一切顺利!
---发自梦溪论坛手机客户端---
2017-9-16 05:50
14楼
0511家装频道:本地家居服务平台,数万业主共同选择
只看该作者
分享本楼
易兆精品设计
家装认证商户
来自 江苏省
精华
75
注册 2017-2-10
行业 房产建筑
相识即是缘分,感谢您选择易兆,为了您的爱家,我们共同努力。
2017-9-16 09:00
15楼
找工作,就上MY0511!
只看该作者
分享本楼
莫干山衣柜
来自 江苏省
精华 0
注册 2012-8-13
行业 其它
恭喜开工大吉
---发自梦溪论坛手机客户端---
2017-9-20 10:12
16楼
0511家装频道:本地家居服务平台,数万业主共同选择
只看该作者
分享本楼
新瑞装饰
专版版主
来自 江苏省
精华
71
注册 2015-4-22
恭喜开工
2017-9-20 14:00
17楼
0511家装频道:本地家居服务平台,数万业主共同选择
只看该作者
分享本楼
丽堂家居
来自 江苏省
精华
1
注册 2013-10-30
行业 房产建筑
丽堂全屋定制恭喜楼主开工
2017-9-22 15:10
18楼
0511家装频道:本地家居服务平台,数万业主共同选择
只看该作者
分享本楼
佳安舒适家
来自 江苏省
精华
55
注册 2017-2-10
佳安舒适家恭喜楼主开工~
2017-9-23 15:53
19楼
[联宇电脑] 电脑组装\维修\升级\企业单位电脑维护!
只看该作者
分享本楼
Miss周
来自 江苏省
精华
2
注册 2011-5-13
行业 学生
慢慢跟新中
2017-10-24 14:55
20楼
找工作,就上MY0511!
只看该作者
分享本楼
Miss周
来自 江苏省
精华
2
注册 2011-5-13
行业 学生
定主材真是个烦人的事儿。
去亿都一看,乖乖,卖瓷砖的店太多,根本转不过来。
本着随缘的心态,最后选择了***品牌的瓷砖,因为店家说是瓷抛砖,想着贵么,我们自己还价到110/片。
后来设计师去帮我们选颜色的时候,在我们已经交了1000元定金的情况下又还价到90/片。了不起,给王工32个赞。
不过,也充分说明我们有多装修小白了。不过至此之后,我们也大概摸清楚该怎么还价了,就是真的别不好意思,大胆的还价!
手机里只有厨房的瓷砖照片了,大家随意看看吧,是不是颜色有点深了?
[
本帖最后由 Miss周 于 17-10-24 15:24 编辑
]
2017-10-24 15:20
21楼
0511家装频道:本地家居服务平台,数万业主共同选择
只看该作者
分享本楼
delarge
来自 江苏省
精华
4
注册 2008-7-25
行业 房产建筑
橱柜一装,就看不到多少瓷砖了
2017-10-24 22:15
22楼
找工作,就上MY0511!
只看该作者
分享本楼
洛克华菲.滑动门
来自 江苏省
精华 0
注册 2016-2-26
行业 房产建筑
厨房颜色深点好上档次,好打理。
---发自梦溪论坛手机客户端---
2017-11-14 22:30
23楼
0511家装频道:本地家居服务平台,数万业主共同选择
只看该作者
分享本楼
返回家庭装修
快速回复主题
游客
您目前还是游客,请
登录
或
注册
您目前是游客,本帖已被系统设置了自动关闭,不可回复!
文明交流,理性发言
0/5000字
<
>
请在打开的新窗口中支付完成打赏
我已完成支付打赏
支付失败重新支付
其他金额
打赏金额:
元
确定
支付打赏
提 现
打赏人
打赏金额(元)
打赏时间
伊慕装饰
1.00
2017-9-15 16:54
双羽木门专卖
1.00
2017-9-15 18:14
优金瓷美缝
1.00
2017-9-15 21:54
Powered by
Discuz! X 2
0.072369 s
清除 Cookies
-
镇江网友之家
-
手机版
论坛导航
关闭
吃喝玩乐
饮食男女
镇江钓友之家
菜菜鸟户外
镇江单车俱乐部
镜头里的镇江
畅游天下
猫狗总动员
视觉Coffeeshop摄影部落
花鸟鱼虫
婚姻.亲子.家庭
家有学子
谈婚论嫁
女性天地
母婴乐园
婚姻生活
梦溪佳缘
装修
家庭装修
装修招标
镇江室内设计师交流
装修商家直通车
你好,镇江!
百姓话题
我要买房
0511爱心家园
市场监管•12315热线
分类信息
生活服务
闲置转让
镇江二手房/镇江租房
镇江招聘求职
教育培训
镇江二手车
商铺厂房写字楼租售
宠物市场
运动健身
卡券交易
电脑维修升级
杂货铺
其他分类信息区
兴趣爱好
HiFi音响江城沙龙
镇江市美术家协会
我爱模型
车友俱乐部
车迷之家
汽车驾培中心
运动俱乐部
镇江市冬泳、铁人三项协会
聚焦足球
镇江羽毛球
镇江乒乓球协会
镇江网球协会
镇江市自行车运动协会
热爱篮球
动力机车
合作栏目
维权热线
天翼时代
色觉影像摄影工作室
站务区
疑问与建议
网络问政
市政府工作部门
垂直管理部门
党群工作部门
其他重点单位
辖市(区)