收藏本站
客户端
扫码下载客户端
官方微信
打开微信扫一扫
登录
|
注册
|
标题
标题
用户
全站首页
|
论坛导航
|
网络问政
|
招聘求职
|
买房租房
|
装修频道
|
生活服务
|
教育
|
相亲
|
亲子
|
美食
|
婚嫁
|
手机客户端
家有学子
|
母婴乐园
快捷导航
精彩推荐:
MY0511客户端下载
中信银行镇江分行
公益体彩 乐善人生
鹏龙鸿蒙
天然石材·人造石
»
梦溪论坛
»
家庭装修
» 首创悦府——开工大吉——施工实拍(保持更新)
家庭装修
>
[装修日记]
首创悦府——开工大吉——施工实拍(保持更新)
查看: 15362 回复: 26
快速回复
返回家庭装修
[装修日记]
首创悦府——开工大吉——施工实拍(保持更新)
查看: 15362 回复: 26
上一主题
|
下一主题
镇江碧桂园橙家
来自 江苏省
精华 0
注册 2017-9-28
首创悦府——开工大吉——施工实拍(保持更新)
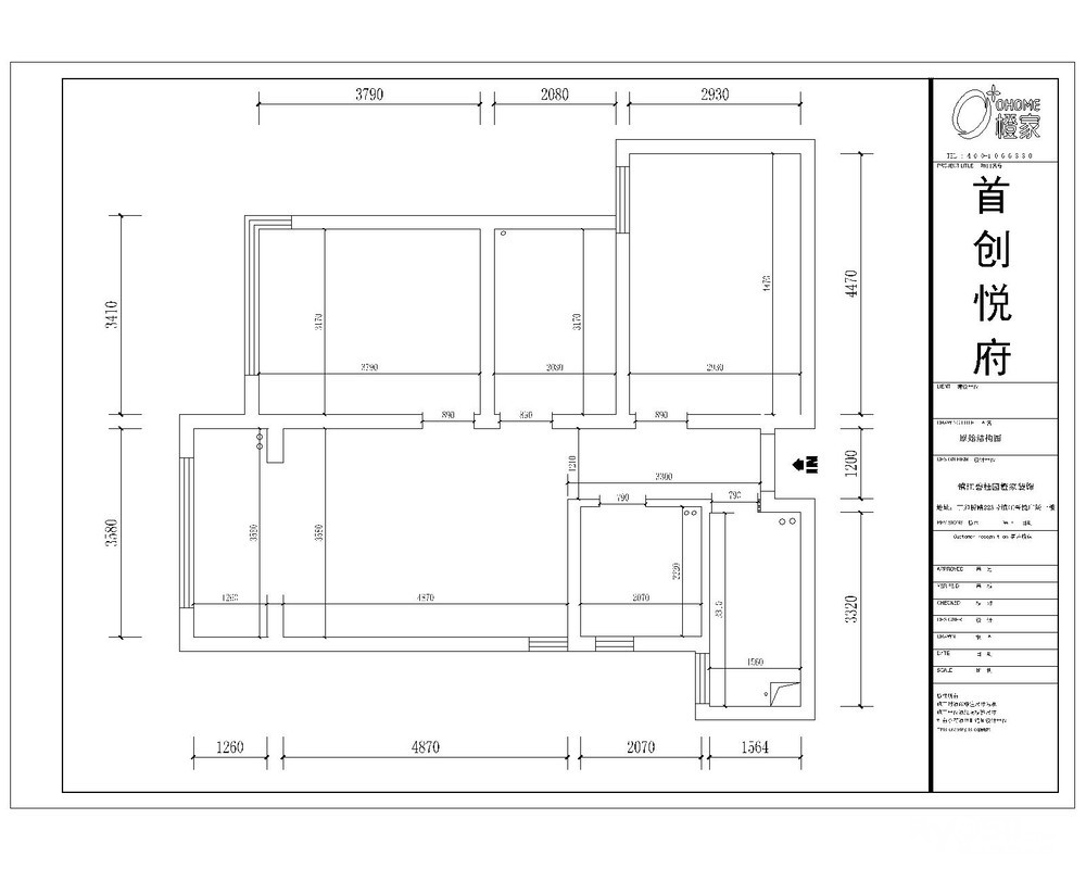
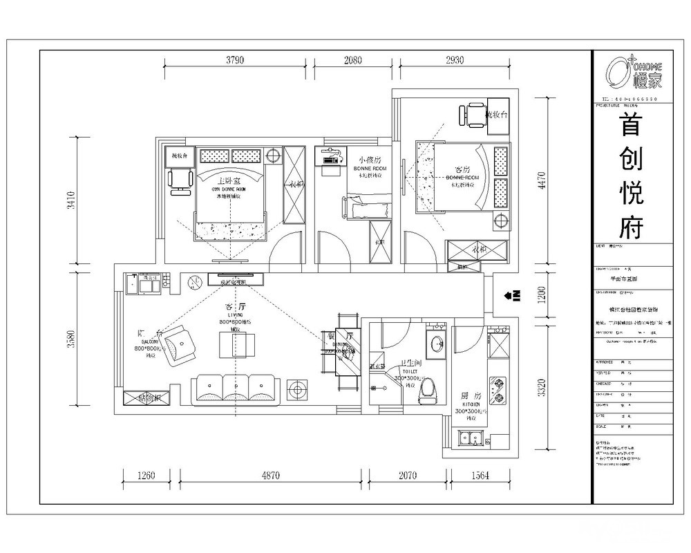
【小区名称】:首创悦府
【套内面积】:92.8平
【房
型】:二室一厅一厨一卫
【装修风格】:北欧
【包工方式】:全包
【装修总费用】:不含软装家电家具等一起6W3左右
【原始结构图】
【平面方案图】
【开工大吉】
已有 优金瓷美缝, 老友记装饰客服
2
人打赏
2017-9-28 15:48
1楼
0511家装频道:本地家居服务平台,数万业主共同选择
只看该作者
分享本楼
优金瓷美缝
来自 江苏省
精华 0
注册 2016-10-20
行业 其它
赞无评论,快抢沙发。恭喜恭喜
---发自iPhone 6---
2017-9-28 15:49
2楼
0511家装频道:本地家居服务平台,数万业主共同选择
只看该作者
分享本楼
镇江碧桂园橙家
来自 江苏省
精华 0
注册 2017-9-28
打拆砌墙,水电定位
【打拆砌墙,水电定位】
2017-9-28 15:52
3楼
0511家装频道:本地家居服务平台,数万业主共同选择
只看该作者
分享本楼
shen3711590
来自 江苏省
精华 0
注册 2012-4-12
行业 学生
碧桂园也做装修了?挺期待的!坐等更新啊!
2017-9-28 15:59
4楼
[联宇电脑] 电脑组装\维修\升级\企业单位电脑维护!
只看该作者
分享本楼
小莫莫30
来自 江苏省
精华 0
注册 2015-3-23
QUOTE:
原帖由
镇江碧桂园橙家
于 17-9-28 15:52 发表
【打拆砌墙,水电定位】
[attach]22901168[/attach]
[attach]22901167[/attach]
[attach]22901166[/attach]
开工大吉,开工大吉,
---发自OPPO R9---
2017-9-28 15:59
5楼
0511家装频道:本地家居服务平台,数万业主共同选择
只看该作者
分享本楼
c826750683
来自 江苏省
精华 0
注册 2010-10-10
行业 其它
期待装修效果,有时间去看看去
2017-9-28 16:02
6楼
[联宇电脑] 电脑组装\维修\升级\企业单位电脑维护!
只看该作者
分享本楼
我最帅我最帅
来自 江苏省
精华 0
注册 2017-9-28
王老吉给我来一罐!
2017-9-28 16:06
7楼
找工作,就上MY0511!
只看该作者
分享本楼
苏格格苏
来自 江苏省
精华 0
注册 2017-9-28
碧桂园也做装修了?很期待,到时候去看看施工
---发自梦溪论坛手机客户端---
2017-9-28 16:07
8楼
0511家装频道:本地家居服务平台,数万业主共同选择
只看该作者
分享本楼
sowhat888
来自 江苏省
精华 0
注册 2017-9-28
QUOTE:
原帖由
镇江碧桂园橙家
于 17-9-28 15:52 发表
【打拆砌墙,水电定位】
[attach]22901168[/attach]
[attach]22901167[/attach]
[attach]22901166[/attach]
听说不错,相信碧桂园这个大牌子,逛街的时候去看看
---发自OPPO R9---
2017-9-28 16:11
9楼
买房、卖房、租房上镇江房产网!
只看该作者
分享本楼
红红火火恍恍惚
来自 江苏省
精华 0
注册 2017-9-28
碧桂园也做装修?很想看看装修完的效果
2017-9-28 16:12
10楼
[联宇电脑] 电脑组装\维修\升级\企业单位电脑维护!
只看该作者
分享本楼
刘老大;
来自 江苏省
精华 0
注册 2017-9-28
开工大吉,期待效果
2017-9-28 16:29
11楼
0511家装频道:本地家居服务平台,数万业主共同选择
只看该作者
分享本楼
艾特a艾特a
来自 江苏省
精华 0
注册 2017-9-23
碧桂园唉,蛮期待的!
---发自梦溪论坛手机客户端---
2017-9-28 16:36
12楼
找工作,就上MY0511!
只看该作者
分享本楼
柏尔地板
来自 江苏省
精华 0
注册 2017-3-13
开工大吉一切顺利!
---发自梦溪论坛手机客户端---
2017-9-29 05:45
13楼
买房、卖房、租房上镇江房产网!
只看该作者
分享本楼
法诗顿滑动门
来自 江苏省
精华 0
注册 2017-9-5
这个装修费用很低啊,期待效果!
祝开工大吉
---发自华为---
2017-9-29 12:23
14楼
[联宇电脑] 电脑组装\维修\升级\企业单位电脑维护!
只看该作者
分享本楼
宇祥装饰客服
来自 0
精华
8
注册 2010-9-13
行业 房产建筑
开工大吉 期待效果
2017-9-29 12:27
15楼
[联宇电脑] 电脑组装\维修\升级\企业单位电脑维护!
只看该作者
分享本楼
宇祥装饰客服
来自 0
精华
8
注册 2010-9-13
行业 房产建筑
QUOTE:
原帖由
法诗顿滑动门
于 17-9-29 12:23 发表
这个装修费用很低啊,期待效果!
祝开工大吉
谢谢您的支持,我们会为客户提供最合理的价格
2017-9-30 08:57
16楼
MY0511相亲,一分钟注册,享一辈子幸福!
只看该作者
分享本楼
科恩厨房电器
来自 江苏省
精华 0
注册 2017-7-20
行业 其它
2017-9-30 09:22
17楼
[联宇电脑] 电脑组装\维修\升级\企业单位电脑维护!
只看该作者
分享本楼
cyrinda
来自 江苏省
精华 0
注册 2008-4-13
行业 IT 通信
开工大吉
2017-9-30 09:42
18楼
MY0511相亲,一分钟注册,享一辈子幸福!
只看该作者
分享本楼
莫、小嗳
VIP
来自 江苏省
精华
13
注册 2011-1-8
行业 其它
恭喜开工
2017-9-30 09:44
19楼
0511家装频道:本地家居服务平台,数万业主共同选择
只看该作者
分享本楼
执念一生
来自 江苏省
精华 0
注册 2017-5-19
恭喜开工
---发自vivo---
2017-10-2 10:04
20楼
MY0511相亲,一分钟注册,享一辈子幸福!
只看该作者
分享本楼
镇江碧桂园橙家
来自 江苏省
精华 0
注册 2017-9-28
工程步骤之丨水电开槽,弹线丨
【水电开槽,弹线】:
【布线,套管】:
2017-10-4 15:18
21楼
[联宇电脑] 电脑组装\维修\升级\企业单位电脑维护!
只看该作者
分享本楼
水幽伶
来自 江苏省
精华
6
注册 2004-5-30
行业 其它
开工大吉
---发自iPhone 6 Plus---
2017-10-9 14:42
22楼
0511家装频道:本地家居服务平台,数万业主共同选择
只看该作者
分享本楼
大唐合盛瓷砖
来自 江苏省
精华 0
注册 2014-8-14
行业 商业贸易
开工大吉
2017-10-9 16:06
23楼
找工作,就上MY0511!
只看该作者
分享本楼
莫干山衣柜
来自 江苏省
精华 0
注册 2012-8-13
行业 其它
开工大吉
2017-10-14 10:40
24楼
买房、卖房、租房上镇江房产网!
只看该作者
分享本楼
正大装修管家
来自 江苏省
精华 0
注册 2017-9-29
开工大吉
2017-10-14 11:36
25楼
买房、卖房、租房上镇江房产网!
只看该作者
分享本楼
宝贝爱你88
来自 江苏省
精华 0
注册 2016-9-21
18652898001,专业美缝十年,活好价低
---发自梦溪论坛手机客户端---
2017-10-27 11:30
26楼
找工作,就上MY0511!
只看该作者
分享本楼
志邦厨柜客服
家装认证商户
来自 江苏省
精华
3
注册 2007-7-4
行业 其它
开工大吉
2017-10-31 14:21
27楼
[联宇电脑] 电脑组装\维修\升级\企业单位电脑维护!
只看该作者
分享本楼
返回家庭装修
快速回复主题
游客
您目前还是游客,请
登录
或
注册
您目前是游客,本帖已被系统设置了自动关闭,不可回复!
文明交流,理性发言
0/5000字
<
>
请在打开的新窗口中支付完成打赏
我已完成支付打赏
支付失败重新支付
其他金额
打赏金额:
元
确定
支付打赏
提 现
打赏人
打赏金额(元)
打赏时间
优金瓷美缝
1.00
2017-9-28 15:49
老友记装饰客服
1.00
2017-9-30 10:28
Powered by
Discuz! X 2
0.074649 s
清除 Cookies
-
镇江网友之家
-
手机版
论坛导航
关闭
吃喝玩乐
饮食男女
镇江钓友之家
菜菜鸟户外
镇江单车俱乐部
镜头里的镇江
畅游天下
猫狗总动员
视觉Coffeeshop摄影部落
花鸟鱼虫
婚姻.亲子.家庭
家有学子
谈婚论嫁
女性天地
母婴乐园
婚姻生活
梦溪佳缘
装修
家庭装修
装修招标
镇江室内设计师交流
装修商家直通车
你好,镇江!
百姓话题
我要买房
0511爱心家园
市场监管•12315热线
分类信息
生活服务
闲置转让
镇江二手房/镇江租房
镇江招聘求职
教育培训
镇江二手车
商铺厂房写字楼租售
宠物市场
运动健身
卡券交易
电脑维修升级
杂货铺
其他分类信息区
兴趣爱好
HiFi音响江城沙龙
镇江市美术家协会
我爱模型
车友俱乐部
车迷之家
汽车驾培中心
运动俱乐部
镇江市冬泳、铁人三项协会
聚焦足球
镇江羽毛球
镇江乒乓球协会
镇江网球协会
镇江市自行车运动协会
热爱篮球
动力机车
合作栏目
维权热线
天翼时代
色觉影像摄影工作室
站务区
疑问与建议
网络问政
市政府工作部门
垂直管理部门
党群工作部门
其他重点单位
辖市(区)