这是我第一次装修房子,虽然不是首套房,但亲自装修可是第一次,当初选择中南就是因为环境好,而且自己原来的家也是这一片的,不想更换原居住区域可能是我选择中南最大的原因吧。
好不容易买套自己喜欢的房子肯定有很多的想象,在网上也找过很多相关的资料,看过很多图片都好好看,但毕竟自己不是专业人士,而且装修要花很多时间也很烦,但是有点比较明确的是我就是想找家大公司负责装修事宜,因为看过太多找了熟人或者小公司装修的,最后都有很多问题,所以在确定了这一基调的情况下经过3家公司的对比,最后还是决定选择一号家居网,原因很简单,设计师真的很负责任,不仅设计风格和方案是我想要的,而且出图速度极快,满足了我这个急性子的要求。
【小区名称】:中南世纪城
【建筑面积】:163复式
【装修风格】:小美(钟情于美式风格,小美比较年轻化一些)
【包工方式】:小全包
【装修公司】:一号家居网
【设计师】:周珺
【开工日期】:2017.8.5
【装修预算】:30万(毕竟买房子花了不小的一笔,装修这件事情只能省省省了)
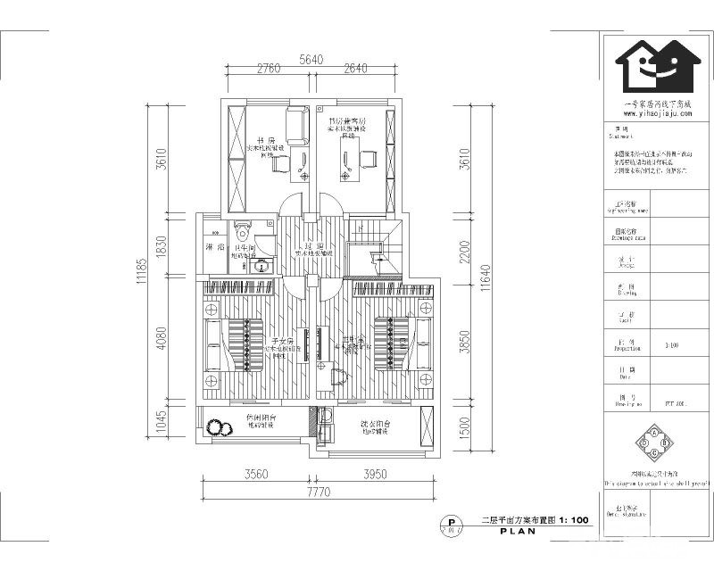
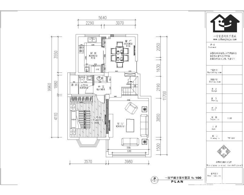
【平面方案】:见图
- 来自 江苏省
- 精华 0
- 注册 2017-8-17
- 来自 江苏省
- 精华 0
- 注册 2017-8-17
- 来自 江苏省
- 精华 0
- 注册 2017-3-13
- 来自 江苏省
- 精华 0
- 注册 2017-8-17
- 来自 江苏省
- 精华 0
- 注册 2017-8-17
- 来自 江苏省
- 精华 0
- 注册 2017-8-17
- 来自 江苏省
- 精华 0
- 注册 2016-10-7










