收藏本站
客户端
扫码下载客户端
官方微信
打开微信扫一扫
登录
|
注册
|
标题
标题
用户
全站首页
|
论坛导航
|
网络问政
|
招聘求职
|
买房租房
|
装修频道
|
生活服务
|
教育
|
相亲
|
亲子
|
美食
|
婚嫁
|
手机客户端
家有学子
|
母婴乐园
快捷导航
精彩推荐:
MY0511客户端下载
中信银行镇江分行
公益体彩 乐善人生
鹏龙鸿蒙
天然石材·人造石
»
梦溪论坛
»
家庭装修
» 秋日私语------(万科蓝山洋房美式毕业照)
家庭装修
>
[完工毕业照]
秋日私语------(万科蓝山洋房美式毕业照)
查看: 154088 回复: 414
快速回复
返回家庭装修
415
1/9
1
2
3
4
5
6
7
8
9
>
[完工毕业照]
秋日私语------(万科蓝山洋房美式毕业照)
查看: 154088 回复: 414
上一主题
|
下一主题
呆呆猪
版主
来自 江苏省
精华
181
注册 2003-7-9
行业 政府行政
秋日私语------(万科蓝山洋房美式毕业照)
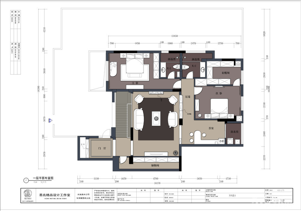
作品:秋日私语(万科蓝山洋房)
设计单位: 易兆精品设计
设 计 师: 杨博 杨砾
设计风格: 美式
项目面积: 200㎡
车水马龙
真切、喧嚣
彷徨 怀想
曲水 流觞
深、
白
缅怀,
一半烟火
一半清欢
[
本帖最后由 呆呆猪 于 18-4-16 22:00 编辑
]
已有 红居装饰
1
人打赏
2018-4-16 21:52
1楼
0511家装频道:本地家居服务平台,数万业主共同选择
只看该作者
分享本楼
呆呆猪
版主
来自 江苏省
精华
181
注册 2003-7-9
行业 政府行政
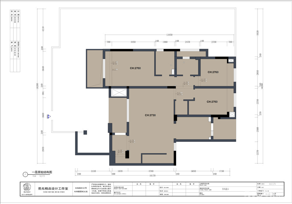
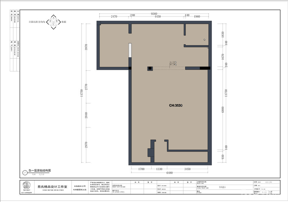
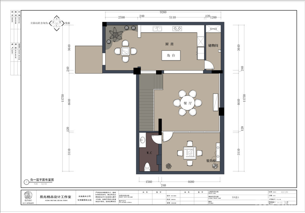
这个房子是买一楼赠送的地下室,地下室的层高不错,但光线和通风有所欠缺,所以我们的设计重点就是:如何让地下室变的有生机。
2018-4-16 22:04
2楼
MY0511相亲,一分钟注册,享一辈子幸福!
只看该作者
分享本楼
嘛爱零伍妖妖
来自 江苏省
精华 0
注册 2017-5-13
能多发几张不?
---发自梦溪论坛手机客户端---
2018-4-16 22:04
3楼
0511家装频道:本地家居服务平台,数万业主共同选择
只看该作者
分享本楼
呆呆猪
版主
来自 江苏省
精华
181
注册 2003-7-9
行业 政府行政
在一楼的设计上我们的重点就是楼梯的开口位置,如何让它和地下室形成更好的互动并让地下室更好的采光和通风!
2018-4-16 22:06
4楼
0511家装频道:本地家居服务平台,数万业主共同选择
只看该作者
分享本楼
szw998225
来自 江苏省
精华
1
注册 2008-11-22
行业 IT 通信
强行插入
2018-4-16 22:06
5楼
MY0511相亲,一分钟注册,享一辈子幸福!
只看该作者
分享本楼
呆呆猪
版主
来自 江苏省
精华
181
注册 2003-7-9
行业 政府行政
我们选择把楼梯开在了客厅窗子处,并在楼梯的尽头开一个经典的圆窗,点缀了风格又能和采光天井 内的室内花园形成互动,增添生机!
2018-4-16 22:09
6楼
[联宇电脑] 电脑组装\维修\升级\企业单位电脑维护!
只看该作者
分享本楼
呆呆猪
版主
来自 江苏省
精华
181
注册 2003-7-9
行业 政府行政
2018-4-16 22:10
7楼
0511家装频道:本地家居服务平台,数万业主共同选择
只看该作者
分享本楼
呆呆猪
版主
来自 江苏省
精华
181
注册 2003-7-9
行业 政府行政
天井内本意是要种棕榈树 和绿植墙的,由于种种原因和客观因素,换成了荔枝树和 鱼池!
2018-4-16 22:11
8楼
买房、卖房、租房上镇江房产网!
只看该作者
分享本楼
呆呆猪
版主
来自 江苏省
精华
181
注册 2003-7-9
行业 政府行政
2018-4-16 22:12
9楼
找工作,就上MY0511!
只看该作者
分享本楼
呆呆猪
版主
来自 江苏省
精华
181
注册 2003-7-9
行业 政府行政
2018-4-16 22:13
10楼
0511家装频道:本地家居服务平台,数万业主共同选择
只看该作者
分享本楼
呆呆猪
版主
来自 江苏省
精华
181
注册 2003-7-9
行业 政府行政
很有个性的钟
2018-4-16 22:14
11楼
找工作,就上MY0511!
只看该作者
分享本楼
呆呆猪
版主
来自 江苏省
精华
181
注册 2003-7-9
行业 政府行政
一楼的层高问题,做完地暖后最高点只有2.6米了,故而在家具和灯的选择上我们用了无铁链的吊灯和浅色的布艺沙发,这样让空间生动灵快而不压抑。
[
本帖最后由 呆呆猪 于 18-4-16 22:16 编辑
]
2018-4-16 22:16
12楼
[联宇电脑] 电脑组装\维修\升级\企业单位电脑维护!
只看该作者
分享本楼
呆呆猪
版主
来自 江苏省
精华
181
注册 2003-7-9
行业 政府行政
背景用了一块纹理特好的天然石材,在丰富材料纹理和色彩的同时增加了大自然的生命能量。
2018-4-16 22:17
13楼
MY0511相亲,一分钟注册,享一辈子幸福!
只看该作者
分享本楼
呆呆猪
版主
来自 江苏省
精华
181
注册 2003-7-9
行业 政府行政
2018-4-16 22:18
14楼
MY0511相亲,一分钟注册,享一辈子幸福!
只看该作者
分享本楼
呆呆猪
版主
来自 江苏省
精华
181
注册 2003-7-9
行业 政府行政
2018-4-16 22:19
15楼
找工作,就上MY0511!
只看该作者
分享本楼
呆呆猪
版主
来自 江苏省
精华
181
注册 2003-7-9
行业 政府行政
2018-4-16 22:20
16楼
[联宇电脑] 电脑组装\维修\升级\企业单位电脑维护!
只看该作者
分享本楼
呆呆猪
版主
来自 江苏省
精华
181
注册 2003-7-9
行业 政府行政
咖啡吧
2018-4-16 22:21
17楼
买房、卖房、租房上镇江房产网!
只看该作者
分享本楼
呆呆猪
版主
来自 江苏省
精华
181
注册 2003-7-9
行业 政府行政
主卧室
2018-4-16 22:22
18楼
0511家装频道:本地家居服务平台,数万业主共同选择
只看该作者
分享本楼
呆呆猪
版主
来自 江苏省
精华
181
注册 2003-7-9
行业 政府行政
散热片真的 没有地暖好看
2018-4-16 22:23
19楼
买房、卖房、租房上镇江房产网!
只看该作者
分享本楼
呆呆猪
版主
来自 江苏省
精华
181
注册 2003-7-9
行业 政府行政
2018-4-16 22:27
20楼
买房、卖房、租房上镇江房产网!
只看该作者
分享本楼
用劲活着
来自 江苏省
精华 0
注册 2018-1-9
---发自iPhone 7 Plus---
2018-4-16 22:27
21楼
[联宇电脑] 电脑组装\维修\升级\企业单位电脑维护!
只看该作者
分享本楼
冰枫落颖
来自 江苏省
精华 0
注册 2011-7-16
行业 其它
一起大概花了多少钱?
---发自梦溪论坛手机客户端---
2018-4-16 22:35
22楼
买房、卖房、租房上镇江房产网!
只看该作者
分享本楼
我想有颗星星
来自 江苏省
精华
1
注册 2009-6-19
行业 其它
---发自三星---
2018-4-16 23:54
23楼
找工作,就上MY0511!
只看该作者
分享本楼
紫水晶soneya
来自 江苏省
精华 0
注册 2008-10-30
行业 医疗卫生
房子花了多少大洋啊!
---发自iPhone 7---
2018-4-17 00:00
24楼
[联宇电脑] 电脑组装\维修\升级\企业单位电脑维护!
只看该作者
分享本楼
随波浮萍
来自 江苏省
精华 0
注册 2011-7-31
行业 医疗卫生
同问
---发自iPhone 8 Plus---
2018-4-17 00:29
25楼
找工作,就上MY0511!
只看该作者
分享本楼
wm545193050
来自 江苏省
精华 0
注册 2014-11-25
---发自iPhone 6 Plus---
2018-4-17 07:13
26楼
0511家装频道:本地家居服务平台,数万业主共同选择
只看该作者
分享本楼
墙面手绘蝴蝶兰
来自 江苏省
精华 0
注册 2011-10-9
行业 信息咨询
---发自华为---
2018-4-17 07:36
27楼
找工作,就上MY0511!
只看该作者
分享本楼
饭冰冰吃冰
来自 江苏省
精华 0
注册 2014-12-25
行业 教育科研
非常棒,尤其是楼梯的设计简直是神来之笔
记住这个设计公司了,下次装修可以考虑
2018-4-17 09:14
28楼
0511家装频道:本地家居服务平台,数万业主共同选择
只看该作者
分享本楼
杨博
来自 江苏省
精华
2
注册 2009-5-9
行业 信息咨询
感谢0511网友的关注,感谢呆呆猪版主
2018-4-17 09:15
29楼
0511家装频道:本地家居服务平台,数万业主共同选择
只看该作者
分享本楼
德意﹨丽博橱柜
家装认证商户
来自 江苏省
精华 0
注册 2013-1-15
行业 商业贸易
果然大师手笔
这才是美式
2018-4-17 09:22
30楼
买房、卖房、租房上镇江房产网!
只看该作者
分享本楼
杨博
来自 江苏省
精华
2
注册 2009-5-9
行业 信息咨询
QUOTE:
原帖由
饭冰冰吃冰
于 18-4-17 09:14 发表
非常棒,尤其是楼梯的设计简直是神来之笔
记住这个设计公司了,下次装修可以考虑
谢谢夸奖!
2018-4-17 09:23
31楼
0511家装频道:本地家居服务平台,数万业主共同选择
只看该作者
分享本楼
A朱玥
来自 江苏省
精华 0
注册 2017-2-18
接地气的家居设计
2018-4-17 09:33
32楼
[联宇电脑] 电脑组装\维修\升级\企业单位电脑维护!
只看该作者
分享本楼
易兆精品设计
家装认证商户
来自 江苏省
精华
75
注册 2017-2-10
行业 房产建筑
2019开门红团购会:
https://bbs.my0511.com/f96b-t7061369z-1
山水半岛日记:
http://bbs.my0511.com/f95b-t6975778z-1
万科沁园日记:
http://bbs.my0511.com/f95b-t7007598z-1#pid106284961
北固湾日记:
http://bbs.my0511.com/f95b-t6823804z-1-2
松盛园日记:
http://bbs.my0511.com/f95b-t6654589z-1
[
本帖最后由 易兆精品设计 于 2018-12-5 11:32 编辑
]
2018-4-17 09:38
33楼
0511家装频道:本地家居服务平台,数万业主共同选择
只看该作者
分享本楼
易兆精品设计
家装认证商户
来自 江苏省
精华
75
注册 2017-2-10
行业 房产建筑
QUOTE:
原帖由
呆呆猪
于 18-4-16 22:22 发表
主卧室
感谢版主的分享!十分感谢!
[
本帖最后由 易兆精品设计 于 18-4-17 09:44 编辑
]
2018-4-17 09:40
34楼
0511家装频道:本地家居服务平台,数万业主共同选择
只看该作者
分享本楼
易兆精品设计
家装认证商户
来自 江苏省
精华
75
注册 2017-2-10
行业 房产建筑
QUOTE:
原帖由
德意﹨丽博橱柜
于 18-4-17 09:22 发表
果然大师手笔
这才是美式
2018-4-17 09:41
35楼
买房、卖房、租房上镇江房产网!
只看该作者
分享本楼
372972954
来自 江苏省
精华 0
注册 2013-7-18
行业 其它
落地成品效果
2018-4-17 09:46
36楼
MY0511相亲,一分钟注册,享一辈子幸福!
只看该作者
分享本楼
372972954
来自 江苏省
精华 0
注册 2013-7-18
行业 其它
落地成品效果
2018-4-17 09:54
37楼
买房、卖房、租房上镇江房产网!
只看该作者
分享本楼
打雷下雨踢踢球
来自 江苏省
精华 0
注册 2017-2-17
行业 房产建筑
2018-4-17 10:03
38楼
找工作,就上MY0511!
只看该作者
分享本楼
都天夫人
来自 江苏省
精华 0
注册 2017-8-29
你家的钱真好挣!我就看看!
---发自梦溪论坛手机客户端---
2018-4-17 10:16
39楼
[联宇电脑] 电脑组装\维修\升级\企业单位电脑维护!
只看该作者
分享本楼
djq
来自 江苏省
精华
3
注册 2002-11-10
漂亮,好看!
但是不适合一般人!这么大房子就2个房间!朝南阳台也没了,晒洗衣物去哪?
2018-4-17 11:38
40楼
MY0511相亲,一分钟注册,享一辈子幸福!
只看该作者
分享本楼
贝音未了
来自 江苏省
精华 0
注册 2013-9-25
赞哦
2018-4-17 16:46
41楼
0511家装频道:本地家居服务平台,数万业主共同选择
只看该作者
分享本楼
金庸
MIP
来自 江苏省
精华
10
注册 2006-5-7
行业 其它
QUOTE:
原帖由
呆呆猪
于 18-4-16 22:23 发表
散热片真的 没有地暖好看
散热片优点是可以天天开关,节约能源,但效果确实没有地暖好。
2018-4-17 17:12
42楼
找工作,就上MY0511!
只看该作者
分享本楼
啊铖
来自 0
精华
34
注册 2007-12-10
行业 教育科研
2018-4-17 22:53
43楼
0511家装频道:本地家居服务平台,数万业主共同选择
只看该作者
分享本楼
my0511影子
版主
来自 江苏省
精华
39
注册 2007-1-1
行业 教育科研
2018-4-20 14:22
44楼
MY0511相亲,一分钟注册,享一辈子幸福!
只看该作者
分享本楼
德意﹨丽博橱柜
家装认证商户
来自 江苏省
精华 0
注册 2013-1-15
行业 商业贸易
帮顶
---发自梦溪论坛手机客户端---
2018-4-20 14:28
45楼
买房、卖房、租房上镇江房产网!
只看该作者
分享本楼
金宇装饰
家装认证商户
来自 江苏省
精华
53
注册 2006-9-5
行业 房产建筑
2018-4-20 15:18
46楼
MY0511相亲,一分钟注册,享一辈子幸福!
只看该作者
分享本楼
红居装饰
专版版主
来自 江苏省
精华
416
注册 2016-10-30
行业 房产建筑
很喜欢房子里的绿植设计!
2018-4-20 15:23
47楼
0511家装频道:本地家居服务平台,数万业主共同选择
只看该作者
分享本楼
Z张玉兰
来自 江苏省
精华 0
注册 2015-6-16
帮顶
---发自vivo---
2018-4-20 23:44
48楼
0511家装频道:本地家居服务平台,数万业主共同选择
只看该作者
分享本楼
随波浮萍
来自 江苏省
精华 0
注册 2011-7-31
行业 医疗卫生
厨房放到地下室,下水怎么处理?
---发自iPhone 8 Plus---
2018-4-21 10:45
49楼
找工作,就上MY0511!
只看该作者
分享本楼
A朱玥
来自 江苏省
精华 0
注册 2017-2-18
QUOTE:
原帖由
金宇装饰
于 18-4-20 15:18 发表
欢迎交流
2018-4-26 09:18
50楼
买房、卖房、租房上镇江房产网!
只看该作者
分享本楼
返回家庭装修
415
1/9
1
2
3
4
5
6
7
8
9
>
快速回复主题
游客
您目前还是游客,请
登录
或
注册
您目前是游客,本帖已被系统设置了自动关闭,不可回复!
文明交流,理性发言
0/5000字
<
>
请在打开的新窗口中支付完成打赏
我已完成支付打赏
支付失败重新支付
其他金额
打赏金额:
元
确定
支付打赏
提 现
打赏人
打赏金额(元)
打赏时间
红居装饰
1.00
2018-5-4 10:01
Powered by
Discuz! X 2
0.053243 s
清除 Cookies
-
镇江网友之家
-
手机版
论坛导航
关闭
吃喝玩乐
饮食男女
镇江钓友之家
菜菜鸟户外
镇江单车俱乐部
镜头里的镇江
畅游天下
猫狗总动员
视觉Coffeeshop摄影部落
花鸟鱼虫
婚姻.亲子.家庭
家有学子
谈婚论嫁
女性天地
母婴乐园
婚姻生活
梦溪佳缘
装修
家庭装修
装修招标
镇江室内设计师交流
装修商家直通车
你好,镇江!
百姓话题
我要买房
0511爱心家园
市场监管•12315热线
分类信息
生活服务
闲置转让
镇江二手房/镇江租房
镇江招聘求职
教育培训
镇江二手车
商铺厂房写字楼租售
宠物市场
运动健身
卡券交易
电脑维修升级
杂货铺
其他分类信息区
兴趣爱好
HiFi音响江城沙龙
镇江市美术家协会
我爱模型
车友俱乐部
车迷之家
汽车驾培中心
运动俱乐部
镇江市冬泳、铁人三项协会
聚焦足球
镇江羽毛球
镇江乒乓球协会
镇江网球协会
镇江市自行车运动协会
热爱篮球
动力机车
合作栏目
维权热线
天翼时代
色觉影像摄影工作室
站务区
疑问与建议
网络问政
市政府工作部门
垂直管理部门
党群工作部门
其他重点单位
辖市(区)