| 标题
快捷导航

精彩推荐:MY0511客户端下载

    • 中信银行镇江分行

    • 公益体彩 乐善人生

    • 鹏龙鸿蒙

    • 天然石材·人造石

    » 梦溪论坛 » 家庭装修 » 效果图vs实景图,傻傻分不清楚,北固湾140平轻奢风实景毕业照------《行色》
    家庭装修  >  [完工毕业照] 效果图vs实景图,傻傻分不清楚,北固湾140平轻奢风实景毕业照------《行色》     
    查看: 52348  回复: 38
    [完工毕业照] 效果图vs实景图,傻傻分不清楚,北固湾140平轻奢风实景毕业照------《行色》      查看: 52348  回复: 38
    • 来自 江苏省
    • 精华 9
    • 注册 2005-10-29
    • 晒家
    •  
    效果图vs实景图,傻傻分不清楚,北固湾140平轻奢风实景毕业照------《行色》




    人生犹如一场旅行,


    或匆匆而行,不惧一路风雨;


    亦或驻足而观,一览沿途壮丽。


    一路前行,家便是这旅途中的驿站,


    它是为理想而行的起点,


    也是为归宿驻足的终点。





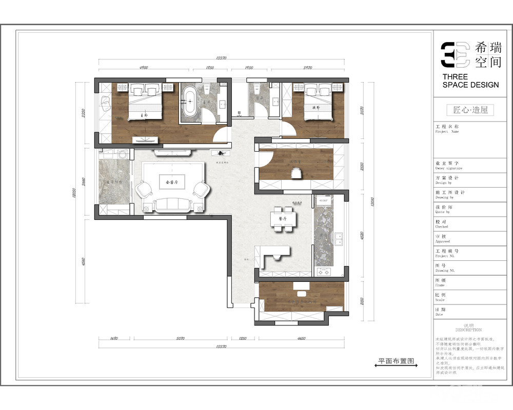
    户型信息:

    [工程地址]:招商北固湾三期

    [户型结构]:四室两厅

    [测量面积]:140平

    [设计风格]:轻奢

    [设 计 师 ]:吴姗姗——希瑞空间设计










    [ 本帖最后由 my0511小妖 于 18-4-23 16:21 编辑 ]





                      
    • 来自 江苏省
    • 精华 9
    • 注册 2005-10-29
    • 晒家
    •  

    [ 平面布置图 ]:



    本案业主是一位美妆造型师,为人时尚前卫。因此全屋大量使用了现代感十足的不锈钢线条来勾勒,


    硬装上以黑白灰色调贯穿整体设计,软装上搭配色彩鲜艳,质地柔软的沙发,座椅及窗帘。


    犹如漫漫人生路上的那一抹迷人风景,不妖娆,却足够惊艳,愿以此屋之景,壮人生行色。



    [ 本帖最后由 my0511小妖 于 18-4-23 16:04 编辑 ]




    • 来自 江苏省
    • 精华 9
    • 注册 2005-10-29
    • 晒家
    •  

    [ 效果图 ]:





    [ 本帖最后由 my0511小妖 于 18-4-23 16:06 编辑 ]




    • 来自 江苏省
    • 精华 9
    • 注册 2005-10-29
    • 晒家
    •  

    [实景图]:






































    [ 本帖最后由 my0511小妖 于 18-4-23 16:12 编辑 ]




    • 来自 江苏省
    • 精华 9
    • 注册 2005-10-29
    • 晒家
    •  

    【关于希瑞空间】

    add:黄山西路26号领城国际A座1426室

    T:0511-89982112

    M:15050868630

    扫下方微信,和本案设计师聊一聊









    [ 本帖最后由 my0511小妖 于 18-4-23 16:20 编辑 ]




    • 来自 江苏省
    • 精华 1
    • 注册 2008-4-22
    • 行业 其它
    • 梦溪宝贝
    •  

    和我家一样的户型,用色大胆!




    • 来自 江苏省
    • 精华 0
    • 注册 2010-4-11
    • 行业 其它
    •  

    看着空间好大,风格霸气




    • 来自 江苏省
    • 精华 0
    • 注册 2014-10-13
    • 行业 教育科研
    •  






    • 来自 江苏省
    • 精华 0
    • 注册 2017-10-24
    •  

    跟我家很像




    • 来自 江苏省
    • 精华 0
    • 注册 2013-11-24
    •  

    感觉好大啊




    • 来自 江苏省
    • 精华 0
    • 注册 2015-8-16
    • 行业 房产建筑
    •  

    好看 好看  这用色超级赞  设计师与客户都是有品位的




    • 来自 江苏省
    • 精华 8
    • 注册 2010-9-13
    • 行业 房产建筑
    •  

    恭喜毕业!




    • 来自 江苏省
    • 精华 0
    • 注册 2010-7-20
    • 行业 政府行政
    • 钓鱼达人
    •  






    • 来自 江苏省
    • 精华 5
    • 注册 2009-1-26
    • 行业 学生
    • 结婚勋章
    •  

    轩轩家   超级美




    • 来自 江苏省
    • 精华 53
    • 注册 2006-9-5
    • 行业 房产建筑
    •  

    好喜欢




    • 来自 江苏省
    • 精华 3
    • 注册 2007-6-2
    • 行业 商业贸易
    •  

    请问阳台柜子哪里定做的?




    • 来自 江苏省
    • 精华 6
    • 注册 2004-5-30
    • 行业 其它
    •  

    超喜欢的风格




    • 来自 江苏省
    • 精华 0
    • 注册 2016-2-1
    •  

    太好看了,轩轩也好美,




    • 来自 江苏省
    • 精华 18
    • 注册 2017-7-9
    •  


    QUOTE:
    原帖由 不完全1加1 于 18-4-28 16:45 发表
    请问阳台柜子哪里定做的?
    已短




    • 来自 江苏省
    • 精华 6
    • 注册 2004-5-30
    • 行业 其它
    •  

    主卧背景墙的装饰在哪买嗲?




    • 来自 江苏省
    • 精华 18
    • 注册 2017-7-9
    •  


    QUOTE:
    原帖由 水幽伶 于 18-4-29 16:35 发表
    主卧背景墙的装饰在哪买嗲?
    软装家具都是网购哦




    • 来自 江苏省
    • 精华 0
    • 注册 2016-2-25
    •  

    衣柜是哪里做的?




    • 来自 江苏省
    • 精华 18
    • 注册 2017-7-9
    •  


    QUOTE:
    原帖由 可爱妞妞宝贝 于 18-5-2 21:42 发表
    衣柜是哪里做的?
    你好,已短




    • 来自 江苏省
    • 精华 2
    • 注册 2007-10-4
    • 行业 房产建筑
    •  






    • 来自 江苏省
    • 精华 0
    • 注册 2018-5-26
    •  

    好好看  超级好看




    • 来自 江苏省
    • 精华 0
    • 注册 2005-4-22
    • 行业 政府行政
    •  

    求衣柜是哪里做的?




    • 来自 0
    • 精华 0
    • 注册 2016-10-11
    • 行业 房产建筑
    •  

    夜幕下的北固湾,超时尚的摩登感!




    • 来自 江苏省
    • 精华 0
    • 注册 2017-5-4
    • 行业 商业贸易
    •  






    • 来自 江苏省
    • 精华 0
    • 注册 2017-12-11
    • 行业 其它
    •  

    感觉整个空间都很大,每个房间都有不一样的亮点!!




    • 来自 江苏省
    • 精华 10
    • 注册 2005-1-15
    • 行业 其它
    •  

    家俱也是网购的?能发个网址吗?




    • 来自 江苏省
    • 精华 0
    • 注册 2005-7-17
    •  

    请问电视柜、茶几和玄关柜在哪里买的吗?




    • 来自 江苏省
    • 精华 18
    • 注册 2017-7-9
    •  


    QUOTE:
    原帖由 我的木头 于 2018-10-9 16:41 发表
    请问电视柜、茶几和玄关柜在哪里买的吗?
    你好 家具全部网购,店名已短




    • 来自 江苏省
    • 精华 18
    • 注册 2017-7-9
    •  


    QUOTE:
    原帖由 5211314 于 2018-9-28 16:06 发表
    家俱也是网购的?能发个网址吗?
    你好 ,已短




    • 来自 江苏省
    • 精华 0
    • 注册 2017-5-10
    •  






    • 来自 上海
    • 精华 0
    • 注册 2017-8-29
    • 行业 房产建筑
    •  






    • 来自 江苏省
    • 精华 424
    • 注册 2016-10-30
    • 行业 房产建筑
    •  

    高端大气哦!




    • 来自 江苏省
    • 精华 18
    • 注册 2017-7-9
    •  


    QUOTE:
    原帖由 红居装饰 于 2018-10-31 16:10 发表
    高端大气哦!
    谢谢哦




    查看积分策略说明快速回复主题
    您目前还是游客,请 登录注册
    您目前是游客,本帖已被系统设置了自动关闭,不可回复!

    0/5000字

     
    < >
     

    Powered by Discuz! X 2 0.092381 s 清除 Cookies - 镇江网友之家 - 手机版
    论坛导航 关闭