收藏本站
客户端
扫码下载客户端
官方微信
打开微信扫一扫
登录
|
注册
|
标题
标题
用户
全站首页
|
论坛导航
|
网络问政
|
招聘求职
|
买房租房
|
装修频道
|
生活服务
|
教育
|
相亲
|
亲子
|
美食
|
婚嫁
|
手机客户端
家有学子
|
母婴乐园
快捷导航
精彩推荐:
MY0511客户端下载
中信银行镇江分行
公益体彩 乐善人生
鹏龙鸿蒙
天然石材·人造石
»
梦溪论坛
»
家庭装修
» 麻烦水电工进来看看
家庭装修
>
[其它话题]
麻烦水电工进来看看
查看: 9770 回复: 13
快速回复
返回家庭装修
[其它话题]
麻烦水电工进来看看
查看: 9770 回复: 13
上一主题
|
下一主题
zhuzhishun2
来自 江苏省
精华 0
注册 2011-7-26
行业 轻工化工
麻烦水电工进来看看
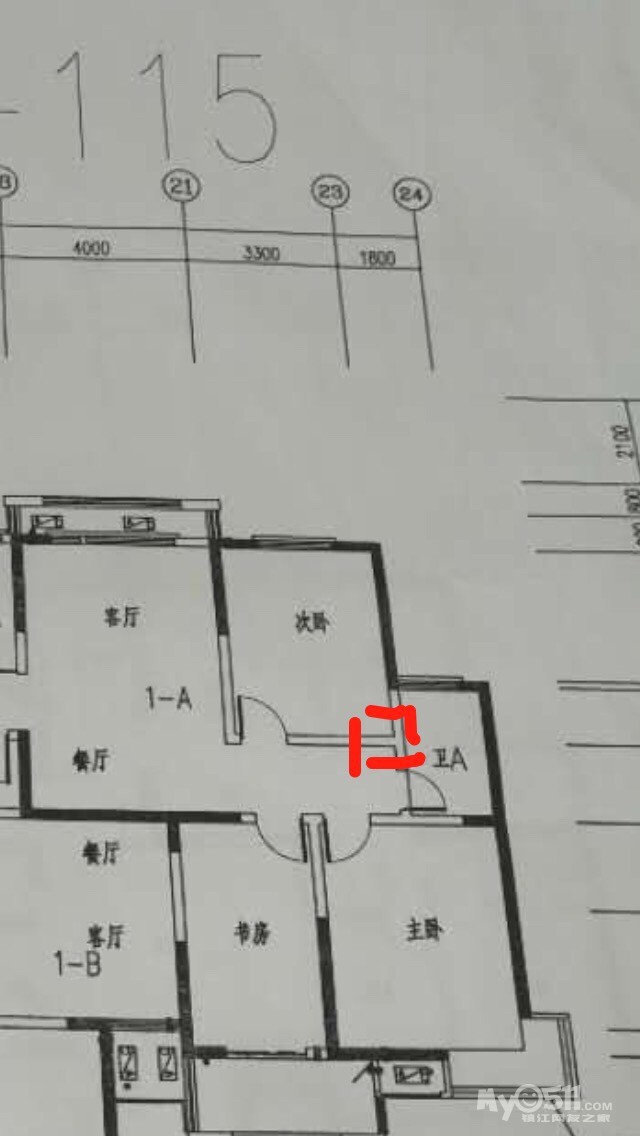
住20层共30层 。如图黄线位置是强电箱和弱电箱;想把强弱电箱这面墙敲掉,向卧室移80公分。问,这面墙能不能敲?
---发自iPhone 5S---
已有
0
人打赏
2018-5-16 21:54
1楼
MY0511相亲,一分钟注册,享一辈子幸福!
只看该作者
分享本楼
稀饭
来自 湖南省
精华
53
注册 2002-10-9
行业 基础设施
只有红线,没有黄线,不过高层住宅大都是剪力墙,敲不得
---发自iPhone 7---
2018-5-16 21:58
2楼
MY0511相亲,一分钟注册,享一辈子幸福!
只看该作者
分享本楼
赫章
来自 江苏省
精华 0
注册 2017-9-8
进户线怎么弄?
---发自梦溪论坛手机客户端---
2018-5-16 22:04
3楼
买房、卖房、租房上镇江房产网!
只看该作者
分享本楼
南湾人
来自 江苏省
精华 0
注册 2014-11-13
行业 其它
这个位置不要紧,二次结构
---发自iPhone 7---
2018-5-16 22:07
4楼
0511家装频道:本地家居服务平台,数万业主共同选择
只看该作者
分享本楼
zhuzhishun2
来自 江苏省
精华 0
注册 2011-7-26
行业 轻工化工
QUOTE:
原帖由
赫章
于 18-5-16 22:04 发表
进户线怎么弄?
能不能敲呢?
---发自iPhone 5S---
2018-5-16 22:12
5楼
0511家装频道:本地家居服务平台,数万业主共同选择
只看该作者
分享本楼
梦幻人生2009
来自 江苏省
精华 0
注册 2009-2-7
行业 其它
没事别砸墙,设计时都考虑好了,自家的墙随便你敲,上上下下左左右右几百户呢
---发自iPhone 6S Plus---
2018-5-16 23:52
6楼
[联宇电脑] 电脑组装\维修\升级\企业单位电脑维护!
只看该作者
分享本楼
吗意思
来自 0
精华 0
注册 2017-6-14
二次机构可以敲
---发自梦溪论坛手机客户端---
2018-5-17 00:15
7楼
找工作,就上MY0511!
只看该作者
分享本楼
执着s
来自 江苏省
精华 0
注册 2017-7-12
红色方框内不是承重墙可以敲 黑色的填充的墙是承重墙 空白的是空心砖砌的结构墙 可以敲
---发自iPhone 7---
2018-5-17 00:20
8楼
[联宇电脑] 电脑组装\维修\升级\企业单位电脑维护!
只看该作者
分享本楼
YORK空调
来自 江苏省
精华 0
注册 2018-5-17
黑色是承重墙 红色方框内图上看不属于承重墙 可以敲
---发自iPhone 8---
2018-5-17 00:47
9楼
MY0511相亲,一分钟注册,享一辈子幸福!
只看该作者
分享本楼
万帮土建
来自 0
精华 0
注册 2014-1-12
行业 基础设施
可以敲
2018-5-17 06:32
10楼
MY0511相亲,一分钟注册,享一辈子幸福!
只看该作者
分享本楼
大脸猫的永远
来自 江苏省
精华 0
注册 2016-1-12
QUOTE:
原帖由
稀饭
于 18-5-16 21:58 发表
只有红线,没有黄线,不过高层住宅大都是剪力墙,敲不得
黑白图纸上有红线?
---发自梦溪论坛手机客户端---
2018-5-17 06:50
11楼
找工作,就上MY0511!
只看该作者
分享本楼
欧典装潢
来自 江苏省
精华 0
注册 2017-2-16
行业 房产建筑
可以敲的,强,弱电不是问题!
---发自梦溪论坛手机客户端---
2018-5-17 06:54
12楼
MY0511相亲,一分钟注册,享一辈子幸福!
只看该作者
分享本楼
李双亚0211
来自 江苏省
精华 0
注册 2016-9-25
需要水电可以找我15850477881
---发自梦溪论坛手机客户端---
2018-5-18 20:32
13楼
MY0511相亲,一分钟注册,享一辈子幸福!
只看该作者
分享本楼
zhuzhishun2
来自 江苏省
精华 0
注册 2011-7-26
行业 轻工化工
---发自iPhone 5S---
2018-5-19 18:58
14楼
[联宇电脑] 电脑组装\维修\升级\企业单位电脑维护!
只看该作者
分享本楼
返回家庭装修
快速回复主题
游客
您目前还是游客,请
登录
或
注册
您目前是游客,本帖已被系统设置了自动关闭,不可回复!
文明交流,理性发言
0/5000字
<
>
请在打开的新窗口中支付完成打赏
我已完成支付打赏
支付失败重新支付
其他金额
打赏金额:
元
确定
支付打赏
提 现
打赏人
打赏金额(元)
打赏时间
Powered by
Discuz! X 2
0.065593 s
清除 Cookies
-
镇江网友之家
-
手机版
论坛导航
关闭
吃喝玩乐
饮食男女
镇江钓友之家
菜菜鸟户外
镇江单车俱乐部
镜头里的镇江
畅游天下
猫狗总动员
视觉Coffeeshop摄影部落
花鸟鱼虫
婚姻.亲子.家庭
家有学子
谈婚论嫁
女性天地
母婴乐园
婚姻生活
梦溪佳缘
装修
家庭装修
装修招标
镇江室内设计师交流
装修商家直通车
你好,镇江!
百姓话题
我要买房
0511爱心家园
市场监管•12315热线
分类信息
生活服务
闲置转让
镇江二手房/镇江租房
镇江招聘求职
教育培训
镇江二手车
商铺厂房写字楼租售
宠物市场
运动健身
卡券交易
电脑维修升级
杂货铺
其他分类信息区
兴趣爱好
HiFi音响江城沙龙
镇江市美术家协会
我爱模型
车友俱乐部
车迷之家
汽车驾培中心
运动俱乐部
镇江市冬泳、铁人三项协会
聚焦足球
镇江羽毛球
镇江乒乓球协会
镇江网球协会
镇江市自行车运动协会
热爱篮球
动力机车
合作栏目
维权热线
天翼时代
色觉影像摄影工作室
站务区
疑问与建议
网络问政
市政府工作部门
垂直管理部门
党群工作部门
其他重点单位
辖市(区)