收藏本站
客户端
扫码下载客户端
官方微信
打开微信扫一扫
登录
|
注册
|
标题
标题
用户
全站首页
|
论坛导航
|
网络问政
|
招聘求职
|
买房租房
|
装修频道
|
生活服务
|
教育
|
相亲
|
亲子
|
美食
|
婚嫁
|
手机客户端
家有学子
|
母婴乐园
快捷导航
精彩推荐:
MY0511客户端下载
中信银行镇江分行
公益体彩 乐善人生
鹏龙鸿蒙
天然石材·人造石
»
梦溪论坛
»
家庭装修
» 请教一下各位,初稿出来了 能不能帮小弟看一下有没有可以改动的地方
家庭装修
>
[其它话题]
请教一下各位,初稿出来了 能不能帮小弟看一下有没有可以改动的地方
查看: 10248 回复: 18
快速回复
返回家庭装修
[其它话题]
请教一下各位,初稿出来了 能不能帮小弟看一下有没有可以改动的地方
查看: 10248 回复: 18
上一主题
|
下一主题
耿直的boy
来自 江苏省
精华 0
注册 2016-5-23
请教一下各位,初稿出来了 能不能帮小弟看一下有没有可以改动的地方
初稿出来了 能不能帮小弟看一下有没有可以改动的地方
[
本帖最后由 my0511小妖 于 18-6-27 08:47 编辑
]
---发自iPhone 8 Plus---
已有
0
人打赏
2018-6-26 17:23
1楼
找工作,就上MY0511!
只看该作者
分享本楼
时立美缝
来自 江苏省
精华 0
注册 2018-4-1
---发自vivo---
2018-6-26 17:51
2楼
[联宇电脑] 电脑组装\维修\升级\企业单位电脑维护!
只看该作者
分享本楼
wangleiray1029
来自 江苏省
精华
2
注册 2007-9-23
行业 教育科研
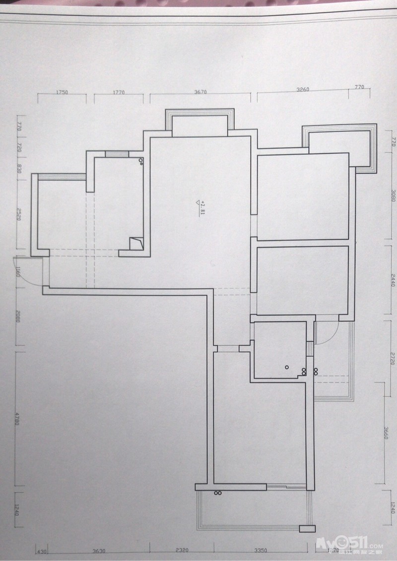
回迁房吧,手枪房型
---发自梦溪论坛手机客户端---
2018-6-26 18:53
3楼
买房、卖房、租房上镇江房产网!
只看该作者
分享本楼
你婶脑海的叔
来自 江苏省
精华 0
注册 2017-5-31
行业 其它
开放式厨房燃气通不了
---发自梦溪论坛手机客户端---
2018-6-26 19:22
4楼
买房、卖房、租房上镇江房产网!
只看该作者
分享本楼
梦幻人生2009
来自 江苏省
精华 0
注册 2009-2-7
行业 其它
楼上那搞违建也好意思打广告?
---发自iPhone 6S Plus---
2018-6-26 20:00
5楼
0511家装频道:本地家居服务平台,数万业主共同选择
只看该作者
分享本楼
耿直的boy
来自 江苏省
精华 0
注册 2016-5-23
QUOTE:
原帖由
你婶脑海的叔
于 2018-6-26 19:22 发表
开放式厨房燃气通不了
已经通了
---发自iPhone 8 Plus---
2018-6-26 21:05
6楼
0511家装频道:本地家居服务平台,数万业主共同选择
只看该作者
分享本楼
香椿
来自 江苏省
精华 0
注册 2010-6-29
行业 政府行政
做个风水吧,西南缺角
---发自iPhone 7---
2018-6-26 21:48
7楼
买房、卖房、租房上镇江房产网!
只看该作者
分享本楼
耿直的boy
来自 江苏省
精华 0
注册 2016-5-23
QUOTE:
原帖由
香椿
于 2018-6-26 21:48 发表
做个风水吧,西南缺角
不太懂
---发自iPhone 8 Plus---
2018-6-26 21:58
8楼
[联宇电脑] 电脑组装\维修\升级\企业单位电脑维护!
只看该作者
分享本楼
我不是杨修
禁止发言
来自 浙江省
精华
39
注册 2006-2-28
行业 政府行政
*** 作者因违反论坛规定,禁言处理,内容自动屏蔽 ***
详情参阅论坛注册条款:
http://bbs.my0511.com/f11b-t2789156z
2018-6-26 23:12
9楼
[联宇电脑] 电脑组装\维修\升级\企业单位电脑维护!
只看该作者
分享本楼
耿直的boy
来自 江苏省
精华 0
注册 2016-5-23
QUOTE:
原帖由
我不是杨修
于 2018-6-26 23:12 发表
客厅这样显得好小。不如打通
不好打
---发自iPhone 8 Plus---
2018-6-27 00:33
10楼
0511家装频道:本地家居服务平台,数万业主共同选择
只看该作者
分享本楼
耿直的boy
来自 江苏省
精华 0
注册 2016-5-23
---发自iPhone 8 Plus---
2018-6-27 19:07
11楼
0511家装频道:本地家居服务平台,数万业主共同选择
只看该作者
分享本楼
远景智空间
来自 江苏省
精华 0
注册 2018-6-4
不错
---发自iPhone 8---
2018-6-27 19:15
12楼
0511家装频道:本地家居服务平台,数万业主共同选择
只看该作者
分享本楼
daimuyang
来自 江苏省
精华 0
注册 2018-7-3
【雷芬智能发热瓷砖,取代传统地暖时代】
——现诚招江苏省内市县级代理商
产品优势:
1.地板、地暖二合一,降低装修成本
2.变频温控,800*800瓷砖耗电0.016度/小时
3.分区温控,定时定热,远程操控。
4.快速预热,十五分钟达到设定温度,20-50
摄氏度自由温控。
5.安全性高,专利接头时经20000小时反复防
水防漏电测试使用。
6.寿命长达50年,10年保修。可私聊我具体咨询。
雷芬智能发热瓷砖江苏总代理
镇江恒泽建材有限公司
镇江市亿都建材城31栋312室
戴沐阳15851132111(微信同号)
---发自vivo---
2018-7-8 12:47
13楼
0511家装频道:本地家居服务平台,数万业主共同选择
只看该作者
分享本楼
daimuyang
来自 江苏省
精华 0
注册 2018-7-3
联系我
智能发热瓷砖,智能发热木地板13390734666
---发自vivo---
2018-7-8 12:47
14楼
MY0511相亲,一分钟注册,享一辈子幸福!
只看该作者
分享本楼
djq
来自 江苏省
精华
3
注册 2002-11-10
东郡华庭的户型,也没什么好改的了
2018-7-9 14:22
15楼
买房、卖房、租房上镇江房产网!
只看该作者
分享本楼
令吾幺幺
来自 0
精华 0
注册 2016-2-27
一看就是东郡华庭
2018-7-23 12:15
16楼
0511家装频道:本地家居服务平台,数万业主共同选择
只看该作者
分享本楼
happy小酒窝
来自 江苏省
精华
5
注册 2008-4-9
行业 教育科研
马桶对着镜子不好,从风水上说
---发自梦溪论坛手机客户端---
2018-7-29 17:38
17楼
0511家装频道:本地家居服务平台,数万业主共同选择
只看该作者
分享本楼
孟元妈
来自 0
精华 0
注册 2011-2-22
行业 教育科研
榻榻米那里的飘窗是到地的还是半截的?总感觉有点不整,是我宁可把床移到左侧靠墙,转90度放。主卧没有衣橱也有点不方便。
---发自OPPO R9---
2018-7-29 19:38
18楼
MY0511相亲,一分钟注册,享一辈子幸福!
只看该作者
分享本楼
孟元妈
来自 0
精华 0
注册 2011-2-22
行业 教育科研
卫生间和主卧进门处之间的那道墙为何不干脆砌成斜的?次卧的衣橱和书橱位置互换,使用更方便。
---发自OPPO R9---
2018-7-29 19:43
19楼
[联宇电脑] 电脑组装\维修\升级\企业单位电脑维护!
只看该作者
分享本楼
返回家庭装修
快速回复主题
游客
您目前还是游客,请
登录
或
注册
您目前是游客,本帖已被系统设置了自动关闭,不可回复!
文明交流,理性发言
0/5000字
<
>
请在打开的新窗口中支付完成打赏
我已完成支付打赏
支付失败重新支付
其他金额
打赏金额:
元
确定
支付打赏
提 现
打赏人
打赏金额(元)
打赏时间
Powered by
Discuz! X 2
0.069252 s
清除 Cookies
-
镇江网友之家
-
手机版
论坛导航
关闭
吃喝玩乐
饮食男女
镇江钓友之家
菜菜鸟户外
镇江单车俱乐部
镜头里的镇江
畅游天下
猫狗总动员
视觉Coffeeshop摄影部落
花鸟鱼虫
婚姻.亲子.家庭
家有学子
谈婚论嫁
女性天地
母婴乐园
婚姻生活
梦溪佳缘
装修
家庭装修
装修招标
镇江室内设计师交流
装修商家直通车
你好,镇江!
百姓话题
我要买房
0511爱心家园
市场监管•12315热线
分类信息
生活服务
闲置转让
镇江二手房/镇江租房
镇江招聘求职
教育培训
镇江二手车
商铺厂房写字楼租售
宠物市场
运动健身
卡券交易
电脑维修升级
杂货铺
其他分类信息区
兴趣爱好
HiFi音响江城沙龙
镇江市美术家协会
我爱模型
车友俱乐部
车迷之家
汽车驾培中心
运动俱乐部
镇江市冬泳、铁人三项协会
聚焦足球
镇江羽毛球
镇江乒乓球协会
镇江网球协会
镇江市自行车运动协会
热爱篮球
动力机车
合作栏目
维权热线
天翼时代
色觉影像摄影工作室
站务区
疑问与建议
网络问政
市政府工作部门
垂直管理部门
党群工作部门
其他重点单位
辖市(区)