收藏本站
客户端
扫码下载客户端
官方微信
打开微信扫一扫
登录
|
注册
|
标题
标题
用户
全站首页
|
论坛导航
|
网络问政
|
招聘求职
|
买房租房
|
装修频道
|
生活服务
|
教育
|
相亲
|
亲子
|
美食
|
婚嫁
|
手机客户端
家有学子
|
母婴乐园
快捷导航
精彩推荐:
MY0511客户端下载
中信银行镇江分行
公益体彩 乐善人生
鹏龙鸿蒙
天然石材·人造石
»
梦溪论坛
»
家庭装修
» [2018金钢铂林地板杯]我的的北欧风——一人一狗的小世界
家庭装修
>
[装修日记]
[2018金钢铂林地板杯]我的的北欧风——一人一狗的小世界
查看: 150240 回复: 958
快速回复
返回家庭装修
959
1/20
1
2
3
4
5
6
7
8
9
10
>
>
|
[装修日记]
[2018金钢铂林地板杯]我的的北欧风——一人一狗的小世界
查看: 150240 回复: 958
上一主题
|
下一主题
梦落青枫
来自 江苏省
精华 0
注册 2015-1-17
[2018金钢铂林地板杯]我的的北欧风——一人一狗的小世界
此帖已成功报名
2018家装日记大赛
。
更多家装信息关注
MY0511家装频道
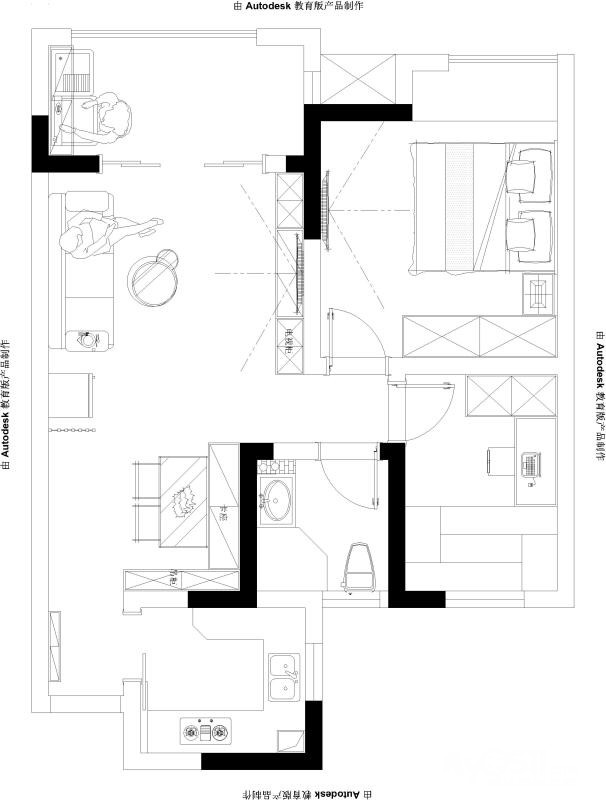
【小区名称】:紫榭丽舍
【所在楼层】:5楼
【建筑面积】:76.03
【装修风格】:现代北欧
【包工方式】:半包
【装修公司】:海文装饰
【设计师】 :陈进
【开工日期】:2018年08月02日(哈哈,我就是那么心急,拿的第三天就开始装起来)
【装修预算】:10万吧(但是在我定了橱柜,瓷砖和门以后就发现预算已经严重不足)
【户型图片】:
[
本帖最后由 my0511菲雪 于 2018-8-6 11:11 编辑
]
---发自iPhone 6 Plus---
已有 双羽木门专卖, 法诗雅移门
2
人打赏
2018-7-31 15:47
1楼
找工作,就上MY0511!
只看该作者
分享本楼
梦落青枫
来自 江苏省
精华 0
注册 2015-1-17
已定部分材料
橱柜:欧派橱柜
墙地砖:宏宇(朋友推荐,大热天的直接就奔了他家去了)
地板:生活家巴洛克
木门:青田木门(实在太热情,一个人有点招架不住)
热水器:林内热水器
花洒:恒洁马桶:恒洁
浴柜:恒洁
美缝:佰巢
集成吊顶:美的
浴霸:美的
风管机:格力
窗帘:七特丽
灯具:凯撒琳
目前暂时就定了那么多主材,后期再慢慢补上。
[
本帖最后由 梦落青枫 于 2018-8-12 12:29 编辑
]
---发自iPhone 6 Plus---
2018-7-31 15:50
2楼
找工作,就上MY0511!
只看该作者
分享本楼
梦落青枫
来自 江苏省
精华 0
注册 2015-1-17
---发自iPhone 6 Plus---
2018-7-31 15:53
3楼
买房、卖房、租房上镇江房产网!
只看该作者
分享本楼
梦落青枫
来自 江苏省
精华 0
注册 2015-1-17
占楼
---发自iPhone 6 Plus---
2018-7-31 15:53
4楼
找工作,就上MY0511!
只看该作者
分享本楼
panyi971041
来自 江苏省
精华
2
注册 2009-11-29
行业 工业制造
同样是海文的,顶起来
---发自梦溪论坛手机客户端---
2018-7-31 16:04
5楼
MY0511相亲,一分钟注册,享一辈子幸福!
只看该作者
分享本楼
梦落青枫
来自 江苏省
精华 0
注册 2015-1-17
哦,对了说起买房子,我这速度也是可以的,清楚的记得17年正月初五第一天上班,我就去看房子,一直看到下午,最后一个就是紫谢丽舍,当时犹豫了下,没有签,当天晚上上了个夜班,第二天在家睡了一天,第三天就把房子定了,真后悔没有买大一点的,不过还不是因为穷,庆幸的是当时没有现在这样大涨,否则真的连首付都要付不起了,不过这样也算在镇江待了7年,终于有了自己的小窝!拿房过程有点小曲折,本来6月底就拿房的,但一直延迟到7月底,终于在今天把房子拿了,想想今天是真的够辛苦的,关键是大热天还让设计师在外面等了我半天,本来我以为拿房子几分钟就能搞定,谁知.....哎,说多了都是汗啊!
---发自iPhone 6 Plus---
2018-7-31 16:07
6楼
MY0511相亲,一分钟注册,享一辈子幸福!
只看该作者
分享本楼
梦落青枫
来自 江苏省
精华 0
注册 2015-1-17
QUOTE:
原帖由
panyi971041
于 18-7-31 16:04 发表
同样是海文的,顶起来
谢谢了
---发自iPhone 6 Plus---
2018-7-31 16:08
7楼
[联宇电脑] 电脑组装\维修\升级\企业单位电脑维护!
只看该作者
分享本楼
在水一方123456
来自 江苏省
精华 0
注册 2017-1-3
家有小户型,可以参观学习一下吗?
---发自梦溪论坛手机客户端---
2018-7-31 16:11
8楼
MY0511相亲,一分钟注册,享一辈子幸福!
只看该作者
分享本楼
my0511小妖
版主
来自 江苏省
精华
9
注册 2005-10-29
买定离手,其实有时候过度纠结也不一定会有好结果,哈哈
2018-7-31 16:12
9楼
[联宇电脑] 电脑组装\维修\升级\企业单位电脑维护!
只看该作者
分享本楼
梦落青枫
来自 江苏省
精华 0
注册 2015-1-17
说起选装修公司,应该是目前为止最让我纠结的事情,所以说这事还是要讲缘分
,本身我这人比较纠结,没看装修公司之前都说要多跑几家,多对比对比,无奈,我就是装修小白一个!听他们讲的云里雾里的!后来又因为一些个人原因,把装修事情暂时搁置一边了,后来因为陈姐太热情,也很真诚,然后然后就选了海文,希望整个装修过程合作愉快
---发自iPhone 6 Plus---
2018-7-31 16:17
10楼
MY0511相亲,一分钟注册,享一辈子幸福!
只看该作者
分享本楼
梦落青枫
来自 江苏省
精华 0
注册 2015-1-17
QUOTE:
原帖由
my0511小妖
于 18-7-31 16:12 发表
买定离手,其实有时候过度纠结也不一定会有好结果,哈哈
哈哈,确实是,越是纠结越是不知道买啥
---发自iPhone 6 Plus---
2018-7-31 16:18
11楼
0511家装频道:本地家居服务平台,数万业主共同选择
只看该作者
分享本楼
梦落青枫
来自 江苏省
精华 0
注册 2015-1-17
QUOTE:
原帖由
在水一方123456
于 18-7-31 16:11 发表
家有小户型,可以参观学习一下吗?
开工后随时可以来参观哦
---发自iPhone 6 Plus---
2018-7-31 16:19
12楼
[联宇电脑] 电脑组装\维修\升级\企业单位电脑维护!
只看该作者
分享本楼
心弦上的风景
来自 江苏省
精华 0
注册 2014-10-29
QUOTE:
原帖由
梦落青枫
于 18-7-31 16:07 发表
哦,对了说起买房子,我这速度也是可以的,清楚的记得17年正月初五第一天上班,我就去看房子,一直看到下午,最后一个就是紫谢丽舍,当时犹豫了下,没有签,当天晚上上了个夜班,第二天在家睡了一天,第三天就把房 ...
楼主,你这些选定了的材料在哪里看的?我要定这些都不知道去哪里,麻烦指导下,谢谢啦^_^
---发自iPhone 6S---
2018-7-31 16:24
13楼
[联宇电脑] 电脑组装\维修\升级\企业单位电脑维护!
只看该作者
分享本楼
梦落青枫
来自 江苏省
精华 0
注册 2015-1-17
橱柜在运河路的欧派,瓷砖在亿都,门在金桥,我也是随便看,月星东西比较贵,亿都,金桥,还有一个什么明基的好像比较平价
---发自iPhone 6 Plus---
2018-7-31 16:37
14楼
MY0511相亲,一分钟注册,享一辈子幸福!
只看该作者
分享本楼
梦落青枫
来自 江苏省
精华 0
注册 2015-1-17
QUOTE:
原帖由
心弦上的风景
于 18-7-31 16:24 发表
楼主,你这些选定了的材料在哪里看的?我要定这些都不知道去哪里,麻烦指导下,谢谢啦^_^
橱柜在运河路的欧派,瓷砖在亿都,门在金桥,我也是随便看,月星东西比较贵,亿都,金桥,还有一个什么明基的好像比较平价
---发自iPhone 6 Plus---
2018-7-31 16:38
15楼
0511家装频道:本地家居服务平台,数万业主共同选择
只看该作者
分享本楼
梦落青枫
来自 江苏省
精华 0
注册 2015-1-17
QUOTE:
原帖由
玛莎名品家具
于 18-7-31 16:38 发表
这个我还早呢!
[
本帖最后由 my0511唐老鸭 于 18-7-31 17:21 编辑
]
---发自iPhone 6 Plus---
2018-7-31 16:44
16楼
[联宇电脑] 电脑组装\维修\升级\企业单位电脑维护!
只看该作者
分享本楼
皇派门窗
来自 江苏省
精华 0
注册 2016-10-11
行业 房产建筑
祝您装修愉快!
[
本帖最后由 my0511唐老鸭 于 2018-8-13 11:05 编辑
]
---发自iPhone 7 Plus---
2018-7-31 18:18
17楼
[联宇电脑] 电脑组装\维修\升级\企业单位电脑维护!
只看该作者
分享本楼
梦落青枫
来自 江苏省
精华 0
注册 2015-1-17
QUOTE:
原帖由
皇派门窗
于 18-7-31 18:18 发表
祝您装修愉快!
谢谢
[
本帖最后由 my0511唐老鸭 于 2018-8-13 11:06 编辑
]
---发自iPhone 6 Plus---
2018-7-31 19:15
18楼
找工作,就上MY0511!
只看该作者
分享本楼
宇祥装饰客服
来自 江苏省
精华
8
注册 2010-9-13
行业 房产建筑
恭喜拿房!提前预祝装修一切顺利!
2018-8-1 08:57
19楼
MY0511相亲,一分钟注册,享一辈子幸福!
只看该作者
分享本楼
梦落青枫
来自 江苏省
精华 0
注册 2015-1-17
QUOTE:
原帖由
宇祥装饰客服
于 18-8-1 08:57 发表
恭喜拿房!提前预祝装修一切顺利!
谢谢
---发自iPhone 6 Plus---
2018-8-1 09:13
20楼
买房、卖房、租房上镇江房产网!
只看该作者
分享本楼
tot
来自 江苏省
精华 0
注册 2010-6-15
行业 房产建筑
会一直关注跟帖子的
---发自iPhone 7---
2018-8-1 11:23
21楼
买房、卖房、租房上镇江房产网!
只看该作者
分享本楼
梦落青枫
来自 江苏省
精华 0
注册 2015-1-17
QUOTE:
原帖由
tot
于 18-8-1 11:23 发表
会一直关注跟帖子的
谢谢哦
---发自iPhone 6 Plus---
2018-8-1 12:10
22楼
买房、卖房、租房上镇江房产网!
只看该作者
分享本楼
法诗顿移门
来自 江苏省
精华 0
注册 2017-7-1
恭喜开贴
2018-8-1 13:24
23楼
MY0511相亲,一分钟注册,享一辈子幸福!
只看该作者
分享本楼
梦落青枫
来自 江苏省
精华 0
注册 2015-1-17
今天带小家伙去未来的家溜达了一圈,它倒是挺兴奋的
---发自iPhone 6 Plus---
2018-8-1 18:11
24楼
0511家装频道:本地家居服务平台,数万业主共同选择
只看该作者
分享本楼
梦落青枫
来自 江苏省
精华 0
注册 2015-1-17
新房子感觉哪哪都很小,唯一的优点估计就是几乎没有敲的地方
---发自iPhone 6 Plus---
2018-8-1 18:12
25楼
MY0511相亲,一分钟注册,享一辈子幸福!
只看该作者
分享本楼
我想有颗星星
来自 江苏省
精华
1
注册 2009-6-19
行业 其它
---发自三星---
2018-8-1 19:22
26楼
买房、卖房、租房上镇江房产网!
只看该作者
分享本楼
梦落青枫
来自 江苏省
精华 0
注册 2015-1-17
QUOTE:
原帖由
我想有颗星星
于 18-8-1 19:22 发表
{:鼓掌:}
---发自iPhone 6 Plus---
2018-8-1 19:40
27楼
MY0511相亲,一分钟注册,享一辈子幸福!
只看该作者
分享本楼
鸿鹄设计镇江站
专版版主
来自 江苏省
精华
222
注册 2016-11-15
行业 广告媒体
欢迎新同学
2018-8-2 11:03
28楼
0511家装频道:本地家居服务平台,数万业主共同选择
只看该作者
分享本楼
梦落青枫
来自 江苏省
精华 0
注册 2015-1-17
今天真的是阳光明媚
,然后我们就这样开工了!
---发自iPhone 6 Plus---
2018-8-2 11:31
29楼
[联宇电脑] 电脑组装\维修\升级\企业单位电脑维护!
只看该作者
分享本楼
梦落青枫
来自 江苏省
精华 0
注册 2015-1-17
本来我以为今天就我们一家开工,没想到好多户都选在了今天,可见今天真的是个好日子
---发自iPhone 6 Plus---
2018-8-2 11:33
30楼
0511家装频道:本地家居服务平台,数万业主共同选择
只看该作者
分享本楼
梦落青枫
来自 江苏省
精华 0
注册 2015-1-17
上几张效果图
---发自iPhone 6 Plus---
2018-8-2 11:40
31楼
[联宇电脑] 电脑组装\维修\升级\企业单位电脑维护!
只看该作者
分享本楼
梦落青枫
来自 江苏省
精华 0
注册 2015-1-17
今天就是举行了个开工仪式,明天开始真正的动工!
---发自iPhone 6 Plus---
2018-8-2 11:43
32楼
买房、卖房、租房上镇江房产网!
只看该作者
分享本楼
赵沈丽
来自 江苏省
精华 0
注册 2016-8-16
效果图挺好看的
---发自iPhone 6S---
2018-8-2 12:35
33楼
MY0511相亲,一分钟注册,享一辈子幸福!
只看该作者
分享本楼
波涛装饰
专版版主
来自 江苏省
精华
173
注册 2015-4-10
行业 房产建筑
开工大吉,房子地理位置很好,设施齐全
2018-8-2 14:04
34楼
MY0511相亲,一分钟注册,享一辈子幸福!
只看该作者
分享本楼
梦落青枫
来自 江苏省
精华 0
注册 2015-1-17
QUOTE:
原帖由
波涛装饰
于 18-8-2 14:04 发表
开工大吉,房子地理位置很好,设施齐全
谢谢
---发自iPhone 6 Plus---
2018-8-2 14:12
35楼
[联宇电脑] 电脑组装\维修\升级\企业单位电脑维护!
只看该作者
分享本楼
贝壳设计装饰
来自 江苏省
精华 0
注册 2018-5-29
行业 房产建筑
2018-8-2 14:15
36楼
[联宇电脑] 电脑组装\维修\升级\企业单位电脑维护!
只看该作者
分享本楼
jumping000
来自 江苏省
精华 0
注册 2012-7-9
行业 其它
电视柜跟我家很像哦!
---发自iPhone 6S---
2018-8-2 18:44
37楼
[联宇电脑] 电脑组装\维修\升级\企业单位电脑维护!
只看该作者
分享本楼
梦落青枫
来自 江苏省
精华 0
注册 2015-1-17
我刚刚把我买的东西的价格算了一下,83000!我的天,这东西在哪?
---发自iPhone 6 Plus---
2018-8-2 22:34
38楼
MY0511相亲,一分钟注册,享一辈子幸福!
只看该作者
分享本楼
梦落青枫
来自 江苏省
精华 0
注册 2015-1-17
QUOTE:
原帖由
jumping000
于 18-8-2 18:44 发表
电视柜跟我家很像哦!
都是整面的柜子
---发自iPhone 6 Plus---
2018-8-2 22:34
39楼
MY0511相亲,一分钟注册,享一辈子幸福!
只看该作者
分享本楼
卓高美缝天桥店
来自 江苏省
精华 0
注册 2018-4-19
装修愉快
2018-8-3 10:12
40楼
MY0511相亲,一分钟注册,享一辈子幸福!
只看该作者
分享本楼
梦落青枫
来自 江苏省
精华 0
注册 2015-1-17
QUOTE:
原帖由
卓高美缝天桥店
于 18-8-3 10:12 发表
装修愉快
谢谢哦
---发自iPhone 6 Plus---
2018-8-3 10:43
41楼
[联宇电脑] 电脑组装\维修\升级\企业单位电脑维护!
只看该作者
分享本楼
关亨木门
来自 江苏省
精华 0
注册 2010-5-8
行业 其它
装修大吉
2018-8-3 16:55
42楼
0511家装频道:本地家居服务平台,数万业主共同选择
只看该作者
分享本楼
老友记装饰黄
来自 江苏省
精华 0
注册 2016-6-23
恭喜开工
2018-8-3 17:40
43楼
[联宇电脑] 电脑组装\维修\升级\企业单位电脑维护!
只看该作者
分享本楼
海文装饰客服
专版版主
来自 江苏省
精华
53
注册 2016-5-6
恭喜海文的同学开贴
2018-8-3 17:57
44楼
MY0511相亲,一分钟注册,享一辈子幸福!
只看该作者
分享本楼
海文装饰客服
专版版主
来自 江苏省
精华
53
注册 2016-5-6
QUOTE:
原帖由
梦落青枫
于 18-7-31 16:17 发表
说起选装修公司,应该是目前为止最让我纠结的事情,所以说这事还是要讲缘分
,本身我这人比较纠结,没看装修公司之前都说要多跑几家,多对比对比,无奈,我就是装修小白一个!听他们讲的云 ...
同学早上好,您家的房子交给我们大可放心
2018-8-4 09:29
45楼
找工作,就上MY0511!
只看该作者
分享本楼
梦落青枫
来自 江苏省
精华 0
注册 2015-1-17
QUOTE:
原帖由
海文装饰客服
于 18-8-4 09:29 发表
同学早上好,您家的房子交给我们大可放心
嗯嗯,希望后期合作愉快
---发自iPhone 6 Plus---
2018-8-4 09:36
46楼
[联宇电脑] 电脑组装\维修\升级\企业单位电脑维护!
只看该作者
分享本楼
海文装饰客服
专版版主
来自 江苏省
精华
53
注册 2016-5-6
QUOTE:
原帖由
梦落青枫
于 18-8-4 09:36 发表
嗯嗯,希望后期合作愉快
那必须的
2018-8-4 16:47
47楼
MY0511相亲,一分钟注册,享一辈子幸福!
只看该作者
分享本楼
梦落青枫
来自 江苏省
精华 0
注册 2015-1-17
阳台的太阳能到底要怎么处理啊,不用又觉得浪费
{:囧:}{:囧:}
---发自iPhone 6 Plus---
2018-8-5 10:33
48楼
[联宇电脑] 电脑组装\维修\升级\企业单位电脑维护!
只看该作者
分享本楼
贝壳设计装饰
来自 江苏省
精华 0
注册 2018-5-29
行业 房产建筑
2018-8-5 15:46
49楼
买房、卖房、租房上镇江房产网!
只看该作者
分享本楼
妖精的尾巴
来自 江苏省
精华 0
注册 2010-7-20
行业 其它
我也是一人一狗一世界,哈哈
---发自iPhone 6S Plus---
2018-8-5 15:49
50楼
[联宇电脑] 电脑组装\维修\升级\企业单位电脑维护!
只看该作者
分享本楼
返回家庭装修
959
1/20
1
2
3
4
5
6
7
8
9
10
>
>
|
快速回复主题
游客
您目前还是游客,请
登录
或
注册
您目前是游客,本帖已被系统设置了自动关闭,不可回复!
文明交流,理性发言
0/5000字
<
>
请在打开的新窗口中支付完成打赏
我已完成支付打赏
支付失败重新支付
其他金额
打赏金额:
元
确定
支付打赏
提 现
打赏人
打赏金额(元)
打赏时间
双羽木门专卖
1.00
2018-8-10 15:08
法诗雅移门
1.00
2018-10-31 16:05
Powered by
Discuz! X 2
0.098498 s
清除 Cookies
-
镇江网友之家
-
手机版
论坛导航
关闭
吃喝玩乐
饮食男女
镇江钓友之家
菜菜鸟户外
镇江单车俱乐部
镜头里的镇江
畅游天下
猫狗总动员
视觉Coffeeshop摄影部落
花鸟鱼虫
婚姻.亲子.家庭
家有学子
谈婚论嫁
女性天地
母婴乐园
婚姻生活
梦溪佳缘
装修
家庭装修
装修招标
镇江室内设计师交流
装修商家直通车
你好,镇江!
百姓话题
我要买房
0511爱心家园
市场监管•12315热线
分类信息
生活服务
闲置转让
镇江二手房/镇江租房
镇江招聘求职
教育培训
镇江二手车
商铺厂房写字楼租售
宠物市场
运动健身
卡券交易
电脑维修升级
杂货铺
其他分类信息区
兴趣爱好
HiFi音响江城沙龙
镇江市美术家协会
我爱模型
车友俱乐部
车迷之家
汽车驾培中心
运动俱乐部
镇江市冬泳、铁人三项协会
聚焦足球
镇江羽毛球
镇江乒乓球协会
镇江网球协会
镇江市自行车运动协会
热爱篮球
动力机车
合作栏目
维权热线
天翼时代
色觉影像摄影工作室
站务区
疑问与建议
网络问政
市政府工作部门
垂直管理部门
党群工作部门
其他重点单位
辖市(区)