收藏本站
客户端
扫码下载客户端
官方微信
打开微信扫一扫
登录
|
注册
|
标题
标题
用户
全站首页
|
论坛导航
|
网络问政
|
招聘求职
|
买房租房
|
装修频道
|
生活服务
|
教育
|
相亲
|
亲子
|
美食
|
婚嫁
|
手机客户端
家有学子
|
母婴乐园
快捷导航
精彩推荐:
MY0511客户端下载
中信银行镇江分行
公益体彩 乐善人生
鹏龙鸿蒙
天然石材·人造石
»
梦溪论坛
»
家庭装修
» [2018金钢铂林地板杯] 紫榭丽舍—我的现代简约温馨小家(毕业啦)
家庭装修
>
[装修日记]
[2018金钢铂林地板杯] 紫榭丽舍—我的现代简约温馨小家(毕业啦)
查看: 236910 回复: 1216
快速回复
返回家庭装修
1217
1/25
1
2
3
4
5
6
7
8
9
10
>
>
|
[装修日记]
[2018金钢铂林地板杯] 紫榭丽舍—我的现代简约温馨小家(毕业啦)
查看: 236910 回复: 1216
上一主题
|
下一主题
闲庭看落花
来自 江苏省
精华 0
注册 2012-5-24
行业 商业贸易
[2018金钢铂林地板杯] 紫榭丽舍—我的现代简约温馨小家(毕业啦)
此帖已成功报名
2018家装日记大赛
。
更多家装信息关注
MY0511家装频道
【小区名称】:紫榭丽舍
【所在楼层】:9层
【建筑面积】:建筑面积94点几
【装修风格】:现代简约
【包工方式】:半包
【装修公司】:老友记
【装修设计】:朱广东
【开工日期】:2018年8月9日
【装修预算】:装修预算15万,不过目前已经超了。
【户型图片】:户型图稍后附上
[
本帖最后由 闲庭看落花 于 2019-2-13 18:01 编辑
]
已有 老友记装饰客服, 双羽木门专卖, 伊慕装饰, 法诗雅移门, 森香木门楼梯
5
人打赏
2018-8-9 21:06
1楼
MY0511相亲,一分钟注册,享一辈子幸福!
只看该作者
分享本楼
闲庭看落花
来自 江苏省
精华 0
注册 2012-5-24
行业 商业贸易
当初买房看了好几个楼盘,一直没下手买紫榭第二次就定下了,lz也是冲动性消费者,再加上背后有个助纣为虐的老公,所以经常冲动行事,这次装修就告诉自己一定要理智,首先找装修公司,在家浏览了几天0511上的装修话题,把有不良记录的公司统统加黑名单,最后选择了两个网红公司,第一个离我们小区近,先电话联系约时间面谈,可能老板太忙了身兼多职,简单的了解下,我说还有老友记我还没接触,又找他家的网页,联系的是设计师,谈过后我说哪天把老公再带过来,其实我和老公都是装修小白,老公来谈了,当时就定下来了。后来我问他怎么定这么快,他说感觉设计师说得很到位,而且用的材料都很好。
2018-8-9 21:35
2楼
[联宇电脑] 电脑组装\维修\升级\企业单位电脑维护!
只看该作者
分享本楼
火紫炎
来自 江苏省
精华 0
注册 2003-3-22
邻居,恭喜开贴~~
2018-8-9 21:42
3楼
[联宇电脑] 电脑组装\维修\升级\企业单位电脑维护!
只看该作者
分享本楼
闲庭看落花
来自 江苏省
精华 0
注册 2012-5-24
行业 商业贸易
附上户型图找了个买房时开发商宣传图片和开工图片
[
本帖最后由 闲庭看落花 于 2018-9-24 08:28 编辑
]
房型图
开工大吉!
2018-8-9 22:14
4楼
0511家装频道:本地家居服务平台,数万业主共同选择
只看该作者
分享本楼
闲庭看落花
来自 江苏省
精华 0
注册 2012-5-24
行业 商业贸易
QUOTE:
原帖由
火紫炎
于 2018-8-9 21:42 发表
邻居,恭喜开贴~~
谢谢哦
2018-8-9 22:15
5楼
[联宇电脑] 电脑组装\维修\升级\企业单位电脑维护!
只看该作者
分享本楼
ZHGD
来自 江苏省
精华
6
注册 2012-11-9
行业 房产建筑
恭喜恭喜开工大吉
---发自iPhone 6---
2018-8-9 22:30
6楼
0511家装频道:本地家居服务平台,数万业主共同选择
只看该作者
分享本楼
壹舍设计
来自 江苏省
精华
79
注册 2017-11-21
恭喜楼主开贴
2018-8-10 10:46
7楼
找工作,就上MY0511!
只看该作者
分享本楼
菲舍尔第一刘邦
来自 江苏省
精华 0
注册 2017-12-6
相同户型时刻关注楼主
2018-8-10 10:48
8楼
买房、卖房、租房上镇江房产网!
只看该作者
分享本楼
树派环保
禁止发言
来自 0
精华 0
注册 2018-5-8
*** 作者因违反论坛规定,禁言处理,内容自动屏蔽 ***
详情参阅论坛注册条款:
http://bbs.my0511.com/f11b-t2789156z
2018-8-10 14:35
9楼
[联宇电脑] 电脑组装\维修\升级\企业单位电脑维护!
只看该作者
分享本楼
情河绝恋
来自 江苏省
精华 0
注册 2017-9-22
邻居嘛,楼主要定时更新哦
2018-8-10 15:33
10楼
MY0511相亲,一分钟注册,享一辈子幸福!
只看该作者
分享本楼
镇江塞纳春天
来自 江苏省
精华 0
注册 2017-12-8
2018-8-10 16:17
11楼
[联宇电脑] 电脑组装\维修\升级\企业单位电脑维护!
只看该作者
分享本楼
巴森系统一体窗
来自 江苏省
精华 0
注册 2017-4-20
恭喜恭喜恭喜恭喜
---发自vivo---
2018-8-10 16:34
12楼
0511家装频道:本地家居服务平台,数万业主共同选择
只看该作者
分享本楼
老友记装饰客服
专版版主
来自 江苏省
精华
71
注册 2012-8-13
行业 其它
经收藏到公司的主页中 每天关注
http://bbs.my0511.com/f250b-t4032754z
或进入公司专版
http://bbs.my0511.com/f1155b#lid9dbkystke0fj1f1
[
本帖最后由 老友记装饰客服 于 2018-8-15 15:55 编辑
]
2018-8-10 18:04
13楼
0511家装频道:本地家居服务平台,数万业主共同选择
只看该作者
分享本楼
1234@
来自 江苏省
精华 0
注册 2017-6-12
恭喜邻居开帖
---发自iPhone 6---
2018-8-10 20:16
14楼
买房、卖房、租房上镇江房产网!
只看该作者
分享本楼
闲庭看落花
来自 江苏省
精华 0
注册 2012-5-24
行业 商业贸易
看到有人关注还是很高兴的,你们的关注就是我更新的动力,到目前为止有好多事还没有确定,真佩服那些清包的。每次去看装修材料总想买好一点的,不知不觉预算就超出一段,根本控制不了。昨天订了地板,是金象地板,看到有不少网友也是在他家买的,大众化吧,不过老板不错给了个合理的价格,感觉还是要多了解市场,才能胸有成竹。 今天去新房看到已经开始铲墙了,阳台边有一个放空调外机的位置,开发商弄了个固定窗,还是双层磨砂玻璃,在阳台看不到那边情况,今天敲掉才看到真是无语了,还有个水管挡着,放外机还得把窗户扩大。等会发个照片可以看看。开发商如果用心点,我们能省好多事。
今天见到管理水电的闻师傅,和早就见过的监理张师傅,确定了水电及开关的布局,跟他们相处会感觉两个都是业务扎实、能为业主着想的师傅,老友记正是因为有这类的员工才能获得更多的信赖吧。
2018-8-10 21:28
15楼
找工作,就上MY0511!
只看该作者
分享本楼
万达壁纸软装
来自 江苏省
精华 0
注册 2017-5-5
行业 房产建筑
恭喜开工大吉!
---发自iPhone 7---
2018-8-12 10:02
16楼
0511家装频道:本地家居服务平台,数万业主共同选择
只看该作者
分享本楼
闲庭看落花
来自 江苏省
精华 0
注册 2012-5-24
行业 商业贸易
开工了一切都提上了日程,没有定下来的东西开始紧锣密鼓的跑市场,昨天去亿都看了几家卫浴,先去恒洁让他家的员工把我们看中的款式记下来,做个报价并给个最底价格,做到心中有数,最后选择了九牧,感觉他家的性价比更高些。顺便看了看石材,感觉几家店没有太大的差异。回到家累成狗了,什么都不想去动。在恒洁的时候遇到同一小区的邻居,都是在为装修奔忙。今天在天桥定了欧普吊顶,老板是老乡,谈得比较好就定了,就是这几天花钱似流水,想像未来的新家真是期待。
2018-8-12 13:40
17楼
0511家装频道:本地家居服务平台,数万业主共同选择
只看该作者
分享本楼
闲庭看落花
来自 江苏省
精华 0
注册 2012-5-24
行业 商业贸易
昨天在物业等人的时候,有业主就敲飘窗的事同邻居协商,我们现在是头一批装修的,老公问我假如到时候有楼上的来与你协商,你让不让敲?我想了想不如现在就试探下我楼下的态度,请物业打了个电话,楼下是不让我敲,我自己认为不敲是最好的,为了整栋楼的性能考虑,也不差那么点地方。想敲的业主要敲的理由还有说是敲出来的钢筋太细,没什么作用。大家可以看看:
2018-8-14 09:28
18楼
找工作,就上MY0511!
只看该作者
分享本楼
闲庭看落花
来自 江苏省
精华 0
注册 2012-5-24
行业 商业贸易
2018-8-14 09:29
19楼
0511家装频道:本地家居服务平台,数万业主共同选择
只看该作者
分享本楼
闲庭看落花
来自 江苏省
精华 0
注册 2012-5-24
行业 商业贸易
感觉上面的细了点,边上的那么粗,为什么总强调上面的?买房是件大事,为了多出点面积给居住的环境带来隐患,这帐是怎么算的?为了达到自己的目的,找出那么多理由,感觉有些业主的专业知识都超过房屋设计师了。
2018-8-14 09:39
20楼
[联宇电脑] 电脑组装\维修\升级\企业单位电脑维护!
只看该作者
分享本楼
火紫炎
来自 江苏省
精华 0
注册 2003-3-22
敲了隐患太多,还是想想怎么利用。
---发自iPhone 6S---
2018-8-14 12:47
21楼
买房、卖房、租房上镇江房产网!
只看该作者
分享本楼
cchris
来自 江苏省
精华 0
注册 2015-10-25
同意,7月31号拿房的时候我家墙壁空鼓,找了建筑商过来看,特意问了飘窗的事。建筑商那边再三强调不让动。
那么粗的钢筋,我问了家里,也问了设计师,都不同意敲。
[
本帖最后由 cchris 于 2018-8-14 13:54 编辑
]
2018-8-14 13:53
22楼
[联宇电脑] 电脑组装\维修\升级\企业单位电脑维护!
只看该作者
分享本楼
景色怡人jy
来自 江苏省
精华 0
注册 2017-3-4
QUOTE:
原帖由
闲庭看落花
于 2018-8-14 09:29 发表
[attach]24297496[/attach]
这么粗的钢筋一看就是承重的,不然开发商不会钱多的没处去给用这么粗的钢筋
2018-8-15 17:05
23楼
买房、卖房、租房上镇江房产网!
只看该作者
分享本楼
闲庭看落花
来自 江苏省
精华 0
注册 2012-5-24
行业 商业贸易
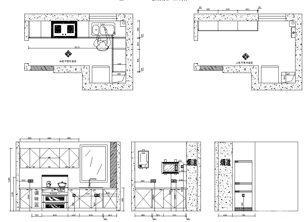
看到楼上几位有共同的意见真高兴。在装修的过程中会发现很多问题,我家原来设计的厨房图一
[
本帖最后由 闲庭看落花 于 2018-9-24 09:04 编辑
]
2018-8-16 07:54
24楼
0511家装频道:本地家居服务平台,数万业主共同选择
只看该作者
分享本楼
闲庭看落花
来自 江苏省
精华 0
注册 2012-5-24
行业 商业贸易
装修时发现如果集成灶放在那个位置就靠近燃气管道了,再三思量和设计师确认了现在的方案,现在的方案的弊端是烟道较长,占用了厨柜空间,设计师建议在窗下打孔,我家担心时间长了后排出的的油烟会把外面墙壁弄黑了。
[
本帖最后由 闲庭看落花 于 2018-9-24 09:08 编辑
]
2018-8-16 08:07
25楼
0511家装频道:本地家居服务平台,数万业主共同选择
只看该作者
分享本楼
闲庭看落花
来自 江苏省
精华 0
注册 2012-5-24
行业 商业贸易
装修的烦恼真多,今天老公和我讲他开始收到卖家具的骚扰电话了,前段时间全是装修公司的,考虑换号码,换号牵扯的事也很多,真难为他了。
2018-8-16 08:14
26楼
[联宇电脑] 电脑组装\维修\升级\企业单位电脑维护!
只看该作者
分享本楼
梦落青枫
来自 江苏省
精华 0
注册 2015-1-17
你家阳台的另一面是打柜子吗?那个放空调外机的窗口怎么处理的?
---发自iPhone 6 Plus---
2018-8-16 09:15
27楼
找工作,就上MY0511!
只看该作者
分享本楼
宇祥装饰客服
来自 江苏省
精华
8
注册 2010-9-13
行业 房产建筑
开工大吉
2018-8-16 09:44
28楼
买房、卖房、租房上镇江房产网!
只看该作者
分享本楼
海文装饰客服
专版版主
来自 江苏省
精华
53
注册 2016-5-6
恭喜开贴
2018-8-16 15:58
29楼
MY0511相亲,一分钟注册,享一辈子幸福!
只看该作者
分享本楼
法狮龙艺术吊顶
来自 江苏省
精华 0
注册 2008-9-1
行业 商业贸易
恭喜开工 开工大吉
2018-8-16 16:19
30楼
0511家装频道:本地家居服务平台,数万业主共同选择
只看该作者
分享本楼
宅翻新
来自 江苏省
精华 0
注册 2018-7-11
恭喜开工
2018-8-18 15:23
31楼
0511家装频道:本地家居服务平台,数万业主共同选择
只看该作者
分享本楼
关亨木门
来自 江苏省
精华 0
注册 2010-5-8
行业 其它
恭喜楼主开工大吉
2018-8-18 17:23
32楼
MY0511相亲,一分钟注册,享一辈子幸福!
只看该作者
分享本楼
闲庭看落花
来自 江苏省
精华 0
注册 2012-5-24
行业 商业贸易
QUOTE:
原帖由
梦落青枫
于 2018-8-16 09:15 发表
你家阳台的另一面是打柜子吗?那个放空调外机的窗口怎么处理的?
放空调机的窗口再扩大到能放外机,然后打柜子遮挡,柜子的隔板可以卸下。顺便问一下你也是这个小区的吗?
2018-8-18 20:15
33楼
[联宇电脑] 电脑组装\维修\升级\企业单位电脑维护!
只看该作者
分享本楼
闲庭看落花
来自 江苏省
精华 0
注册 2012-5-24
行业 商业贸易
今天订了地砖,装修的大件基本上已经差不多了,统计一下:
橱柜:佰怡家
地板:金象地板
木门:梦天
瓷砖:东鹏
卫浴系列:九牧
集成吊顶:欧普吊顶
灶具:火星人
地漏:潜水艇
其它小件还未算,暂时这么多吧。
[
本帖最后由 闲庭看落花 于 2018-9-24 08:58 编辑
]
2018-8-18 20:52
34楼
MY0511相亲,一分钟注册,享一辈子幸福!
只看该作者
分享本楼
巴森系统一体窗
来自 江苏省
精华 0
注册 2017-4-20
欢迎参观厂址
---发自vivo---
2018-8-19 07:54
35楼
买房、卖房、租房上镇江房产网!
只看该作者
分享本楼
老友记装饰黄
来自 江苏省
精华 0
注册 2016-6-23
QUOTE:
原帖由
闲庭看落花
于 2018-8-18 20:52 发表
今天订了地砖,装修的大件基本上已经差不多了,统计一下:
橱柜:佰怡家
地板:金象地板
木门:梦天
瓷砖:东鹏
卫浴系列:九牧
集成吊顶:欧普吊顶
灶具:火星人
地漏:潜水艇
其它小 ...
速度好快东西都定差不多了
2018-8-19 18:01
36楼
买房、卖房、租房上镇江房产网!
只看该作者
分享本楼
闲庭看落花
来自 江苏省
精华 0
注册 2012-5-24
行业 商业贸易
今天把前置门净水器送过去,现场工人在忙活,有点乱就不发图了,去几家邻居看看进度都很快的,看到有两家烟道用砖砌了,问后才知道是防止瓷砖脱落,心想怎么没听设计师说过,等水电工头来特意问了下,他说这在他们单位是常识不需要刻意提出的,看来选择老友记没错。
2018-8-19 19:25
37楼
买房、卖房、租房上镇江房产网!
只看该作者
分享本楼
闲庭看落花
来自 江苏省
精华 0
注册 2012-5-24
行业 商业贸易
今天监理发信息过来发现厨房下水管有个三通是裂的,跟开发商联系了明天去看,如果没发现以后就是隐患,为员工的细心赞一个。目前水电改造进行得差不多了,前置净水器也安装好了,从电表开始水管都换了,自己买了保温膜给师傅装,今天都已经安装到位,不多说了上图。
[attach]24339734[/attach]
[attach]24339728[/attach]
[
本帖最后由 闲庭看落花 于 2018-8-23 21:02 编辑
]
2018-8-23 20:59
38楼
找工作,就上MY0511!
只看该作者
分享本楼
闲庭看落花
来自 江苏省
精华 0
注册 2012-5-24
行业 商业贸易
[
本帖最后由 闲庭看落花 于 2018-9-24 09:16 编辑
]
水管加压测试
2018-8-23 21:03
39楼
MY0511相亲,一分钟注册,享一辈子幸福!
只看该作者
分享本楼
闲庭看落花
来自 江苏省
精华 0
注册 2012-5-24
行业 商业贸易
前天上午水电结束,今天去把这部分钱款结了,下一步瓦工进场,还有点小瑕疵需要重新弄一下,师傅都应承了,尽可能不留遗憾吧,去现场看了下水泥黄沙已经到场了,和瓷砖商定了后天上午送货,有时间就看邻居的装修风格,看到有人就敲门进去,真是脑洞大开,叹为观止今天看到有一户在阳台放空调外机的位置把下水改过的,我家现在就想这样做的利弊及可行度。
2018-8-26 21:24
40楼
[联宇电脑] 电脑组装\维修\升级\企业单位电脑维护!
只看该作者
分享本楼
卓高美缝天桥店
来自 江苏省
精华 0
注册 2018-4-19
装修愉快
2018-8-27 10:17
41楼
MY0511相亲,一分钟注册,享一辈子幸福!
只看该作者
分享本楼
闲庭看落花
来自 江苏省
精华 0
注册 2012-5-24
行业 商业贸易
QUOTE:
原帖由
卓高美缝天桥店
于 2018-8-27 10:17 发表
装修愉快
谢谢!请问一下你家做美缝,是怎么算的?留个联系方式吧。
2018-8-28 12:45
42楼
[联宇电脑] 电脑组装\维修\升级\企业单位电脑维护!
只看该作者
分享本楼
老友记装饰客服
专版版主
来自 江苏省
精华
71
注册 2012-8-13
行业 其它
过来帮楼主顶顶贴
2018-8-29 18:05
43楼
找工作,就上MY0511!
只看该作者
分享本楼
流浪人在漂泊
来自 青海省
精华 0
注册 2011-7-22
行业 工业制造
15万难度大大滴
2018-8-29 18:47
44楼
MY0511相亲,一分钟注册,享一辈子幸福!
只看该作者
分享本楼
闲庭看落花
来自 江苏省
精华 0
注册 2012-5-24
行业 商业贸易
QUOTE:
原帖由
老友记装饰客服
于 2018-8-29 18:05 发表
过来帮楼主顶顶贴
谢谢
2018-8-30 10:48
45楼
MY0511相亲,一分钟注册,享一辈子幸福!
只看该作者
分享本楼
闲庭看落花
来自 江苏省
精华 0
注册 2012-5-24
行业 商业贸易
QUOTE:
原帖由
流浪人在漂泊
于 2018-8-29 18:47 发表
15万难度大大滴
目前18+
[
本帖最后由 闲庭看落花 于 2018-8-30 10:49 编辑
]
2018-8-30 10:49
46楼
[联宇电脑] 电脑组装\维修\升级\企业单位电脑维护!
只看该作者
分享本楼
闲庭看落花
来自 江苏省
精华 0
注册 2012-5-24
行业 商业贸易
2018-8-30 11:40
47楼
0511家装频道:本地家居服务平台,数万业主共同选择
只看该作者
分享本楼
闲庭看落花
来自 江苏省
精华 0
注册 2012-5-24
行业 商业贸易
感觉看图是最直观的,上面几张都是卫生间的,原来的PVC管换成了PE管,开发商做的防水很好,没有渗漏,用红砖砌了格子,陶粒回填,上面的钢筋排布密度也可以,我最关心的二次排水没想到那么简单,就是在排气管上扎个洞而已。
2018-8-30 11:47
48楼
买房、卖房、租房上镇江房产网!
只看该作者
分享本楼
闲庭看落花
来自 江苏省
精华 0
注册 2012-5-24
行业 商业贸易
今天终于见到了什么是水货,因为目前已经严重超预算,就在考虑要不要做美缝能省则省,有朋友说了做美缝的重要性,我就想墙面可不可以不做,就让师傅用填缝剂填缝,填缝剂是东鹏瓷砖送的,昨天师傅说送了一箱过来,真够大方的。今天去现场跟师傅谈又想全做了,还是做吧,填了缝的要清理,没想到这么好清理,轻轻一刮就掉了,
幸亏送来的是水货,也幸亏我决定做美缝。
2018-8-31 11:48
49楼
0511家装频道:本地家居服务平台,数万业主共同选择
只看该作者
分享本楼
闲庭看落花
来自 江苏省
精华 0
注册 2012-5-24
行业 商业贸易
前天和设计师说起过门石的事,他建议去金桥市场看看,第一次去那里问了几个,除去产品外,另外收送货的钱,按趟计费,还有什么磨边费,而且几家要价都不同,感觉太乱,套路太多,今天直接去亿都买了,亿都的距离比金桥要远得多,老板免费送,加工按规定做活,不会说是少磨一道的说法,听金桥的卖家说的话真不敢买,她说别人会怎样坑,而我更担心她家会这样坑我。
2018-9-1 23:22
50楼
找工作,就上MY0511!
只看该作者
分享本楼
返回家庭装修
1217
1/25
1
2
3
4
5
6
7
8
9
10
>
>
|
快速回复主题
游客
您目前还是游客,请
登录
或
注册
您目前是游客,本帖已被系统设置了自动关闭,不可回复!
文明交流,理性发言
0/5000字
<
>
请在打开的新窗口中支付完成打赏
我已完成支付打赏
支付失败重新支付
其他金额
打赏金额:
元
确定
支付打赏
提 现
打赏人
打赏金额(元)
打赏时间
老友记装饰客服
1.00
2018-8-10 11:43
双羽木门专卖
1.00
2018-8-10 15:50
伊慕装饰
1.00
2018-8-10 18:05
法诗雅移门
1.00
2018-8-30 12:16
森香木门楼梯
1.00
2018-9-29 22:41
Powered by
Discuz! X 2
0.091057 s
清除 Cookies
-
镇江网友之家
-
手机版
论坛导航
关闭
吃喝玩乐
饮食男女
镇江钓友之家
菜菜鸟户外
镇江单车俱乐部
镜头里的镇江
畅游天下
猫狗总动员
视觉Coffeeshop摄影部落
花鸟鱼虫
婚姻.亲子.家庭
家有学子
谈婚论嫁
女性天地
母婴乐园
婚姻生活
梦溪佳缘
装修
家庭装修
装修招标
镇江室内设计师交流
装修商家直通车
你好,镇江!
百姓话题
我要买房
0511爱心家园
市场监管•12315热线
分类信息
生活服务
闲置转让
镇江二手房/镇江租房
镇江招聘求职
教育培训
镇江二手车
商铺厂房写字楼租售
宠物市场
运动健身
卡券交易
电脑维修升级
杂货铺
其他分类信息区
兴趣爱好
HiFi音响江城沙龙
镇江市美术家协会
我爱模型
车友俱乐部
车迷之家
汽车驾培中心
运动俱乐部
镇江市冬泳、铁人三项协会
聚焦足球
镇江羽毛球
镇江乒乓球协会
镇江网球协会
镇江市自行车运动协会
热爱篮球
动力机车
合作栏目
维权热线
天翼时代
色觉影像摄影工作室
站务区
疑问与建议
网络问政
市政府工作部门
垂直管理部门
党群工作部门
其他重点单位
辖市(区)