收藏本站
客户端
扫码下载客户端
官方微信
打开微信扫一扫
登录
|
注册
|
标题
标题
用户
全站首页
|
论坛导航
|
网络问政
|
招聘求职
|
买房租房
|
装修频道
|
生活服务
|
教育
|
相亲
|
亲子
|
美食
|
婚嫁
|
手机客户端
家有学子
|
母婴乐园
快捷导航
精彩推荐:
MY0511客户端下载
中信银行镇江分行
公益体彩 乐善人生
鹏龙鸿蒙
天然石材·人造石
»
梦溪论坛
»
家庭装修
» 小家装修记
家庭装修
>
[装修日记]
小家装修记
查看: 9850 回复: 24
快速回复
返回家庭装修
[装修日记]
小家装修记
查看: 9850 回复: 24
上一主题
|
下一主题
玫瑰鱼
来自 江苏省
精华 0
注册 2018-8-17
小家装修记
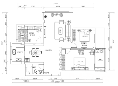
这间房子本来买来给小孩上学的,买的毛坯的二手房准备简单装修一下又不缺舒适度。
城市:镇江
楼盘:天元一品
开始时间:2018-07-28
居室:三居,105平方米
装修公司:环洋整装
风格:现代中式
形式:半包
预算:6.3万元
已有 伊慕装饰, 老友记装饰客服, 双羽木门专卖
3
人打赏
2018-9-6 15:00
1楼
[联宇电脑] 电脑组装\维修\升级\企业单位电脑维护!
只看该作者
分享本楼
玫瑰鱼
来自 江苏省
精华 0
注册 2018-8-17
这间房子本来买来给小孩上学的,买的毛坯的二手房准备简单装修一下又不缺舒适度,看了很多家装修公司。我选择环洋整装公司既是偶然也是必然,偶然听朋友介绍对环洋整装公司评价不错,当我去到这家公司了解的时候被热情所打动特别是笑容,当我和设计师小许交谈的时候她那种注重细节的设计理念把我留下,就这样还是比较了几家公司后毅然选择了环洋整装。
(房间效果图)
[
本帖最后由 玫瑰鱼 于 2018-9-6 15:04 编辑
]
2018-9-6 15:04
2楼
MY0511相亲,一分钟注册,享一辈子幸福!
只看该作者
分享本楼
玫瑰鱼
来自 江苏省
精华 0
注册 2018-8-17
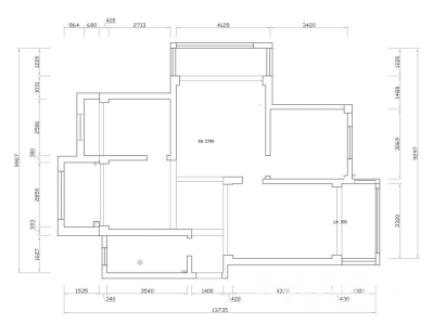
7月28日一个吉祥的日子开工了,师傅们穿着统一的工作服开始了工作,经过墙体改造,刷墙地固等一系列前期工作后,开始了水电。
我去之前没跟师傅打招呼。抽空去了。师傅在那低头做做事,蛮认真的样子,都没发现我来了。跟师傅聊了一下水电布局,师傅还蛮认真跟我介绍下。以前有装修房的经验,知道水电很重要。
忽略我偏低的颜值
2018-9-6 15:06
3楼
0511家装频道:本地家居服务平台,数万业主共同选择
只看该作者
分享本楼
玫瑰鱼
来自 江苏省
精华 0
注册 2018-8-17
为了增长点知识所以在网上查了一些资料简单分享下:
1.使用性:水电家装工程在造价报中占很大的比例一般都在1/5左右(基础装修) 所以避免不实用的走线 能节省很大的开支.
2.走位正确性: 在水电走线时尽量缩短走线距离,减少不必要的浪费.但要注意保证墙地面走线保持横平竖敷设管子时,应尽量减少弯曲,当线路直线段长度超过15m或直角弯超过三个时,应增设中间接线盒。保证以后维修方便直.
3.稳定性:电路走线要做PVC管保护,强弱电之间要有足够距离以免影响弱电信号,电视、电话、网线的室内布线不允许串联
4.安全性:给水管道要打压实验,排水管道要做排水试渗漏
5.最后还要有水电路的走线图或实景照片 以便以后安装其他器具时做参考 防止使其破坏,说句心里话,以前选择环洋最大原因是看了施工现场。这下也没令我失望。价格合理。据说工人都经过面试手艺考察的。素质还不错。水电走得很专业,横平竖直,几乎不要太操心,而且不厌其烦,场地也整理得很整齐,总之可以安心和放心。
2018-9-6 15:10
4楼
买房、卖房、租房上镇江房产网!
只看该作者
分享本楼
伊慕装饰
专版版主
来自 江苏省
精华 0
注册 2014-10-16
欢迎新同学
2018-9-6 15:13
5楼
0511家装频道:本地家居服务平台,数万业主共同选择
只看该作者
分享本楼
国新壁纸软装
家装认证商户
来自 江苏省
精华 0
注册 2018-9-3
恭喜
---发自iPhone 6S Plus---
2018-9-6 15:29
6楼
[联宇电脑] 电脑组装\维修\升级\企业单位电脑维护!
只看该作者
分享本楼
13815172458
来自 江苏省
精华 0
注册 2018-8-11
开工大吉
2018-9-6 15:58
7楼
MY0511相亲,一分钟注册,享一辈子幸福!
只看该作者
分享本楼
Vespere
来自 江苏省
精华 0
注册 2018-9-6
666
2018-9-6 16:03
8楼
MY0511相亲,一分钟注册,享一辈子幸福!
只看该作者
分享本楼
tot
来自 江苏省
精华 0
注册 2010-6-15
行业 房产建筑
欢迎欢迎,相声响起
---发自iPhone 6S---
2018-9-6 16:58
9楼
[联宇电脑] 电脑组装\维修\升级\企业单位电脑维护!
只看该作者
分享本楼
宅翻新
来自 江苏省
精华 0
注册 2018-7-11
2018-9-6 18:20
10楼
[联宇电脑] 电脑组装\维修\升级\企业单位电脑维护!
只看该作者
分享本楼
坏头头
来自 江苏省
精华 0
注册 2012-8-15
行业 工业制造
恭喜,我们一个小区,天元一品房子质量还是非常好的,双学区离大菜场又近,上学生活不要烦神
2018-9-7 13:00
11楼
0511家装频道:本地家居服务平台,数万业主共同选择
只看该作者
分享本楼
欧于末端净水机
来自 江苏省
精华 0
注册 2017-12-11
行业 其它
恭喜楼主
2018-9-7 13:45
12楼
[联宇电脑] 电脑组装\维修\升级\企业单位电脑维护!
只看该作者
分享本楼
环洋整装
专版版主
来自 江苏省
精华
46
注册 2018-7-27
感谢户主的信任,我们一定给您一个满意的答复
[
本帖最后由 环洋整装 于 2018-9-7 16:52 编辑
]
2018-9-7 16:51
13楼
MY0511相亲,一分钟注册,享一辈子幸福!
只看该作者
分享本楼
专业铲墙
来自 江苏省
精华 0
注册 2017-3-15
开工大吉
2018-9-7 17:33
14楼
买房、卖房、租房上镇江房产网!
只看该作者
分享本楼
环洋整装
专版版主
来自 江苏省
精华
46
注册 2018-7-27
2018-9-8 11:21
15楼
买房、卖房、租房上镇江房产网!
只看该作者
分享本楼
北京高端美缝
来自 江苏省
精华 0
注册 2018-9-5
恭喜恭喜 开工大吉
---发自vivo---
2018-9-8 18:08
16楼
买房、卖房、租房上镇江房产网!
只看该作者
分享本楼
华飞装饰客服
家装认证商户
来自 江苏省
精华
108
注册 2015-11-2
恭喜开贴
2018-9-9 14:47
17楼
MY0511相亲,一分钟注册,享一辈子幸福!
只看该作者
分享本楼
宅翻新
来自 江苏省
精华 0
注册 2018-7-11
恭喜恭喜
2018-9-10 15:04
18楼
找工作,就上MY0511!
只看该作者
分享本楼
莫干山衣柜
来自 江苏省
精华 0
注册 2012-8-13
行业 其它
恭喜恭喜
2018-9-11 14:45
19楼
[联宇电脑] 电脑组装\维修\升级\企业单位电脑维护!
只看该作者
分享本楼
卓高美缝天桥店
来自 江苏省
精华 0
注册 2018-4-19
装修愉快
2018-9-11 15:47
20楼
[联宇电脑] 电脑组装\维修\升级\企业单位电脑维护!
只看该作者
分享本楼
环洋整装
专版版主
来自 江苏省
精华
46
注册 2018-7-27
2018-9-13 10:31
21楼
找工作,就上MY0511!
只看该作者
分享本楼
老友记装饰黄
来自 江苏省
精华 0
注册 2016-6-23
恭喜开工
2018-9-15 16:20
22楼
0511家装频道:本地家居服务平台,数万业主共同选择
只看该作者
分享本楼
双羽木门专卖
来自 江苏省
精华 0
注册 2017-5-19
恭喜恭喜
2018-9-15 17:55
23楼
0511家装频道:本地家居服务平台,数万业主共同选择
只看该作者
分享本楼
你的不经意
来自 江苏省
精华 0
注册 2018-8-18
2018-9-16 10:26
24楼
找工作,就上MY0511!
只看该作者
分享本楼
蔚蓝的天空好
来自 江苏省
精华 0
注册 2017-3-31
预算肯定超
2018-9-16 10:41
25楼
买房、卖房、租房上镇江房产网!
只看该作者
分享本楼
返回家庭装修
快速回复主题
游客
您目前还是游客,请
登录
或
注册
您目前是游客,本帖已被系统设置了自动关闭,不可回复!
文明交流,理性发言
0/5000字
<
>
请在打开的新窗口中支付完成打赏
我已完成支付打赏
支付失败重新支付
其他金额
打赏金额:
元
确定
支付打赏
提 现
打赏人
打赏金额(元)
打赏时间
伊慕装饰
1.00
2018-9-6 15:03
老友记装饰客服
1.00
2018-9-15 17:13
双羽木门专卖
1.00
2018-9-15 17:54
Powered by
Discuz! X 2
0.042711 s
清除 Cookies
-
镇江网友之家
-
手机版
论坛导航
关闭
吃喝玩乐
饮食男女
镇江钓友之家
菜菜鸟户外
镇江单车俱乐部
镜头里的镇江
畅游天下
猫狗总动员
视觉Coffeeshop摄影部落
花鸟鱼虫
婚姻.亲子.家庭
家有学子
谈婚论嫁
女性天地
母婴乐园
婚姻生活
梦溪佳缘
装修
家庭装修
装修招标
镇江室内设计师交流
装修商家直通车
你好,镇江!
百姓话题
我要买房
0511爱心家园
市场监管•12315热线
分类信息
生活服务
闲置转让
镇江二手房/镇江租房
镇江招聘求职
教育培训
镇江二手车
商铺厂房写字楼租售
宠物市场
运动健身
卡券交易
电脑维修升级
杂货铺
其他分类信息区
兴趣爱好
HiFi音响江城沙龙
镇江市美术家协会
我爱模型
车友俱乐部
车迷之家
汽车驾培中心
运动俱乐部
镇江市冬泳、铁人三项协会
聚焦足球
镇江羽毛球
镇江乒乓球协会
镇江网球协会
镇江市自行车运动协会
热爱篮球
动力机车
合作栏目
维权热线
天翼时代
色觉影像摄影工作室
站务区
疑问与建议
网络问政
市政府工作部门
垂直管理部门
党群工作部门
其他重点单位
辖市(区)