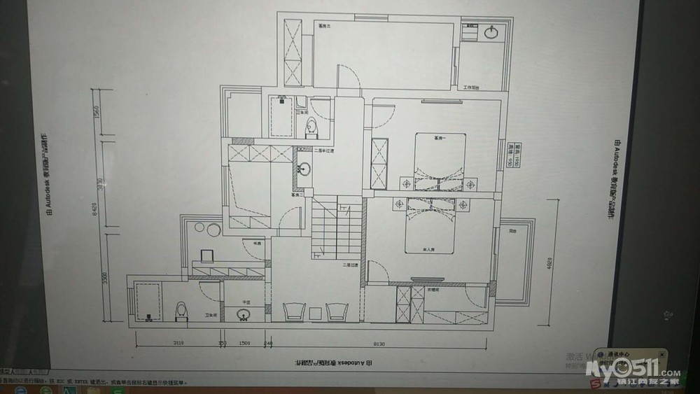
【小区名称】:南山浅水湾
【所在楼层】:3-5楼
【建筑面积】:174平方
【装修风格】:现代简约
【包工方式】:半包
【装修公司】:百年装饰
【设计师】   :刘亮
【开工日期】:2018年8月24日
【装修预算】:预算什么都是浮云 
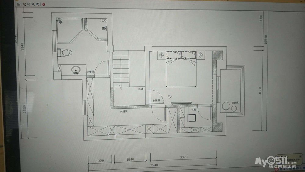
【户型图片】:如下
欢迎加入家装官方VIP大宅QQ群 群号:565444352
[ 本帖最后由 my0511小妖 于 2019-3-7 09:45 编辑 ]
- 来自 江苏省
 - 精华 0
 - 注册 2018-5-6
 
- 来自 江苏省
 - 精华 0
 - 注册 2018-5-6
 
- 来自 江苏省
 - 精华 0
 - 注册 2018-5-6
 


















加油更新哦
装修愉快!!!


