
【家装毕业照幸福拍拍秀】旨在与网友们共同分享你的毕业完工照,
我们的口号是:你的幸福空间,我们帮你拍照留念!还希望大家多多支持哦~~

第九十九集,我们来到网友xuqiao7441837的家里
《一方安隅》
摄影编辑:my0511小Z

【小区名称】:松盛
【套内面积】:177平+44平阁楼
【装修风格】:简欧+简美的混搭
【包工方式】:半包
xuqiao7441837家的装修日记直通车:新孟母三迁——只为给她一个合适的学区房(顺利毕业啦)
http://bbs.my0511.com/f95b-t6654589z

也许楼楼家比不上别人家的繁华,比不上别人家时尚,但是在楼楼心中,这是最适合我们自己的家。
人都说,家是什么?在楼楼眼里,家是那一方安隅,是家人团聚之地,更是在外拼搏一切只为回来休憩半刻的地方。
——xuqiao7441837
[ 本帖最后由 my0511唐老鸭 于 2018-12-28 17:19 编辑 ]






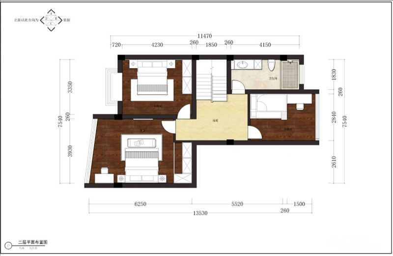
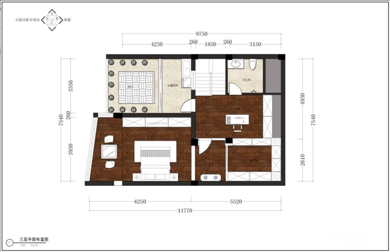
平面图


客厅



餐厅


厨房


卧室



阁楼













楼主好厉害。


