| 标题
快捷导航

精彩推荐:MY0511客户端下载

    • 中信银行镇江分行

    • 公益体彩 乐善人生

    • 鹏龙鸿蒙

    • 天然石材·人造石

    » 梦溪论坛 » 家庭装修 » 3月16日和家装小编看工地学装修,现代简约、轻奢港式真实业主完工家邀你一起参观
    家庭装修  >  [官方活动] 3月16日和家装小编看工地学装修,现代简约、轻奢港式真实业主完工家邀你一起参观     
    查看: 572822  回复: 34
    [官方活动] 3月16日和家装小编看工地学装修,现代简约、轻奢港式真实业主完工家邀你一起参观      查看: 572822  回复: 34
    • 来自 江苏省
    • 精华 9
    • 注册 2005-10-29
    • 晒家
    •  
    3月16日和家装小编看工地学装修,现代简约、轻奢港式真实业主完工家邀你一起参观


    MY0511家装样板房直通车是为即将装修的童鞋打造的装修体验式活动
    零距离走进各小区正在装修或装修好的样板房
    从业资深人士在工地进行现场讲解设计/施工知识/答疑解惑
    如果您即将准备装修,赶快加入我们吧!




    活动时间:2019年3月16日(周六)下午
    集合地点:万达喜来登门口大巴集合

                    (不是酒店里面哦~活动前一两天小编会发大巴车牌号给大家的)
    集合时间:3月16日13:00
    样板房提供单位:

    【点击图标了解装饰/设计公司详情】

    样板房地点及进度:
    泽一设计:    中冶玉翠园
    [水电施工]       彩虹城[整体完工]
    壹明设计:   
    招商北固湾[油漆施工]       凤凰和润[软装中]

    参观路线:
    万达——中冶玉翠园——彩虹城——凤凰和润——招商北固湾——万达


    搜索小妖微信号报名:775967213

    参加MY0511样板房直通车的好处
    【理由一】直击施工现场,了解施工工艺与装修过程
    【理由二】设计师、监理现场陪同讲解装修细节,解决装修疑问
    【理由三】网友之间互动交流,分享宝贵装修经验
    【理由四】公益活动全程免费,空调大巴风雨无阻
    【理由五】施工和完工样板一个不缺,感受装修多环节
    【理由六】设计师一对一解析您家户型,免费答疑解惑

    看样板房注意事项
    1.为了不耽误大家时间,请同学们尽量准时到集合地点集合
    2.有待装房平面图的朋友可带上图纸,方便设计师现场一对一解析
    3.受客观因素制约,每户仅限2个参与名额
    4.整个活动的时间不短,并且工地环境不太适合小孩子待,所以请大家尽量避免带上小孩
    5.活动过程中请参观的同学跟随设计师(监理)的讲解顺序看样板房,以便您更全面了解样板房施工工艺、工程造价和装修注意事项等
    6.设计师讲解完后可以提出您的疑问,可不要害羞~
    7.请大家配合保护好施工现场哦,因为这个也是别人的家


    [ 本帖最后由 my0511小妖 于 2019-3-15 15:53 编辑 ]





                      
    • 来自 江苏省
    • 精华 9
    • 注册 2005-10-29
    • 晒家
    •  

    泽一设计样板房信息:

    样板房地址:中冶·玉翠园8栋
    施工阶段:水电施工
    设计师:汤萌
    风格:北欧
    面积:110P
    承包方式:半包
    承包造价:6.6W
    平面布置图:




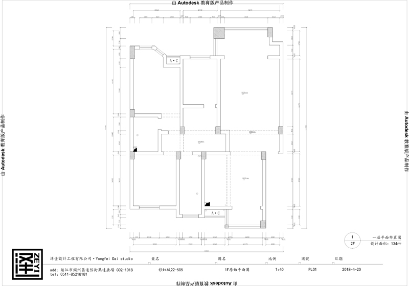
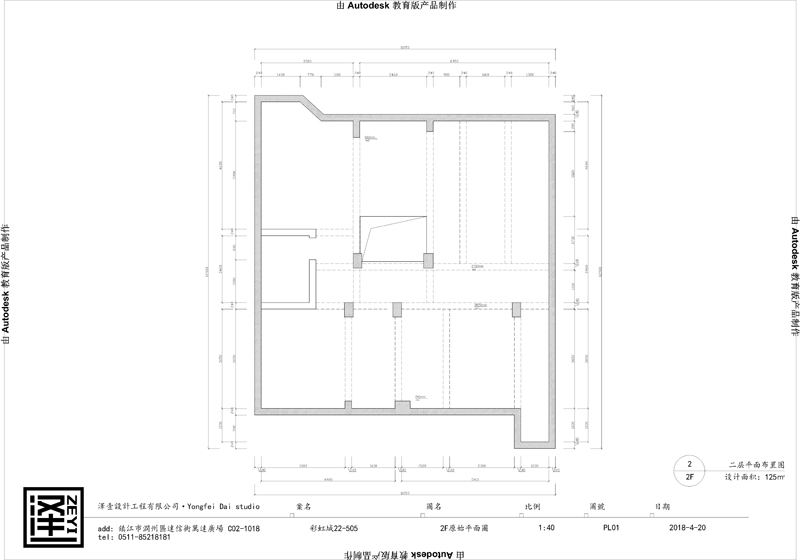
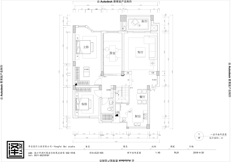
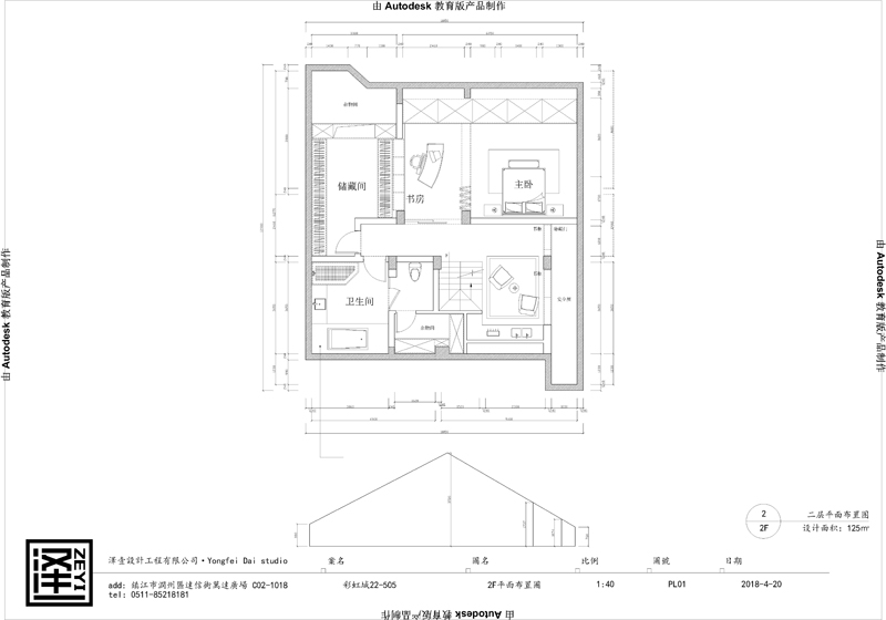
    样板房地址:彩虹城22栋
    施工阶段:完工成品
    设计师:戴永菲
    风格:港式轻奢
    面积:160
    承包方式:半包
    承包造价:11W
    平面布置图:







    效果图:














    [ 本帖最后由 my0511小妖 于 2019-3-8 11:39 编辑 ]




    • 来自 江苏省
    • 精华 9
    • 注册 2005-10-29
    • 晒家
    •  

    壹明设计样板房信息:

    样板房地址:招商北固湾3期
    施工阶段:水电施工
    设计师:张耀明
    风格:现代简约
    面积:170
    承包方式:半包
    承包造价:9W5
    平面布置图:


    效果图:










    样板房地址:凤凰和润2栋
    施工阶段:完工等待软装
    设计师:张耀明
    风格:现代简约
    面积:120
    承包方式:半包
    承包造价:7W
    效果图:








    手机拍实景图:














    [ 本帖最后由 my0511小妖 于 2019-3-7 10:11 编辑 ]




    • 来自 江苏省
    • 精华 9
    • 注册 2005-10-29
    • 晒家
    •  






    • 来自 江苏省
    • 精华 0
    • 注册 2014-5-17
    • 行业 商业贸易
    •  






    • 来自 江苏省
    • 精华 79
    • 注册 2017-11-21
    •  






    • 来自 江苏省
    • 精华 0
    • 注册 2018-1-15
    • 行业 商业贸易
    •  
    • 来自 江苏省
    • 精华 100
    • 注册 2017-7-19
    • 行业 房产建筑
    •  






    • 来自 江苏省
    • 精华 0
    • 注册 2018-8-6
    •  
    • 来自 江苏省
    • 精华 70
    • 注册 2018-3-2
    • 行业 房产建筑
    •  

    大家踊跃报名




    • 来自 江苏省
    • 精华 13
    • 注册 2006-8-8
    • 行业 房产建筑
    •  






    • 来自 江苏省
    • 精华 34
    • 注册 2004-8-30
    • 行业 其它
    • 五一劳动节 功勋会员 我是车主
    •  






    • 来自 江苏省
    • 精华 27
    • 注册 2012-2-1
    • 行业 房产建筑
    •  






    • 来自 江苏省
    • 精华 0
    • 注册 2011-2-22
    • 行业 教育科研
    •  
    • 来自 江苏省
    • 精华 0
    • 注册 2018-6-4
    •  



    [ 本帖最后由 my0511小妖 于 2019-3-11 14:37 编辑 ]




    • 来自 江苏省
    • 精华 9
    • 注册 2005-10-29
    • 晒家
    •  






    • 来自 江苏省
    • 精华 0
    • 注册 2018-8-8
    •  






    • 来自 江苏省
    • 精华 0
    • 注册 2008-9-1
    • 行业 商业贸易
    •  
    • 来自 江苏省
    • 精华 153
    • 注册 2014-12-11
    • 行业 房产建筑
    •  






    • 来自 江苏省
    • 精华 33
    • 注册 2018-3-6
    • 行业 房产建筑
    •  
    • 来自 江苏省
    • 精华 0
    • 注册 2018-10-19
    •  

    怎么报名




    • 来自 江苏省
    • 精华 71
    • 注册 2015-4-22
    •  






    • 来自 江苏省
    • 精华 9
    • 注册 2005-10-29
    • 晒家
    •  


    QUOTE:
    原帖由 屈小春1989 于 2019-3-12 09:47 发表
    怎么报名
    填写报名表或者加我微信:775967213 都可以的




    • 来自 江苏省
    • 精华 0
    • 注册 2008-9-1
    • 行业 商业贸易
    •  
    • 来自 江苏省
    • 精华 3
    • 注册 2013-8-6
    • 行业 IT 通信
    •  






    • 来自 江苏省
    • 精华 0
    • 注册 2018-2-27
    • 行业 商业贸易
    •  






    • 来自 江苏省
    • 精华 0
    • 注册 2019-2-25
    •  

    *** 作者因违反论坛规定,禁言处理,内容自动屏蔽 ***

    详情参阅论坛注册条款:
    http://bbs.my0511.com/f11b-t2789156z


    • 来自 江苏省
    • 精华 144
    • 注册 2010-1-30
    • 行业 信息咨询
    •  






    • 来自 江苏省
    • 精华 0
    • 注册 2013-12-19
    •  






    查看积分策略说明快速回复主题
    您目前还是游客,请 登录注册
    您目前是游客,本帖已被系统设置了自动关闭,不可回复!

    0/5000字

     
    < >
     

    Powered by Discuz! X 2 0.043220 s 清除 Cookies - 镇江网友之家 - 手机版
    论坛导航 关闭