收藏本站
客户端
扫码下载客户端
官方微信
打开微信扫一扫
登录
|
注册
|
标题
标题
用户
全站首页
|
论坛导航
|
网络问政
|
招聘求职
|
买房租房
|
装修频道
|
生活服务
|
教育
|
相亲
|
亲子
|
美食
|
婚嫁
|
手机客户端
家有学子
|
母婴乐园
快捷导航
精彩推荐:
MY0511客户端下载
中信银行镇江分行
公益体彩 乐善人生
鹏龙鸿蒙
天然石材·人造石
»
梦溪论坛
»
家庭装修
» [2019乙品装饰杯]小窝装修日记
家庭装修
>
[装修日记]
[2019乙品装饰杯]小窝装修日记
查看: 11760 回复: 21
快速回复
返回家庭装修
[装修日记]
[2019乙品装饰杯]小窝装修日记
查看: 11760 回复: 21
上一主题
|
下一主题
沐泽
来自 江苏省
精华 0
注册 2019-4-9
[2019乙品装饰杯]小窝装修日记
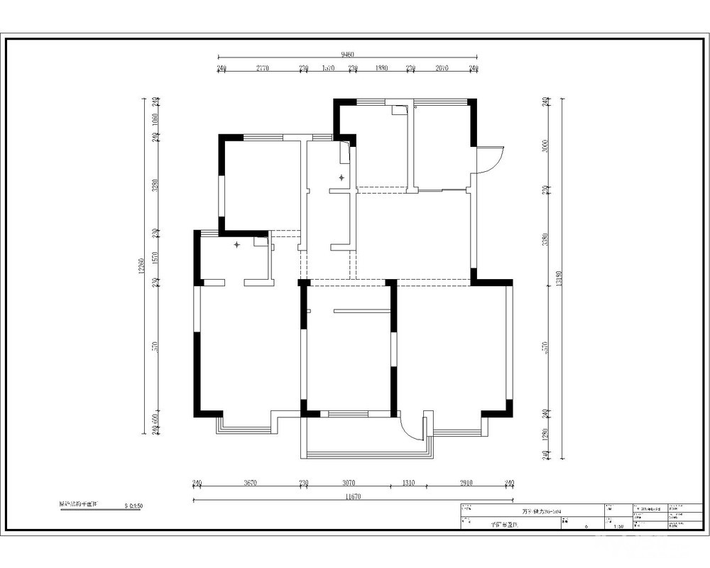
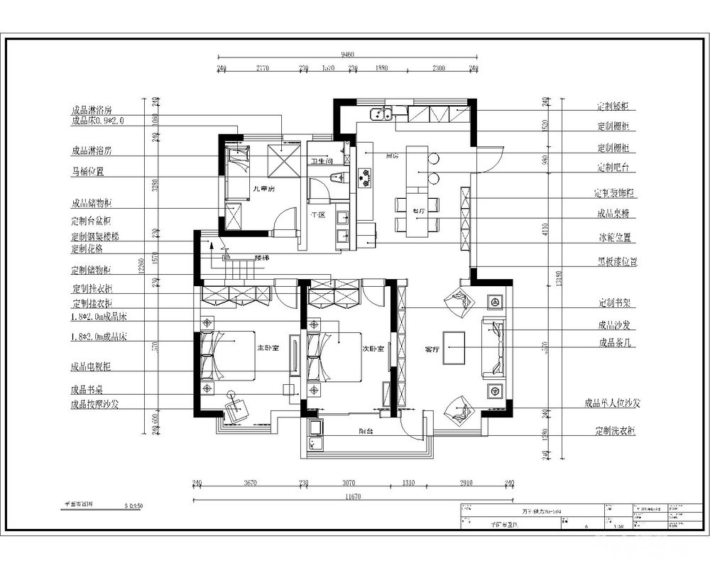
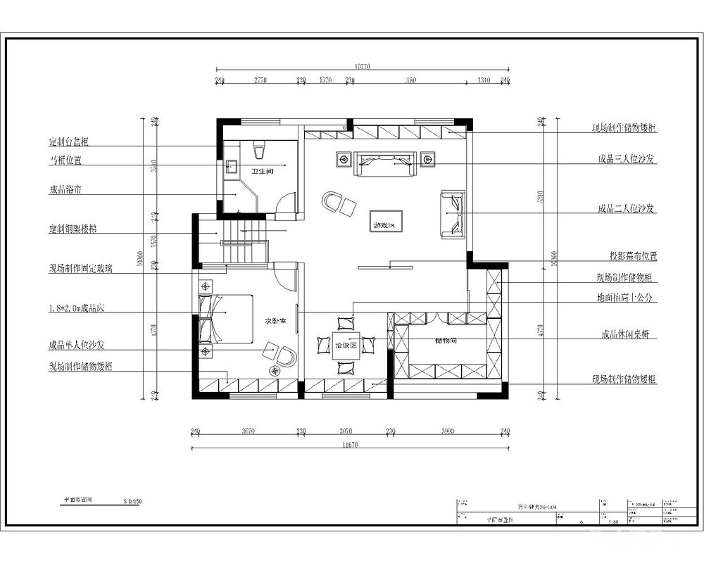
【小区名称】:万科魅力之城
【所在楼层】:6层
【建筑面积】:120+90
【装修风格】:北欧
【包工方式】:设计师+施工队
【装修公司】:
【开工日期】:2017年8月
【装修预算】:预算是用来超的
【户型图片】:
[
本帖最后由 沐泽 于 2019-4-10 07:39 编辑
]
已有
0
人打赏
2019-4-9 21:49
1楼
[联宇电脑] 电脑组装\维修\升级\企业单位电脑维护!
只看该作者
分享本楼
沐泽
来自 江苏省
精华 0
注册 2019-4-9
装修一年半,入住三个月,把设计时的每个在脑海中描摹了无数次的细节变成现实的感觉真好,超级有成就感,我可能是个爱装修的“奇葩”。可惜下一套房子起码要十年后了
2019-4-9 21:55
2楼
[联宇电脑] 电脑组装\维修\升级\企业单位电脑维护!
只看该作者
分享本楼
夏天08
来自 江苏省
精华 0
注册 2018-8-29
恭喜
---发自iPhone 6---
2019-4-9 22:01
3楼
MY0511相亲,一分钟注册,享一辈子幸福!
只看该作者
分享本楼
沐泽
来自 江苏省
精华 0
注册 2019-4-9
[
本帖最后由 沐泽 于 2019-4-9 22:05 编辑
]
2019-4-9 22:01
4楼
[联宇电脑] 电脑组装\维修\升级\企业单位电脑维护!
只看该作者
分享本楼
Lilicocochan
来自 江苏省
精华 0
注册 2014-8-3
很棒啊 楼主找的哪家设计师呢?
---发自iPhone 6---
2019-4-9 23:10
5楼
[联宇电脑] 电脑组装\维修\升级\企业单位电脑维护!
只看该作者
分享本楼
沐泽
来自 江苏省
精华 0
注册 2019-4-9
她不在公司,自己做的
2019-4-9 23:25
6楼
[联宇电脑] 电脑组装\维修\升级\企业单位电脑维护!
只看该作者
分享本楼
1987.威仕
来自 江苏省
精华 0
注册 2019-3-22
行业 房产建筑
门很个性哦。
---发自梦溪论坛手机客户端---
2019-4-10 07:35
7楼
MY0511相亲,一分钟注册,享一辈子幸福!
只看该作者
分享本楼
探路者是我
来自 江苏省
精华
1
注册 2016-11-14
中规中矩
---发自梦溪论坛手机客户端---
2019-4-10 08:06
8楼
买房、卖房、租房上镇江房产网!
只看该作者
分享本楼
皇派门窗
来自 江苏省
精华 0
注册 2016-10-11
行业 房产建筑
---发自iPhone 7 Plus---
2019-4-10 08:52
9楼
MY0511相亲,一分钟注册,享一辈子幸福!
只看该作者
分享本楼
my0511小妖
版主
来自 江苏省
精华
9
注册 2005-10-29
不错哦
2019-4-10 09:03
10楼
买房、卖房、租房上镇江房产网!
只看该作者
分享本楼
镇江骊住
来自 江苏省
精华 0
注册 2018-8-8
2019-4-10 09:33
11楼
0511家装频道:本地家居服务平台,数万业主共同选择
只看该作者
分享本楼
沐泽
来自 江苏省
精华 0
注册 2019-4-9
谢谢大家,我还不知道怎么回贴
2019-4-10 14:21
12楼
MY0511相亲,一分钟注册,享一辈子幸福!
只看该作者
分享本楼
中冠建筑客服
来自 江苏省
精华
5
注册 2019-3-30
行业 基础设施
恭喜开贴 恭喜恭喜
2019-4-10 15:02
13楼
找工作,就上MY0511!
只看该作者
分享本楼
科凡全屋定制
来自 江苏省
精华 0
注册 2018-10-15
恭喜
开贴
2019-4-10 15:06
14楼
MY0511相亲,一分钟注册,享一辈子幸福!
只看该作者
分享本楼
佰丽爱家
来自 江苏省
精华 0
注册 2019-4-8
行业 其它
恭喜楼主
---发自iPhone 6---
2019-4-10 15:19
15楼
0511家装频道:本地家居服务平台,数万业主共同选择
只看该作者
分享本楼
蒋氏贴膜、美缝
来自 江苏省
精华 0
注册 2019-3-30
恭喜开帖,有关于我所能及的方面不懂得或有更多想了解的可以私信问我!必定知无不言言无不尽!
---发自vivo---
2019-4-11 21:37
16楼
买房、卖房、租房上镇江房产网!
只看该作者
分享本楼
镇江欧意橱柜
来自 江苏省
精华 0
注册 2016-11-7
恭喜楼主!!
2019-4-17 13:52
17楼
0511家装频道:本地家居服务平台,数万业主共同选择
只看该作者
分享本楼
BBL贝尔地板
来自 江苏省
精华 0
注册 2017-3-31
好看
---发自iPhone 8 Plus---
2019-4-25 14:15
18楼
[联宇电脑] 电脑组装\维修\升级\企业单位电脑维护!
只看该作者
分享本楼
yadilo雅帝乐
来自 江苏省
精华 0
注册 2018-12-12
行业 其它
不错
2019-4-25 14:26
19楼
0511家装频道:本地家居服务平台,数万业主共同选择
只看该作者
分享本楼
中冠建筑客服
来自 江苏省
精华
5
注册 2019-3-30
行业 基础设施
lz常来更新啊
2019-4-25 15:23
20楼
买房、卖房、租房上镇江房产网!
只看该作者
分享本楼
皇派门窗
来自 江苏省
精华 0
注册 2016-10-11
行业 房产建筑
---发自iPhone 7 Plus---
2019-4-25 15:24
21楼
0511家装频道:本地家居服务平台,数万业主共同选择
只看该作者
分享本楼
镇江欧意橱柜
来自 江苏省
精华 0
注册 2016-11-7
2019-4-27 13:37
22楼
[联宇电脑] 电脑组装\维修\升级\企业单位电脑维护!
只看该作者
分享本楼
返回家庭装修
快速回复主题
游客
您目前还是游客,请
登录
或
注册
您目前是游客,本帖已被系统设置了自动关闭,不可回复!
文明交流,理性发言
0/5000字
<
>
请在打开的新窗口中支付完成打赏
我已完成支付打赏
支付失败重新支付
其他金额
打赏金额:
元
确定
支付打赏
提 现
打赏人
打赏金额(元)
打赏时间
Powered by
Discuz! X 2
0.076618 s
清除 Cookies
-
镇江网友之家
-
手机版
论坛导航
关闭
吃喝玩乐
饮食男女
镇江钓友之家
菜菜鸟户外
镇江单车俱乐部
镜头里的镇江
畅游天下
猫狗总动员
视觉Coffeeshop摄影部落
花鸟鱼虫
婚姻.亲子.家庭
家有学子
谈婚论嫁
女性天地
母婴乐园
婚姻生活
梦溪佳缘
装修
家庭装修
装修招标
镇江室内设计师交流
装修商家直通车
你好,镇江!
百姓话题
我要买房
0511爱心家园
市场监管•12315热线
分类信息
生活服务
闲置转让
镇江二手房/镇江租房
镇江招聘求职
教育培训
镇江二手车
商铺厂房写字楼租售
宠物市场
运动健身
卡券交易
电脑维修升级
杂货铺
其他分类信息区
兴趣爱好
HiFi音响江城沙龙
镇江市美术家协会
我爱模型
车友俱乐部
车迷之家
汽车驾培中心
运动俱乐部
镇江市冬泳、铁人三项协会
聚焦足球
镇江羽毛球
镇江乒乓球协会
镇江网球协会
镇江市自行车运动协会
热爱篮球
动力机车
合作栏目
维权热线
天翼时代
色觉影像摄影工作室
站务区
疑问与建议
网络问政
市政府工作部门
垂直管理部门
党群工作部门
其他重点单位
辖市(区)