| 标题
快捷导航

精彩推荐:MY0511客户端下载

    • 中信银行镇江分行

    • 公益体彩 乐善人生

    • 鹏龙鸿蒙

    • 天然石材·人造石

    » 梦溪论坛 » 家庭装修 » 《缘来是你》---------亚东紫檀现代轻奢实景案例
    家庭装修  >  [完工毕业照] 《缘来是你》---------亚东紫檀现代轻奢实景案例     
    查看: 28206  回复: 29
    [完工毕业照] 《缘来是你》---------亚东紫檀现代轻奢实景案例      查看: 28206  回复: 29
    • 来自 江苏省
    • 精华 6
    • 注册 2013-5-21
    • 行业 IT 通信
    •  
    《缘来是你》---------亚东紫檀现代轻奢实景案例

    项目概况

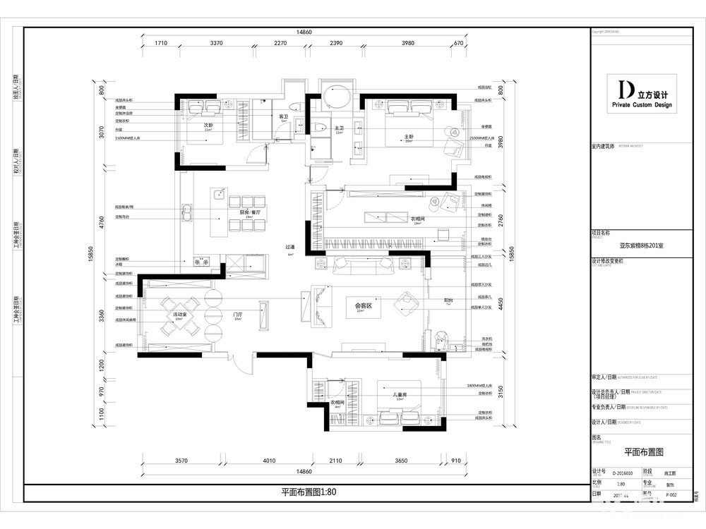
    【工程地址】:江苏镇江亚东紫檀

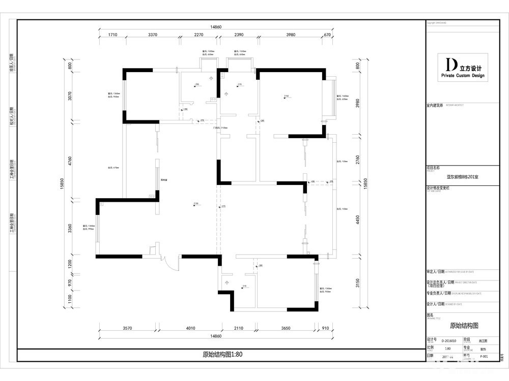
    【户型结构】:四室两厅一厨三卫

    【设计风格】:现代轻奢

    【测量面积】:206平米

    【全案设计】: D立方设计

    【项目造价】:80万

    【主要材料】:仿大理石砖不锈钢、定制木饰面、硬包、壁纸、实木多层地板等









                      
    • 来自 江苏省
    • 精华 6
    • 注册 2013-5-21
    • 行业 IT 通信
    •  

    设计说明:

    跟我走吧
    忐忑给你
    情书给你
    不眠的夜给你
    快来的春天的清晨给你
    雪糕的第一口给你
    海底捞最后一颗鱼丸给你
    手给你
    怀抱给你
    钥匙给你
    家给你
    一腔孤勇和余生 全都给你





    [ 本帖最后由 my0511菲雪 于 2019-4-15 10:47 编辑 ]




    • 来自 江苏省
    • 精华 6
    • 注册 2013-5-21
    • 行业 IT 通信
    •  

    本案的业主是一对即将步入婚姻的小夫妻  第一次沟通的时候 男主人虽然表现出了认可的态度  可还是表示要带未婚妻来看看   第二次上门 我们看到了女主人  一位漂亮时尚的现代女性  她希望家可以让她尽享优雅,让生活时刻哼着灵魂的蓝调。









    设计师第一次看到这个房子的时候 觉得这个空间整体非常通透 但是进门没有玄关 餐厅对着大门 私密性相对不强 并且餐厅空间比较局促  沟通后业主表示对厨房的使用率并不高,于是将餐厅边的北阳台扩进室内 改为厨房的使用空间 这样让阳光可以完全撒进室内,让空间尺度更加舒怡。











    卧室整体空间为浅色系,线条简洁硬朗。奠定了空间低调的质感、优雅的基调。设计师软将软包和金属线条巧妙的结合,使墙面的层次更佳丰富。配以水晶灯尽显奢华,赋予空间生动轻灵的魅力。



    在做方案的时候 女业主就表示过她有很多的衣服 包包和首饰 于是设计师干脆将餐厅对门的卧室改成了一个衣帽间  将进门的位置改到了主卧室里 又借用了部分的阳台空间做了个化妆间兼阅读区 日照的光线渗透,与室内交织成了温煦且富有艺术感的调性。

    家具是三月分的时候去广州家博会上挑的 品质好价格也便宜 挑选家具的时候男主人说的最多的话就是 “你喜欢吗?”“你觉得怎么样?”“听我老婆的 她说行就行。” 有些如果男主人不喜欢 女主人说好 那就定了 如果女主人纠结 男主人就会说 “慢慢挑不急 我们再看看。”以至于广州两天几乎逛遍了所有展厅  家具看到吐  好不容易把家具确定好了 小两口直接飞香港shopping  而设计师带则带着满肚子的狗粮回家调整方案。



    对于许多步入婚姻的年轻人来说家是爱情延续  是梦想的绽放的花蕾。但是她又不仅仅需要爱,更需要用心的付出和努力的维护。设计师拒绝对奢华生活的一味的膨胀追求,更希望让繁碎的生活呈现出艺术感,塑造出精致、浪漫、优雅的生活状态。


    END

    [ 本帖最后由 my0511菲雪 于 2019-4-15 10:28 编辑 ]




    • 来自 江苏省
    • 精华 6
    • 注册 2013-5-21
    • 行业 IT 通信
    •  



    如果您喜欢我们的作品

    请联系我们


    地址:润州区黄鹤山路景天花园28栋1920

    电话:13921569222

    微信:13921569222(微信号同手机号)

    QQ:120012788


    更多D立方设计案例请点击:

    https://bbs.my0511.com/forumdisplay.php?fid=1273



    [ 本帖最后由 my0511菲雪 于 2019-4-15 10:38 编辑 ]




    • 来自 江苏省
    • 精华 79
    • 注册 2017-11-21
    •  






    • 来自 江苏省
    • 精华 0
    • 注册 2018-11-15
    •  
    • 来自 江苏省
    • 精华 20
    • 注册 2019-4-8
    •  






    • 来自 江苏省
    • 精华 100
    • 注册 2017-7-19
    • 行业 房产建筑
    •  






    • 来自 江苏省
    • 精华 0
    • 注册 2018-12-12
    • 行业 其它
    •  
    • 来自 江苏省
    • 精华 1
    • 注册 2009-6-19
    • 行业 其它
    •  
    • 来自 江苏省
    • 精华 0
    • 注册 2018-5-31
    •  

    漂亮




    • 来自 江苏省
    • 精华 1
    • 注册 2012-1-7
    • 行业 广告媒体
    •  
    • 来自 江苏省
    • 精华 0
    • 注册 2017-12-1
    •  
    • 来自 香港
    • 精华 0
    • 注册 2008-10-14
    • 行业 学生
    •  

    紫檀神户型,确定有三卫?




    • 来自 江苏省
    • 精华 0
    • 注册 2012-2-24
    • 行业 医疗卫生
    •  

    2楼的吗?,北阳台改成了厨房




    • 来自 江苏省
    • 精华 0
    • 注册 2012-8-29
    • 行业 其它
    •  

    请问,厨房该位置,烟道怎么处理的呢,原烟道直接封掉了吗




    • 来自 江苏省
    • 精华 20
    • 注册 2019-4-8
    •  


    QUOTE:
    原帖由 长不大的男人 于 2019-4-16 13:43 发表
    紫檀神户型,确定有三卫?
    原始户型是3卫的,改成了衣帽间




    • 来自 江苏省
    • 精华 20
    • 注册 2019-4-8
    •  


    QUOTE:
    原帖由 zhweiwang 于 2019-4-16 14:25 发表
    2楼的吗?,北阳台改成了厨房
    是的,北阳台比较狭长,做的开放式厨房,这样多一个房间出来,空间可以更合理利用哦




    • 来自 江苏省
    • 精华 20
    • 注册 2019-4-8
    •  


    QUOTE:
    原帖由 popiyaya 于 2019-4-16 16:24 发表
    请问,厨房该位置,烟道怎么处理的呢,原烟道直接封掉了吗
    烟道直接包在柜子里的




    • 来自 江苏省
    • 精华 1
    • 注册 2012-1-7
    • 行业 广告媒体
    •  


    QUOTE:
    原帖由 popiyaya 于 2019-4-16 16:24 发表
    请问,厨房该位置,烟道怎么处理的呢,原烟道直接封掉了吗
    书桌边上有组大储物柜!都藏在里面了!




    • 来自 江苏省
    • 精华 0
    • 注册 2012-2-24
    • 行业 医疗卫生
    •  

    2楼需要烟道吗?直接敲掉就行!




    • 来自 江苏省
    • 精华 5
    • 注册 2019-3-30
    • 行业 基础设施
    •  

    厉害了 真心厉害了




    • 来自 江苏省
    • 精华 1
    • 注册 2012-1-7
    • 行业 广告媒体
    •  


    QUOTE:
    原帖由 zhweiwang 于 2019-4-17 16:19 发表
    2楼需要烟道吗?直接敲掉就行!
    可以敲,但是物业不让往外排,所以我们还是走的烟道




    • 来自 江苏省
    • 精华 1
    • 注册 2009-6-19
    • 行业 其它
    •  
    • 来自 江苏省
    • 精华 0
    • 注册 2008-1-20
    • 行业 广告媒体
    •  

    真棒




    • 来自 江苏省
    • 精华 1
    • 注册 2009-6-19
    • 行业 其它
    •  
    • 来自 江苏省
    • 精华 1
    • 注册 2012-1-7
    • 行业 广告媒体
    •  
    • 来自 江苏省
    • 精华 0
    • 注册 2008-9-1
    • 行业 商业贸易
    •  






    • 来自 江苏省
    • 精华 0
    • 注册 2013-12-19
    •  






    • 来自 江苏省
    • 精华 2
    • 注册 2018-12-4
    •  






    查看积分策略说明快速回复主题
    您目前还是游客,请 登录注册
    您目前是游客,本帖已被系统设置了自动关闭,不可回复!

    0/5000字

     
    < >
     

    Powered by Discuz! X 2 0.036842 s 清除 Cookies - 镇江网友之家 - 手机版
    论坛导航 关闭