本案业主是小夫妻俩,刚结过婚,还没有宝宝,她家是通过我们的老客户介绍推荐而来。
主业妈妈在南京工作,某单位高管(时尚、漂亮、有气质),当时找到我们时,一见如故的感觉。
刚开始她们家不明确喜欢什么风格,我们带她们一家去看了我们竣工的实景现场(后现代风格),我们觉得适合她们家。
看后一家人特别喜欢,基本就定位这种感觉的,她们尤其喜欢这家的主卧室的墙面装饰的色彩和地板纹案,她们要求要一模一样的,
具体出来什么效果,请看下图,可以对比一下两家用同样的墙面装饰和同样的地板纹案做出来之后有什么差别。
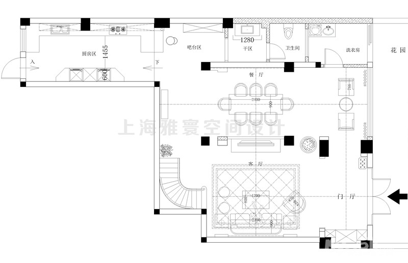
下面发图给大家欣赏一下
本案设计师:袁 欣(设计总监)

[ 本帖最后由 my0511唐老鸭 于 2019-5-16 14:17 编辑 ]






















