| 标题
快捷导航

精彩推荐:MY0511客户端下载

    • 中信银行镇江分行

    • 公益体彩 乐善人生

    • 鹏龙鸿蒙

    • 天然石材·人造石

    » 梦溪论坛 » 家庭装修 » 时光静好——美的城完工实景
    家庭装修  >  [完工毕业照] 时光静好——美的城完工实景     
    查看: 19640  回复: 15
    [完工毕业照] 时光静好——美的城完工实景      查看: 19640  回复: 15
    • 来自 江苏省
    • 精华 3
    • 注册 2013-8-6
    • 行业 IT 通信
    •  
    时光静好——美的城完工实景

    细水流年,与君同;


    繁华落尽,与君老;


    时光静好,与君语;


    家,是人人向往的温馨港湾,愿时光能够走得慢一些,与家人的美好能够长存。



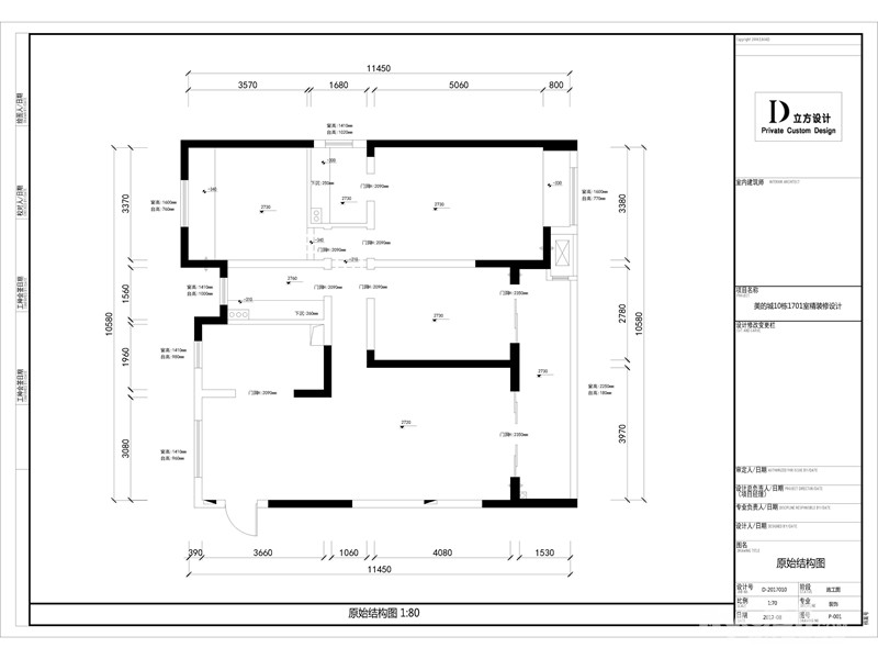
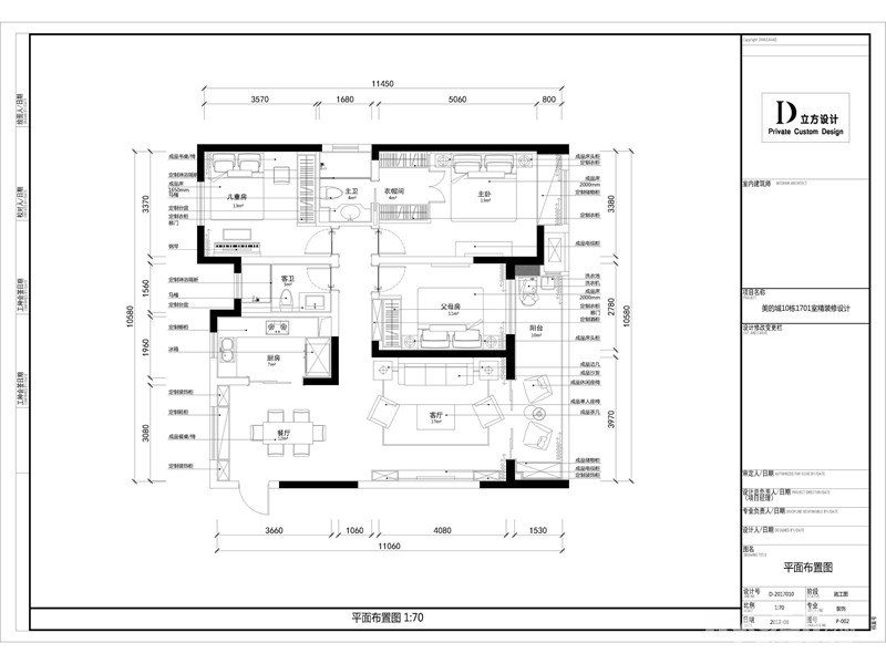
    平面图




    [ 本帖最后由 my0511唐老鸭 于 2019-5-20 14:15 编辑 ]





                      
    • 来自 江苏省
    • 精华 3
    • 注册 2013-8-6
    • 行业 IT 通信
    •  

    客厅以米色为基调铺展而开,缔造出温柔舒适的格局。

    原木气息与橙色绒布质感在空间中互相碰撞,融洽而和谐,从容呈现着现代风格热情的一面。





    精致的细节中透露出悦动着的色调,以橙色棕色点缀客厅的装饰色系,令空间层次更为丰富。




    柔和的色调,卓尔不群,结合爱马仕橙展现出耀眼风华,

    于清透优雅中汇聚着内敛谦和的温润质感,

    仿如一位闲庭信步的绅士,穿梭于温馨与时尚之间,透露出奢雅的气质美感。





    [ 本帖最后由 my0511唐老鸭 于 2019-5-20 14:14 编辑 ]




    • 来自 江苏省
    • 精华 3
    • 注册 2013-8-6
    • 行业 IT 通信
    •  

    笨重,不再是木制家具的代名词。

    餐桌、餐椅流畅的线条和优雅的曲度呈现出一种轻盈之感。







    [ 本帖最后由 my0511唐老鸭 于 2019-5-20 14:14 编辑 ]




    • 来自 江苏省
    • 精华 3
    • 注册 2013-8-6
    • 行业 IT 通信
    •  

    【About Us】


    如果您喜欢我们的作品

    请联系我们


    地址:润州区黄鹤山路景天花园28栋1920

    电话:13921569222

    微信:13921569222(微信号同手机号)

    QQ:120012788


    更多D立方设计案例请点击:

    http://bbs.my0511.com/f1273b



    [ 本帖最后由 my0511唐老鸭 于 2019-5-20 14:17 编辑 ]




    • 来自 江苏省
    • 精华 0
    • 注册 2019-3-20
    •  

    *** 作者因违反论坛规定,禁言处理,内容自动屏蔽 ***

    详情参阅论坛注册条款:
    http://bbs.my0511.com/f11b-t2789156z


    • 来自 江苏省
    • 精华 1
    • 注册 2009-6-19
    • 行业 其它
    •  
    • 来自 江苏省
    • 精华 1
    • 注册 2012-1-7
    • 行业 广告媒体
    •  
    • 来自 江苏省
    • 精华 100
    • 注册 2017-7-19
    • 行业 房产建筑
    •  






    • 来自 北京
    • 精华 0
    • 注册 2011-7-22
    • 行业 工业制造
    •  

    阳台拉进客厅很大气,
    但晾晒衣服咋办?南面双阳台?




    • 来自 江苏省
    • 精华 20
    • 注册 2019-4-8
    •  

    阳台是独立的,跟平面有点不一样




    • 来自 江苏省
    • 精华 5
    • 注册 2019-3-30
    • 行业 基础设施
    •  






    • 来自 上海
    • 精华 1
    • 注册 2012-1-7
    • 行业 广告媒体
    •  


    QUOTE:
    原帖由 流浪人在漂泊 于 2019-5-22 16:28 发表
    阳台拉进客厅很大气,
    但晾晒衣服咋办?南面双阳台?
    阳台没有拉进客厅,是休闲阳台,屋主阳台很大,晾衣服在内侧,所以客厅这边看不见!




    • 来自 上海
    • 精华 1
    • 注册 2012-1-7
    • 行业 广告媒体
    •  
    • 来自 江苏省
    • 精华 77
    • 注册 2011-4-20
    • 行业 房产建筑
    •  






    • 来自 江苏省
    • 精华 0
    • 注册 2019-5-17
    •  

    多大平的




    查看积分策略说明快速回复主题
    您目前还是游客,请 登录注册
    您目前是游客,本帖已被系统设置了自动关闭,不可回复!

    0/5000字

     
    < >
     

    Powered by Discuz! X 2 0.041525 s 清除 Cookies - 镇江网友之家 - 手机版
    论坛导航 关闭