| 标题
快捷导航

精彩推荐:MY0511客户端下载

    • 中信银行镇江分行

    • 公益体彩 乐善人生

    • 鹏龙鸿蒙

    • 天然石材·人造石

    » 梦溪论坛 » 家庭装修 » 无线AP颜值当道,让你告别丑丑的路由器!
    家庭装修  >  [经验分享] 无线AP颜值当道,让你告别丑丑的路由器!     
    查看: 15698  回复: 14
    [经验分享] 无线AP颜值当道,让你告别丑丑的路由器!      查看: 15698  回复: 14
    • 来自 江苏省
    • 精华 3
    • 注册 2013-8-6
    • 行业 IT 通信
    •  
    无线AP颜值当道,让你告别丑丑的路由器!

    如果要问当今人类最重要的发明是什么?小编闭着眼睛也能大声喊出来
    那必须是
    WiFi!
    WiFi!
    WiFi!


    下班回家逛某宝,刷某圈,打游戏,看八卦……流量很贵,可是我有WiFi~
    然而想象总是美好的,现实却是:
    从客厅转移到卫生间,WiFi卡了,走进房间躺在床上换个姿势刷手机,网络断了……


    WiFi就是生命的年代,你家的大房子仅靠单独一个路由器是不够的,该试试无线AP了




    [ 本帖最后由 my0511唐老鸭 于 2019-5-23 15:39 编辑 ]





                      
    • 来自 江苏省
    • 精华 3
    • 注册 2013-8-6
    • 行业 IT 通信
    •  

    AP+AC是最近几年大家升级网络的常用配置,非常适合80平以上的平层、复式和多层别墅。
    大家可以这样想,把WiFi路由器拆了,天线就是AP,机壳部分就是AC。
    AC(Access Point Control)就是无线控制器,用来集中管理无线AP,可以管理网络中所有的无线AP。
    AP(Access Point)不能独立工作,得配合AC使用,负责把有线网络转换成无线网络发散出去。

    无线路由器其实就是无线AP+路由功能,现在很多的无线路由器都拥有AP功能。



    如果你家是ADSL或小区宽带,应该选择无线路由而不是无线AP来共享网络,
    如果你家有路由器了,买个无线AP就行了,对于一般的家庭用户选择无线路由器就够了。

    AP的一个重要的功能就是中继。


    例如在a点放置一个AP,而在c点有一个客户端,之间有120米的距离,
    从a点到c点信号已经削弱很多,于是我在中途60米处的b点放一个AP做为中继,
    这样c点的客户端的信号就可以有效的增强,保证了传输速度和稳定性。


    [ 本帖最后由 my0511唐老鸭 于 2019-5-21 15:27 编辑 ]




    • 来自 江苏省
    • 精华 3
    • 注册 2013-8-6
    • 行业 IT 通信
    •  

    家庭用AP的主要有两种
    面板AP:入墙设计,安装简单,外观时尚。

    (图源:好好住@洗翻)


    吸顶式AP:覆盖范围大,性能更强,接入设备更多。
    通过POE供电方式,一根网线同时提供信号和电源,施工更为简单。

    (图源:好好住@Yolanba)

    大家对网络质量要求也越来越高的同时,颜值也必须不能少的哈~
    不少商家也推出了不同风格的AP,方便消费者进行搭配

    金色系更加适合欧式风格(图源:好好住@ZrainHeureux)


    白色系与清新简约更搭(图源:好好住@不吃番茄哈哈哈)

    [ 本帖最后由 my0511唐老鸭 于 2019-5-21 15:27 编辑 ]




    • 来自 江苏省
    • 精华 3
    • 注册 2013-8-6
    • 行业 IT 通信
    •  

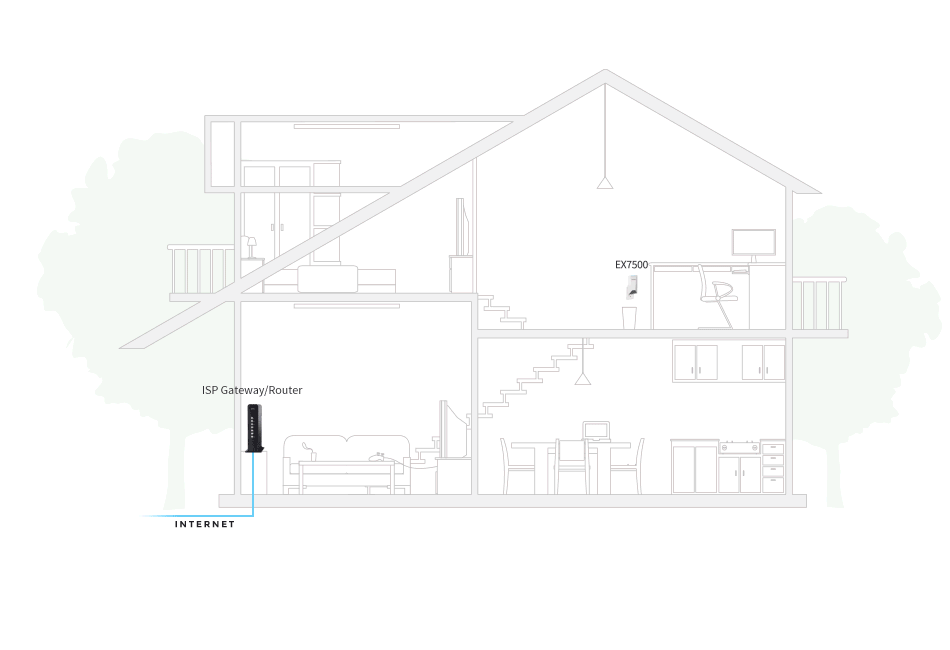
    常规的无线AP覆盖主要是针对一些不大的地方进行网络覆盖,这里面用到了一个AC路由器,使AP与宽带的发挥到最好的效果。

    AC+AP组网方案是一种瘦AP方案,AP无需做相关的配置。

    仅仅作为一个无线wifi的接入点,通过AC管理控制器对所有的AP进行管理,
    适用于大范围的无线组网,最开始用于商业领域,现在慢慢的走进了家庭。



    AC+AP面板的组网方案和网络布线图


    路由器组网方案是一种胖AP方案,需要单独对每个无线路由器做相关的配置,比如SSID、密码、访问控制等。

    AC+AP的网络布线
    将poe/ac路由器和光猫放置在弱电箱
    电视背景墙的布线,至少需要3条网线,分别用于IPTV、智能电视或者网络盒子、客厅AP面板
    每个房间均要从弱电箱拉一条网线,用于连接AP面板
    网线使用六类网线,保证POE供电和千兆网速


    使用AC+AP组建家庭局域网的方式,可以家庭wifi无死角覆盖,并且美观连接,成本相比路由器组网稍高。

    [ 本帖最后由 my0511唐老鸭 于 2019-5-23 14:31 编辑 ]




    • 来自 江苏省
    • 精华 3
    • 注册 2013-8-6
    • 行业 IT 通信
    •  

    想要采用吸顶AP的网络布局,布置水电的时候就应该提前考虑到是无线AP模式,
    在预埋线路时需要在使用wifi的每个地方都预埋网线,比如客厅以及每间卧室。

    如果有空间过大,或者2个空间有打通以及无法在墙面安装面板等特殊情况下,可以将网线往天花板上预埋(前提是空间有吊顶,使用吸顶AP隐藏到吊顶里)。

    另外在水电改造时需要特别注意一点——如果弱电箱较小,需要将弱电箱扩大。
    无线AP模式需要放置路由器和交换机在弱电箱里,如果弱电箱太小会比较麻烦。

    同宽带一样,网线也分百兆网线和光纤网线。现在因为技术的发展五类线以下的网线已经被淘汰掉了,很难见到。
    一般有五类、超五类、六类、超六类等选择。

    如果确定用百兆宽带,那么网线选择五类即可;如果确定用光纤宽带,用超五类、六类即可。
    建议最好用品牌网线,或者询问专业人士。

    不管是路由器还是无线AP也好,网口和插座一样是多多益善。
    如果打算使用千兆宽带,家中现有设备需全部更换成支持千兆的网络设备,包括网线也要更换为6类或以上。

    [ 本帖最后由 my0511唐老鸭 于 2019-5-23 15:39 编辑 ]




    • 来自 江苏省
    • 精华 24
    • 注册 2006-7-1
    • 行业 其它
    •  

    讲的一点都没错,现实中我们安装也确实发现部分客户放的网线略微差了点,弱电箱子小了点,建议换大点的箱子OR 别墅用机柜或者打个柜子给我们弱电设备摆放,以后维修啥的也方便




    • 来自 江苏省
    • 精华 0
    • 注册 2018-11-11
    •  

    讲的不错。

    [ 本帖最后由 my0511唐老鸭 于 2019-5-24 13:04 编辑 ]




    • 来自 江苏省
    • 精华 2
    • 注册 2011-2-14
    • 行业 教育科研
    • 家装达人
    •  

    超五,短距离,估计能跑500兆,我的200兆满速




    • 来自 江苏省
    • 精华 0
    • 注册 2019-5-24
    •  
    • 来自 江苏省
    • 精华 0
    • 注册 2007-7-6
    • 行业 学生
    •  

    说半天也没说怎么设置。
    我家原来是用的一个无线路由器当AP用,折腾了半天才设置好。后来重置了路由器,就再也弄不起来了。
    最后换了个大蜘蛛无线路由器,信号变强了,凑合用。




    • 来自 江苏省
    • 精华 0
    • 注册 2011-9-29
    • 行业 其它
    •  

    这个有专门人做这个嘛




    • 来自 江苏省
    • 精华 1
    • 注册 2005-7-14
    • 行业 其它
    •  

    自己学一学就会搞,我还是学文科的。




    • 来自 江苏省
    • 精华 0
    • 注册 2019-3-28
    •  

    147平方的房子,感觉就书房一个路由器足够了




    • 来自 江苏省
    • 精华 0
    • 注册 2013-8-13
    •  

    这里有的。需要安装的话可以联系我。经常做的,这套很稳定的。




    • 来自 江苏省
    • 精华 2
    • 注册 2006-4-22
    •  

    晚了,16年装修的时候每个房间只放了单线,好麻烦




    查看积分策略说明快速回复主题
    您目前还是游客,请 登录注册
    您目前是游客,本帖已被系统设置了自动关闭,不可回复!

    0/5000字

     
    < >
     

    Powered by Discuz! X 2 0.074558 s 清除 Cookies - 镇江网友之家 - 手机版
    论坛导航 关闭