收藏本站
客户端
扫码下载客户端
官方微信
打开微信扫一扫
登录
|
注册
|
标题
标题
用户
全站首页
|
论坛导航
|
网络问政
|
招聘求职
|
买房租房
|
装修频道
|
生活服务
|
教育
|
相亲
|
亲子
|
美食
|
婚嫁
|
手机客户端
家有学子
|
母婴乐园
快捷导航
精彩推荐:
MY0511客户端下载
中信银行镇江分行
公益体彩 乐善人生
鹏龙鸿蒙
天然石材·人造石
»
梦溪论坛
»
家庭装修
» 给自己一个完美的家从前程开始!
家庭装修
>
[装修日记]
给自己一个完美的家从前程开始!
查看: 17058 回复: 56
快速回复
返回家庭装修
57
1/2
1
2
>
[装修日记]
给自己一个完美的家从前程开始!
查看: 17058 回复: 56
上一主题
|
下一主题
mirror123
来自 江苏省
精华 0
注册 2019-6-6
给自己一个完美的家从前程开始!
第一次开贴,希望大家多多关注,开工照片镇楼。。。
【小区名称】:中南世纪城3区
【所在楼层】:3楼
【建筑面积】:施工面积86平
【装修风格】:现代简约
【包工方式】:半包
【装修公司】:前程装饰
【设计师】:张鑫
【开工日期】:2019年06月06日
【装修预算】:15万
[attach]25508704[/attach][attach]25508705[/attach]
已有 卡洛尼曼
1
人打赏
2019-6-6 14:27
1楼
MY0511相亲,一分钟注册,享一辈子幸福!
只看该作者
分享本楼
mirror123
来自 江苏省
精华 0
注册 2019-6-6
---发自梦溪论坛手机客户端---
2019-6-6 14:32
2楼
买房、卖房、租房上镇江房产网!
只看该作者
分享本楼
mirror123
来自 江苏省
精华 0
注册 2019-6-6
---发自梦溪论坛手机客户端---
2019-6-6 14:34
3楼
找工作,就上MY0511!
只看该作者
分享本楼
mirror123
来自 江苏省
精华 0
注册 2019-6-6
正逢高三学子们高考,今天先做个开工仪式,接下来三天高考,祝他们金榜题名,加油!!!
10号开始敲墙啦。。。期待接下来三个月的完美收官
大家多多支持呀
---发自梦溪论坛手机客户端---
2019-6-6 14:37
4楼
0511家装频道:本地家居服务平台,数万业主共同选择
只看该作者
分享本楼
mirror123
来自 江苏省
精华 0
注册 2019-6-6
---发自梦溪论坛手机客户端---
2019-6-6 14:38
5楼
0511家装频道:本地家居服务平台,数万业主共同选择
只看该作者
分享本楼
以书
该用户已被删除
*** 作者因违反论坛规定,禁言处理,内容自动屏蔽 ***
详情参阅论坛注册条款:
http://bbs.my0511.com/f11b-t2789156z
2019-6-6 15:24
6楼
0511家装频道:本地家居服务平台,数万业主共同选择
卡诺亚定制家居
来自 江苏省
精华 0
注册 2018-9-5
行业 房产建筑
恭喜楼主,
2019-6-6 16:13
7楼
0511家装频道:本地家居服务平台,数万业主共同选择
只看该作者
分享本楼
happy小酒窝
来自 江苏省
精华
5
注册 2008-4-9
行业 教育科研
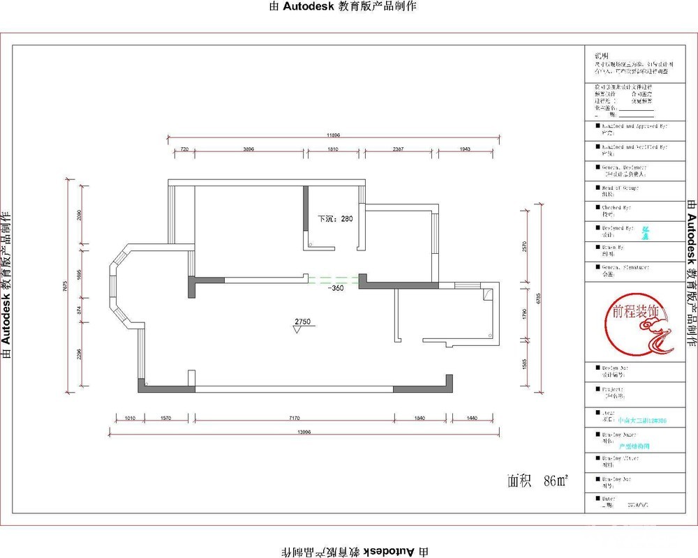
户型图要上一个
---发自梦溪论坛手机客户端---
2019-6-6 16:20
8楼
[联宇电脑] 电脑组装\维修\升级\企业单位电脑维护!
只看该作者
分享本楼
tot
来自 江苏省
精华 0
注册 2010-6-15
行业 房产建筑
恭喜开贴
---发自iPhone 6S---
2019-6-6 16:30
9楼
买房、卖房、租房上镇江房产网!
只看该作者
分享本楼
关亨木门
来自 江苏省
精华 0
注册 2010-5-8
行业 其它
恭喜开贴,前程也是我老关系户,
2019-6-6 16:39
10楼
0511家装频道:本地家居服务平台,数万业主共同选择
只看该作者
分享本楼
mirror123
来自 江苏省
精华 0
注册 2019-6-6
感谢大家的关注
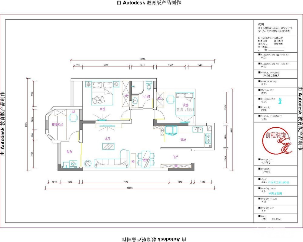
刚才设计师把户型图传给我了,很用心的一个小伙子,做了几个方案,最终选个一个最适合我的
上图
---发自梦溪论坛手机客户端---
2019-6-6 16:52
11楼
[联宇电脑] 电脑组装\维修\升级\企业单位电脑维护!
只看该作者
分享本楼
mirror123
来自 江苏省
精华 0
注册 2019-6-6
我们是三口之家,本来两个房间,我想要多一个房间,偶尔有老人或者亲戚朋友会小住一下,所以在阳台多隔个房间,生活阳台就变得小多了。。。
---发自梦溪论坛手机客户端---
2019-6-6 16:54
12楼
MY0511相亲,一分钟注册,享一辈子幸福!
只看该作者
分享本楼
mirror123
来自 江苏省
精华 0
注册 2019-6-6
QUOTE:
原帖由
以书
于 2019-6-6 15:24 发表
哈哈哈加油,等我拿到房子,我也发
提前恭喜你啊
---发自梦溪论坛手机客户端---
2019-6-6 16:57
13楼
0511家装频道:本地家居服务平台,数万业主共同选择
只看该作者
分享本楼
流浪人在漂泊
来自 江苏省
精华 0
注册 2011-7-22
行业 工业制造
恭喜恭喜
---发自梦溪论坛手机客户端---
2019-6-6 18:28
14楼
0511家装频道:本地家居服务平台,数万业主共同选择
只看该作者
分享本楼
镇江凡东尼美缝
来自 江苏省
精华 0
注册 2018-7-4
行业 房产建筑
2019-6-6 19:13
15楼
买房、卖房、租房上镇江房产网!
只看该作者
分享本楼
yadilo雅帝乐
来自 江苏省
精华 0
注册 2018-12-12
行业 其它
恭喜恭喜啦
---发自iPhone 7 Plus---
2019-6-6 20:58
16楼
0511家装频道:本地家居服务平台,数万业主共同选择
只看该作者
分享本楼
亿施乐环氧美缝
来自 江苏省
精华 0
注册 2016-6-7
2019-6-6 21:13
17楼
MY0511相亲,一分钟注册,享一辈子幸福!
只看该作者
分享本楼
北京高端美缝
来自 江苏省
精华 0
注册 2018-9-5
恭喜恭喜
---发自iPhone 6---
2019-6-6 21:27
18楼
[联宇电脑] 电脑组装\维修\升级\企业单位电脑维护!
只看该作者
分享本楼
前程设计中心
专版版主
来自 江苏省
精华
9
注册 2010-3-23
行业 房产建筑
感谢业主选择我们,祝开工大吉,同时也祝大家端午节快乐!
2019-6-7 09:41
19楼
0511家装频道:本地家居服务平台,数万业主共同选择
只看该作者
分享本楼
流浪人在漂泊
来自 江苏省
精华 0
注册 2011-7-22
行业 工业制造
今天的质量 明天的市场
---发自梦溪论坛手机客户端---
2019-6-7 09:56
20楼
买房、卖房、租房上镇江房产网!
只看该作者
分享本楼
佰丽爱家
来自 江苏省
精华 0
注册 2019-4-8
行业 其它
恭喜开工大吉
---发自iPhone 6---
2019-6-7 11:22
21楼
找工作,就上MY0511!
只看该作者
分享本楼
大唐合盛瓷砖
来自 江苏省
精华 0
注册 2014-8-14
行业 商业贸易
恭喜开工
2019-6-7 11:24
22楼
MY0511相亲,一分钟注册,享一辈子幸福!
只看该作者
分享本楼
镇江欧意橱柜
来自 江苏省
精华 0
注册 2016-11-7
恭喜楼主开工!!
2019-6-7 13:59
23楼
[联宇电脑] 电脑组装\维修\升级\企业单位电脑维护!
只看该作者
分享本楼
leoxin123
来自 江苏省
精华 0
注册 2013-10-13
恭喜开贴
2019-6-7 14:01
24楼
0511家装频道:本地家居服务平台,数万业主共同选择
只看该作者
分享本楼
亿施乐环氧美缝
来自 江苏省
精华 0
注册 2016-6-7
楼主你好啊 我也是中南的 和你家户型一样
2019-6-8 20:11
25楼
MY0511相亲,一分钟注册,享一辈子幸福!
只看该作者
分享本楼
mirror123
来自 江苏省
精华 0
注册 2019-6-6
QUOTE:
原帖由
亿施乐环氧美缝
于 2019-6-8 20:11 发表
楼主你好啊 我也是中南的 和你家户型一样
你好
你家多少栋的?以后有空来玩
---发自iPhone 6---
2019-6-8 20:20
26楼
买房、卖房、租房上镇江房产网!
只看该作者
分享本楼
BBL贝尔地板
来自 江苏省
精华 0
注册 2017-3-31
给楼主爬个楼,添添人气
---发自iPhone 8 Plus---
2019-6-8 21:40
27楼
[联宇电脑] 电脑组装\维修\升级\企业单位电脑维护!
只看该作者
分享本楼
经阁
来自 江苏省
精华 0
注册 2016-4-22
恭喜恭喜
---发自梦溪论坛手机客户端---
2019-6-9 19:19
28楼
0511家装频道:本地家居服务平台,数万业主共同选择
只看该作者
分享本楼
亿施乐环氧美缝
来自 江苏省
精华 0
注册 2016-6-7
2019-6-9 22:22
29楼
找工作,就上MY0511!
只看该作者
分享本楼
中冠建筑客服
来自 江苏省
精华
5
注册 2019-3-30
行业 基础设施
恭喜开贴
2019-6-10 09:33
30楼
[联宇电脑] 电脑组装\维修\升级\企业单位电脑维护!
只看该作者
分享本楼
欧睿宇邦橱柜
来自 江苏省
精华 0
注册 2019-5-18
2019-6-10 15:54
31楼
买房、卖房、租房上镇江房产网!
只看该作者
分享本楼
莫干山衣柜
来自 江苏省
精华 0
注册 2012-8-13
行业 其它
恭喜恭喜
2019-6-10 16:02
32楼
MY0511相亲,一分钟注册,享一辈子幸福!
只看该作者
分享本楼
法诗顿移门
来自 江苏省
精华 0
注册 2017-7-1
开工大吉
2019-6-10 16:38
33楼
0511家装频道:本地家居服务平台,数万业主共同选择
只看该作者
分享本楼
卡洛尼曼
来自 江苏省
精华 0
注册 2018-5-3
行业 其它
给宝宝们顶贴来了,加油
2019-6-10 16:44
34楼
0511家装频道:本地家居服务平台,数万业主共同选择
只看该作者
分享本楼
yadilo雅帝乐
来自 江苏省
精华 0
注册 2018-12-12
行业 其它
---发自iPhone 7 Plus---
2019-6-10 21:22
35楼
找工作,就上MY0511!
只看该作者
分享本楼
我想有颗星星
来自 江苏省
精华
1
注册 2009-6-19
行业 其它
---发自梦溪论坛手机客户端---
2019-6-10 21:42
36楼
买房、卖房、租房上镇江房产网!
只看该作者
分享本楼
mirror123
来自 江苏省
精华 0
注册 2019-6-6
师傅们速度好快,现场直播
天气热了,师傅们一定要安全第一哦
---发自iPhone 6---
2019-6-11 10:19
37楼
MY0511相亲,一分钟注册,享一辈子幸福!
只看该作者
分享本楼
我想有颗星星
来自 江苏省
精华
1
注册 2009-6-19
行业 其它
恭喜开工
---发自梦溪论坛手机客户端---
2019-6-11 10:44
38楼
MY0511相亲,一分钟注册,享一辈子幸福!
只看该作者
分享本楼
镇江富得利
家装认证商户
来自 江苏省
精华 0
注册 2009-2-28
行业 房产建筑
恭喜开工
2019-6-11 11:13
39楼
找工作,就上MY0511!
只看该作者
分享本楼
爱斯特门窗公司
来自 江苏省
精华 0
注册 2018-4-7
2019-6-14 11:07
40楼
0511家装频道:本地家居服务平台,数万业主共同选择
只看该作者
分享本楼
卡洛尼曼
来自 上海
精华 0
注册 2018-5-3
行业 其它
顶帖来了加油
2019-6-14 12:08
41楼
[联宇电脑] 电脑组装\维修\升级\企业单位电脑维护!
只看该作者
分享本楼
mirror123
来自 江苏省
精华 0
注册 2019-6-6
好几天没写了,今天有空去工地看看,这个是咱家厨房,师傅砌墙手艺没得说
---发自iPhone 6---
2019-6-16 14:55
42楼
0511家装频道:本地家居服务平台,数万业主共同选择
只看该作者
分享本楼
mirror123
来自 江苏省
精华 0
注册 2019-6-6
小房间往外扩了五十公分,明显感觉大了不少,爽啊!
---发自iPhone 6---
2019-6-16 14:56
43楼
找工作,就上MY0511!
只看该作者
分享本楼
mirror123
来自 江苏省
精华 0
注册 2019-6-6
这是原来的阳台,本来好大,隔了一个榻榻米房,还真不错,设计师小张经验还是很足的,赞一个!
---发自iPhone 6---
2019-6-16 14:58
44楼
0511家装频道:本地家居服务平台,数万业主共同选择
只看该作者
分享本楼
yadilo雅帝乐
来自 江苏省
精华 0
注册 2018-12-12
行业 其它
---发自iPhone 7 Plus---
2019-6-16 15:41
45楼
找工作,就上MY0511!
只看该作者
分享本楼
前程设计中心
专版版主
来自 江苏省
精华
9
注册 2010-3-23
行业 房产建筑
感谢业主选择我们。
2019-6-19 08:34
46楼
MY0511相亲,一分钟注册,享一辈子幸福!
只看该作者
分享本楼
巴森系统一体窗
来自 江苏省
精华 0
注册 2017-4-20
恭喜恭喜
2019-6-19 10:39
47楼
[联宇电脑] 电脑组装\维修\升级\企业单位电脑维护!
只看该作者
分享本楼
mirror123
来自 江苏省
精华 0
注册 2019-6-6
槽已开结束,期待水电师傅的高超发挥
---发自iPhone 6---
2019-6-21 16:29
48楼
找工作,就上MY0511!
只看该作者
分享本楼
mirror123
来自 江苏省
精华 0
注册 2019-6-6
空调安装师傅今天先来打孔,这两天先把风管机装了。
---发自iPhone 6---
2019-6-21 16:30
49楼
找工作,就上MY0511!
只看该作者
分享本楼
坏头头
来自 江苏省
精华 0
注册 2012-8-15
行业 工业制造
加油加油
---发自梦溪论坛手机客户端---
2019-6-21 16:35
50楼
[联宇电脑] 电脑组装\维修\升级\企业单位电脑维护!
只看该作者
分享本楼
返回家庭装修
57
1/2
1
2
>
快速回复主题
游客
您目前还是游客,请
登录
或
注册
您目前是游客,本帖已被系统设置了自动关闭,不可回复!
文明交流,理性发言
0/5000字
<
>
请在打开的新窗口中支付完成打赏
我已完成支付打赏
支付失败重新支付
其他金额
打赏金额:
元
确定
支付打赏
提 现
打赏人
打赏金额(元)
打赏时间
卡洛尼曼
1.00
2019-6-10 16:43
Powered by
Discuz! X 2
0.096530 s
清除 Cookies
-
镇江网友之家
-
手机版
论坛导航
关闭
吃喝玩乐
饮食男女
镇江钓友之家
菜菜鸟户外
镇江单车俱乐部
镜头里的镇江
畅游天下
猫狗总动员
视觉Coffeeshop摄影部落
花鸟鱼虫
婚姻.亲子.家庭
家有学子
谈婚论嫁
女性天地
母婴乐园
婚姻生活
梦溪佳缘
装修
家庭装修
装修招标
镇江室内设计师交流
装修商家直通车
你好,镇江!
百姓话题
我要买房
0511爱心家园
市场监管•12315热线
分类信息
生活服务
闲置转让
镇江二手房/镇江租房
镇江招聘求职
教育培训
镇江二手车
商铺厂房写字楼租售
宠物市场
运动健身
卡券交易
电脑维修升级
杂货铺
其他分类信息区
兴趣爱好
HiFi音响江城沙龙
镇江市美术家协会
我爱模型
车友俱乐部
车迷之家
汽车驾培中心
运动俱乐部
镇江市冬泳、铁人三项协会
聚焦足球
镇江羽毛球
镇江乒乓球协会
镇江网球协会
镇江市自行车运动协会
热爱篮球
动力机车
合作栏目
维权热线
天翼时代
色觉影像摄影工作室
站务区
疑问与建议
网络问政
市政府工作部门
垂直管理部门
党群工作部门
其他重点单位
辖市(区)