收藏本站
客户端
扫码下载客户端
官方微信
打开微信扫一扫
登录
|
注册
|
标题
标题
用户
全站首页
|
论坛导航
|
网络问政
|
招聘求职
|
买房租房
|
装修频道
|
生活服务
|
教育
|
相亲
|
亲子
|
美食
|
婚嫁
|
手机客户端
家有学子
|
母婴乐园
快捷导航
精彩推荐:
MY0511客户端下载
中信银行镇江分行
公益体彩 乐善人生
鹏龙鸿蒙
天然石材·人造石
»
梦溪论坛
»
家庭装修
» 【2019乙品装饰】+米修兔的装修日记
家庭装修
>
[装修日记]
【2019乙品装饰】+米修兔的装修日记
查看: 13986 回复: 33
快速回复
返回家庭装修
[装修日记]
【2019乙品装饰】+米修兔的装修日记
查看: 13986 回复: 33
上一主题
|
下一主题
书叶
来自 江苏省
精华 0
注册 2017-1-31
【2019乙品装饰】+米修兔的装修日记
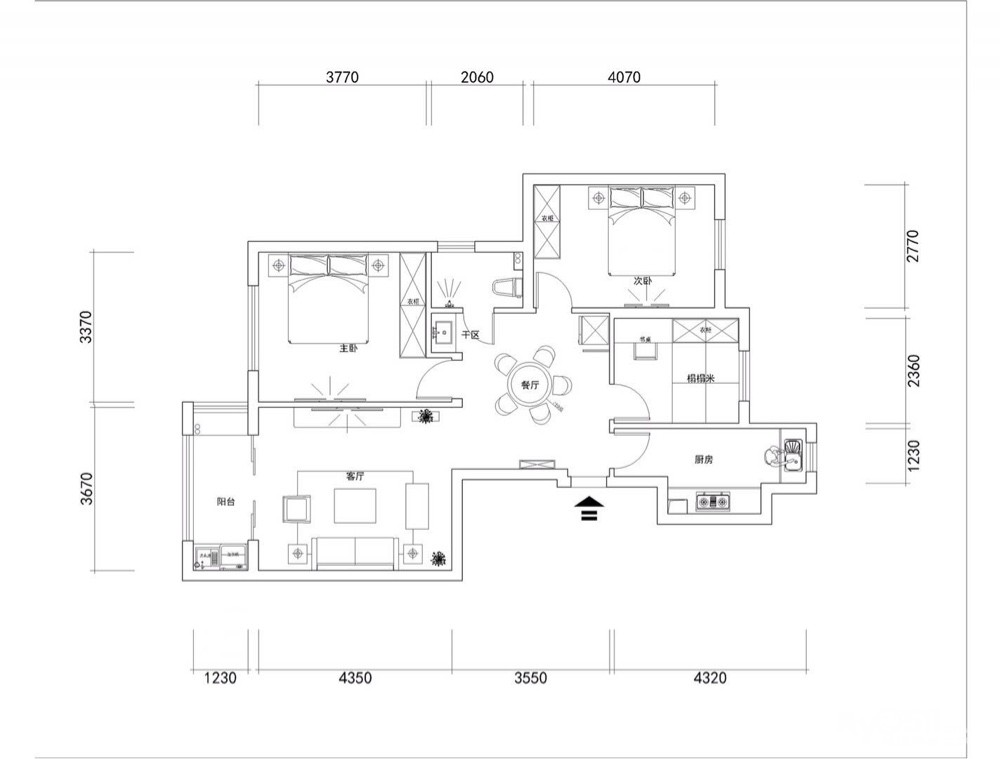
【小区名称】:景阳山庄
【所在楼层】:5楼
【建筑面积】:106.3
【装修风格】:温馨点就北欧吧
【包工方式】:半包
【装修公司】:红居装饰
【开工日期】:2019年5月18日
【装修预算】:越少越好(11W-12.5W)
【户型图片】:
---发自iPhone 8 Plus---
已有 卡洛尼曼
1
人打赏
2019-6-9 08:32
1楼
[联宇电脑] 电脑组装\维修\升级\企业单位电脑维护!
只看该作者
分享本楼
书叶
来自 江苏省
精华 0
注册 2017-1-31
占楼
---发自iPhone 8 Plus---
2019-6-9 08:32
2楼
[联宇电脑] 电脑组装\维修\升级\企业单位电脑维护!
只看该作者
分享本楼
书叶
来自 江苏省
精华 0
注册 2017-1-31
占楼
---发自iPhone 8 Plus---
2019-6-9 08:32
3楼
找工作,就上MY0511!
只看该作者
分享本楼
书叶
来自 江苏省
精华 0
注册 2017-1-31
占楼
---发自iPhone 8 Plus---
2019-6-9 08:33
4楼
买房、卖房、租房上镇江房产网!
只看该作者
分享本楼
书叶
来自 江苏省
精华 0
注册 2017-1-31
占楼
---发自iPhone 8 Plus---
2019-6-9 08:33
5楼
0511家装频道:本地家居服务平台,数万业主共同选择
只看该作者
分享本楼
书叶
来自 江苏省
精华 0
注册 2017-1-31
占楼
---发自iPhone 8 Plus---
2019-6-9 08:33
6楼
MY0511相亲,一分钟注册,享一辈子幸福!
只看该作者
分享本楼
hupeng0711
来自 江苏省
精华 0
注册 2007-8-29
行业 IT 通信
占楼
2019-6-9 09:12
7楼
0511家装频道:本地家居服务平台,数万业主共同选择
只看该作者
分享本楼
hupeng0711
来自 江苏省
精华 0
注册 2007-8-29
行业 IT 通信
消灭0回复
2019-6-9 09:12
8楼
[联宇电脑] 电脑组装\维修\升级\企业单位电脑维护!
只看该作者
分享本楼
我想有颗星星
来自 江苏省
精华
1
注册 2009-6-19
行业 其它
---发自梦溪论坛手机客户端---
2019-6-9 09:19
9楼
买房、卖房、租房上镇江房产网!
只看该作者
分享本楼
yadilo雅帝乐
来自 江苏省
精华 0
注册 2018-12-12
行业 其它
---发自iPhone 7 Plus---
2019-6-9 09:29
10楼
0511家装频道:本地家居服务平台,数万业主共同选择
只看该作者
分享本楼
佰丽爱家
来自 江苏省
精华 0
注册 2019-4-8
行业 其它
---发自iPhone 6---
2019-6-9 09:56
11楼
0511家装频道:本地家居服务平台,数万业主共同选择
只看该作者
分享本楼
无缝墙布
来自 江苏省
精华 0
注册 2018-4-19
欢迎新同学
---发自华为---
2019-6-9 11:44
12楼
买房、卖房、租房上镇江房产网!
只看该作者
分享本楼
卡洛尼曼
来自 江苏省
精华 0
注册 2018-5-3
行业 其它
支持新朋友开贴。
2019-6-9 12:07
13楼
[联宇电脑] 电脑组装\维修\升级\企业单位电脑维护!
只看该作者
分享本楼
镇江欧意橱柜
来自 江苏省
精华 0
注册 2016-11-7
恭喜楼主开贴!!!
2019-6-9 12:09
14楼
[联宇电脑] 电脑组装\维修\升级\企业单位电脑维护!
只看该作者
分享本楼
mabing123
来自 江苏省
精华 0
注册 2016-3-4
恭喜楼主开贴
2019-6-9 14:33
15楼
MY0511相亲,一分钟注册,享一辈子幸福!
只看该作者
分享本楼
我想有颗星星
来自 江苏省
精华
1
注册 2009-6-19
行业 其它
恭喜开帖
---发自梦溪论坛手机客户端---
2019-6-9 14:57
16楼
买房、卖房、租房上镇江房产网!
只看该作者
分享本楼
百胜装饰
专版版主
来自 江苏省
精华
155
注册 2014-12-11
行业 房产建筑
支持新同学
2019-6-9 15:32
17楼
买房、卖房、租房上镇江房产网!
只看该作者
分享本楼
流浪人在漂泊
来自 江苏省
精华 0
注册 2011-7-22
行业 工业制造
恭喜恭喜
---发自梦溪论坛手机客户端---
2019-6-9 15:57
18楼
MY0511相亲,一分钟注册,享一辈子幸福!
只看该作者
分享本楼
中冠建筑客服
来自 江苏省
精华
5
注册 2019-3-30
行业 基础设施
恭喜开贴
2019-6-10 09:32
19楼
MY0511相亲,一分钟注册,享一辈子幸福!
只看该作者
分享本楼
欧睿宇邦橱柜
来自 江苏省
精华 0
注册 2019-5-18
2019-6-10 15:55
20楼
找工作,就上MY0511!
只看该作者
分享本楼
yadilo雅帝乐
来自 江苏省
精华 0
注册 2018-12-12
行业 其它
恭喜恭喜,装修愉快
---发自iPhone 7 Plus---
2019-6-10 21:16
21楼
0511家装频道:本地家居服务平台,数万业主共同选择
只看该作者
分享本楼
我想有颗星星
来自 江苏省
精华
1
注册 2009-6-19
行业 其它
恭喜开帖
---发自梦溪论坛手机客户端---
2019-6-11 10:54
22楼
[联宇电脑] 电脑组装\维修\升级\企业单位电脑维护!
只看该作者
分享本楼
镇江骊住
来自 江苏省
精华 0
注册 2018-8-8
开工大吉
2019-6-11 13:45
23楼
0511家装频道:本地家居服务平台,数万业主共同选择
只看该作者
分享本楼
书叶
来自 江苏省
精华 0
注册 2017-1-31
我的北欧风小窝终于快要结束了,大部分都是自己想要的样子,感觉有点混搭了,哈哈
---发自iPhone 8 Plus---
2019-10-10 09:18
24楼
[联宇电脑] 电脑组装\维修\升级\企业单位电脑维护!
只看该作者
分享本楼
艺家装饰客服1
来自 江苏省
精华 0
注册 2019-9-7
行业 房产建筑
2019-10-10 09:19
25楼
[联宇电脑] 电脑组装\维修\升级\企业单位电脑维护!
只看该作者
分享本楼
书叶
来自 江苏省
精华 0
注册 2017-1-31
媳妇要的脏粉+荷兰乳酪,这个颜色深了浅了都不好达到效果,还算满意
---发自iPhone 8 Plus---
2019-10-10 09:24
26楼
0511家装频道:本地家居服务平台,数万业主共同选择
只看该作者
分享本楼
书叶
来自 江苏省
精华 0
注册 2017-1-31
在做最后的保洁,有点脏乱,感觉满屋都是别人的模板,最后搭配起来还算可以,厨房和卫生间还没弄好没拍,卫生间自我感觉有点失败,不知道算是啥风格,其他的都还算干净利落,更多的地方施工标准都是实用>颜值,有些地方不是那么尽善尽美,第一次装修房子刚开始真的是无从下手,一路过来,跑了好多家建材店,有的态度非常好,有的售后一般,有的还会给你指点迷津,感谢每一个人的帮助
---发自iPhone 8 Plus---
2019-10-10 09:39
27楼
MY0511相亲,一分钟注册,享一辈子幸福!
只看该作者
分享本楼
annexu
来自 江苏省
精华 0
注册 2011-9-2
行业 其它
实用还是关键
---发自iPhone 8 Plus---
2019-10-10 09:42
28楼
MY0511相亲,一分钟注册,享一辈子幸福!
只看该作者
分享本楼
yadilo雅帝乐
来自 江苏省
精华 0
注册 2018-12-12
行业 其它
---发自iPhone 7 Plus---
2019-10-10 09:52
29楼
0511家装频道:本地家居服务平台,数万业主共同选择
只看该作者
分享本楼
隐藏自己
来自 江苏省
精华 0
注册 2007-12-1
行业 教育科研
就喜欢这种有开始,结束的快节奏。
---发自华为---
2019-10-10 10:04
30楼
找工作,就上MY0511!
只看该作者
分享本楼
波涛装饰
专版版主
来自 江苏省
精华
173
注册 2015-4-10
行业 房产建筑
2019-10-10 15:19
31楼
买房、卖房、租房上镇江房产网!
只看该作者
分享本楼
书叶
来自 江苏省
精华 0
注册 2017-1-31
主卧的窗帘已经好了,还可以,遮光效果不错,外观也是想要的样子,网红灰+脏脏粉,由于靠阳台,选择的是里面加黑丝的,类似遮光布,听说并不太好
---发自iPhone 8 Plus---
2019-10-28 09:59
32楼
0511家装频道:本地家居服务平台,数万业主共同选择
只看该作者
分享本楼
镇江必美地板
来自 江苏省
精华 0
注册 2018-3-31
---发自iPhone 7---
2019-11-20 11:03
33楼
[联宇电脑] 电脑组装\维修\升级\企业单位电脑维护!
只看该作者
分享本楼
关亨木门
来自 江苏省
精华 0
注册 2010-5-8
行业 其它
效果感觉不错,加油
2019-11-20 15:47
34楼
找工作,就上MY0511!
只看该作者
分享本楼
返回家庭装修
快速回复主题
游客
您目前还是游客,请
登录
或
注册
您目前是游客,本帖已被系统设置了自动关闭,不可回复!
文明交流,理性发言
0/5000字
<
>
请在打开的新窗口中支付完成打赏
我已完成支付打赏
支付失败重新支付
其他金额
打赏金额:
元
确定
支付打赏
提 现
打赏人
打赏金额(元)
打赏时间
卡洛尼曼
1.00
2019-6-9 12:06
Powered by
Discuz! X 2
0.079082 s
清除 Cookies
-
镇江网友之家
-
手机版
论坛导航
关闭
吃喝玩乐
饮食男女
镇江钓友之家
菜菜鸟户外
镇江单车俱乐部
镜头里的镇江
畅游天下
猫狗总动员
视觉Coffeeshop摄影部落
花鸟鱼虫
婚姻.亲子.家庭
家有学子
谈婚论嫁
女性天地
母婴乐园
婚姻生活
梦溪佳缘
装修
家庭装修
装修招标
镇江室内设计师交流
装修商家直通车
你好,镇江!
百姓话题
我要买房
0511爱心家园
市场监管•12315热线
分类信息
生活服务
闲置转让
镇江二手房/镇江租房
镇江招聘求职
教育培训
镇江二手车
商铺厂房写字楼租售
宠物市场
运动健身
卡券交易
电脑维修升级
杂货铺
兴趣爱好
HiFi音响江城沙龙
镇江市美术家协会
我爱模型
车友俱乐部
车迷之家
汽车驾培中心
运动俱乐部
镇江市冬泳、铁人三项协会
聚焦足球
镇江羽毛球
镇江乒乓球协会
镇江网球协会
镇江市自行车运动协会
热爱篮球
动力机车
合作栏目
维权热线
天翼时代
色觉影像摄影工作室
站务区
疑问与建议
网络问政
市政府工作部门
垂直管理部门
党群工作部门
其他重点单位
辖市(区)