收藏本站
客户端
扫码下载客户端
官方微信
打开微信扫一扫
登录
|
注册
|
标题
标题
用户
全站首页
|
论坛导航
|
网络问政
|
招聘求职
|
买房租房
|
装修频道
|
生活服务
|
教育
|
相亲
|
亲子
|
美食
|
婚嫁
|
手机客户端
家有学子
|
母婴乐园
快捷导航
精彩推荐:
MY0511客户端下载
中信银行镇江分行
公益体彩 乐善人生
鹏龙鸿蒙
天然石材·人造石
»
梦溪论坛
»
家庭装修
» [2019乙品装饰杯]炎炎夏日,开启我的装修日程—— 瓦工即将结束!
家庭装修
>
[装修日记]
[2019乙品装饰杯]炎炎夏日,开启我的装修日程—— 瓦工即将结束!
查看: 28022 回复: 97
快速回复
返回家庭装修
98
1/2
1
2
>
[装修日记]
[2019乙品装饰杯]炎炎夏日,开启我的装修日程—— 瓦工即将结束!
查看: 28022 回复: 97
上一主题
|
下一主题
GOSAILING
来自 江苏省
精华 0
注册 2019-6-28
[2019乙品装饰杯]炎炎夏日,开启我的装修日程—— 瓦工即将结束!
炎炎夏日,开启我的装修日程—— 瓦工尾期!
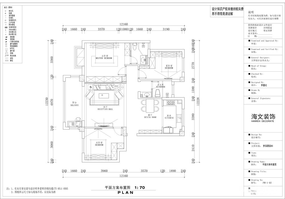
【小区名称】:梦溪嘉园
【所在楼层】:
*
【建筑面积】:
126
㎡
【装修风格】:新中风格
【包工方式】:全包
【设
计
师】:李蔷花
【项目经理】:张经理
【装修公司】:海文
【开工日期】:
2019
年
6
月28
日
【装修预算】:30
万
【户型图片】
[
本帖最后由 GOSAILING 于 2019-8-21 11:13 编辑
]
已有 多洛米软装, 伊慕装饰, 红居装饰, 卡洛尼曼
4
人打赏
2019-6-28 14:24
1楼
0511家装频道:本地家居服务平台,数万业主共同选择
只看该作者
分享本楼
wff433
来自 江苏省
精华 0
注册 2009-3-17
行业 其它
shafa !!沙发!
2019-6-28 14:25
2楼
买房、卖房、租房上镇江房产网!
只看该作者
分享本楼
雾影雨人
来自 江苏省
精华 0
注册 2017-4-6
恭喜恭喜
2019-6-28 14:25
3楼
0511家装频道:本地家居服务平台,数万业主共同选择
只看该作者
分享本楼
GOSAILING
来自 江苏省
精华 0
注册 2019-6-28
9.08分开工大吉
2019-6-28 14:41
4楼
买房、卖房、租房上镇江房产网!
只看该作者
分享本楼
lowry
来自 江苏省
精华 0
注册 2016-12-14
请问你这样,主卧进门后灯的开光放在哪里呀?
---发自三星---
2019-6-28 14:54
5楼
买房、卖房、租房上镇江房产网!
只看该作者
分享本楼
lowry
来自 江苏省
精华 0
注册 2016-12-14
QUOTE:
原帖由
lowry
于 2019-6-28 14:54 发表
请问你这样,主卧进门后灯的开光放在哪里呀?
开关,打错了,不是开光
---发自三星---
2019-6-28 14:55
6楼
[联宇电脑] 电脑组装\维修\升级\企业单位电脑维护!
只看该作者
分享本楼
yadilo雅帝乐
来自 江苏省
精华 0
注册 2018-12-12
行业 其它
恭喜恭喜
---发自iPhone 7 Plus---
2019-6-28 14:58
7楼
[联宇电脑] 电脑组装\维修\升级\企业单位电脑维护!
只看该作者
分享本楼
GOSAILING
来自 江苏省
精华 0
注册 2019-6-28
QUOTE:
原帖由
lowry
于 2019-6-28 14:55 发表
开关,打错了,不是开光
设计师建议放放北面房间门外面,放主卧外面,后期影响走廊端景,
2019-6-28 15:10
8楼
找工作,就上MY0511!
只看该作者
分享本楼
关亨木门
来自 江苏省
精华 0
注册 2010-5-8
行业 其它
恭喜楼主装修愉快
2019-6-28 15:27
9楼
0511家装频道:本地家居服务平台,数万业主共同选择
只看该作者
分享本楼
1+1等于爱
来自 江苏省
精华 0
注册 2016-3-21
全包多少钱啊
---发自vivo---
2019-6-28 16:24
10楼
MY0511相亲,一分钟注册,享一辈子幸福!
只看该作者
分享本楼
1+1等于爱
来自 江苏省
精华 0
注册 2016-3-21
那个女的是设计师吗?
---发自vivo---
2019-6-28 16:29
11楼
MY0511相亲,一分钟注册,享一辈子幸福!
只看该作者
分享本楼
流浪人在漂泊
来自 江苏省
精华 0
注册 2011-7-22
行业 工业制造
恭喜恭喜
---发自梦溪论坛手机客户端---
2019-6-28 16:33
12楼
找工作,就上MY0511!
只看该作者
分享本楼
GOSAILING
来自 江苏省
精华 0
注册 2019-6-28
QUOTE:
原帖由
1+1等于爱
于 2019-6-28 16:24 发表
全包多少钱啊
这个是根据我们的要求做,
2019-6-28 16:41
13楼
0511家装频道:本地家居服务平台,数万业主共同选择
只看该作者
分享本楼
GOSAILING
来自 江苏省
精华 0
注册 2019-6-28
QUOTE:
原帖由
1+1等于爱
于 2019-6-28 16:29 发表
那个女的是设计师吗?
恩
2019-6-28 16:43
14楼
MY0511相亲,一分钟注册,享一辈子幸福!
只看该作者
分享本楼
金佰威装饰集团
来自 江苏省
精华
30
注册 2015-9-29
行业 房产建筑
恭喜恭喜
2019-6-28 17:09
15楼
[联宇电脑] 电脑组装\维修\升级\企业单位电脑维护!
只看该作者
分享本楼
1+1等于爱
来自 江苏省
精华 0
注册 2016-3-21
QUOTE:
原帖由
GOSAILING
于 2019-6-28 16:41 发表
这个是根据我们的要求做,
以前在海文装修过,后期收了2000元增项费,不爽。你房子是多少栋的,近期买房看过梦溪茄苑
---发自vivo---
2019-6-28 17:27
16楼
0511家装频道:本地家居服务平台,数万业主共同选择
只看该作者
分享本楼
我想有颗星星
来自 江苏省
精华
1
注册 2009-6-19
行业 其它
---发自梦溪论坛手机客户端---
2019-6-28 20:11
17楼
[联宇电脑] 电脑组装\维修\升级\企业单位电脑维护!
只看该作者
分享本楼
中冠建筑客服
来自 江苏省
精华
5
注册 2019-3-30
行业 基础设施
恭喜开贴
2019-6-29 08:53
18楼
0511家装频道:本地家居服务平台,数万业主共同选择
只看该作者
分享本楼
海文装饰客服
专版版主
来自 江苏省
精华
53
注册 2016-5-6
恭喜同学开贴,加油!
2019-6-29 09:09
19楼
找工作,就上MY0511!
只看该作者
分享本楼
大唐合盛瓷砖
来自 江苏省
精华 0
注册 2014-8-14
行业 商业贸易
恭喜开工
2019-6-29 10:15
20楼
找工作,就上MY0511!
只看该作者
分享本楼
GOSAILING
来自 江苏省
精华 0
注册 2019-6-28
QUOTE:
原帖由
1+1等于爱
于 2019-6-28 17:27 发表
以前在海文装修过,后期收了2000元增项费,不爽。你房子是多少栋的,近期买房看过梦溪茄苑
85栋的
---发自iPhone 8---
2019-6-29 12:00
21楼
0511家装频道:本地家居服务平台,数万业主共同选择
只看该作者
分享本楼
佰丽爱家
来自 江苏省
精华 0
注册 2019-4-8
行业 其它
开工大吉
---发自iPhone 6---
2019-6-29 15:50
22楼
买房、卖房、租房上镇江房产网!
只看该作者
分享本楼
H华鹤木门
来自 江苏省
精华 0
注册 2019-6-11
恭喜楼主装修愉快
2019-6-29 15:59
23楼
[联宇电脑] 电脑组装\维修\升级\企业单位电脑维护!
只看该作者
分享本楼
卡洛尼曼
来自 江苏省
精华 0
注册 2018-5-3
行业 其它
2019-6-29 16:24
24楼
买房、卖房、租房上镇江房产网!
只看该作者
分享本楼
wff433
来自 江苏省
精华 0
注册 2009-3-17
行业 其它
LZ 家什么时候 做水电啊 关注你哦
2019-6-29 16:46
25楼
买房、卖房、租房上镇江房产网!
只看该作者
分享本楼
海文装饰客服
专版版主
来自 江苏省
精华
53
注册 2016-5-6
同学加油,这是梦溪嘉苑另一位业主家的装修效果!
我们也期待您家的效果
[
本帖最后由 海文装饰客服 于 2019-6-29 17:24 编辑
]
2019-6-29 17:23
26楼
0511家装频道:本地家居服务平台,数万业主共同选择
只看该作者
分享本楼
GOSAILING
来自 江苏省
精华 0
注册 2019-6-28
QUOTE:
原帖由
大唐合盛瓷砖
于 2019-6-29 10:15 发表
恭喜开工
谢谢
---发自iPhone 8---
2019-6-29 17:27
27楼
0511家装频道:本地家居服务平台,数万业主共同选择
只看该作者
分享本楼
GOSAILING
来自 江苏省
精华 0
注册 2019-6-28
QUOTE:
原帖由
wff433
于 2019-6-29 16:46 发表
LZ 家什么时候 做水电啊 关注你哦
近期比较忙又出差了,全全交给设计师和项目经理了
2019-6-29 17:31
28楼
买房、卖房、租房上镇江房产网!
只看该作者
分享本楼
雾影雨人
来自 江苏省
精华 0
注册 2017-4-6
非常期待楼主的发的照片
2019-6-29 17:31
29楼
[联宇电脑] 电脑组装\维修\升级\企业单位电脑维护!
只看该作者
分享本楼
GOSAILING
来自 江苏省
精华 0
注册 2019-6-28
QUOTE:
原帖由
海文装饰客服
于 2019-6-29 17:23 发表
同学加油,这是梦溪嘉苑另一位业主家的装修效果!我们也期待您家的效果
邻居家装的效果不错,期待我新家的样子
---发自iPhone 8---
2019-6-29 19:22
30楼
MY0511相亲,一分钟注册,享一辈子幸福!
只看该作者
分享本楼
wff433
来自 江苏省
精华 0
注册 2009-3-17
行业 其它
QUOTE:
原帖由
海文装饰客服
于 2019-6-29 17:23 发表
同学加油,这是梦溪嘉苑另一位业主家的装修效果!我们也期待您家的效果
这个 效果 做的不错呢,这家人 的 生活品质 很高啊。
2019-6-30 16:38
31楼
找工作,就上MY0511!
只看该作者
分享本楼
怡然家装饰
来自 江苏省
精华
7
注册 2019-5-9
恭喜开贴
2019-6-30 16:45
32楼
MY0511相亲,一分钟注册,享一辈子幸福!
只看该作者
分享本楼
GOSAILING
来自 江苏省
精华 0
注册 2019-6-28
感谢设计师从前方发来的战况,师傅辛苦了
---发自iPhone 8---
2019-6-30 16:53
33楼
[联宇电脑] 电脑组装\维修\升级\企业单位电脑维护!
只看该作者
分享本楼
滴滴啦啦
来自 江苏省
精华 0
注册 2015-12-20
QUOTE:
原帖由
1+1等于爱
于 2019-6-28 17:27 发表
以前在海文装修过,后期收了2000元增项费,不爽。你房子是多少栋的,近期买房看过梦溪茄苑
开玩笑,2000元增项费 一点不多好吧, 我家那时候在**** 公司装的 也增加了不少呢 还有我自己改动的地方
2019-7-2 10:06
34楼
找工作,就上MY0511!
只看该作者
分享本楼
老友记装饰黄
来自 江苏省
精华 0
注册 2016-6-23
恭喜开工
2019-7-2 11:53
35楼
[联宇电脑] 电脑组装\维修\升级\企业单位电脑维护!
只看该作者
分享本楼
鑫木装饰公司
来自 江苏省
精华 0
注册 2019-2-12
恭喜楼主开工大吉
2019-7-3 10:33
36楼
[联宇电脑] 电脑组装\维修\升级\企业单位电脑维护!
只看该作者
分享本楼
滴滴啦啦
来自 江苏省
精华 0
注册 2015-12-20
加油哦 哪天可以去看看工地啊?
2019-7-5 11:13
37楼
找工作,就上MY0511!
只看该作者
分享本楼
中冠建筑客服
来自 江苏省
精华
5
注册 2019-3-30
行业 基础设施
2019-7-6 09:23
38楼
0511家装频道:本地家居服务平台,数万业主共同选择
只看该作者
分享本楼
关亨木门
来自 江苏省
精华 0
注册 2010-5-8
行业 其它
2019-7-7 14:31
39楼
[联宇电脑] 电脑组装\维修\升级\企业单位电脑维护!
只看该作者
分享本楼
多洛米软装
来自 江苏省
精华 0
注册 2019-4-22
2019-7-7 16:08
40楼
找工作,就上MY0511!
只看该作者
分享本楼
GOSAILING
来自 江苏省
精华 0
注册 2019-6-28
最近比较忙,好久没更新了,敲墙已经结束,在探讨方案的时候,设计师建议把飘窗敲了,增加储物空间,一直担心在敲墙的时候会影响外面的墙,现在放心
---发自iPhone 8---
2019-7-7 23:46
41楼
[联宇电脑] 电脑组装\维修\升级\企业单位电脑维护!
只看该作者
分享本楼
doujinxi
来自 江苏省
精华 0
注册 2016-10-22
恭喜开工
---发自华为---
2019-7-8 11:50
42楼
买房、卖房、租房上镇江房产网!
只看该作者
分享本楼
伊慕装饰
专版版主
来自 江苏省
精华 0
注册 2014-10-16
欢迎新同学
2019-7-8 11:52
43楼
MY0511相亲,一分钟注册,享一辈子幸福!
只看该作者
分享本楼
wff433
来自 江苏省
精华 0
注册 2009-3-17
行业 其它
我就过来看看
2019-7-11 10:30
44楼
0511家装频道:本地家居服务平台,数万业主共同选择
只看该作者
分享本楼
卡洛尼曼
来自 江苏省
精华 0
注册 2018-5-3
行业 其它
又见海文
2019-7-11 11:13
45楼
找工作,就上MY0511!
只看该作者
分享本楼
飘洋过海迷路了
来自 江苏省
精华 0
注册 2017-4-22
欢迎 欢迎
2019-7-11 16:25
46楼
0511家装频道:本地家居服务平台,数万业主共同选择
只看该作者
分享本楼
yadilo雅帝乐
来自 江苏省
精华 0
注册 2018-12-12
行业 其它
---发自iPhone 7 Plus---
2019-7-12 10:06
47楼
0511家装频道:本地家居服务平台,数万业主共同选择
只看该作者
分享本楼
海文装饰客服
专版版主
来自 江苏省
精华
53
注册 2016-5-6
欢迎各位来海文工地参观 么么哒
2019-7-12 10:46
48楼
买房、卖房、租房上镇江房产网!
只看该作者
分享本楼
三生三世枕上书
来自 江苏省
精华 0
注册 2017-3-13
2019-7-13 16:03
49楼
0511家装频道:本地家居服务平台,数万业主共同选择
只看该作者
分享本楼
海文装饰客服
专版版主
来自 江苏省
精华
53
注册 2016-5-6
QUOTE:
原帖由
三生三世枕上书
于 2019-7-13 16:03 发表
欢迎这位同学来 捧场
2019-7-14 13:35
50楼
[联宇电脑] 电脑组装\维修\升级\企业单位电脑维护!
只看该作者
分享本楼
返回家庭装修
98
1/2
1
2
>
快速回复主题
游客
您目前还是游客,请
登录
或
注册
您目前是游客,本帖已被系统设置了自动关闭,不可回复!
文明交流,理性发言
0/5000字
<
>
请在打开的新窗口中支付完成打赏
我已完成支付打赏
支付失败重新支付
其他金额
打赏金额:
元
确定
支付打赏
提 现
打赏人
打赏金额(元)
打赏时间
多洛米软装
1.00
2019-7-7 16:06
伊慕装饰
1.00
2019-7-8 11:52
红居装饰
1.00
2019-7-19 11:16
卡洛尼曼
1.00
2019-7-20 14:43
Powered by
Discuz! X 2
0.096040 s
清除 Cookies
-
镇江网友之家
-
手机版
论坛导航
关闭
吃喝玩乐
饮食男女
镇江钓友之家
菜菜鸟户外
镇江单车俱乐部
镜头里的镇江
畅游天下
猫狗总动员
视觉Coffeeshop摄影部落
花鸟鱼虫
婚姻.亲子.家庭
家有学子
谈婚论嫁
女性天地
母婴乐园
婚姻生活
梦溪佳缘
装修
家庭装修
装修招标
镇江室内设计师交流
装修商家直通车
你好,镇江!
百姓话题
我要买房
0511爱心家园
市场监管•12315热线
分类信息
生活服务
闲置转让
镇江二手房/镇江租房
镇江招聘求职
教育培训
镇江二手车
商铺厂房写字楼租售
宠物市场
运动健身
卡券交易
电脑维修升级
杂货铺
其他分类信息区
兴趣爱好
HiFi音响江城沙龙
镇江市美术家协会
我爱模型
车友俱乐部
车迷之家
汽车驾培中心
运动俱乐部
镇江市冬泳、铁人三项协会
聚焦足球
镇江羽毛球
镇江乒乓球协会
镇江网球协会
镇江市自行车运动协会
热爱篮球
动力机车
合作栏目
维权热线
天翼时代
色觉影像摄影工作室
站务区
疑问与建议
网络问政
市政府工作部门
垂直管理部门
党群工作部门
其他重点单位
辖市(区)