收藏本站
客户端
扫码下载客户端
官方微信
打开微信扫一扫
登录
|
注册
|
标题
标题
用户
全站首页
|
论坛导航
|
网络问政
|
招聘求职
|
买房租房
|
装修频道
|
生活服务
|
教育
|
相亲
|
亲子
|
美食
|
婚嫁
|
手机客户端
家有学子
|
母婴乐园
快捷导航
精彩推荐:
MY0511客户端下载
中信银行镇江分行
公益体彩 乐善人生
鹏龙鸿蒙
天然石材·人造石
»
梦溪论坛
»
家庭装修
» [2019乙品装饰]梦想中的家·紫榭装修日记
家庭装修
>
[装修日记]
[2019乙品装饰]梦想中的家·紫榭装修日记
查看: 16886 回复: 42
快速回复
返回家庭装修
[装修日记]
[2019乙品装饰]梦想中的家·紫榭装修日记
查看: 16886 回复: 42
上一主题
|
下一主题
yanghy117
来自 江苏省
精华 0
注册 2017-2-15
[2019乙品装饰]梦想中的家·紫榭装修日记
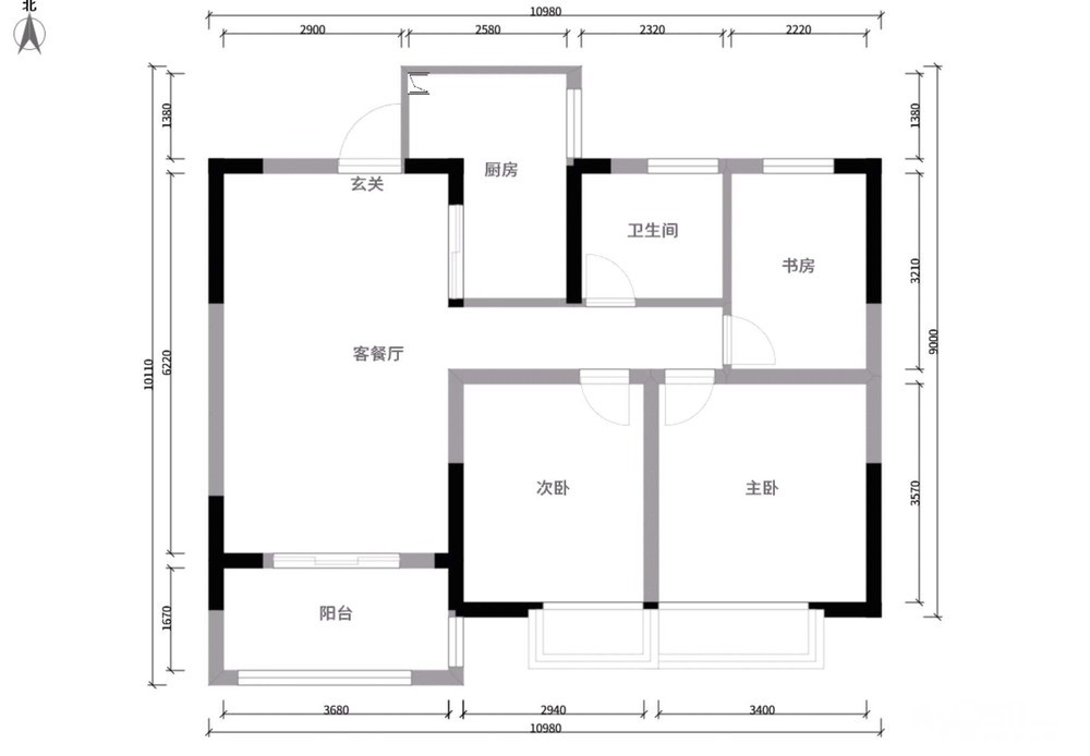
【小区名称】:紫榭丽舍
【所在楼层】:8
【建筑面积】:94㎡
【装修风格】:极简线条+莫兰迪灰色调配白色+布艺元素+细脚家具
【包工方式】:半包
【装修公司】:尚峰大宅
【 設計師 】:詹翔宇
【开工日期】:待定
【装修预算】:大概20w、尽量控制吧
【户型图片】:网上找的原始户型图
[
本帖最后由 yanghy117 于 2019-8-6 13:17 编辑
]
---发自vivo---
已有 红居装饰
1
人打赏
2019-8-5 13:21
1楼
买房、卖房、租房上镇江房产网!
只看该作者
分享本楼
yanghy117
来自 江苏省
精华 0
注册 2017-2-15
心中向往的梦想家终于要在年底拿房了。当初买房看了好几个楼盘,大部分都是精装房,看到紫榭还有毛坯,并且户型方正,一眼就看中了。之所以要买毛坯,因它可按我的生活需求去设计,避免千篇一律的样板间。之前从没接触过装修公司,完全是缘分。18年底,尚峰大宅装饰搞活动时过来看了看,不仅工程细腻施工专业,而且他们推广使用的基础材料都是环保无毒的,所用的家装胶水可以当场喝下,碉堡了!!!加上设计师·Mr詹的美学素养、空间使用率、工程上的专业经验,更进一步让我确定把自己的梦想家交给尚峰大宅错不了。
先来几张设计师·Mr詹的作品图
[
本帖最后由 yanghy117 于 2019-8-5 13:43 编辑
]
---发自vivo---
2019-8-5 13:22
2楼
[联宇电脑] 电脑组装\维修\升级\企业单位电脑维护!
只看该作者
分享本楼
yanghy117
来自 江苏省
精华 0
注册 2017-2-15
占楼
---发自vivo---
2019-8-5 13:22
3楼
0511家装频道:本地家居服务平台,数万业主共同选择
只看该作者
分享本楼
yanghy117
来自 江苏省
精华 0
注册 2017-2-15
占楼
---发自vivo---
2019-8-5 13:22
4楼
MY0511相亲,一分钟注册,享一辈子幸福!
只看该作者
分享本楼
yanghy117
来自 江苏省
精华 0
注册 2017-2-15
占楼
---发自vivo---
2019-8-5 13:22
5楼
0511家装频道:本地家居服务平台,数万业主共同选择
只看该作者
分享本楼
yanghy117
来自 江苏省
精华 0
注册 2017-2-15
占楼
---发自vivo---
2019-8-5 13:23
6楼
0511家装频道:本地家居服务平台,数万业主共同选择
只看该作者
分享本楼
yanghy117
来自 江苏省
精华 0
注册 2017-2-15
占楼
---发自vivo---
2019-8-5 13:23
7楼
找工作,就上MY0511!
只看该作者
分享本楼
yanghy117
来自 江苏省
精华 0
注册 2017-2-15
占楼
---发自vivo---
2019-8-5 13:23
8楼
MY0511相亲,一分钟注册,享一辈子幸福!
只看该作者
分享本楼
yanghy117
来自 江苏省
精华 0
注册 2017-2-15
占楼
---发自vivo---
2019-8-5 13:23
9楼
[联宇电脑] 电脑组装\维修\升级\企业单位电脑维护!
只看该作者
分享本楼
yanghy117
来自 江苏省
精华 0
注册 2017-2-15
占楼
---发自vivo---
2019-8-5 13:23
10楼
0511家装频道:本地家居服务平台,数万业主共同选择
只看该作者
分享本楼
yanghy117
来自 江苏省
精华 0
注册 2017-2-15
占楼
---发自vivo---
2019-8-5 13:24
11楼
找工作,就上MY0511!
只看该作者
分享本楼
yanghy117
来自 江苏省
精华 0
注册 2017-2-15
占楼
---发自vivo---
2019-8-5 13:24
12楼
买房、卖房、租房上镇江房产网!
只看该作者
分享本楼
yanghy117
来自 江苏省
精华 0
注册 2017-2-15
占楼
---发自vivo---
2019-8-5 13:24
13楼
0511家装频道:本地家居服务平台,数万业主共同选择
只看该作者
分享本楼
海文装饰客服
专版版主
来自 江苏省
精华
53
注册 2016-5-6
欢迎 欢迎新同学
2019-8-5 14:09
14楼
MY0511相亲,一分钟注册,享一辈子幸福!
只看该作者
分享本楼
镇江大津硅藻泥
来自 江苏省
精华
4
注册 2011-12-13
行业 基础设施
2019-8-5 14:16
15楼
0511家装频道:本地家居服务平台,数万业主共同选择
只看该作者
分享本楼
tot
来自 江苏省
精华 0
注册 2010-6-15
行业 房产建筑
---发自iPhone 6---
2019-8-5 14:47
16楼
0511家装频道:本地家居服务平台,数万业主共同选择
只看该作者
分享本楼
大唐合盛瓷砖
来自 江苏省
精华 0
注册 2014-8-14
行业 商业贸易
恭喜拿房
2019-8-5 15:04
17楼
MY0511相亲,一分钟注册,享一辈子幸福!
只看该作者
分享本楼
依诺磁砖亿都店
来自 江苏省
精华 0
注册 2018-6-5
恭喜恭喜
---发自vivo---
2019-8-5 16:47
18楼
MY0511相亲,一分钟注册,享一辈子幸福!
只看该作者
分享本楼
我想有颗星星
来自 江苏省
精华
1
注册 2009-6-19
行业 其它
詹总必出精品
---发自梦溪论坛手机客户端---
2019-8-5 21:20
19楼
买房、卖房、租房上镇江房产网!
只看该作者
分享本楼
佰丽爱家
来自 江苏省
精华 0
注册 2019-4-8
行业 其它
恭喜恭喜
---发自iPhone 6---
2019-8-6 09:08
20楼
买房、卖房、租房上镇江房产网!
只看该作者
分享本楼
yadilo雅帝乐
来自 江苏省
精华 0
注册 2018-12-12
行业 其它
恭喜开帖
---发自iPhone 7 Plus---
2019-8-6 10:59
21楼
[联宇电脑] 电脑组装\维修\升级\企业单位电脑维护!
只看该作者
分享本楼
红居装饰
专版版主
来自 江苏省
精华
411
注册 2016-10-30
行业 房产建筑
恭喜
2019-8-6 15:27
22楼
0511家装频道:本地家居服务平台,数万业主共同选择
只看该作者
分享本楼
金庸
MIP
来自 江苏省
精华
10
注册 2006-5-7
行业 其它
2019-8-6 16:02
23楼
[联宇电脑] 电脑组装\维修\升级\企业单位电脑维护!
只看该作者
分享本楼
我想有颗星星
来自 江苏省
精华
1
注册 2009-6-19
行业 其它
---发自梦溪论坛手机客户端---
2019-8-6 16:36
24楼
买房、卖房、租房上镇江房产网!
只看该作者
分享本楼
可可虎家装监理
来自 江苏省
精华 0
注册 2018-3-31
行业 其它
开工大吉
2019-8-7 15:04
25楼
[联宇电脑] 电脑组装\维修\升级\企业单位电脑维护!
只看该作者
分享本楼
漫步1
来自 江苏省
精华 0
注册 2019-7-9
---发自iPhone X---
2019-8-7 15:26
26楼
0511家装频道:本地家居服务平台,数万业主共同选择
只看该作者
分享本楼
金佰威装饰集团
来自 江苏省
精华
30
注册 2015-9-29
行业 房产建筑
恭喜恭喜
2019-8-7 15:42
27楼
0511家装频道:本地家居服务平台,数万业主共同选择
只看该作者
分享本楼
镇江尚峰大宅
来自 江苏省
精华 0
注册 2019-2-12
行业 其它
占楼,谢谢杨先生对尚峰大宅和詹老师的信任和支持奥!
2019-8-7 17:41
28楼
MY0511相亲,一分钟注册,享一辈子幸福!
只看该作者
分享本楼
tongtong26
来自 江苏省
精华 0
注册 2006-4-22
2019-8-7 19:34
29楼
0511家装频道:本地家居服务平台,数万业主共同选择
只看该作者
分享本楼
罗曼缔克瓷砖
来自 江苏省
精华 0
注册 2017-5-19
恭喜LZ开帖
---发自iPhone 7 Plus---
2019-8-7 21:03
30楼
MY0511相亲,一分钟注册,享一辈子幸福!
只看该作者
分享本楼
佰丽爱家
来自 江苏省
精华 0
注册 2019-4-8
行业 其它
---发自iPhone 6---
2019-8-8 09:54
31楼
买房、卖房、租房上镇江房产网!
只看该作者
分享本楼
中冠建筑客服
来自 江苏省
精华
5
注册 2019-3-30
行业 基础设施
恭喜开工
2019-8-10 09:19
32楼
[联宇电脑] 电脑组装\维修\升级\企业单位电脑维护!
只看该作者
分享本楼
怡然家装饰
来自 江苏省
精华
7
注册 2019-5-9
开工大吉
2019-8-10 10:17
33楼
找工作,就上MY0511!
只看该作者
分享本楼
我想有颗星星
来自 江苏省
精华
1
注册 2009-6-19
行业 其它
---发自梦溪论坛手机客户端---
2019-8-10 10:18
34楼
0511家装频道:本地家居服务平台,数万业主共同选择
只看该作者
分享本楼
关亨木门
来自 江苏省
精华 0
注册 2010-5-8
行业 其它
2019-8-10 14:27
35楼
找工作,就上MY0511!
只看该作者
分享本楼
鸿鹄设计镇江站
专版版主
来自 江苏省
精华
222
注册 2016-11-15
行业 广告媒体
恭喜
2019-8-12 16:56
36楼
买房、卖房、租房上镇江房产网!
只看该作者
分享本楼
我想有颗星星
来自 江苏省
精华
1
注册 2009-6-19
行业 其它
---发自梦溪论坛手机客户端---
2019-8-12 19:23
37楼
找工作,就上MY0511!
只看该作者
分享本楼
我想有颗星星
来自 江苏省
精华
1
注册 2009-6-19
行业 其它
---发自梦溪论坛手机客户端---
2019-8-12 20:06
38楼
买房、卖房、租房上镇江房产网!
只看该作者
分享本楼
卡洛尼曼
来自 江苏省
精华 0
注册 2018-5-3
行业 其它
2019-8-12 21:08
39楼
[联宇电脑] 电脑组装\维修\升级\企业单位电脑维护!
只看该作者
分享本楼
森泓住建
来自 江苏省
精华 0
注册 2019-7-26
装修顺利
2019-8-13 10:53
40楼
[联宇电脑] 电脑组装\维修\升级\企业单位电脑维护!
只看该作者
分享本楼
我想有颗星星
来自 江苏省
精华
1
注册 2009-6-19
行业 其它
---发自梦溪论坛手机客户端---
2019-8-13 19:16
41楼
[联宇电脑] 电脑组装\维修\升级\企业单位电脑维护!
只看该作者
分享本楼
我想有颗星星
来自 江苏省
精华
1
注册 2009-6-19
行业 其它
---发自梦溪论坛手机客户端---
2019-8-19 23:35
42楼
找工作,就上MY0511!
只看该作者
分享本楼
我想有颗星星
来自 江苏省
精华
1
注册 2009-6-19
行业 其它
---发自梦溪论坛手机客户端---
2019-8-21 20:33
43楼
找工作,就上MY0511!
只看该作者
分享本楼
返回家庭装修
快速回复主题
游客
您目前还是游客,请
登录
或
注册
您目前是游客,本帖已被系统设置了自动关闭,不可回复!
文明交流,理性发言
0/5000字
<
>
请在打开的新窗口中支付完成打赏
我已完成支付打赏
支付失败重新支付
其他金额
打赏金额:
元
确定
支付打赏
提 现
打赏人
打赏金额(元)
打赏时间
红居装饰
1.00
2019-8-6 15:26
Powered by
Discuz! X 2
0.084020 s
清除 Cookies
-
镇江网友之家
-
手机版
论坛导航
关闭
吃喝玩乐
饮食男女
镇江钓友之家
菜菜鸟户外
镇江单车俱乐部
镜头里的镇江
畅游天下
猫狗总动员
视觉Coffeeshop摄影部落
花鸟鱼虫
婚姻.亲子.家庭
家有学子
谈婚论嫁
女性天地
母婴乐园
婚姻生活
梦溪佳缘
装修
家庭装修
装修招标
镇江室内设计师交流
装修商家直通车
你好,镇江!
百姓话题
我要买房
0511爱心家园
市场监管•12315热线
分类信息
生活服务
闲置转让
镇江二手房/镇江租房
镇江招聘求职
教育培训
镇江二手车
商铺厂房写字楼租售
宠物市场
运动健身
卡券交易
电脑维修升级
杂货铺
其他分类信息区
兴趣爱好
HiFi音响江城沙龙
镇江市美术家协会
我爱模型
车友俱乐部
车迷之家
汽车驾培中心
运动俱乐部
镇江市冬泳、铁人三项协会
聚焦足球
镇江羽毛球
镇江乒乓球协会
镇江网球协会
镇江市自行车运动协会
热爱篮球
动力机车
合作栏目
维权热线
天翼时代
色觉影像摄影工作室
站务区
疑问与建议
网络问政
市政府工作部门
垂直管理部门
党群工作部门
其他重点单位
辖市(区)