| 标题
快捷导航

精彩推荐:MY0511客户端下载

    • 中信银行镇江分行

    • 公益体彩 乐善人生

    • 鹏龙鸿蒙

    • 天然石材·人造石

    » 梦溪论坛 » 家庭装修 » [2019乙品装饰杯]10后小臭臭的窝
    家庭装修  >  [装修日记] [2019乙品装饰杯]10后小臭臭的窝     
    查看: 22042  回复: 49
    [装修日记] [2019乙品装饰杯]10后小臭臭的窝      查看: 22042  回复: 49
    • 来自 江苏省
    • 精华 0
    • 注册 2019-12-8
    •  
    [2019乙品装饰杯]10后小臭臭的窝

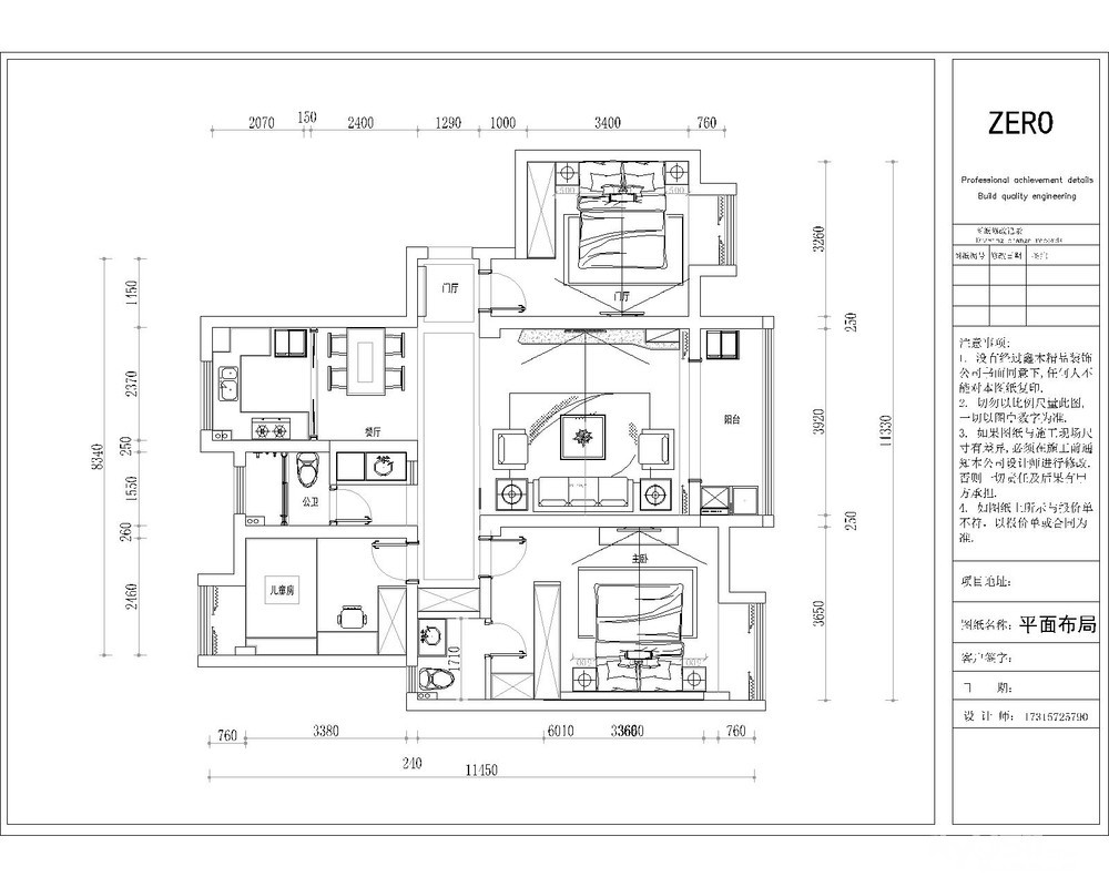
    【小区名称】:姚庄舒苑
    【所在楼层】:2
    【建筑面积】:112
    【装修风格】:现代混工业
    【包工方式】:包人工设计
    【装修公司】:ZERO
    【开工日期】:2019.11.27
    【装修预算】:25W
    【户型图片】:







                      
    • 来自 江苏省
    • 精华 0
    • 注册 2014-5-17
    • 行业 商业贸易
    •  

    恭喜恭喜




    • 来自 江苏省
    • 精华 0
    • 注册 2019-12-8
    •  

    80后装修第二套房子,孩子都是老婆带 有时候忙不过来,就选择靠老丈那边,干脆把房子装了 ,近。定了装修房子那就两个选着自装和装修公司装,应为第一套房子是自己装的,装的实用性和效果有限,就考虑装修公司。神奇的事情来了,当你要装修的时候就莫名的有装修的人主动联系你了,看过几家头都大了东西太多了,无巧不成书有一家公司的设计师居然是一个小区的,这个毕竟远亲不路紧邻。就优先考虑。算下来的价格是比较高的 半包要 5.2 W,比较其他几家高高高。那就慢慢谈装修这东西本来就是定制的不要的东西可以减掉,算来减去就差了0.4W ,被逼无奈想自己装了 ,就跟设计师谈你出设计 人工我们找,设计师爽口答应好,心想设计费也就2000-3000,我去开价就8000,立马心里就不爽了,后来又去问其他都不低于5000的,感觉设计师好赚钱啊。讨价还价唉 冷落几天这个价格就下来了 ,最后谈到了 4500 !外加条件是工人必须用我的,这样品质有保证 然后给我看了一下工价单和我自己算的差不多少!楼上那一户自己找工人装的 问一问价格就出来了 那就交钱出设计。




    • 来自 江苏省
    • 精华 0
    • 注册 2019-12-8
    •  




    这个是一开始的效果图! 还有一个可以转的效果图不会发 先凑合看着  这个是初稿 有个墙好像不好拆掉后来改掉了



    客厅2




    • 来自 江苏省
    • 精华 0
    • 注册 2019-12-8
    •  

    客厅


    这个是最后确定后的效果图! 这张看起来确实比上面的 有感觉 !比较真实




    • 来自 江苏省
    • 精华 0
    • 注册 2019-12-8
    •  

    拆除我没有拍到 拆除有不多 拆的玩完工第三天 我家墙面的颜色 就变成了黄颜色了 ! 后来问了工人 工人师傅说 原来房子 的涂料铲除后 不一定完全铲掉彻底  这些东西是为了 加固墙面的 这样上油漆的时候不容易掉。黄颜色材料是老婆自己买的 杜芳好像也不贵。




    • 来自 江苏省
    • 精华 0
    • 注册 2019-12-8
    •  














    • 来自 江苏省
    • 精华 0
    • 注册 2019-12-8
    •  

    现在水泥黄沙好像比以前涨不少。师傅墙起的还是慢有水平的! 




    • 来自 江苏省
    • 精华 0
    • 注册 2010-5-8
    • 行业 其它
    •  






    • 来自 江苏省
    • 精华 0
    • 注册 2014-8-14
    • 行业 商业贸易
    •  






    • 来自 江苏省
    • 精华 0
    • 注册 2018-12-12
    • 行业 其它
    •  
    • 来自 江苏省
    • 精华 7
    • 注册 2019-5-9
    •  






    • 来自 江苏省
    • 精华 0
    • 注册 2018-3-31
    • 行业 其它
    •  

    欢迎新同学




    • 来自 江苏省
    • 精华 415
    • 注册 2016-10-30
    • 行业 房产建筑
    •  

    我来瞅瞅!




    • 来自 江苏省
    • 精华 0
    • 注册 2014-10-16
    •  

    欢迎新同学




    • 来自 江苏省
    • 精华 0
    • 注册 2019-3-15
    •  

    恭喜开工大吉




    • 来自 江苏省
    • 精华 0
    • 注册 2015-10-16
    •  

    感谢徐总




    • 来自 江苏省
    • 精华 0
    • 注册 2019-12-8
    •  


    这是前去金桥装饰成看的防盗门,这个样式的防盗门  真心不便宜 2800大洋! 指纹锁另算! 外框的线条  我换成了直的 !

    [ 本帖最后由 chouchou66 于 2019-12-12 10:42 编辑 ]




    • 来自 江苏省
    • 精华 0
    • 注册 2019-12-8
    •  



    这是楼上的水电!自己找人做的!   没对比没伤害 ! 价格好像都差不多 !我家40 一平  我第一套房子  好像也是这样的  !!!

    [ 本帖最后由 chouchou66 于 2019-12-12 10:50 编辑 ]








    • 来自 江苏省
    • 精华 0
    • 注册 2019-12-8
    •  

        还有现在 管道好像都有厂家的人 过来 检测  还给了个保单。。

    [ 本帖最后由 chouchou66 于 2019-12-12 10:53 编辑 ]








    • 来自 江苏省
    • 精华 0
    • 注册 2019-4-8
    • 行业 其它
    •  
    • 来自 江苏省
    • 精华 0
    • 注册 2015-10-16
    •  






    • 来自 江苏省
    • 精华 0
    • 注册 2019-6-11
    •  

    开工大吉




    • 来自 江苏省
    • 精华 0
    • 注册 2019-8-18
    •  

    恭喜楼主咯占个楼




    • 来自 江苏省
    • 精华 5
    • 注册 2019-3-30
    • 行业 基础设施
    •  






    • 来自 江苏省
    • 精华 0
    • 注册 2010-5-8
    • 行业 其它
    •  






    • 来自 江苏省
    • 精华 0
    • 注册 2011-9-16
    • 行业 商业贸易
    •  






    • 来自 江苏省
    • 精华 0
    • 注册 2010-5-8
    • 行业 其它
    •  






    • 来自 江苏省
    • 精华 0
    • 注册 2019-12-8
    •  

    卫生间
    橱柜




    厨房



    吊顶








    • 来自 江苏省
    • 精华 0
    • 注册 2019-12-8
    •  

    吊顶 掉好了  !除了厨房个公共卫生间用的是集成吊顶!其他都是  石膏板吊顶! 然后 尤其材料用的是杜芳的油漆和腻子!有点超, 重点来了! 买了2桶大的  还买了一桶小的外墙漆 是刷 阳台和 主卧卫生间的  防水。。。




    • 来自 江苏省
    • 精华 0
    • 注册 2019-12-8
    •  

    橱柜是在一家看到的!感觉还不错! 和我门家效果的 颜色很想! 你看中的都不便宜! 是实木多层的,不是颗粒板的。 老板答应我门今年年底可以装好!到时候看效果




    • 来自 江苏省
    • 精华 0
    • 注册 2019-10-12
    •  


    QUOTE:
    原帖由 chouchou66 于 2019-12-10 11:37 发表
    80后装修第二套房子,孩子都是老婆带 有时候忙不过来,就选择靠老丈那边,干脆把房子装了 ,近。定了装修房子那就两个选着自装和装修公司装,应为第一套房子是自己装的,装的实用性和效果有限,就考虑装修公司。神奇的事情来了,当你要装修的时候就莫名的有装修的人主动联系你了,看过几家头都大了东西太多了,无巧不成书有一家公司的设计师居然是一个小区的,这个毕竟远亲不路紧邻。就优先考虑。算下来的价格是比较高的 半包要 5.2 W,比较其他几家高高高。那就慢慢谈装修这东西本来就是定制的不要的东西可以减掉,算来减去就差了0.4W ,被逼无奈想自己装了 ,就跟设计师谈你出设计 人工我们找,设计师爽口答应好,心想设计费也就2000-3000,我去开价就8000,立马心里就不爽了,后来又去问其他都不低于5000的,感觉设计师好赚钱啊。讨价还价唉 冷落几天这个价格就下来了 ,最后谈到了 4500 !外加条件是工人必须用我的,这样品质有保证 然后给我看了一下工价单和我自己算的差不多少!楼上那一户自己找工人装的 问一问价格就出来了 那就交钱出设计。...
    设计好贵




    • 来自 江苏省
    • 精华 0
    • 注册 2011-9-16
    • 行业 商业贸易
    •  






    • 来自 江苏省
    • 精华 0
    • 注册 2019-12-8
    •  

    有与疫情元婴好长时间没动工 !目前硬装基本解除  !




    • 来自 江苏省
    • 精华 0
    • 注册 2019-12-8
    •  

    餐厅




    厨房



    大房间



    大房间卫生间



    大门



    电视墙



    客厅干区



    小房间



    沙发墙



    客房



    悬关



    悬关柜



    大房间衣柜




    • 来自 江苏省
    • 精华 0
    • 注册 2019-12-8
    •  



    现在装下来 和效果图 还是很像的 !
    现在目前话费  !   16W !
    人工加材料花了                  4.8W  
    地砖                                1.1W     欧福莱
    地板                                1.3W     圣达
    橱柜 衣柜   全部柜子           4 W     设计师帮定的 亲戚在南京加工厂
    大理石                             0.5W      忘了
    空调                                0.7W     格力
    房门                                0.9W     美星木门
    卫浴                                0.6W     惠达
    移门淋浴房                        0.8W     欧拓
    大门                                 0.3W     喜传天下
    窗户                                 0.8W     楼下找人做的

    [ 本帖最后由 chouchou66 于 2020-2-21 15:07 编辑 ]




    • 来自 江苏省
    • 精华 0
    • 注册 2019-12-8
    •  

    最满意就是柜子   我家柜子乍看一下有高 跟我楼上邻居 3万不到就搞定!其实我家柜子比较多 !还有一张床 一个榻榻米 护墙板 。  我叫木工算了一下! 自己买材料打 柜子 也要 2W   门和五金 其他东西都自己买算下来 跟设计师给的价格差不了几千块 后来选择的定制! 而且打得柜子板子颜色 真心不好看 .

    [ 本帖最后由 chouchou66 于 2020-2-21 15:08 编辑 ]




    • 来自 江苏省
    • 精华 0
    • 注册 2019-12-8
    •  

    我算了一下 我们家估计装好了  23W 可以搞定




    • 来自 江苏省
    • 精华 3
    • 注册 2013-8-6
    • 行业 IT 通信
    •  






    • 来自 江苏省
    • 精华 0
    • 注册 2015-10-16
    •  

    感谢 徐总支持  ! 




    • 来自 江苏省
    • 精华 0
    • 注册 2019-10-12
    •  


    QUOTE:
    原帖由 chouchou66 于 2020-2-21 14:59 发表
    现在装下来 和效果图 还是很像的 !
    现在目前话费  !   16W !
    人工加材料花了                  4.8W  
    地砖                                1.1W     欧福莱
    地板                                1.3W     圣达
    橱柜 衣柜   全部柜子           4 W     设计师帮定的 亲戚在南京加工厂
    大理石                             0.5W      忘了
    空调                                0.7W     格力
    房门                                0.9W     美星木门
    卫浴                                0.6W     惠达
    移门淋浴房                        0.8W     欧拓
    大门                                 0.3W     喜传天下
    窗户                                 0.8W     楼下找人做的   ...
    自装省不少




    • 来自 江苏省
    • 精华 0
    • 注册 2019-10-12
    •  


    QUOTE:
    原帖由 chouchou66 于 2019-12-10 13:36 发表
    现在水泥黄沙好像比以前涨不少。师傅墙起的还是慢有水平的!  
    水泥涨




    • 来自 江苏省
    • 精华 0
    • 注册 2019-12-8
    •  


    QUOTE:
    原帖由 bobiovo 于 2020-2-25 13:30 发表
    自装省不少
    是的 省很多!和半包比 有些杂费 没有,主材上 也省了点   还是要遇上个比较靠的住的设计师  有的东西价格确实比自己去买的低。




    • 来自 江苏省
    • 精华 0
    • 注册 2005-6-10
    •  

    楼主牛!市场跑了很久,自装必须对装修知识了解,并且有好的施工师傅,否则一是价格上不一定会省钱,并且后期入住后可能出现问题!




    • 来自 江苏省
    • 精华 0
    • 注册 2019-10-12
    •  


    QUOTE:
    原帖由 XPLWJ 于 2020-2-28 07:44 发表
    楼主牛!市场跑了很久,自装必须对装修知识了解,并且有好的施工师傅,否则一是价格上不一定会省钱,并且后期入住后可能出现问题!
    明白人




    • 来自 江苏省
    • 精华 0
    • 注册 2019-12-8
    •  


    QUOTE:
    原帖由 XPLWJ 于 2020-2-28 07:44 发表
    楼主牛!市场跑了很久,自装必须对装修知识了解,并且有好的施工师傅,否则一是价格上不一定会省钱,并且后期入住后可能出现问题!
    休息天就去市场看看!还有一点就是   不是很熟悉的人不要找,有些东西陌生人给的价格更合理!要是找熟人先对比过其他它商家价格后最后去。直接挑明了 你在外面的最低价格,能做就做 不能做就算!心里也不要纯在侥幸心里 !只要熟人东西差不多情况下比其他人低就行 ,也不要吓说别人家价格来忽悠熟人 毕竟人家也要生活。还有就是听听设计师告诉你的价格,很多性价比高的点 都在不起眼的地方。当然也有质量不好的 不要贪便宜。




    • 来自 江苏省
    • 精华 0
    • 注册 2019-12-8
    •  

    上效果喽 !

    [ 本帖最后由 chouchou66 于 2020-4-14 12:29 编辑 ]



    进门



    客厅



    主卧



    沙发



    卫生间



    餐厅



    悬关




    • 来自 江苏省
    • 精华 0
    • 注册 2015-10-16
    •  






    查看积分策略说明快速回复主题
    您目前还是游客,请 登录注册
    您目前是游客,本帖已被系统设置了自动关闭,不可回复!

    0/5000字

     
    < >
     

    Powered by Discuz! X 2 0.090404 s 清除 Cookies - 镇江网友之家 - 手机版
    论坛导航 关闭