| 标题
快捷导航

精彩推荐:MY0511客户端下载

    • 中信银行镇江分行

    • 公益体彩 乐善人生

    • 鹏龙鸿蒙

    • 天然石材·人造石

    » 梦溪论坛 » 家庭装修 » 美的城三期——省心省力省钱,全包打造美的新家,瓷砖铺贴中。。。
    家庭装修  >  [装修日记] 美的城三期——省心省力省钱,全包打造美的新家,瓷砖铺贴中。。。     
    查看: 23114  回复: 70
     71  1/2  1  2  > 
    [装修日记] 美的城三期——省心省力省钱,全包打造美的新家,瓷砖铺贴中。。。      查看: 23114  回复: 70
    • 来自 江苏省
    • 精华 0
    • 注册 2019-7-14
    •  
    美的城三期——省心省力省钱,全包打造美的新家,瓷砖铺贴中。。。

    美的城三期--省心省力省钱,全包打造美的新家


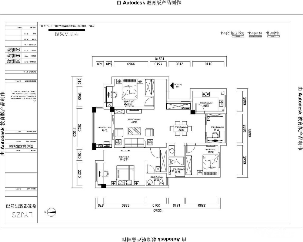
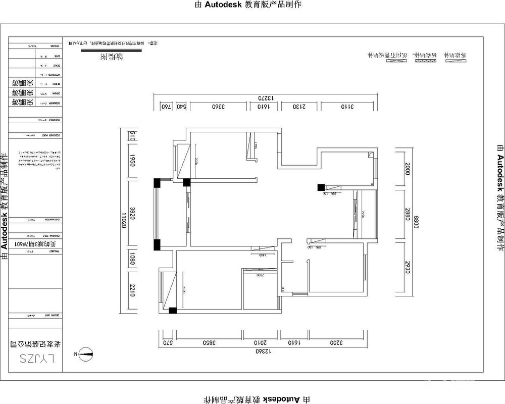
    【小区名称】:美的城三期


    【所在楼层】:六楼


    【装修风格】:现代简约


    【包工方式】:全包


    【装修公司】:老友记


    【设 计 师】:宋鹏涛


    【开工日期】:2019年11月29日


    【装修预算】:20W







    [ 本帖最后由 想飞的燕 于 2019-12-28 16:37 编辑 ]





                      
    • 来自 江苏省
    • 精华 0
    • 注册 2019-7-14
    •  

    拿到心仪的房子后,思考了很久,也抽空跑了几次装修市场,感觉很累,经常看0511的帖子你就会发现装修这里面的水不是一般的深,与其当一个装修小白自己下海试水,不如交给一家值得信任的装修公司更靠谱,抱着这样的心理谈了几家口碑不错的装修公司,选择老友记看中的是质量有保证,选材要环保,主材有品质,特别是主材不能以次充好,黄总特意带我到他合作的谷居VR家居直供平台的展厅看了,全部是一线品牌的瓷砖,地板和卫浴木门,特别是包含德国贝朗的卫浴套餐,我比较满意,五金配件没话说,集成灶和燃气热水器全是德意电器,门窗也于金刚一体的维盾,使得我从半包改为全包的模式,报价经过几次商量,黄总终于给我一个满意的心理价位,于是爽快的签约了。

    [ 本帖最后由 想飞的燕 于 2019-12-19 17:13 编辑 ]




    • 来自 江苏省
    • 精华 0
    • 注册 2019-7-14
    •  

    主材品牌:瓷砖:鹰牌新中源  (谷居直供)
    卫浴:德国贝朗,箭牌  (谷居直供)
    地板:德尔  (谷居直供)
    木门:双羽   (老友记)
    门窗:维盾
    集成灶:德意电器  (谷居直供)
    燃气热水器:德意电器  (谷居直供)
    橱柜衣柜:格林纳
    吊顶:时尚百年
    开关:公牛













    [ 本帖最后由 想飞的燕 于 2019-12-19 17:02 编辑 ]




    • 来自 江苏省
    • 精华 0
    • 注册 2017-7-1
    •  

    恭喜恭喜




    • 来自 江苏省
    • 精华 2
    • 注册 2016-12-14
    • 行业 房产建筑
    •  


    QUOTE:
    原帖由 想飞的燕 于 2019-12-13 14:53 发表
    先占楼,有空再写
    搬个板凳等着




    • 来自 江苏省
    • 精华 32
    • 注册 2017-12-1
    • 行业 房产建筑
    •  

    坐等开帖




    • 来自 江苏省
    • 精华 0
    • 注册 2014-5-17
    • 行业 商业贸易
    •  






    • 来自 江苏省
    • 精华 0
    • 注册 2018-3-31
    • 行业 其它
    •  

    欢迎新同学




    • 来自 江苏省
    • 精华 0
    • 注册 2019-10-28
    •  

    前排出售瓜子,板凳




    • 来自 江苏省
    • 精华 5
    • 注册 2019-3-30
    • 行业 基础设施
    •  

    恭喜开贴




    • 来自 江苏省
    • 精华 0
    • 注册 2019-6-11
    •  

    恭喜开贴




    • 来自 江苏省
    • 精华 0
    • 注册 2019-8-18
    •  

    我也占个楼




    • 来自 江苏省
    • 精华 0
    • 注册 2015-6-22
    • 行业 房产建筑
    •  

    恭喜开贴




    • 来自 江苏省
    • 精华 405
    • 注册 2016-10-30
    • 行业 房产建筑
    •  
    • 来自 江苏省
    • 精华 70
    • 注册 2018-3-2
    • 行业 房产建筑
    •  

    加油更新




    • 来自 江苏省
    • 精华 0
    • 注册 2019-3-14
    •  






    • 来自 江苏省
    • 精华 0
    • 注册 2014-8-14
    • 行业 商业贸易
    •  






    • 来自 江苏省
    • 精华 0
    • 注册 2019-4-8
    • 行业 其它
    •  
    • 来自 江苏省
    • 精华 0
    • 注册 2019-3-15
    •  

    恭喜恭喜,开工大吉




    • 来自 江苏省
    • 精华 0
    • 注册 2019-3-14
    •  






    • 来自 江苏省
    • 精华 0
    • 注册 2019-11-21
    • 行业 基础设施
    •  
    • 来自 江苏省
    • 精华 0
    • 注册 2019-7-14
    •  
    • 来自 江苏省
    • 精华 0
    • 注册 2019-7-14
    •  
    • 来自 江苏省
    • 精华 0
    • 注册 2019-7-14
    •  

    图片顺序有点混乱,各位见谅,除了定方案,选主材这些必须到场的时候,其他时间都是通过微信群来看进度的,项目经理是黄总哥哥,认真负责,有问必答,先点个赞




    • 来自 江苏省
    • 精华 0
    • 注册 2011-5-15
    • 行业 商业贸易
    •  

    开工了




    • 来自 江苏省
    • 精华 0
    • 注册 2019-3-14
    •  






    • 来自 江苏省
    • 精华 0
    • 注册 2019-7-14
    •  

    谢谢各位的关心,有空过来更新一下




    • 来自 江苏省
    • 精华 0
    • 注册 2011-5-3
    • 行业 金融保险
    •  
    • 来自 江苏省
    • 精华 0
    • 注册 2019-7-14
    •  
    • 来自 江苏省
    • 精华 0
    • 注册 2019-7-14
    •  

    水电完工,维盾门窗安装完毕




    • 来自 江苏省
    • 精华 0
    • 注册 2019-7-14
    •  

    吊顶进行中,原本房间没有准备吊顶,但考虑到一个主灯有点单调,于是和宋工沟通了一下,两个房间补了吊顶和光源




    • 来自 江苏省
    • 精华 0
    • 注册 2019-7-14
    •  
    • 来自 江苏省
    • 精华 0
    • 注册 2008-5-11
    • 行业 娱乐餐饮
    •  
    • 来自 江苏省
    • 精华 0
    • 注册 2019-6-8
    •  

    接着顶!




    • 来自 江苏省
    • 精华 0
    • 注册 2019-7-14
    •  


    QUOTE:
    原帖由 海边人家 于 2019-12-23 19:01 发表
    谢谢邻居




    • 来自 江苏省
    • 精华 0
    • 注册 2019-7-14
    •  


    QUOTE:
    原帖由 强哥~ 于 2019-12-23 22:12 发表
    接着顶!
    谢谢




    • 来自 江苏省
    • 精华 0
    • 注册 2019-3-14
    •  

    谢谢推荐




    • 来自 江苏省
    • 精华 0
    • 注册 2019-3-14
    •  






    • 来自 江苏省
    • 精华 0
    • 注册 2019-7-14
    •  
    • 来自 江苏省
    • 精华 0
    • 注册 2019-7-14
    •  
    • 来自 江苏省
    • 精华 0
    • 注册 2019-7-14
    •  

    谷居工厂直供的瓷砖到货啦,从选砖到货到家只要5天的时间,速度挺快的




    • 来自 江苏省
    • 精华 0
    • 注册 2019-7-14
    •  
    • 来自 江苏省
    • 精华 0
    • 注册 2019-7-14
    •  

    喜欢这款大理石花纹的大砖,地面准备工字铺法




    • 来自 江苏省
    • 精华 0
    • 注册 2019-7-14
    •  






     71  1/2  1  2  > 
    查看积分策略说明快速回复主题
    您目前还是游客,请 登录注册
    您目前是游客,本帖已被系统设置了自动关闭,不可回复!

    0/5000字

     
    < >
     

    Powered by Discuz! X 2 0.104553 s 清除 Cookies - 镇江网友之家 - 手机版
    论坛导航 关闭