| 标题
快捷导航

精彩推荐:MY0511客户端下载

    • 中信银行镇江分行

    • 公益体彩 乐善人生

    • 鹏龙鸿蒙

    • 天然石材·人造石

    » 梦溪论坛 » 家庭装修 » 墙排好看地排不堵,到底哪种比较好?
    家庭装修  >  [经验分享] 墙排好看地排不堵,到底哪种比较好?     
    查看: 11222  回复: 3
    [经验分享] 墙排好看地排不堵,到底哪种比较好?      查看: 11222  回复: 3
    • 来自 江苏省
    • 精华 3
    • 注册 2013-8-6
    • 行业 IT 通信
    •  
    墙排好看地排不堵,到底哪种比较好?

    因为对生活的质量和质感要求越来越高,大家对装修方面更是不想放过任何一个细节。不仅功能齐全,还要颜值高。
    卫生间的装修一直是家装中备受关注的部分,干湿分离、浴缸、洗手池等等每一块都是重点。
    现在有很多家装案例都是墙排挺好看的,隐蔽式设计让许多人动了心。

    洗手台和马桶的下水分为墙排式和地排式,之前家家户户基本都是地排,
    近两年来墙排更受欢迎,毕竟颜值高,好打扫。
    墙排马桶是将所有水管都有嵌入到墙里面,隐蔽式的设计表面看上去既干净又精致。

    [ 本帖最后由 my0511唐老鸭 于 2020-3-18 15:15 编辑 ]





                      
    • 来自 江苏省
    • 精华 3
    • 注册 2013-8-6
    • 行业 IT 通信
    •  

    什么是墙排式&地排式?
    墙排式是指:是指卫生间洁具后方砌一堵假墙,
    形成一定的宽度的布置管道的专用空间,排水支管不穿越楼板在假墙内敷设、安装,在同一楼层内与主管相连接。

    地排式是指:通过地面排水管直接连接台盆进行排水。


    墙排式优缺点分析

    优点:
    1.排水管埋在墙内,不用担心水管裸露在外的问题,整体简洁,美观,视觉效果好。
    2.排水管与地面不接触,没有卫生死角,打扫卫生时比较方便。
    3. 由于墙排水是悬空安装,所以给底部增加收纳空间。
    4. 节约水资源。
    缺点:
    1.排水管多了几个转弯,下水速度会变慢,相比地排水容易造成堵塞。
    2.施工复杂,费用较高。

    地排式优缺点分析


    优点:
    1.排水管通畅,不易堵塞。
    2.施工简单,安装方便。
    缺点:
    1.排水管裸露,美观性不足,档次较低。
    2.排水管与地面接触,拖洗地面不是很方便。
    3.水流穿过楼板,顺着管道流下会产生噪音。


    如果你想要好看的墙排,需要注意以下几点:
    1.排水管最好选择50管,不容易发生堵塞
    2.日常使用中注意头发不要往洗脸台里冲,马桶里也不要倒入有骨头的剩饭剩菜、卫生纸这些
    3.洗衣机不要走墙排,因为排水水量大,墙排下水慢,有溢出的可能
    4.厨房最好也不要走墙排,因为厨余异物很容易进入管道,会比卫生间更容易堵塞

    [ 本帖最后由 my0511唐老鸭 于 2020-3-18 15:06 编辑 ]




    • 来自 江苏省
    • 精华 3
    • 注册 2013-8-6
    • 行业 IT 通信
    •  

    众所周知,地排的管道是裸露在外的,洗手池还能有浴室柜可以遮挡,但是马桶就不能遮了。
    关于颜值,仁者见仁智者见智,但是如果抛去其他因素看,墙排还是略胜一筹的。

    看排水能力,主要是看容不容易堵。
    地排使用多年,其实关于堵塞的的争议点,主要还是在墙排身上。

    地排改墙排为什么容易堵?
    这主要还是看墙排的排水路径,与地排改墙排的方法息息相关!
    ①直接在主排污管上接三通

    第一种方法,封掉原来的排污管,直接在主排污管上装三通,进行排污,这与地排也就是排水方向不同,不容易堵。


    ②用移位器

    这种情况由于排水路径更远更复杂,相对来说容易堵。

    ①改墙排的墙必须是非承重墙,不然不能开槽,只能选择砌假墙。
    ②如果主排污管在面盆马桶一测,改墙排尽量选第一种方法。
    ③管径尽量选宽的,50mm左右最常用。


    [ 本帖最后由 my0511唐老鸭 于 2020-3-18 15:04 编辑 ]




    • 来自 江苏省
    • 精华 3
    • 注册 2013-8-6
    • 行业 IT 通信
    •  

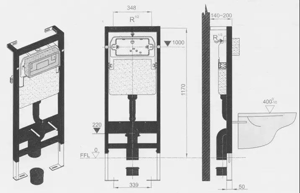
    墙排马桶要把水箱暗藏进墙壁里,实现马桶壁挂。

    如果是承重墙,要另外砌堵假墙,在假墙里预留管道和马桶的安装位置;
    如果是非承重墙,可以直接在墙壁上开个洞来安装支架。

    不用担心假墙的承重能力,因为壁挂马桶的承重部位不是墙壁,而是安装在墙体内的支架,
    右两边各一个高密度材质的悬挂螺丝,完全能承受住你、我、他每个精致猪猪girl/boy的体重。


    墙排维修要把墙砖都撬掉?
    如果是马桶本身问题,那维修起来很简单,冲水按钮就是检修口,
    不用任何工具单手就可以取出水箱内部的所有配件,出问题了很容易更换。

    如果是墙壁内的水箱和管道(如非质量原因,一般是不会出问题的),那就要拆墙了。
    所以同款的瓷砖可以存一些备用,假如以后拆墙维修了,还能恢复原状。
    (这也是为什么我们推荐购买大品牌的原因,不易坏、有保障。)

    壁挂式马桶 更适合什么样的人?


    爱美爱清洁人士:壁挂式无卫生死角容易清洁
    卫生间面积小:壁挂式占地面积小,空间更开阔
    对冲水声音敏感:入墙后,有了墙体的阻隔,噪音自然被削弱
    对生活有追求的人:毕竟壁挂式马桶还是有点贵的

    [ 本帖最后由 my0511唐老鸭 于 2020-3-18 15:08 编辑 ]




    查看积分策略说明快速回复主题
    您目前还是游客,请 登录注册
    您目前是游客,本帖已被系统设置了自动关闭,不可回复!

    0/5000字

     
    < >
     

    Powered by Discuz! X 2 0.060393 s 清除 Cookies - 镇江网友之家 - 手机版
    论坛导航 关闭