收藏本站
客户端
扫码下载客户端
官方微信
打开微信扫一扫
登录
|
注册
|
标题
标题
用户
全站首页
|
论坛导航
|
网络问政
|
招聘求职
|
买房租房
|
装修频道
|
生活服务
|
教育
|
相亲
|
亲子
|
美食
|
婚嫁
|
手机客户端
家有学子
|
母婴乐园
快捷导航
精彩推荐:
MY0511客户端下载
中信银行镇江分行
公益体彩 乐善人生
鹏龙鸿蒙
天然石材·人造石
»
梦溪论坛
»
家庭装修
» 97平方,预算只有10万,“不知道能不能顶得住” ////拆墙改造中
家庭装修
>
[装修日记]
97平方,预算只有10万,“不知道能不能顶得住” ////拆墙改造中
查看: 17232 回复: 37
快速回复
返回家庭装修
[装修日记]
97平方,预算只有10万,“不知道能不能顶得住” ////拆墙改造中
查看: 17232 回复: 37
上一主题
|
下一主题
hzw嘎嘎
来自 江苏省
精华 0
注册 2020-4-2
97平方,预算只有10万,“不知道能不能顶得住” ////拆墙改造中
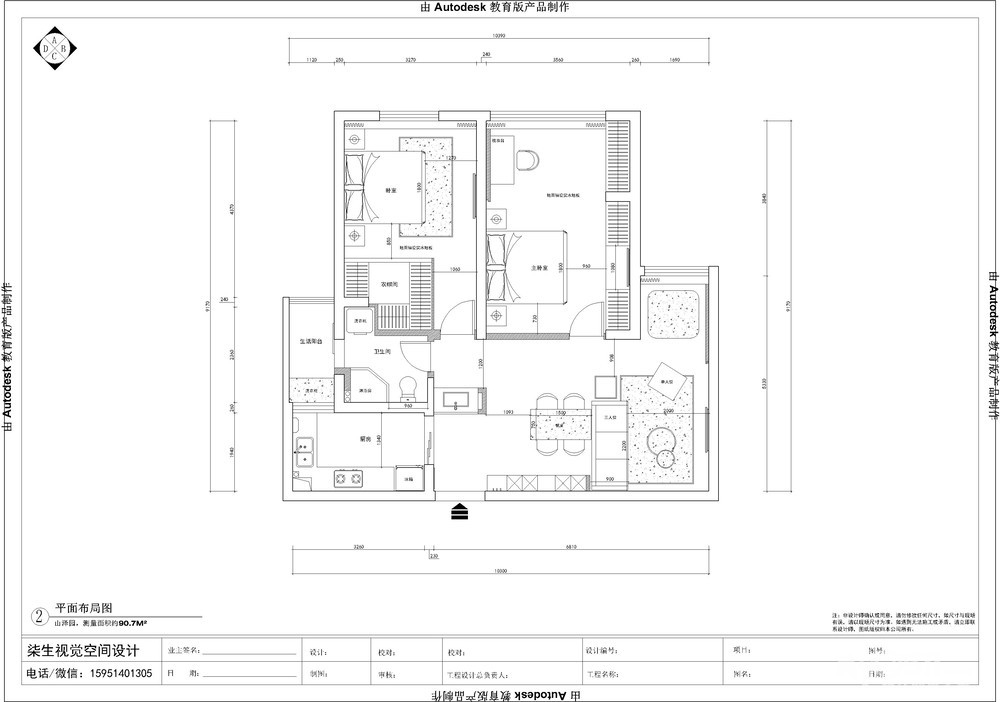
【小区名称】:山泽园
【所在楼层】:18楼
【建筑面积】:97平方
【装修风格】:北欧
【包工方式】:半包
【装修公司】:柒生设计工作室
【开工日期】:2020年04月8日
【装修预算】:10万
【户型图片】:
原有的户型
修改后的户型
规划图
[
本帖最后由 my0511唐老鸭 于 2020-7-30 16:48 编辑
]
已有 红居装饰
1
人打赏
2020-4-7 11:12
1楼
找工作,就上MY0511!
只看该作者
分享本楼
hzw嘎嘎
来自 江苏省
精华 0
注册 2020-4-2
2020年4月8日,上午10点18分开工,正在敲墙
[
本帖最后由 hzw嘎嘎 于 2020-4-9 11:06 编辑
]
2020-4-7 11:12
2楼
找工作,就上MY0511!
只看该作者
分享本楼
hzw嘎嘎
来自 江苏省
精华 0
注册 2020-4-2
2020-4-7 11:13
3楼
0511家装频道:本地家居服务平台,数万业主共同选择
只看该作者
分享本楼
以书
该用户已被删除
*** 作者因违反论坛规定,禁言处理,内容自动屏蔽 ***
详情参阅论坛注册条款:
http://bbs.my0511.com/f11b-t2789156z
2020-4-7 11:19
4楼
买房、卖房、租房上镇江房产网!
红居装饰
专版版主
来自 江苏省
精华
423
注册 2016-10-30
行业 房产建筑
开工大吉哦
2020-4-7 11:24
5楼
MY0511相亲,一分钟注册,享一辈子幸福!
只看该作者
分享本楼
hzw嘎嘎
来自 江苏省
精华 0
注册 2020-4-2
QUOTE:
原帖由
以书
于 2020-4-7 11:19 发表
十万怎么算
算不了,因为只有10万,我估计电器只能一年后住进去的时候在买了。
2020-4-7 11:39
6楼
0511家装频道:本地家居服务平台,数万业主共同选择
只看该作者
分享本楼
hzw嘎嘎
来自 江苏省
精华 0
注册 2020-4-2
有什么好的,价格优惠的可以推荐给我噢!
2020-4-7 11:40
7楼
0511家装频道:本地家居服务平台,数万业主共同选择
只看该作者
分享本楼
展志天华木门
来自 江苏省
精华 0
注册 2019-6-5
恭喜恭喜
开工大吉
---发自vivo---
2020-4-7 12:18
8楼
[联宇电脑] 电脑组装\维修\升级\企业单位电脑维护!
只看该作者
分享本楼
法诗顿移门
来自 江苏省
精华 0
注册 2017-7-1
2020-4-7 12:32
9楼
0511家装频道:本地家居服务平台,数万业主共同选择
只看该作者
分享本楼
怡然家装饰
来自 江苏省
精华
7
注册 2019-5-9
开工大吉
2020-4-7 13:54
10楼
MY0511相亲,一分钟注册,享一辈子幸福!
只看该作者
分享本楼
my0511小妖
版主
来自 江苏省
精华
9
注册 2005-10-29
10w不买家具不买电器把预算嘞勒紧,把硬装完成还是可以的
2020-4-7 14:01
11楼
[联宇电脑] 电脑组装\维修\升级\企业单位电脑维护!
只看该作者
分享本楼
mwhred
来自 江苏省
精华
40
注册 2007-5-10
行业 学生
简单点,可以的
---发自vivo---
2020-4-7 14:46
12楼
买房、卖房、租房上镇江房产网!
只看该作者
分享本楼
hzw嘎嘎
来自 江苏省
精华 0
注册 2020-4-2
QUOTE:
原帖由
my0511小妖
于 2020-4-7 14:01 发表
10w不买家具不买电器把预算嘞勒紧,把硬装完成还是可以的
是的!家具电器等打算住进去的时候在买!
2020-4-7 15:45
13楼
0511家装频道:本地家居服务平台,数万业主共同选择
只看该作者
分享本楼
芬驰水管
来自 江苏省
精华 0
注册 2018-4-27
行业 基础设施
恭喜楼主! 开工大吉
2020-4-7 15:53
14楼
[联宇电脑] 电脑组装\维修\升级\企业单位电脑维护!
只看该作者
分享本楼
未来e家整体软装
来自 江苏省
精华 0
注册 2019-10-28
够了
---发自iPhone XR---
2020-4-7 16:18
15楼
MY0511相亲,一分钟注册,享一辈子幸福!
只看该作者
分享本楼
cjkiss
来自 江苏省
精华 0
注册 2011-5-16
行业 工业制造
山泽园房产证办到了
---发自华为---
2020-4-7 20:29
16楼
0511家装频道:本地家居服务平台,数万业主共同选择
只看该作者
分享本楼
美缝_小潘
来自 江苏省
精华 0
注册 2018-8-27
恭喜
---发自梦溪论坛手机客户端---
2020-4-7 20:33
17楼
[联宇电脑] 电脑组装\维修\升级\企业单位电脑维护!
只看该作者
分享本楼
yadilo雅帝乐
来自 江苏省
精华 0
注册 2018-12-12
行业 其它
恭喜开帖
---发自iPhone 7 Plus---
2020-4-7 20:34
18楼
MY0511相亲,一分钟注册,享一辈子幸福!
只看该作者
分享本楼
镇江风尚大宅
来自 江苏省
精华
87
注册 2017-9-7
---发自梦溪论坛手机客户端---
2020-4-7 21:06
19楼
0511家装频道:本地家居服务平台,数万业主共同选择
只看该作者
分享本楼
佰丽爱家
来自 江苏省
精华 0
注册 2019-4-8
行业 其它
---发自梦溪论坛手机客户端---
2020-4-7 21:36
20楼
MY0511相亲,一分钟注册,享一辈子幸福!
只看该作者
分享本楼
星月神防盗门A
来自 江苏省
精华 0
注册 2019-11-21
行业 基础设施
楼主开工大吉
---发自iPhone XS Max---
2020-4-8 05:19
21楼
找工作,就上MY0511!
只看该作者
分享本楼
泽一设计
专版版主
来自 江苏省
精华
75
注册 2018-3-2
行业 房产建筑
开工大吉
2020-4-8 10:07
22楼
0511家装频道:本地家居服务平台,数万业主共同选择
只看该作者
分享本楼
不锈钢橱柜定制
来自 江苏省
精华 0
注册 2020-4-8
开工大吉
2020-4-8 11:00
23楼
找工作,就上MY0511!
只看该作者
分享本楼
德国沃斯卡门窗
来自 江苏省
精华 0
注册 2019-4-24
行业 其它
恭喜开工
2020-4-8 11:14
24楼
找工作,就上MY0511!
只看该作者
分享本楼
hzw嘎嘎
来自 江苏省
精华 0
注册 2020-4-2
感谢各位!
2020-4-9 11:08
25楼
0511家装频道:本地家居服务平台,数万业主共同选择
只看该作者
分享本楼
伊慕装饰
专版版主
来自 江苏省
精华 0
注册 2014-10-16
欢迎新同学
2020-4-9 11:09
26楼
找工作,就上MY0511!
只看该作者
分享本楼
淌口水的小兔
来自 江苏省
精华 0
注册 2012-9-1
行业 其它
把客厅跟右边房间换一下,采光更好吧
2020-4-9 11:11
27楼
找工作,就上MY0511!
只看该作者
分享本楼
hzw嘎嘎
来自 江苏省
精华 0
注册 2020-4-2
QUOTE:
原帖由
淌口水的小兔
于 2020-4-9 11:11 发表
把客厅跟右边房间换一下,采光更好吧
要的就是大房间,大落地窗!
2020-4-10 01:51
28楼
买房、卖房、租房上镇江房产网!
只看该作者
分享本楼
全兴石材
来自 江苏省
精华 0
注册 2019-3-15
恭喜恭喜,开工大吉
---发自华为---
2020-4-10 09:52
29楼
找工作,就上MY0511!
只看该作者
分享本楼
镇江德国都芳漆
来自 江苏省
精华 0
注册 2014-5-17
行业 商业贸易
恭喜楼主
2020-4-10 11:58
30楼
0511家装频道:本地家居服务平台,数万业主共同选择
只看该作者
分享本楼
XPLWJ
来自 江苏省
精华 0
注册 2005-6-10
装修就是寻找平衡!尽量不留遗憾!
---发自iPhone 6---
2020-4-14 15:38
31楼
找工作,就上MY0511!
只看该作者
分享本楼
青田门业
来自 安徽省
精华 0
注册 2011-9-16
行业 商业贸易
恭喜开工
2020-4-14 16:20
32楼
MY0511相亲,一分钟注册,享一辈子幸福!
只看该作者
分享本楼
和珅饭庄
来自 江苏省
精华 0
注册 2009-12-16
行业 娱乐餐饮
各种广告
---发自梦溪论坛手机客户端---
2020-4-15 12:31
33楼
买房、卖房、租房上镇江房产网!
只看该作者
分享本楼
玛莎名品家具
来自 江苏省
精华
1
注册 2017-8-10
行业 其它
开工大吉
2020-4-16 13:18
34楼
0511家装频道:本地家居服务平台,数万业主共同选择
只看该作者
分享本楼
ing小小强
来自 江苏省
精华 0
注册 2016-3-9
马上要拿房了,预算和你差不多,囊中羞涩
---发自梦溪论坛手机客户端---
2020-4-16 13:24
35楼
MY0511相亲,一分钟注册,享一辈子幸福!
只看该作者
分享本楼
H华鹤木门
来自 江苏省
精华 0
注册 2019-6-11
开工大吉
2020-4-16 13:37
36楼
买房、卖房、租房上镇江房产网!
只看该作者
分享本楼
箭牌卫浴月星店
来自 江苏省
精华 0
注册 2019-1-20
恭喜开工大吉,一线品牌,亲民价格,箭牌卫浴欢迎您的光临
2020-4-16 14:30
37楼
找工作,就上MY0511!
只看该作者
分享本楼
森达木业
来自 江苏省
精华 0
注册 2020-3-27
开工大吉。
---发自华为---
2020-4-16 14:33
38楼
[联宇电脑] 电脑组装\维修\升级\企业单位电脑维护!
只看该作者
分享本楼
返回家庭装修
快速回复主题
游客
您目前还是游客,请
登录
或
注册
您目前是游客,本帖已被系统设置了自动关闭,不可回复!
文明交流,理性发言
0/5000字
<
>
请在打开的新窗口中支付完成打赏
我已完成支付打赏
支付失败重新支付
其他金额
打赏金额:
元
确定
支付打赏
提 现
打赏人
打赏金额(元)
打赏时间
红居装饰
1.00
2020-4-7 11:24
Powered by
Discuz! X 2
0.037518 s
清除 Cookies
-
镇江网友之家
-
手机版
论坛导航
关闭
吃喝玩乐
饮食男女
镇江钓友之家
菜菜鸟户外
镇江单车俱乐部
镜头里的镇江
畅游天下
猫狗总动员
视觉Coffeeshop摄影部落
花鸟鱼虫
婚姻.亲子.家庭
家有学子
谈婚论嫁
女性天地
母婴乐园
婚姻生活
梦溪佳缘
装修
家庭装修
装修招标
镇江室内设计师交流
装修商家直通车
你好,镇江!
百姓话题
我要买房
0511爱心家园
市场监管•12315热线
分类信息
生活服务
闲置转让
镇江二手房/镇江租房
镇江招聘求职
教育培训
镇江二手车
商铺厂房写字楼租售
宠物市场
运动健身
卡券交易
电脑维修升级
杂货铺
其他分类信息区
兴趣爱好
HiFi音响江城沙龙
镇江市美术家协会
我爱模型
车友俱乐部
车迷之家
汽车驾培中心
运动俱乐部
镇江市冬泳、铁人三项协会
聚焦足球
镇江羽毛球
镇江乒乓球协会
镇江网球协会
镇江市自行车运动协会
热爱篮球
动力机车
合作栏目
维权热线
天翼时代
色觉影像摄影工作室
站务区
疑问与建议
网络问政
市政府工作部门
垂直管理部门
党群工作部门
其他重点单位
辖市(区)